Property
Account |
| Property ID: | 336185 | Abbreviated Legal Description: | ONAMAC LOT 17 (DRAINFIELD) EXEMPT VALUED WITH PARCELS SERVED |
| Geographic ID: | S7610-00-00017-0 | Agent Code: | |
| Type: | Real | | |
| Tax Area: | 510 - APPRAISER-Stan/Cam Schl Dist, improved & 1 acre or less | Land Use Code | 11 |
| Open Space: | N | DFL | N |
| Historic Property: | N | Remodel Property: | N |
| Multi-Family Redevelopment: | N | | |
| Township: | | Section: | |
| Range: | |
Location |
| Address: | 778 COMMODORE LN CAMANO ISLAND, WA 98282 | Mapsco: | |
| Neighborhood: | Cycle 5 | Map ID: | 467 |
| Neighborhood CD: | 5 |
Owner |
| Name: | GAULE, PATRICK T | Owner ID: | 315603 |
| Mailing Address: | DENISE R GAULE 778 SOUTH COMMODORE LN CAMANO ISLAND, WA 98282 | % Ownership: | 100.0000000000% |
| | | Exemptions: | |
Taxes and Assessment Details
Values
| (+) Improvement Homesite Value: | + | $0 | |
| (+) Improvement Non-Homesite Value: | + | $428,210 | |
| (+) Land Homesite Value: | + | $0 | |
| (+) Land Non-Homesite Value: | + | $230,000 | |
| (+) Curr Use (HS): | + | $0 | $0 |
| (+) Curr Use (NHS): | + | $0 | $0 |
| | | -------------------------- | |
| (=) Market Value: | = | $658,210 | |
| (–) Productivity Loss: | – | $0 | |
| | | -------------------------- | |
| (=) Subtotal: | = | $658,210 | |
| (+) Senior Appraised Value: | + | $0 | |
| (+) Non-Senior Appraised Value: | + | $658,210 | |
| | | -------------------------- | |
| (=) Total Appraised Value: | = | $658,210 | |
| (–) Senior Exemption Loss: | – | $0 | |
| (–) Exemption Loss: | – | $0 | |
| | | -------------------------- | |
| (=) Taxable Value: | = | $658,210 | |
Taxing Jurisdiction
| Owner: | GAULE, PATRICK T | | |
| % Ownership: | 100.0000000000% | | |
| Total Value: | $658,210 | | |
| Tax Area: | 510 - APPRAISER-Stan/Cam Schl Dist, improved & 1 acre or less |
| CF | Conservation Futures | 0.0313996660 | $658,210 | $658,210 | $20.67 | | |
| EMS1 | Fire & Rescue Dist #1 Camano GEN (EMS) | 0.4998471806 | $658,210 | $658,210 | $329.00 | | |
| FIRE1 | Fire & Rescue Dist #1 Camano GEN | 1.2496603404 | $658,210 | $658,210 | $822.54 | | |
| FIRE1BOND | Fire & Rescue Dist #1 Camano BOND | 0.1630371212 | $658,210 | $658,210 | $107.31 | | |
| CE | County Current Expense | 0.3674210519 | $658,210 | $658,210 | $241.84 | | |
| CR | County Roads | 0.4614296361 | $658,210 | $658,210 | $303.72 | | |
| LIB | Library Sno-Isle GEN | 0.3039084203 | $658,210 | $658,210 | $200.04 | | |
| SCH205_401 | School 205-401 Enrichment | 1.3697998934 | $658,210 | $658,210 | $901.62 | | |
| SCH205BOND | School 205-401 BOND | 0.9354199323 | $658,210 | $658,210 | $615.70 | | |
| ST | State School | 1.4761226122 | $658,210 | $658,210 | $971.60 | | |
| ST2 | State School Part 2 | 0.7953803475 | $658,210 | $658,210 | $523.53 | | |
| | Total Tax Rate: | 7.6534262019 | | | | | |
| | | | | Taxes w/Current Exemptions: | $5,037.57 | | |
| | | | | Taxes w/o Exemptions: | $5,037.57 | | |
Improvement / Building
| Improvement #1: | RESIDENTIAL | State Code: | Y | 1901.0 sqft | Value: | $428,210 |
| Bathrooms: | 2 | Bedrooms: | 3 | | Ceiling: | DRYWALL PAINTED | Cooling: | HEAT PUMP/CONV/V | | Exterior Wall/Cover: | CEMENT FIBER | Floor Covering: | VINYL 100% | | Floor Structure: | WOOD W/SUBFLOOR | Foundation: | CONCRETE | | Interior Finish: | DRYWALL PAINT | Plumbing Fixture Cnt: | 11 | | Roof Slope: | 6" IN 12" | Roof Structure/Cover: | CJ ASPHALT |
|
| | Type | Description | Class CD | Sub Class CD | Year Built | Area |
| | BAS | BASE/MAIN FLOOR | 4 | 0 | 2024 | 1901.0 |
| | AGR | ATTACHED GARAGE | 4 | 0 | 2024 | 624.0 |
| | OWR | OPEN WOOD PORCH W/STEPS/ROOF | 4 | 0 | 2024 | 84.0 |
| | OP4 | OPEN PORCH W/CEILING-ROOF | 4 | 0 | 2024 | 36.0 |
Sketch
Property Image
Land
| 1 | 14 | SQ (08001-12000) | 0.0000 | 0.00 | 0.00 | 0.00 | 1.00 | $230,000 | $0 |
Roll Value History
| 2026 | N/A | N/A | N/A | N/A | N/A |
| 2025 | $428,210 | $230,000 | $0 | $658,210 | $658,210 |
| 2024 | $436,948 | $110,000 | $0 | $546,948 | $546,948 |
| 2023 | $0 | $110,000 | $0 | $110,000 | $110,000 |
| 2022 | $0 | $450 | $0 | $450 | $0 |
| 2021 | $0 | $450 | $0 | $450 | $0 |
| 2020 | $0 | $450 | $0 | $450 | $0 |
| 2019 | $0 | $450 | $0 | $450 | $0 |
| 2018 | $0 | $450 | $0 | $450 | $0 |
| 2017 | $0 | $450 | $0 | $450 | $0 |
| 2016 | $0 | $450 | $0 | $450 | $0 |
| 2015 | $0 | $50,000 | $0 | $50,000 | $0 |
| 2014 | $0 | $50,000 | $0 | $50,000 | $0 |
| 2013 | $0 | $10,200 | $0 | $10,200 | $0 |
| 2012 | $0 | $10,200 | $0 | $10,200 | $0 |
| 2011 | $0 | $10,200 | $0 | $10,200 | $0 |
| 2010 | $0 | $10,200 | $0 | $10,200 | $0 |
| 2009 | $0 | $11,000 | $0 | $11,000 | $0 |
| 2008 | $0 | $25,591 | $0 | $25,591 | $0 |
| 2007 | $0 | $25,535 | $0 | $25,535 | $0 |
Deed and Sales History
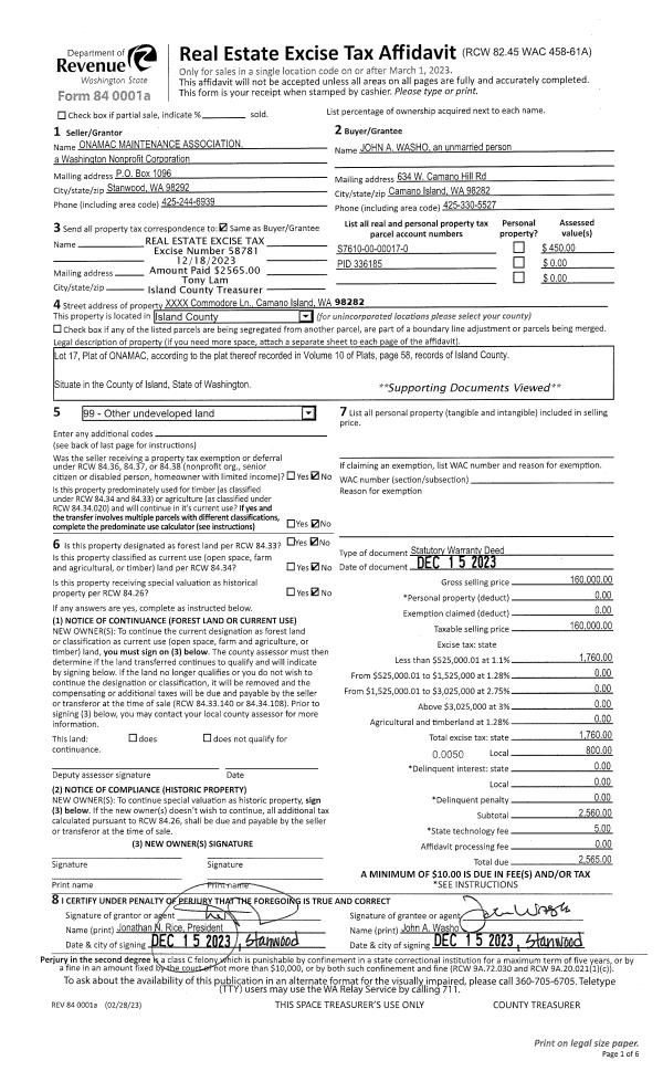
| 1 | 02/13/2025 | WD | Warranty Deed | WASHO, JOHN | GAULE, PATRICK T | | | $799,000.00 | 62680 | 4582724 |
| 2 | 12/15/2023 | WD | Warranty Deed | ONAMAC MAINTENANCE ASSOCIATION | WASHO, JOHN | | | $160,000.00 | 58781 | 4567753 |
| 3 | 04/01/1987 | QCD | Quit Claim Deed | HOME, SAVINGS & | ONAMAC, MAINTENANCE | | | $0.00 | 71135 | 87005677 |
| 4 | 06/01/1983 | TRUSTEED | Trustee's Deed | ONAMAC, PARTNERS | HOME, SAVINGS & | | | $0.00 | 31682 | 0 |
| 5 | 01/01/1900 | OTHER | Other - Misc. Documents | Unknown | ONAMAC, PARTNERS | | | $0.00 | 0 | 0 |
Payout Agreement
| No payout information available.. |