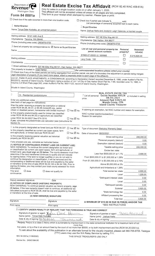
Property
Account |
| Property ID: | 336504 | Abbreviated Legal Description: | ONAMAC LOT 49 TGW LOT 48 EX S30' HD REQ FOR SEPTIC & DRAIN SYSTEM COMBD 6/18/84 |
| Geographic ID: | S7610-00-00049-0 | Agent Code: | |
| Type: | Real | | |
| Tax Area: | 519 - APPRAISER-Stan/Cam Schl Dist, vacant & 50 acres or less | Land Use Code | 99 |
| Open Space: | N | DFL | N |
| Historic Property: | N | Remodel Property: | N |
| Multi-Family Redevelopment: | N | | |
| Township: | | Section: | |
| Range: | |
Location |
| Address: | 732 CRESCENT DR CAMANO ISLAND, WA 98282 | Mapsco: | |
| Neighborhood: | Cycle 5 | Map ID: | 467 |
| Neighborhood CD: | 5 |
Owner |
| Name: | BODNARCHUK, BOHDON W / DANA L | Owner ID: | 66750 |
| Mailing Address: | 723 CRESCENT DR CAMANO ISLAND, WA 98282-7587 | % Ownership: | 100.0000000000% |
| | | Exemptions: | |
Taxes and Assessment Details
Values
| (+) Improvement Homesite Value: | + | $0 | |
| (+) Improvement Non-Homesite Value: | + | $0 | |
| (+) Land Homesite Value: | + | $0 | |
| (+) Land Non-Homesite Value: | + | $110,000 | |
| (+) Curr Use (HS): | + | $0 | $0 |
| (+) Curr Use (NHS): | + | $0 | $0 |
| | | -------------------------- | |
| (=) Market Value: | = | $110,000 | |
| (–) Productivity Loss: | – | $0 | |
| | | -------------------------- | |
| (=) Subtotal: | = | $110,000 | |
| (+) Senior Appraised Value: | + | $0 | |
| (+) Non-Senior Appraised Value: | + | $110,000 | |
| | | -------------------------- | |
| (=) Total Appraised Value: | = | $110,000 | |
| (–) Senior Exemption Loss: | – | $0 | |
| (–) Exemption Loss: | – | $0 | |
| | | -------------------------- | |
| (=) Taxable Value: | = | $110,000 | |
Taxing Jurisdiction
| Owner: | BODNARCHUK, BOHDON W / DANA L | | |
| % Ownership: | 100.0000000000% | | |
| Total Value: | $110,000 | | |
| Tax Area: | 519 - APPRAISER-Stan/Cam Schl Dist, vacant & 50 acres or less |
| CF | Conservation Futures | 0.0313996660 | $110,000 | $110,000 | $3.45 | | |
| EMS1 | Fire & Rescue Dist #1 Camano GEN (EMS) | 0.4998471806 | $110,000 | $110,000 | $54.98 | | |
| CE | County Current Expense | 0.3674210519 | $110,000 | $110,000 | $40.42 | | |
| CR | County Roads | 0.4614296361 | $110,000 | $110,000 | $50.76 | | |
| LIB | Library Sno-Isle GEN | 0.3039084203 | $110,000 | $110,000 | $33.43 | | |
| SCH205_401 | School 205-401 Enrichment | 1.3697998934 | $110,000 | $110,000 | $150.68 | | |
| SCH205BOND | School 205-401 BOND | 0.9354199323 | $110,000 | $110,000 | $102.90 | | |
| ST | State School | 1.4761226122 | $110,000 | $110,000 | $162.37 | | |
| ST2 | State School Part 2 | 0.7953803475 | $110,000 | $110,000 | $87.49 | | |
| | Total Tax Rate: | 6.2407287403 | | | | | |
| | | | | Taxes w/Current Exemptions: | $686.48 | | |
| | | | | Taxes w/o Exemptions: | $686.48 | | |
Improvement / Building
Sketch
| No sketches available for this property. |
Property Image
Land
| 1 | 15 | SQ (12001-21780) | 0.0000 | 0.00 | 0.00 | 0.00 | 1.00 | $110,000 | $0 |
Roll Value History
| 2026 | N/A | N/A | N/A | N/A | N/A |
| 2025 | $0 | $110,000 | $0 | $110,000 | $110,000 |
| 2024 | $0 | $110,000 | $0 | $110,000 | $110,000 |
| 2023 | $0 | $110,000 | $0 | $110,000 | $110,000 |
| 2022 | $0 | $110,000 | $0 | $110,000 | $110,000 |
| 2021 | $0 | $80,000 | $0 | $80,000 | $80,000 |
| 2020 | $0 | $80,000 | $0 | $80,000 | $80,000 |
| 2019 | $0 | $80,000 | $0 | $80,000 | $80,000 |
| 2018 | $0 | $80,000 | $0 | $80,000 | $80,000 |
| 2017 | $0 | $50,000 | $0 | $50,000 | $50,000 |
| 2016 | $0 | $50,000 | $0 | $50,000 | $50,000 |
| 2015 | $0 | $50,000 | $0 | $50,000 | $50,000 |
| 2014 | $0 | $50,000 | $0 | $50,000 | $50,000 |
| 2013 | $0 | $39,000 | $0 | $39,000 | $39,000 |
| 2012 | $0 | $39,000 | $0 | $39,000 | $39,000 |
| 2011 | $0 | $39,000 | $0 | $39,000 | $39,000 |
| 2010 | $0 | $39,000 | $0 | $39,000 | $39,000 |
| 2009 | $0 | $44,000 | $0 | $44,000 | $44,000 |
| 2008 | $0 | $85,800 | $0 | $85,800 | $85,800 |
| 2007 | $0 | $91,300 | $0 | $91,300 | $91,300 |
Deed and Sales History
| 1 | 09/01/1994 | WD | Warranty Deed | PETERSON, E R | BODNARCHUK, BOHDON W | | | $34,500.00 | 43797 | 94019769 |
| 2 | 10/01/1989 | QCD | Quit Claim Deed | ARMS, STEPHEN W | PETERSON, E R | | | $0.00 | 94835 | 89015686 |
| 3 | 10/01/1989 | WD | Warranty Deed | PETERSON, DONALD | ARMS, STEPHEN W | | | $16,500.00 | 94836 | 89015687 |
| 4 | 12/01/1986 | WD | Warranty Deed | HOME, SAVINGS & | PETERSON, DONALD | | | $9,900.00 | 63411 | 86015387 |
| 5 | 10/01/1984 | QCD | Quit Claim Deed | HOME, SAVINGS & | HOME, SAVINGS & | | | $0.00 | 43087 | 84004775 |
| 6 | 12/01/1983 | OTHER | Other - Misc. Documents | HOME, SAVINGS & | HOME, SAVINGS & | | | $0.00 | 60760 | 418954 |
| 7 | 06/01/1983 | TRUSTEED | Trustee's Deed | ONAMAC, PARTNERS | HOME, SAVINGS & | | | $0.00 | 31682 | 0 |
| 8 | 01/01/1900 | OTHER | Other - Misc. Documents | Unknown | ONAMAC, PARTNERS | | | $0.00 | 0 | 0 |
Payout Agreement
| No payout information available.. |