Property
Account |
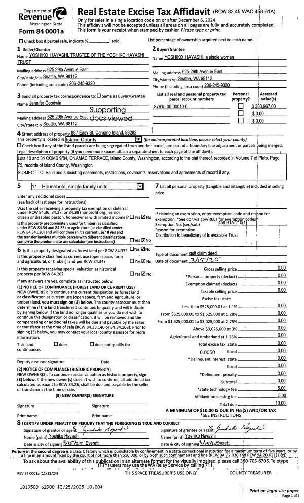
| Property ID: | 337451 | Abbreviated Legal Description: | ONAMAC TERR LOT 10 & LOT 34 COMB 9/84 |
| Geographic ID: | S7615-00-00010-0 | Agent Code: | |
| Type: | Real | | |
| Tax Area: | 510 - APPRAISER-Stan/Cam Schl Dist, improved & 1 acre or less | Land Use Code | 11 |
| Open Space: | N | DFL | N |
| Historic Property: | N | Remodel Property: | N |
| Multi-Family Redevelopment: | N | | |
| Township: | | Section: | |
| Range: | |
Location |
| Address: | 887 EASY ST CAMANO ISLAND, WA 98282 | Mapsco: | |
| Neighborhood: | Cycle 5 | Map ID: | 486 |
| Neighborhood CD: | 5 |
Owner |
| Name: | HAYASHI, YOSHIKO | Owner ID: | 192185 |
| Mailing Address: | 625 29TH AVE EAST SEATTLE, WA 98112 | % Ownership: | 100.0000000000% |
| | | Exemptions: | |
Taxes and Assessment Details
Values
| (+) Improvement Homesite Value: | + | $0 | |
| (+) Improvement Non-Homesite Value: | + | $119,968 | |
| (+) Land Homesite Value: | + | $0 | |
| (+) Land Non-Homesite Value: | + | $260,000 | |
| (+) Curr Use (HS): | + | $0 | $0 |
| (+) Curr Use (NHS): | + | $0 | $0 |
| | | -------------------------- | |
| (=) Market Value: | = | $379,968 | |
| (–) Productivity Loss: | – | $0 | |
| | | -------------------------- | |
| (=) Subtotal: | = | $379,968 | |
| (+) Senior Appraised Value: | + | $0 | |
| (+) Non-Senior Appraised Value: | + | $379,968 | |
| | | -------------------------- | |
| (=) Total Appraised Value: | = | $379,968 | |
| (–) Senior Exemption Loss: | – | $0 | |
| (–) Exemption Loss: | – | $0 | |
| | | -------------------------- | |
| (=) Taxable Value: | = | $379,968 | |
Taxing Jurisdiction
| Owner: | HAYASHI, YOSHIKO | | |
| % Ownership: | 100.0000000000% | | |
| Total Value: | $379,968 | | |
| Tax Area: | 510 - APPRAISER-Stan/Cam Schl Dist, improved & 1 acre or less |
| CF | Conservation Futures | 0.0313996660 | $379,968 | $379,968 | $11.93 | | |
| EMS1 | Fire & Rescue Dist #1 Camano GEN (EMS) | 0.4998471806 | $379,968 | $379,968 | $189.93 | | |
| FIRE1 | Fire & Rescue Dist #1 Camano GEN | 1.2496603404 | $379,968 | $379,968 | $474.83 | | |
| FIRE1BOND | Fire & Rescue Dist #1 Camano BOND | 0.1630371212 | $379,968 | $379,968 | $61.95 | | |
| CE | County Current Expense | 0.3674210519 | $379,968 | $379,968 | $139.61 | | |
| CR | County Roads | 0.4614296361 | $379,968 | $379,968 | $175.33 | | |
| LIB | Library Sno-Isle GEN | 0.3039084203 | $379,968 | $379,968 | $115.48 | | |
| SCH205_401 | School 205-401 Enrichment | 1.3697998934 | $379,968 | $379,968 | $520.48 | | |
| SCH205BOND | School 205-401 BOND | 0.9354199323 | $379,968 | $379,968 | $355.43 | | |
| ST | State School | 1.4761226122 | $379,968 | $379,968 | $560.88 | | |
| ST2 | State School Part 2 | 0.7953803475 | $379,968 | $379,968 | $302.22 | | |
| | Total Tax Rate: | 7.6534262019 | | | | | |
| | | | | Taxes w/Current Exemptions: | $2,908.07 | | |
| | | | | Taxes w/o Exemptions: | $2,908.07 | | |
Improvement / Building
| Improvement #1: | MANUFACTURED HOME | State Code: | Y | 1620.0 sqft | Value: | $119,968 |
| Bathrooms: | 0 | Bedrooms: | 0 | | Ceiling: | PLASTER PAINTED | Cooling: | EVAP NO DUCT | | Exterior Wall/Cover: | VINYL | Floor Covering: | CARPET 100% | | Floor Structure: | SLAB ON GRADE | Foundation: | SLAB | | Heating: | FHA ELECTRIC | Interior Finish: | PLASTER | | Plumbing Fixture Cnt: | 1 | Roof Slope: | FLAT | | Roof Structure/Cover: | CJ ALUMINIUM HEAVY |   |   |
|
| | Type | Description | Class CD | Sub Class CD | Year Built | Area |
| | BAS | BASE/MAIN FLOOR | 4 | 0 | 1981 | 1620.0 |
| | UTY | STORAGE/UTILITY | 4 | 0 | 1981 | 160.0 |
| | DGR | DETACHED GARAGE | 4 | 0 | 1981 | 840.0 |
| | OWP | OPEN WOOD PORCH W/STEPS | 4 | 0 | 1981 | 387.0 |
Sketch
Property Image
Land
| 1 | 16 | AC (00.51-01.00) | 0.0000 | 0.00 | 0.00 | 0.00 | 1.00 | $260,000 | $0 |
Roll Value History
| 2026 | N/A | N/A | N/A | N/A | N/A |
| 2025 | $119,968 | $260,000 | $0 | $379,968 | $379,968 |
| 2024 | $123,967 | $260,000 | $0 | $383,967 | $383,967 |
| 2023 | $111,273 | $260,000 | $0 | $371,273 | $371,273 |
| 2022 | $103,905 | $260,000 | $0 | $363,905 | $363,905 |
| 2021 | $101,193 | $180,000 | $0 | $281,193 | $281,193 |
| 2020 | $101,228 | $180,000 | $0 | $281,228 | $281,228 |
| 2019 | $82,078 | $250,000 | $0 | $332,078 | $332,078 |
| 2018 | $84,423 | $160,000 | $0 | $244,423 | $244,423 |
| 2017 | $85,595 | $150,000 | $0 | $235,595 | $235,595 |
| 2016 | $87,942 | $130,000 | $0 | $217,942 | $217,942 |
| 2015 | $83,252 | $92,800 | $0 | $176,052 | $176,052 |
| 2014 | $84,864 | $92,800 | $0 | $177,664 | $177,664 |
| 2013 | $86,476 | $92,800 | $0 | $179,276 | $179,276 |
| 2012 | $88,087 | $92,800 | $0 | $180,887 | $180,887 |
| 2011 | $89,699 | $116,000 | $0 | $205,699 | $205,699 |
| 2010 | $96,555 | $116,000 | $0 | $212,555 | $212,555 |
| 2009 | $99,718 | $125,000 | $0 | $224,718 | $224,718 |
| 2008 | $100,958 | $165,575 | $0 | $266,533 | $266,533 |
| 2007 | $104,026 | $165,575 | $0 | $269,601 | $269,601 |
Deed and Sales History
| 1 | 03/15/2025 | QCD | Quit Claim Deed | HAYASHI TRUSTEE, YOSHIKO | HAYASHI, YOSHIKO | | | $0.00 | 62908 | 4583595 |
| 2 | 10/23/2012 | TRUSTEED | Trustee's Deed | HAYASHI, YOSHIKO | HAYASHI TRUSTEE, YOSHIKO | | | $0.00 | 9470 | 4327286 |
| 3 | 03/04/2004 | WD | Warranty Deed | KIBBY, PAUL G | HAYASHI, YOSHIKO | | | $174,950.00 | 40894 | 4093683 |
| 4 | 09/01/1984 | OTHER | Other - Misc. Documents | KIBBY, PAUL G | KIBBY, PAUL G | | | $0.00 | 60667 | 426136 |
| 5 | 06/01/1982 | OTHER | Other - Misc. Documents | KIBBY, PAUL G | KIBBY, PAUL G | | | $28,900.00 | 11111111 | 0 |
| 6 | 01/01/1900 | OTHER | Other - Misc. Documents | Unknown | KIBBY, PAUL G | | | $0.00 | 0 | 0 |
Payout Agreement
| No payout information available.. |