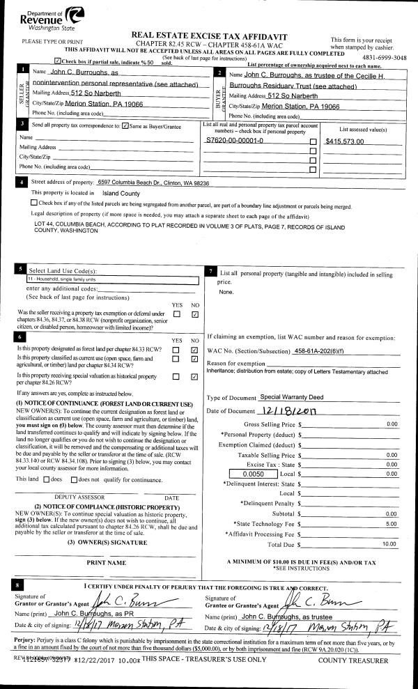
Property
Account |
| Property ID: | 337807 | Abbreviated Legal Description: | ORRS LOT 1 INCL ADJ TIDES |
| Geographic ID: | S7620-00-00001-0 | Agent Code: | |
| Type: | Real | | |
| Tax Area: | 720 - APPRAISER-S Whid Schl Dist, Special District, improved & less than 1 acre | Land Use Code | 11 |
| Open Space: | N | DFL | N |
| Historic Property: | N | Remodel Property: | N |
| Multi-Family Redevelopment: | N | | |
| Township: | | Section: | |
| Range: | |
Location |
| Address: | 6597 COLUMBIA BEACH DR CLINTON, WA 98236 | Mapsco: | |
| Neighborhood: | Cycle 4 | Map ID: | 1002 |
| Neighborhood CD: | 4 |
Owner |
| Name: | BURROUGHS, BRIAN F | Owner ID: | 309525 |
| Mailing Address: | 3821 43RD AVE NE SEATTLE, WA 98105 | % Ownership: | 100.0000000000% |
| | | Exemptions: | |
Taxes and Assessment Details
Values
| (+) Improvement Homesite Value: | + | $0 | |
| (+) Improvement Non-Homesite Value: | + | $48,958 | |
| (+) Land Homesite Value: | + | $0 | |
| (+) Land Non-Homesite Value: | + | $675,510 | |
| (+) Curr Use (HS): | + | $0 | $0 |
| (+) Curr Use (NHS): | + | $0 | $0 |
| | | -------------------------- | |
| (=) Market Value: | = | $724,468 | |
| (–) Productivity Loss: | – | $0 | |
| | | -------------------------- | |
| (=) Subtotal: | = | $724,468 | |
| (+) Senior Appraised Value: | + | $0 | |
| (+) Non-Senior Appraised Value: | + | $724,468 | |
| | | -------------------------- | |
| (=) Total Appraised Value: | = | $724,468 | |
| (–) Senior Exemption Loss: | – | $0 | |
| (–) Exemption Loss: | – | $0 | |
| | | -------------------------- | |
| (=) Taxable Value: | = | $724,468 | |
Taxing Jurisdiction
| Owner: | BURROUGHS, BRIAN F | | |
| % Ownership: | 100.0000000000% | | |
| Total Value: | $724,468 | | |
| Tax Area: | 720 - APPRAISER-S Whid Schl Dist, Special District, improved & less than 1 acre |
| CF | Conservation Futures | 0.0313996660 | $724,468 | $724,468 | $22.75 | | |
| FIRE3 | Fire & Rescue Dist #3 S Whidbey GEN | 1.2130821753 | $724,468 | $724,468 | $878.84 | | |
| HOBOND | Hospital BOND | 0.1893405597 | $724,468 | $724,468 | $137.17 | | |
| HOGEN | Hospital GEN | 0.3848777722 | $724,468 | $724,468 | $278.83 | | |
| CE | County Current Expense | 0.3674210519 | $724,468 | $724,468 | $266.18 | | |
| CR | County Roads | 0.4614296361 | $724,468 | $724,468 | $334.29 | | |
| ISLANDEMS | Hospital GEN (EMS) | 0.4952018576 | $724,468 | $724,468 | $358.76 | | |
| LIB | Library Sno-Isle GEN | 0.3039084203 | $724,468 | $724,468 | $220.17 | | |
| PORTWHID | Port of S Whidbey GEN | 0.1086004714 | $724,468 | $724,468 | $78.68 | | |
| SCH206BOND | School 206 BOND | 0.5960237832 | $724,468 | $724,468 | $431.80 | | |
| SCH206CAP | School 206 CP | 0.3066144020 | $724,468 | $724,468 | $222.13 | | |
| SCH206MO | School 206 Enrichment | 0.4808755445 | $724,468 | $724,468 | $348.38 | | |
| ST | State School | 1.4761226122 | $724,468 | $724,468 | $1,069.40 | | |
| ST2 | State School Part 2 | 0.7953803475 | $724,468 | $724,468 | $576.23 | | |
| SWHIDPRBD | P & R S Whidbey BOND | 0.0144185398 | $724,468 | $724,468 | $10.45 | | |
| SWHIDPRBD3 | P & R S Whidbey BOND3 | 0.1483535547 | $724,468 | $724,468 | $107.48 | | |
| SWHIDPRMT | P & R S Whidbey GEN | 0.4600000000 | $724,468 | $724,468 | $333.26 | | |
| | Total Tax Rate: | 7.8330503944 | | | | | |
| | | | | Taxes w/Current Exemptions: | $5,674.80 | | |
| | | | | Taxes w/o Exemptions: | $5,674.80 | | |
Improvement / Building
| Improvement #1: | RESIDENTIAL | State Code: | Y | 327.0 sqft | Value: | $48,958 |
| Bathrooms: | 1 | Bedrooms: | 1 | | Ceiling: | DRYWALL PAINTED | Exterior Wall/Cover: | WOOD SIDING | | Floor Covering: | VINYL 100% | Floor Structure: | WOOD W/SUBFLOOR | | Foundation: | PEIRS | Heating: | BASEBOARD ELECTRIC | | Interior Finish: | DRYWALL PAINT | Plumbing Fixture Cnt: | 5 | | Roof Slope: | 5" IN 12" | Roof Structure/Cover: | CJ ASPHALT |
|
| | Type | Description | Class CD | Sub Class CD | Year Built | Area |
| | BAS | BASE/MAIN FLOOR | 3 | 0 | 1952 | 327.0 |
| | OWP | OPEN WOOD PORCH W/STEPS | 3 | 0 | 1952 | 18.0 |
Sketch
Property Image
Land
| 1 | LB | LOW BANK | 0.1422 | 6196.00 | 51.00 | 0.00 | 1.00 | $675,000 | $0 |
| 2 | 55 | TIDES | 0.0000 | 0.00 | 51.00 | 0.00 | 1.00 | $510 | $0 |
Roll Value History
| 2026 | N/A | N/A | N/A | N/A | N/A |
| 2025 | $48,958 | $675,510 | $0 | $724,468 | $724,468 |
| 2024 | $50,771 | $675,510 | $0 | $726,281 | $726,281 |
| 2023 | $51,601 | $675,510 | $0 | $727,111 | $727,111 |
| 2022 | $47,476 | $675,510 | $0 | $722,986 | $722,986 |
| 2021 | $41,937 | $675,510 | $0 | $717,447 | $717,447 |
| 2020 | $21,342 | $600,510 | $0 | $621,852 | $621,852 |
| 2019 | $15,458 | $550,510 | $0 | $565,968 | $565,968 |
| 2018 | $15,542 | $450,510 | $0 | $466,052 | $466,052 |
| 2017 | $15,709 | $400,510 | $0 | $416,219 | $416,219 |
| 2016 | $15,063 | $400,510 | $0 | $415,573 | $415,573 |
| 2015 | $15,377 | $400,510 | $0 | $415,887 | $415,887 |
| 2014 | $15,691 | $400,510 | $0 | $416,201 | $416,201 |
| 2013 | $16,005 | $400,510 | $0 | $416,515 | $416,515 |
| 2012 | $16,319 | $448,912 | $0 | $465,231 | $465,231 |
| 2011 | $16,632 | $528,042 | $0 | $544,674 | $544,674 |
| 2010 | $17,354 | $528,042 | $0 | $545,396 | $545,396 |
| 2009 | $17,890 | $657,897 | $0 | $675,787 | $675,787 |
| 2008 | $15,402 | $657,897 | $0 | $673,299 | $673,299 |
| 2007 | $15,699 | $657,540 | $0 | $673,239 | $673,239 |
Deed and Sales History
| 1 | 08/01/2023 | WD | Warranty Deed | BURROUGHS TTEE, JOHN C | BURROUGHS, BRIAN F | | | $700,000.00 | 57506 | 4563021 |
| 2 | 05/22/2018 | SPWARDEED | Special Warranty Deed | BURROUGHS, HORACE K | BURROUGHS TTEE, JOHN C | | | $0.00 | 34604 | 4446516 |
| 3 | 08/01/1989 | QCD | Quit Claim Deed | BURROUGHS, H K | BURROUGHS, HORACE K | | | $0.00 | 93909 | 89013033 |
| 4 | 11/01/1987 | QCD | Quit Claim Deed | BURROUGHS, HORACE F | BURROUGHS, H K | | | $0.00 | 73536 | 87015424 |
| 5 | 09/01/1979 | CD | DNU - Correction Deed | BURROUGHS, HORACE K | BURROUGHS, HORACE F | | | $0.00 | 94759 | 359537 |
| 6 | 09/01/1979 | CD | DNU - Correction Deed | BURROUGHS, HORACE F | BURROUGHS, HORACE K | | | $0.00 | 94760 | 359538 |
| 7 | 01/01/1900 | OTHER | Other - Misc. Documents | Unknown | BURROUGHS, HORACE F | | | $0.00 | 0 | 0 |
Payout Agreement
| No payout information available.. |