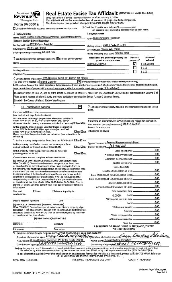
Property
Account |
| Property ID: | 337987 | Abbreviated Legal Description: | ORRS N10' LOT 21, ALL LOTS 22, 23 & 24, PT LOT 25, RES & VAC RD LY BETW WLN SD TR & NEW CO RD EX ST HWY INCL ADJ TIDES EX TIDES ADJ TO N26.29' OF LOT 24 ALL AS DESC 125D361 & 128D15 EX PT TO ST HWY EX PT TO ST OF WASH H L ROBERTSON - 21% INT H L ROBIN |
| Geographic ID: | S7620-00-00022-0 | Agent Code: | |
| Type: | Real | | |
| Tax Area: | 720 - APPRAISER-S Whid Schl Dist, Special District, improved & less than 1 acre | Land Use Code | 46 |
| Open Space: | N | DFL | N |
| Historic Property: | N | Remodel Property: | N |
| Multi-Family Redevelopment: | N | | |
| Township: | | Section: | |
| Range: | |
Location |
| Address: | 6515 COLUMBIA BEACH DR CLINTON, WA 98236 | Mapsco: | |
| Neighborhood: | 44cCL-highway 525 | Map ID: | 1002 |
| Neighborhood CD: | 44cCLhw525 |
Owner |
| Name: | ROBERTSON, SUSAN CHARLENE | Owner ID: | 297588 |
| Mailing Address: | 4507 E CEDAR PT RD CLINTON, WA 98236 | % Ownership: | 100.0000000000% |
| | | Exemptions: | |
Taxes and Assessment Details
Values
| (+) Improvement Homesite Value: | + | $0 | |
| (+) Improvement Non-Homesite Value: | + | $162,523 | |
| (+) Land Homesite Value: | + | $0 | |
| (+) Land Non-Homesite Value: | + | $801,500 | |
| (+) Curr Use (HS): | + | $0 | $0 |
| (+) Curr Use (NHS): | + | $0 | $0 |
| | | -------------------------- | |
| (=) Market Value: | = | $964,023 | |
| (–) Productivity Loss: | – | $0 | |
| | | -------------------------- | |
| (=) Subtotal: | = | $964,023 | |
| (+) Senior Appraised Value: | + | $0 | |
| (+) Non-Senior Appraised Value: | + | $964,023 | |
| | | -------------------------- | |
| (=) Total Appraised Value: | = | $964,023 | |
| (–) Senior Exemption Loss: | – | $0 | |
| (–) Exemption Loss: | – | $0 | |
| | | -------------------------- | |
| (=) Taxable Value: | = | $964,023 | |
Taxing Jurisdiction
| Owner: | ROBERTSON, SUSAN CHARLENE | | |
| % Ownership: | 100.0000000000% | | |
| Total Value: | $964,023 | | |
| Tax Area: | 720 - APPRAISER-S Whid Schl Dist, Special District, improved & less than 1 acre |
| CF | Conservation Futures | 0.0313996660 | $964,023 | $964,023 | $30.27 | | |
| FIRE3 | Fire & Rescue Dist #3 S Whidbey GEN | 1.2130821753 | $964,023 | $964,023 | $1,169.44 | | |
| HOBOND | Hospital BOND | 0.1893405597 | $964,023 | $964,023 | $182.53 | | |
| HOGEN | Hospital GEN | 0.3848777722 | $964,023 | $964,023 | $371.03 | | |
| CE | County Current Expense | 0.3674210519 | $964,023 | $964,023 | $354.20 | | |
| CR | County Roads | 0.4614296361 | $964,023 | $964,023 | $444.83 | | |
| ISLANDEMS | Hospital GEN (EMS) | 0.4952018576 | $964,023 | $964,023 | $477.39 | | |
| LIB | Library Sno-Isle GEN | 0.3039084203 | $964,023 | $964,023 | $292.97 | | |
| PORTWHID | Port of S Whidbey GEN | 0.1086004714 | $964,023 | $964,023 | $104.69 | | |
| SCH206BOND | School 206 BOND | 0.5960237832 | $964,023 | $964,023 | $574.58 | | |
| SCH206CAP | School 206 CP | 0.3066144020 | $964,023 | $964,023 | $295.58 | | |
| SCH206MO | School 206 Enrichment | 0.4808755445 | $964,023 | $964,023 | $463.58 | | |
| ST | State School | 1.4761226122 | $964,023 | $964,023 | $1,423.02 | | |
| ST2 | State School Part 2 | 0.7953803475 | $964,023 | $964,023 | $766.76 | | |
| SWHIDPRBD | P & R S Whidbey BOND | 0.0144185398 | $964,023 | $964,023 | $13.90 | | |
| SWHIDPRBD3 | P & R S Whidbey BOND3 | 0.1483535547 | $964,023 | $964,023 | $143.02 | | |
| SWHIDPRMT | P & R S Whidbey GEN | 0.4600000000 | $964,023 | $964,023 | $443.45 | | |
| | Total Tax Rate: | 7.8330503944 | | | | | |
| | | | | Taxes w/Current Exemptions: | $7,551.24 | | |
| | | | | Taxes w/o Exemptions: | $7,551.24 | | |
Improvement / Building
| Improvement #1: | RESIDENTIAL/COMMERCIAL | State Code: | Y | 616.0 sqft | Value: | $162,523 |
| Bathrooms: | 1 | Bedrooms: | 1 | | Ceiling: | DRY WALL SPRAYED | Cooling: | HEAT PUMP/CONV/V | | Exterior Wall/Cover: | WOOD SIDING | Floor Covering: | CARPET/VINYL 80-20 | | Floor Structure: | WOOD W/SUBFLOOR | Foundation: | CONCRETE | | Interior Finish: | DRYWALL PAINT | Plumbing Fixture Cnt: | 6 | | Roof Slope: | 4" IN 12" | Roof Structure/Cover: | ALUM LIGHT |
|
| | Type | Description | Class CD | Sub Class CD | Year Built | Area |
| | BAS | BASE/MAIN FLOOR | 3 | 0 | 1983 | 616.0 |
| | AGR | ATTACHED GARAGE | 3 | 0 | 1983 | 588.0 |
| | BIG | BUILT IN GARAGE | 3 | 0 | 1983 | 588.0 |
| | OWP | OPEN WOOD PORCH W/STEPS | 3 | 0 | 1983 | 164.0 |
| | oPV1 | PV/ASPH 2" | 3 | 0 | 1983 | 12632.0 |
Sketch
Property Image
Land
| 1 | LB | LOW BANK | 0.3687 | 16060.57 | 61.00 | 0.00 | 1.00 | $800,000 | $0 |
| 2 | 55 | TIDES | 0.0000 | 0.00 | 150.00 | 0.00 | 1.00 | $1,500 | $0 |
Roll Value History
| 2026 | N/A | N/A | N/A | N/A | N/A |
| 2025 | $162,523 | $801,500 | $0 | $964,023 | $964,023 |
| 2024 | $164,747 | $801,500 | $0 | $966,247 | $966,247 |
| 2023 | $166,972 | $651,500 | $0 | $818,472 | $818,472 |
| 2022 | $147,304 | $651,500 | $0 | $798,804 | $798,804 |
| 2021 | $130,870 | $651,500 | $0 | $782,370 | $782,370 |
| 2020 | $96,704 | $601,500 | $0 | $698,204 | $698,204 |
| 2019 | $72,517 | $601,500 | $0 | $674,017 | $674,017 |
| 2018 | $72,741 | $550,500 | $0 | $623,241 | $623,241 |
| 2017 | $73,193 | $765,294 | $0 | $838,487 | $838,487 |
| 2016 | $71,727 | $765,294 | $0 | $837,021 | $837,021 |
| 2015 | $72,629 | $765,294 | $0 | $837,923 | $837,923 |
| 2014 | $74,517 | $765,294 | $0 | $839,811 | $839,811 |
| 2013 | $74,517 | $765,294 | $0 | $839,811 | $839,811 |
| 2012 | $74,517 | $765,294 | $0 | $839,811 | $839,811 |
| 2011 | $74,517 | $765,294 | $0 | $839,811 | $839,811 |
| 2010 | $76,808 | $765,294 | $0 | $842,102 | $842,102 |
| 2009 | $79,800 | $817,907 | $0 | $897,707 | $897,707 |
| 2008 | $82,083 | $817,907 | $0 | $899,990 | $899,990 |
| 2007 | $82,115 | $816,857 | $0 | $898,972 | $898,972 |
Deed and Sales History
| 1 | 12/30/2020 | PRD | Personal Representatives Deed | ROBERTSON, BRADLEY E | ROBERTSON, SUSAN CHARLENE | | | $0.00 | 46403 | 4506835 |
| 2 | 06/07/2017 | SPWARDEED | Special Warranty Deed | ROBERTSON, HELEN L | ROBERTSON, BRADLEY | | | $0.00 | 29694 | 4424079 |
| 3 | 04/01/1997 | OTHER | Other - Misc. Documents | ROBERTSON, HELEN L | ROBERTSON, HELEN L | | | $0.00 | 67301 | 0 |
| 4 | 04/01/1996 | PRD | Personal Representatives Deed | ROBERTSON, BERNARD E | ROBERTSON, HELEN L | | | $0.00 | 70371 | 97001722 |
| 5 | 01/01/1990 | WD | Warranty Deed | ROBERTSON, BERNARD E | ROBERTSON, BERNARD E | | | $28,000.00 | 958 | 90003114 |
| 6 | 07/01/1963 | EXECUTORD | Executor Deed | COLVIN, STELLA | ROBERTSON, BERNARD E | | | $0.00 | 14543 | 0 |
| 7 | 01/01/1900 | OTHER | Other - Misc. Documents | Unknown | COLVIN, STELLA | | | $0.00 | 0 | 0 |
Payout Agreement
| No payout information available.. |