Property
Account |
| Property ID: | 338110 | Abbreviated Legal Description: | ORRS LOT 27 S OF LN: BG NW CR L27 S37*E73.26' ALG SWLY LN L27 TPB SD LN N81*E TO ELN SD LOT 27 TGW ADJ VAC FERRY DOCK RD AF#4286996 |
| Geographic ID: | S7620-00-27002-0 | Agent Code: | |
| Type: | Real | | |
| Tax Area: | 720 - APPRAISER-S Whid Schl Dist, Special District, improved & less than 1 acre | Land Use Code | 11 |
| Open Space: | N | DFL | N |
| Historic Property: | N | Remodel Property: | N |
| Multi-Family Redevelopment: | N | | |
| Township: | | Section: | |
| Range: | |
Location |
| Address: | 4855 BERG RD CLINTON, WA 98236 | Mapsco: | |
| Neighborhood: | Cycle 4 | Map ID: | 1002 |
| Neighborhood CD: | 4 |
Owner |
| Name: | STOUDEMIRE, EVAJAVONE | Owner ID: | 306253 |
| Mailing Address: | PO BOX 236 COUPEVILLE, WA 98239 | % Ownership: | 100.0000000000% |
| | | Exemptions: | |
Taxes and Assessment Details
Values
| (+) Improvement Homesite Value: | + | $0 | |
| (+) Improvement Non-Homesite Value: | + | $374,438 | |
| (+) Land Homesite Value: | + | $0 | |
| (+) Land Non-Homesite Value: | + | $400,000 | |
| (+) Curr Use (HS): | + | $0 | $0 |
| (+) Curr Use (NHS): | + | $0 | $0 |
| | | -------------------------- | |
| (=) Market Value: | = | $774,438 | |
| (–) Productivity Loss: | – | $0 | |
| | | -------------------------- | |
| (=) Subtotal: | = | $774,438 | |
| (+) Senior Appraised Value: | + | $0 | |
| (+) Non-Senior Appraised Value: | + | $774,438 | |
| | | -------------------------- | |
| (=) Total Appraised Value: | = | $774,438 | |
| (–) Senior Exemption Loss: | – | $0 | |
| (–) Exemption Loss: | – | $0 | |
| | | -------------------------- | |
| (=) Taxable Value: | = | $774,438 | |
Taxing Jurisdiction
| Owner: | STOUDEMIRE, EVAJAVONE | | |
| % Ownership: | 100.0000000000% | | |
| Total Value: | $774,438 | | |
| Tax Area: | 720 - APPRAISER-S Whid Schl Dist, Special District, improved & less than 1 acre |
| CF | Conservation Futures | 0.0313996660 | $774,438 | $774,438 | $24.32 | | |
| FIRE3 | Fire & Rescue Dist #3 S Whidbey GEN | 1.2130821753 | $774,438 | $774,438 | $939.46 | | |
| HOBOND | Hospital BOND | 0.1893405597 | $774,438 | $774,438 | $146.63 | | |
| HOGEN | Hospital GEN | 0.3848777722 | $774,438 | $774,438 | $298.06 | | |
| CE | County Current Expense | 0.3674210519 | $774,438 | $774,438 | $284.54 | | |
| CR | County Roads | 0.4614296361 | $774,438 | $774,438 | $357.35 | | |
| ISLANDEMS | Hospital GEN (EMS) | 0.4952018576 | $774,438 | $774,438 | $383.50 | | |
| LIB | Library Sno-Isle GEN | 0.3039084203 | $774,438 | $774,438 | $235.36 | | |
| PORTWHID | Port of S Whidbey GEN | 0.1086004714 | $774,438 | $774,438 | $84.10 | | |
| SCH206BOND | School 206 BOND | 0.5960237832 | $774,438 | $774,438 | $461.58 | | |
| SCH206CAP | School 206 CP | 0.3066144020 | $774,438 | $774,438 | $237.45 | | |
| SCH206MO | School 206 Enrichment | 0.4808755445 | $774,438 | $774,438 | $372.41 | | |
| ST | State School | 1.4761226122 | $774,438 | $774,438 | $1,143.17 | | |
| ST2 | State School Part 2 | 0.7953803475 | $774,438 | $774,438 | $615.97 | | |
| SWHIDPRBD | P & R S Whidbey BOND | 0.0144185398 | $774,438 | $774,438 | $11.17 | | |
| SWHIDPRBD3 | P & R S Whidbey BOND3 | 0.1483535547 | $774,438 | $774,438 | $114.89 | | |
| SWHIDPRMT | P & R S Whidbey GEN | 0.4600000000 | $774,438 | $774,438 | $356.24 | | |
| | Total Tax Rate: | 7.8330503944 | | | | | |
| | | | | Taxes w/Current Exemptions: | $6,066.20 | | |
| | | | | Taxes w/o Exemptions: | $6,066.20 | | |
Improvement / Building
| Improvement #1: | RESIDENTIAL | State Code: | Y | 1952.0 sqft | Value: | $374,438 |
| Bathrooms: | 2.5 | Bedrooms: | 3 | | Ceiling: | DRYWALL PAINTED | Exterior Wall/Cover: | WOOD SIDING | | Floor Covering: | CERAMIC TILE/CPT 40-60 | Floor Structure: | WOOD W/SUBFLOOR | | Foundation: | CONCRETE | Heating: | FHA GAS | | Interior Finish: | DRYWALL PAINT | Plumbing Fixture Cnt: | 13 | | Roof Slope: | 4" IN 12" | Roof Structure/Cover: | CJ ASPHALT |
|
| | Type | Description | Class CD | Sub Class CD | Year Built | Area |
| | BAS | BASE/MAIN FLOOR | 3 | 0 | 1934 | 1722.0 |
| | OWP | OPEN WOOD PORCH W/STEPS | 3 | 0 | 1934 | 236.0 |
| | OWP | OPEN WOOD PORCH W/STEPS | 3 | 0 | 1934 | 563.0 |
| | LOF | LOFT | 3 | 0 | 1934 | 230.0 |
| | DGR | DETACHED GARAGE | 3 | 0 | 1934 | 840.0 |
Sketch
Property Image
Land
| 1 | 14 | SQ (08001-12000) | 0.0000 | 0.00 | 0.00 | 0.00 | 1.00 | $400,000 | $0 |
Roll Value History
| 2026 | N/A | N/A | N/A | N/A | N/A |
| 2025 | $374,438 | $400,000 | $0 | $774,438 | $774,438 |
| 2024 | $379,046 | $330,000 | $0 | $709,046 | $709,046 |
| 2023 | $383,654 | $330,000 | $0 | $713,654 | $713,654 |
| 2022 | $351,574 | $300,000 | $0 | $651,574 | $651,574 |
| 2021 | $309,360 | $250,000 | $0 | $559,360 | $559,360 |
| 2020 | $301,799 | $180,000 | $0 | $481,799 | $481,799 |
| 2019 | $226,756 | $240,000 | $0 | $466,756 | $466,756 |
| 2018 | $227,406 | $200,000 | $0 | $427,406 | $427,406 |
| 2017 | $209,965 | $110,000 | $0 | $319,965 | $319,965 |
| 2016 | $212,524 | $100,000 | $0 | $312,524 | $312,524 |
| 2015 | $215,086 | $100,000 | $0 | $315,086 | $315,086 |
| 2014 | $202,082 | $100,000 | $0 | $302,082 | $302,082 |
| 2013 | $204,475 | $100,000 | $0 | $304,475 | $304,475 |
| 2012 | $206,869 | $106,250 | $0 | $313,119 | $313,119 |
| 2011 | $209,263 | $125,000 | $0 | $334,263 | $334,263 |
| 2010 | $219,645 | $125,000 | $0 | $344,645 | $344,645 |
| 2009 | $228,709 | $150,000 | $0 | $378,709 | $378,709 |
| 2008 | $209,996 | $200,000 | $0 | $409,996 | $409,996 |
| 2007 | $212,900 | $200,000 | $0 | $412,900 | $412,900 |
Deed and Sales History
| 1 | 09/21/2022 | WD | Warranty Deed | PENNINGTON, RYAN | STOUDEMIRE, EVAJAVONE | | | $745,000.00 | 54763 | 4552143 |
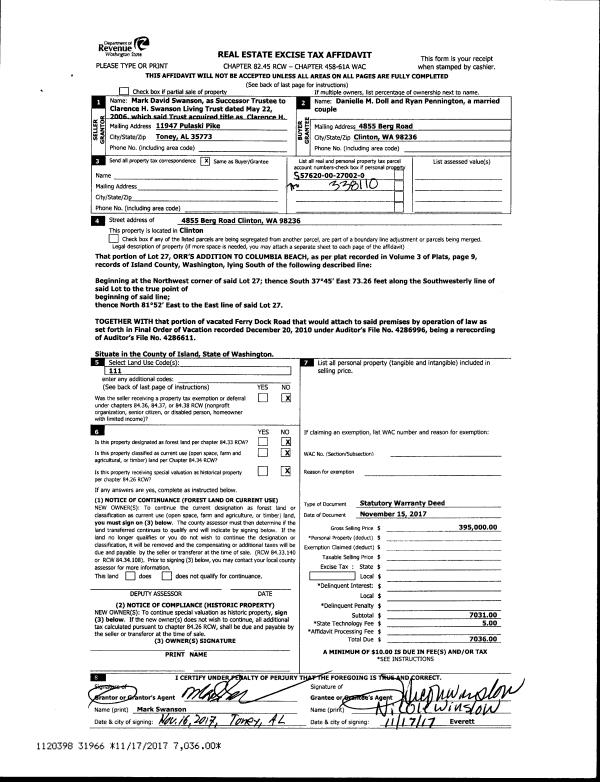
| 2 | 11/15/2017 | WD | Warranty Deed | SWANSON TTEE, CLARENCE H | PENNINGTON, RYAN | | | $395,000.00 | 31966 | 4434372 |
| 3 | 05/25/2006 | 5 | DNU - Marriage License/Name Change | SWANSON, CLARENCE H | SWANSON TTEE, CLARENCE H | | | $0.00 | 62284 | 4171455 |
| 4 | 02/01/1997 | WD | Warranty Deed | MARTIN, G F | SWANSON, CLARENCE H | | | $180,000.00 | 70555 | 97002581 |
| 5 | 12/01/1979 | EXECUTORD | Executor Deed | FARROW, MICHAEL R | MARTIN, G F | | | $80,000.00 | 96017 | 363493 |
| 6 | 01/01/1900 | OTHER | Other - Misc. Documents | Unknown | FARROW, MICHAEL R | | | $0.00 | 0 | 0 |
Payout Agreement
| No payout information available.. |