Property
Account |
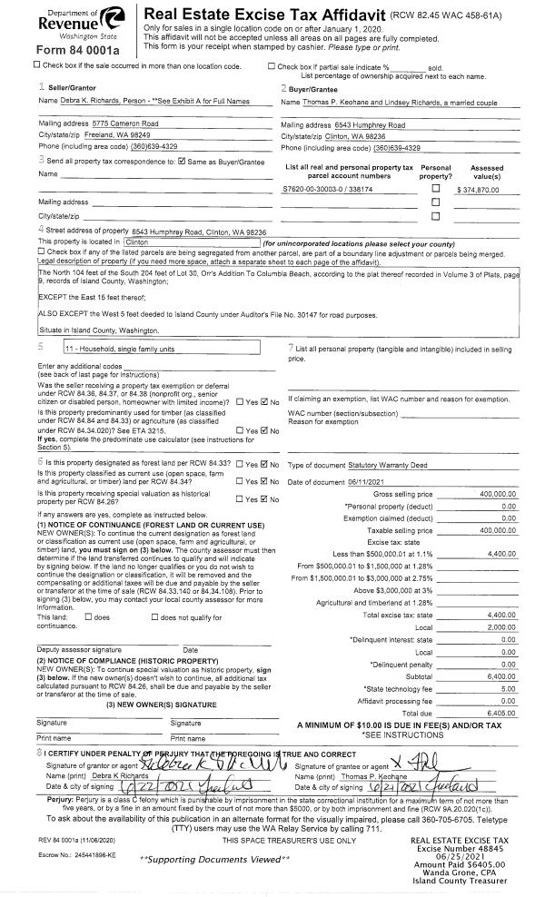
| Property ID: | 338174 | Abbreviated Legal Description: | ORRS N104' OF S204' OF LOT 30 EX E15' & EX W5' FOR RD 35D256 |
| Geographic ID: | S7620-00-30003-0 | Agent Code: | |
| Type: | Real | | |
| Tax Area: | 720 - APPRAISER-S Whid Schl Dist, Special District, improved & less than 1 acre | Land Use Code | 11 |
| Open Space: | N | DFL | N |
| Historic Property: | N | Remodel Property: | N |
| Multi-Family Redevelopment: | N | | |
| Township: | | Section: | |
| Range: | |
Location |
| Address: | 6543 HUMPHREY RD CLINTON, WA 98236 | Mapsco: | |
| Neighborhood: | Cycle 4 | Map ID: | 1002 |
| Neighborhood CD: | 4 |
Owner |
| Name: | KEOHANE, THOMAS | Owner ID: | 299935 |
| Mailing Address: | LINDSEY RICHARDS 6543 HUMPHREY RD CLINTON, WA 98236 | % Ownership: | 100.0000000000% |
| | | Exemptions: | |
Taxes and Assessment Details
Values
| (+) Improvement Homesite Value: | + | $0 | |
| (+) Improvement Non-Homesite Value: | + | $243,234 | |
| (+) Land Homesite Value: | + | $0 | |
| (+) Land Non-Homesite Value: | + | $340,000 | |
| (+) Curr Use (HS): | + | $0 | $0 |
| (+) Curr Use (NHS): | + | $0 | $0 |
| | | -------------------------- | |
| (=) Market Value: | = | $583,234 | |
| (–) Productivity Loss: | – | $0 | |
| | | -------------------------- | |
| (=) Subtotal: | = | $583,234 | |
| (+) Senior Appraised Value: | + | $0 | |
| (+) Non-Senior Appraised Value: | + | $583,234 | |
| | | -------------------------- | |
| (=) Total Appraised Value: | = | $583,234 | |
| (–) Senior Exemption Loss: | – | $0 | |
| (–) Exemption Loss: | – | $0 | |
| | | -------------------------- | |
| (=) Taxable Value: | = | $583,234 | |
Taxing Jurisdiction
| Owner: | KEOHANE, THOMAS | | |
| % Ownership: | 100.0000000000% | | |
| Total Value: | $583,234 | | |
| Tax Area: | 720 - APPRAISER-S Whid Schl Dist, Special District, improved & less than 1 acre |
| CF | Conservation Futures | 0.0313996660 | $583,234 | $583,234 | $18.31 | | |
| FIRE3 | Fire & Rescue Dist #3 S Whidbey GEN | 1.2130821753 | $583,234 | $583,234 | $707.51 | | |
| HOBOND | Hospital BOND | 0.1893405597 | $583,234 | $583,234 | $110.43 | | |
| HOGEN | Hospital GEN | 0.3848777722 | $583,234 | $583,234 | $224.47 | | |
| CE | County Current Expense | 0.3674210519 | $583,234 | $583,234 | $214.29 | | |
| CR | County Roads | 0.4614296361 | $583,234 | $583,234 | $269.12 | | |
| ISLANDEMS | Hospital GEN (EMS) | 0.4952018576 | $583,234 | $583,234 | $288.82 | | |
| LIB | Library Sno-Isle GEN | 0.3039084203 | $583,234 | $583,234 | $177.25 | | |
| PORTWHID | Port of S Whidbey GEN | 0.1086004714 | $583,234 | $583,234 | $63.34 | | |
| SCH206BOND | School 206 BOND | 0.5960237832 | $583,234 | $583,234 | $347.62 | | |
| SCH206CAP | School 206 CP | 0.3066144020 | $583,234 | $583,234 | $178.83 | | |
| SCH206MO | School 206 Enrichment | 0.4808755445 | $583,234 | $583,234 | $280.46 | | |
| ST | State School | 1.4761226122 | $583,234 | $583,234 | $860.92 | | |
| ST2 | State School Part 2 | 0.7953803475 | $583,234 | $583,234 | $463.89 | | |
| SWHIDPRBD | P & R S Whidbey BOND | 0.0144185398 | $583,234 | $583,234 | $8.41 | | |
| SWHIDPRBD3 | P & R S Whidbey BOND3 | 0.1483535547 | $583,234 | $583,234 | $86.52 | | |
| SWHIDPRMT | P & R S Whidbey GEN | 0.4600000000 | $583,234 | $583,234 | $268.29 | | |
| | Total Tax Rate: | 7.8330503944 | | | | | |
| | | | | Taxes w/Current Exemptions: | $4,568.48 | | |
| | | | | Taxes w/o Exemptions: | $4,568.48 | | |
Improvement / Building
| Improvement #1: | RESIDENTIAL | State Code: | Y | 1178.0 sqft | Value: | $243,234 |
| Bathrooms: | 2 | Bedrooms: | 3 | | Ceiling: | DRYWALL PAINTED | Cooling: | HEAT PUMP/CONV/V | | Exterior Wall/Cover: | WOOD SIDING | Floor Covering: | HARDWOOD/CARP 20-80 | | Floor Structure: | WOOD W/SUBFLOOR | Foundation: | CONCRETE | | Interior Finish: | DRYWALL PAINT | Plumbing Fixture Cnt: | 9 | | Roof Slope: | 4" IN 12" | Roof Structure/Cover: | CJ ASPHALT |
|
| | Type | Description | Class CD | Sub Class CD | Year Built | Area |
| | BAS | BASE/MAIN FLOOR | 3 | 0 | 1954 | 1178.0 |
| | OP1 | OPEN PORCH SLAB | 3 | 0 | 1954 | 112.0 |
| | OP1 | OPEN PORCH SLAB | 3 | 0 | 1954 | 330.0 |
| | UTY | STORAGE/UTILITY | 3 | 0 | 1954 | 462.0 |
| | UTY | STORAGE/UTILITY | 3 | 0 | 1954 | 598.0 |
| | OCP | OPEN CARPORT | 3 | 0 | 1954 | 520.0 |
| | CPD | OPEN CARPORT DIRT FLOOR | 3 | 0 | 1954 | 390.0 |
Sketch
Property Image
Land
| 1 | 15 | SQ (12001-21780) | 0.0000 | 0.00 | 0.00 | 0.00 | 1.00 | $340,000 | $0 |
Roll Value History
| 2026 | N/A | N/A | N/A | N/A | N/A |
| 2025 | $243,234 | $340,000 | $0 | $583,234 | $583,234 |
| 2024 | $246,697 | $300,000 | $0 | $546,697 | $546,697 |
| 2023 | $250,159 | $300,000 | $0 | $550,159 | $550,159 |
| 2022 | $229,657 | $280,000 | $0 | $509,657 | $509,657 |
| 2021 | $200,072 | $230,000 | $0 | $430,072 | $430,072 |
| 2020 | $194,870 | $180,000 | $0 | $374,870 | $374,870 |
| 2019 | $138,481 | $240,000 | $0 | $378,481 | $378,481 |
| 2018 | $138,935 | $200,000 | $0 | $338,935 | $338,935 |
| 2017 | $139,842 | $200,000 | $0 | $339,842 | $339,842 |
| 2016 | $141,659 | $150,000 | $0 | $291,659 | $291,659 |
| 2015 | $143,475 | $150,000 | $0 | $293,475 | $293,475 |
| 2014 | $126,767 | $150,000 | $0 | $276,767 | $276,767 |
| 2013 | $128,353 | $150,000 | $0 | $278,353 | $278,353 |
| 2012 | $129,941 | $148,750 | $0 | $278,691 | $278,691 |
| 2011 | $131,527 | $175,000 | $0 | $306,527 | $306,527 |
| 2010 | $139,535 | $175,000 | $0 | $314,535 | $314,535 |
| 2009 | $143,742 | $200,000 | $0 | $343,742 | $343,742 |
| 2008 | $108,982 | $225,000 | $0 | $333,982 | $333,982 |
| 2007 | $110,703 | $225,000 | $0 | $335,703 | $335,703 |
Deed and Sales History
| 1 | 06/11/2021 | WD | Warranty Deed | MACKIE, LELAND D | KEOHANE, THOMAS | | | $400,000.00 | 48845 | 4522718 |
Payout Agreement
| No payout information available.. |