| 1 | 10/04/2022 | WD | Warranty Deed | PETERSON, MICAH A | NAMEEPON, KAMONPAT | | | $365,000.00 | 54874 | 4552612 |
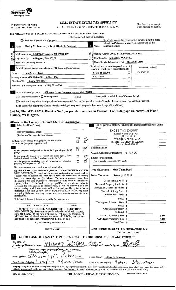
| 2 | 01/12/2017 | ESTSEPPROP | Establish Separate Property | PETERSON, MICAH A | PETERSON, MICAH A | | | $0.00 | 27738 | 4415159 |
| 3 | 01/12/2017 | WD | Warranty Deed | HARMONY PROPERTY MANAGEMENT, LLC | PETERSON, MICAH A | | | $131,500.00 | 27737 | 4415158 |
| 4 | 01/20/2016 | WD | Warranty Deed | OKAMURA, EARLE M | HARMONY PROPERTY MANAGEMENT, LLC | | | $63,000.00 | 22952 | 4393170 |
| 5 | 11/04/2007 | WD | Warranty Deed | GRIFFITHS, RICKY T | OKAMURA, EARLE M | | | $145,000.00 | 73698 | 4215912 |
| 6 | 08/11/2005 | QCD | Quit Claim Deed | GRIFFITHS, JOHN D | GRIFFITHS, RICKY T | | | $0.00 | 54050 | 4144516 |
| 7 | 04/19/2005 | QCD | Quit Claim Deed | GRIFFITHS, JOHN D | GRIFFITHS, JOHN D | | | $0.00 | 51650 | 4131846 |
| 8 | 06/28/2004 | TRUSTEED | Trustee's Deed | SECRETARY OF HOUSING AND URBAN | GRIFFITHS, JOHN D | | | $52,000.00 | 42953 | 4105589 |
| 9 | 01/05/2004 | TRUSTEED | Trustee's Deed | THE LEADER MORTGAGE COMPANY, | SECRETARY OF HOUSING AND URBAN | | | $0.00 | 40172 | 4088540 |
| 10 | 10/17/2003 | TRUSTEED | Trustee's Deed | CHOATE, JOHN R | THE LEADER MORTGAGE COMPANY, | | | $124,999.00 | 34872 | 4080834 |
| 11 | 11/17/2000 | WD | Warranty Deed | SMITH, JEFFREY A | CHOATE, JOHN R | | | $110,000.00 | 4447 | 20020513 |
| 12 | 07/01/1993 | OTHER | Other - Misc. Documents | SMITH, JEFFREY A | SMITH, JEFFREY A | | | $27,709.00 | 32736 | 0 |
| 13 | 07/01/1993 | WD | Warranty Deed | CRUMP, MORRIS E | SMITH, JEFFREY A | | | $36,291.00 | 32735 | 93014210 |
| 14 | 07/01/1992 | OTHER | Other - Misc. Documents | CRUMP, MOORIS E | CRUMP, MORRIS E | | | $23,900.00 | 22746 | 0 |
| 15 | 07/01/1992 | WD | Warranty Deed | VANDERVAATE, RANDALL F | CRUMP, MOORIS E | | | $35,000.00 | 22743 | 92013269 |
| 16 | 07/01/1988 | REC | Real Estate Contract | LEISHMAN, GILBERT H | VANDERVAATE, RANDALL F | | | $4,431.00 | 82121 | 88007811 |
| 17 | 05/01/1987 | QCD | Quit Claim Deed | HEALY, SCOTT | LEISHMAN, GILBERT H | | | $0.00 | 62178 | 87002872 |
| 18 | 05/01/1981 | EXECUTORD | Executor Deed | LEISHMAN, GILBERT H | HEALY, SCOTT | | | $16,950.00 | 11703 | 383818 |
| 19 | 11/01/1980 | EXECUTORD | Executor Deed | HOLLANDER, CHARLES M | LEISHMAN, GILBERT H | | | $7,000.00 | 3973 | 376828 |
| 20 | 01/01/1900 | OTHER | Other - Misc. Documents | Unknown | HOLLANDER, CHARLES M | | | $0.00 | 0 | 0 |