Property
Account |
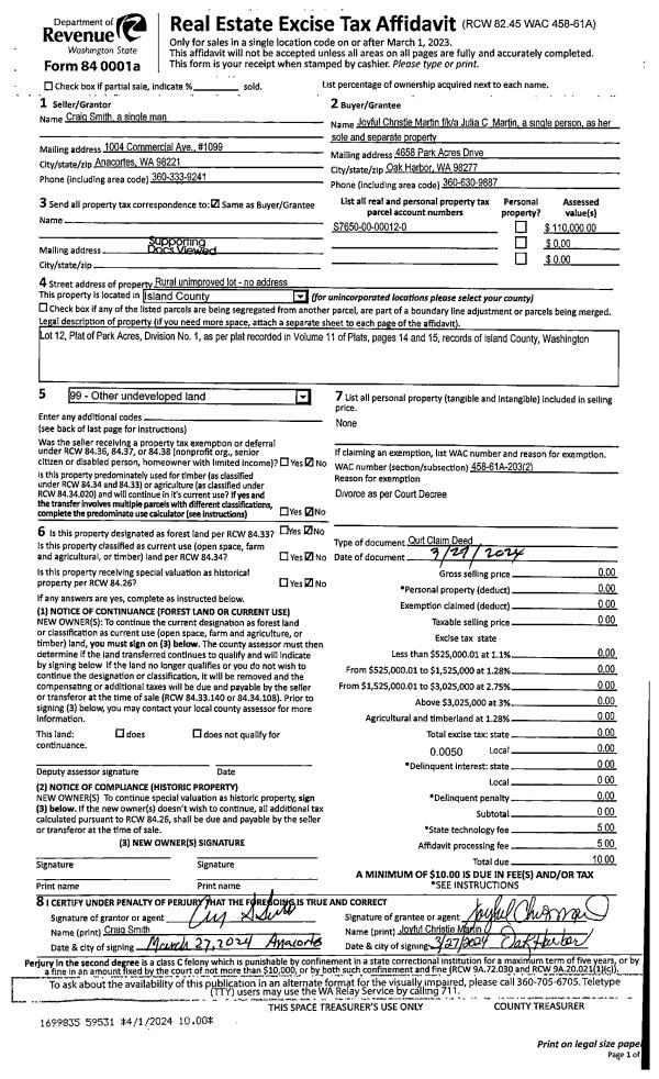
| Property ID: | 339459 | Abbreviated Legal Description: | PARK AC LOT 12 |
| Geographic ID: | S7650-00-00012-0 | Agent Code: | |
| Type: | Real | | |
| Tax Area: | 119 - APPRAISER-OH Schl Dist, outside OH, vacant & 50 acres or less | Land Use Code | 99 |
| Open Space: | N | DFL | N |
| Historic Property: | N | Remodel Property: | N |
| Multi-Family Redevelopment: | N | | |
| Township: | | Section: | |
| Range: | |
Location |
| Address: | 4670 PARK ACRES DR OAK HARBOR, WA 98277 | Mapsco: | |
| Neighborhood: | Cycle 6 | Map ID: | 192 |
| Neighborhood CD: | 6 |
Owner |
| Name: | BERTRAND, SOPHIE | Owner ID: | 313063 |
| Mailing Address: | JOHN GOETZINGER 4658 NORTH PARK ACRES DR OAK HARBOR, WA 98277 | % Ownership: | 100.0000000000% |
| | | Exemptions: | |
Taxes and Assessment Details
Values
| (+) Improvement Homesite Value: | + | $0 | |
| (+) Improvement Non-Homesite Value: | + | $0 | |
| (+) Land Homesite Value: | + | $0 | |
| (+) Land Non-Homesite Value: | + | $110,000 | |
| (+) Curr Use (HS): | + | $0 | $0 |
| (+) Curr Use (NHS): | + | $0 | $0 |
| | | -------------------------- | |
| (=) Market Value: | = | $110,000 | |
| (–) Productivity Loss: | – | $0 | |
| | | -------------------------- | |
| (=) Subtotal: | = | $110,000 | |
| (+) Senior Appraised Value: | + | $0 | |
| (+) Non-Senior Appraised Value: | + | $110,000 | |
| | | -------------------------- | |
| (=) Total Appraised Value: | = | $110,000 | |
| (–) Senior Exemption Loss: | – | $0 | |
| (–) Exemption Loss: | – | $0 | |
| | | -------------------------- | |
| (=) Taxable Value: | = | $110,000 | |
Taxing Jurisdiction
| Owner: | BERTRAND, SOPHIE | | |
| % Ownership: | 100.0000000000% | | |
| Total Value: | $110,000 | | |
| Tax Area: | 119 - APPRAISER-OH Schl Dist, outside OH, vacant & 50 acres or less |
| CF | Conservation Futures | 0.0313996660 | $110,000 | $110,000 | $3.45 | | |
| CEM1 | Cemetery #1 | 0.0040018856 | $110,000 | $110,000 | $0.44 | | |
| HOBOND | Hospital BOND | 0.1893405597 | $110,000 | $110,000 | $20.83 | | |
| HOGEN | Hospital GEN | 0.3848777722 | $110,000 | $110,000 | $42.34 | | |
| CE | County Current Expense | 0.3674210519 | $110,000 | $110,000 | $40.42 | | |
| CR | County Roads | 0.4614296361 | $110,000 | $110,000 | $50.76 | | |
| ISLANDEMS | Hospital GEN (EMS) | 0.4952018576 | $110,000 | $110,000 | $54.47 | | |
| LIB | Library Sno-Isle GEN | 0.3039084203 | $110,000 | $110,000 | $33.43 | | |
| NWHIDPRMT | P & R N Whidbey GEN | 0.1990272349 | $110,000 | $110,000 | $21.89 | | |
| SCH201MO | School 201 Enrichment | 2.3851112745 | $110,000 | $110,000 | $262.36 | | |
| ST | State School | 1.4761226122 | $110,000 | $110,000 | $162.37 | | |
| ST2 | State School Part 2 | 0.7953803475 | $110,000 | $110,000 | $87.49 | | |
| | Total Tax Rate: | 7.0932223185 | | | | | |
| | | | | Taxes w/Current Exemptions: | $780.25 | | |
| | | | | Taxes w/o Exemptions: | $780.25 | | |
Improvement / Building
Sketch
| No sketches available for this property. |
Property Image
Land
| 1 | 18 | AC (02.01-03.00) | 2.2400 | 97574.40 | 0.00 | 0.00 | 1.00 | $110,000 | $0 |
Roll Value History
| 2026 | N/A | N/A | N/A | N/A | N/A |
| 2025 | $0 | $110,000 | $0 | $110,000 | $110,000 |
| 2024 | $0 | $110,000 | $0 | $110,000 | $110,000 |
| 2023 | $0 | $110,000 | $0 | $110,000 | $110,000 |
| 2022 | $0 | $80,000 | $0 | $80,000 | $80,000 |
| 2021 | $0 | $70,000 | $0 | $70,000 | $70,000 |
| 2020 | $0 | $70,000 | $0 | $70,000 | $70,000 |
| 2019 | $0 | $80,000 | $0 | $80,000 | $80,000 |
| 2018 | $0 | $80,000 | $0 | $80,000 | $80,000 |
| 2017 | $0 | $80,000 | $0 | $80,000 | $80,000 |
| 2016 | $0 | $80,000 | $0 | $80,000 | $80,000 |
| 2015 | $0 | $80,000 | $0 | $80,000 | $80,000 |
| 2014 | $0 | $75,000 | $0 | $75,000 | $75,000 |
| 2013 | $0 | $70,000 | $0 | $70,000 | $70,000 |
| 2012 | $0 | $70,000 | $0 | $70,000 | $70,000 |
| 2011 | $0 | $70,000 | $0 | $70,000 | $70,000 |
| 2010 | $0 | $70,000 | $0 | $70,000 | $70,000 |
| 2009 | $0 | $75,000 | $0 | $75,000 | $75,000 |
| 2008 | $0 | $74,400 | $0 | $74,400 | $74,400 |
| 2007 | $0 | $65,000 | $0 | $65,000 | $65,000 |
Deed and Sales History
| 1 | 07/08/2024 | WD | Warranty Deed | MARTIN, JOYFUL CHRISTIE | BERTRAND, SOPHIE | | | $230,000.00 | 60578 | 4574350 |
| 2 | 03/27/2024 | QCD | Quit Claim Deed | SMITH, CRAIG | MARTIN, JOYFUL CHRISTIE | | | $0.00 | 59531 | 4570779 |
| 3 | 09/09/2015 | WD | Warranty Deed | WOLFE, ROBERT E | SMITH, CRAIG | | | $352,800.00 | 21344 | 4385940 |
|   | |
| 4 | 01/01/1900 | OTHER | Other - Misc. Documents | Unknown | WOLFE, ROBERT E | | | $0.00 | 0 | 0 |
Payout Agreement
| No payout information available.. |