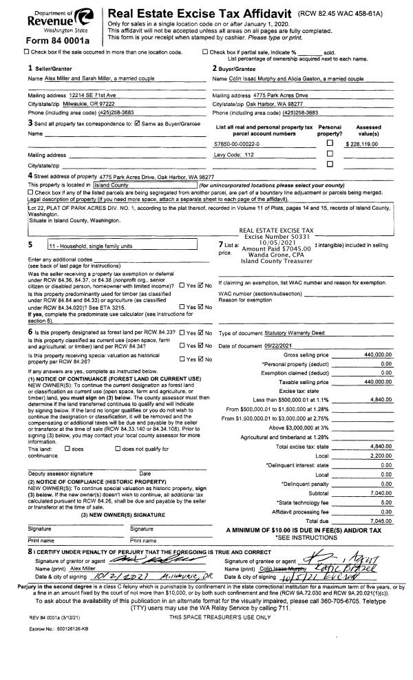
Property
Account |
| Property ID: | 339583 | Abbreviated Legal Description: | PARK AC LOT 22 |
| Geographic ID: | S7650-00-00022-0 | Agent Code: | |
| Type: | Real | | |
| Tax Area: | 112 - APPRAISER-OH Schl Dist, outside OH, improved, greater than 1 acre | Land Use Code | 11 |
| Open Space: | N | DFL | N |
| Historic Property: | N | Remodel Property: | N |
| Multi-Family Redevelopment: | N | | |
| Township: | | Section: | |
| Range: | |
Location |
| Address: | 4775 PARK ACRES DR OAK HARBOR, WA 98277 | Mapsco: | |
| Neighborhood: | Cycle 6 | Map ID: | 192 |
| Neighborhood CD: | 6 |
Owner |
| Name: | MURPHY, COLIN ISAAC | Owner ID: | 301458 |
| Mailing Address: | ALICIA GASTON 4775 PARK ACRES DR OAK HARBOR, WA 98277 | % Ownership: | 100.0000000000% |
| | | Exemptions: | |
Taxes and Assessment Details
Values
| (+) Improvement Homesite Value: | + | $0 | |
| (+) Improvement Non-Homesite Value: | + | $144,578 | |
| (+) Land Homesite Value: | + | $0 | |
| (+) Land Non-Homesite Value: | + | $250,000 | |
| (+) Curr Use (HS): | + | $0 | $0 |
| (+) Curr Use (NHS): | + | $0 | $0 |
| | | -------------------------- | |
| (=) Market Value: | = | $394,578 | |
| (–) Productivity Loss: | – | $0 | |
| | | -------------------------- | |
| (=) Subtotal: | = | $394,578 | |
| (+) Senior Appraised Value: | + | $0 | |
| (+) Non-Senior Appraised Value: | + | $394,578 | |
| | | -------------------------- | |
| (=) Total Appraised Value: | = | $394,578 | |
| (–) Senior Exemption Loss: | – | $0 | |
| (–) Exemption Loss: | – | $0 | |
| | | -------------------------- | |
| (=) Taxable Value: | = | $394,578 | |
Taxing Jurisdiction
| Owner: | MURPHY, COLIN ISAAC | | |
| % Ownership: | 100.0000000000% | | |
| Total Value: | $394,578 | | |
| Tax Area: | 112 - APPRAISER-OH Schl Dist, outside OH, improved, greater than 1 acre |
| CF | Conservation Futures | 0.0313996660 | $394,578 | $394,578 | $12.39 | | |
| CEM1 | Cemetery #1 | 0.0040018856 | $394,578 | $394,578 | $1.58 | | |
| FIRE2 | Fire & Rescue Dist #2 N Whidbey GEN | 0.5381486274 | $394,578 | $394,578 | $212.34 | | |
| HOBOND | Hospital BOND | 0.1893405597 | $394,578 | $394,578 | $74.71 | | |
| HOGEN | Hospital GEN | 0.3848777722 | $394,578 | $394,578 | $151.86 | | |
| CE | County Current Expense | 0.3674210519 | $394,578 | $394,578 | $144.98 | | |
| CR | County Roads | 0.4614296361 | $394,578 | $394,578 | $182.07 | | |
| ISLANDEMS | Hospital GEN (EMS) | 0.4952018576 | $394,578 | $394,578 | $195.40 | | |
| LIB | Library Sno-Isle GEN | 0.3039084203 | $394,578 | $394,578 | $119.92 | | |
| NWHIDPRMT | P & R N Whidbey GEN | 0.1990272349 | $394,578 | $394,578 | $78.53 | | |
| SCH201MO | School 201 Enrichment | 2.3851112745 | $394,578 | $394,578 | $941.11 | | |
| ST | State School | 1.4761226122 | $394,578 | $394,578 | $582.45 | | |
| ST2 | State School Part 2 | 0.7953803475 | $394,578 | $394,578 | $313.84 | | |
| | Total Tax Rate: | 7.6313709459 | | | | | |
| | | | | Taxes w/Current Exemptions: | $3,011.18 | | |
| | | | | Taxes w/o Exemptions: | $3,011.18 | | |
Improvement / Building
| Improvement #1: | MANUFACTURED HOME | State Code: | Y | 1562.0 sqft | Value: | $144,578 |
| Bathrooms: | 2 | Bedrooms: | 3 | | Ceiling: | PLASTER PAINTED | Cooling: | EVAP NO DUCT | | Exterior Wall/Cover: | VINYL | Floor Covering: | CARPET 100% | | Floor Structure: | SLAB ON GRADE | Foundation: | SLAB | | Heating: | FHA ELECTRIC | Interior Finish: | PLASTER | | Plumbing Fixture Cnt: | 1 | Roof Slope: | FLAT | | Roof Structure/Cover: | CJ ALUMINIUM HEAVY |   |   |
|
| | Type | Description | Class CD | Sub Class CD | Year Built | Area |
| | BAS | BASE/MAIN FLOOR | 4 | 0 | 2008 | 1562.0 |
| | OWP | OPEN WOOD PORCH W/STEPS | 4 | 0 | 2008 | 24.0 |
| | OWR | OPEN WOOD PORCH W/STEPS/ROOF | 4 | 0 | 2008 | 48.0 |
| | OWP | OPEN WOOD PORCH W/STEPS | 4 | 0 | 2008 | 36.0 |
Sketch
Property Image
Land
| 1 | 18 | AC (02.01-03.00) | 2.2400 | 97574.40 | 0.00 | 0.00 | 1.00 | $250,000 | $0 |
Roll Value History
| 2026 | N/A | N/A | N/A | N/A | N/A |
| 2025 | $144,578 | $250,000 | $0 | $394,578 | $394,578 |
| 2024 | $148,061 | $220,000 | $0 | $368,061 | $368,061 |
| 2023 | $130,260 | $220,000 | $0 | $350,260 | $350,260 |
| 2022 | $119,319 | $210,000 | $0 | $329,319 | $329,319 |
| 2021 | $68,119 | $160,000 | $0 | $228,119 | $228,119 |
| 2020 | $68,018 | $130,000 | $0 | $198,018 | $198,018 |
| 2019 | $54,322 | $200,000 | $0 | $254,322 | $254,322 |
| 2018 | $55,811 | $170,000 | $0 | $225,811 | $225,811 |
| 2017 | $57,299 | $150,000 | $0 | $207,299 | $207,299 |
| 2016 | $42,416 | $120,000 | $0 | $162,416 | $162,416 |
| 2015 | $44,648 | $100,000 | $0 | $144,648 | $144,648 |
| 2014 | $46,137 | $75,000 | $0 | $121,137 | $121,137 |
| 2013 | $47,625 | $75,000 | $0 | $122,625 | $122,625 |
| 2012 | $49,113 | $102,000 | $0 | $151,113 | $151,113 |
| 2011 | $50,602 | $120,000 | $0 | $170,602 | $170,602 |
| 2010 | $83,846 | $120,000 | $0 | $203,846 | $203,846 |
| 2009 | $86,225 | $130,000 | $0 | $216,225 | $216,225 |
| 2008 | $26,041 | $118,000 | $0 | $144,041 | $144,041 |
| 2007 | $26,874 | $89,500 | $0 | $116,374 | $116,374 |
Deed and Sales History
| 1 | 09/22/2021 | WD | Warranty Deed | MILLER, ALEX | MURPHY, COLIN ISAAC | | | $440,000.00 | 50331 | 4530656 |
| 2 | 09/22/2014 | WD | Warranty Deed | SECRETARY OF HOUSING & URBAN DEVELOPMENT | MILLER, ALEX | | | $170,501.00 | 16945 | 4366117 |
| 3 | 06/24/2014 | WD | Warranty Deed | WELLS FARGO BANK NA | SECRETARY OF HOUSING & URBAN DEVELOPMENT | | | $202,807.00 | 15909 | 4361884 |
| 4 | 01/13/2014 | TRUSTEED | Trustee's Deed | MCGOVERN, STORMIE L | WELLS FARGO BANK NA | | | $137,950.00 | 14023 | 4353955 |
| 5 | 10/30/1998 | WD | Warranty Deed | LIGGETT, PHILIP A | MC GOVERN, STORMIE L | | | $35,500.00 | 84506 | 98024509 |
| 6 | 06/01/1997 | OTHER | Other - Misc. Documents | LIGGETT, PHILIP A | LIGGETT, PHILIP A | | | $0.00 | 67448 | 0 |
| 7 | 10/01/1996 | QCD | Quit Claim Deed | LIGGETT, P A | LIGGETT, PHILIP A | | | $0.00 | 70897 | 97004439 |
| 8 | 10/01/1992 | QCD | Quit Claim Deed | LIGGETT, P A | LIGGETT, P A | | | $0.00 | 32021 | 93010497 |
| 9 | 04/01/1976 | TRUSTEED | Trustee's Deed | PROVO, DOUGLAS | LIGGETT, P A | | | $0.00 | 61219 | 0 |
| 10 | 01/01/1900 | OTHER | Other - Misc. Documents | Unknown | PROVO, DOUGLAS | | | $0.00 | 0 | 0 |
Payout Agreement
| No payout information available.. |