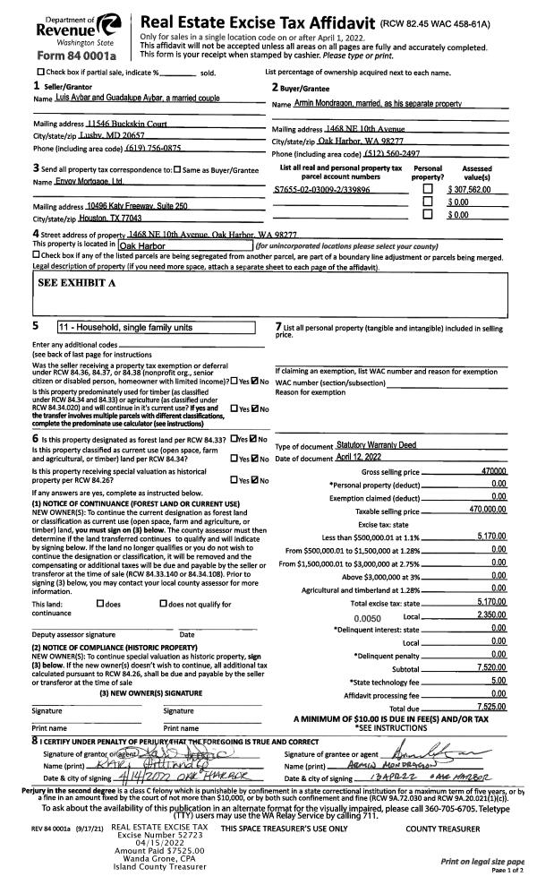
Property
Account |
| Property ID: | 339896 | Abbreviated Legal Description: | PARKLAND 2 LOT 9 BLK 3 EX: BG NWCR L9 N68*E5' S TP 15'NELY FR SWLY CR L9 SWLY 15'TO SWCR L9 N0*E ALG WLN L9 TPB |
| Geographic ID: | S7655-02-03009-2 | Agent Code: | |
| Type: | Real | | |
| Tax Area: | 100 - APPRAISER-OH Schl Dist, in OH | Land Use Code | 11 |
| Open Space: | N | DFL | N |
| Historic Property: | N | Remodel Property: | N |
| Multi-Family Redevelopment: | N | | |
| Township: | | Section: | |
| Range: | |
Location |
| Address: | 1468 NE 10TH AVE OAK HARBOR, WA 98277 | Mapsco: | |
| Neighborhood: | Cycle 1 | Map ID: | 259 |
| Neighborhood CD: | 1 |
Owner |
| Name: | MONDRAGON, ARMIN | Owner ID: | 303810 |
| Mailing Address: | 1468 NE 10TH AVENUE OAK HARBOR, WA 98277 | % Ownership: | 100.0000000000% |
| | | Exemptions: | |
Taxes and Assessment Details
Values
| (+) Improvement Homesite Value: | + | $0 | |
| (+) Improvement Non-Homesite Value: | + | $273,760 | |
| (+) Land Homesite Value: | + | $0 | |
| (+) Land Non-Homesite Value: | + | $180,000 | |
| (+) Curr Use (HS): | + | $0 | $0 |
| (+) Curr Use (NHS): | + | $0 | $0 |
| | | -------------------------- | |
| (=) Market Value: | = | $453,760 | |
| (–) Productivity Loss: | – | $0 | |
| | | -------------------------- | |
| (=) Subtotal: | = | $453,760 | |
| (+) Senior Appraised Value: | + | $0 | |
| (+) Non-Senior Appraised Value: | + | $453,760 | |
| | | -------------------------- | |
| (=) Total Appraised Value: | = | $453,760 | |
| (–) Senior Exemption Loss: | – | $0 | |
| (–) Exemption Loss: | – | $0 | |
| | | -------------------------- | |
| (=) Taxable Value: | = | $453,760 | |
Taxing Jurisdiction
| Owner: | MONDRAGON, ARMIN | | |
| % Ownership: | 100.0000000000% | | |
| Total Value: | $453,760 | | |
| Tax Area: | 100 - APPRAISER-OH Schl Dist, in OH |
| CF | Conservation Futures | 0.0313996660 | $453,760 | $453,760 | $14.25 | | |
| CEM1 | Cemetery #1 | 0.0040018856 | $453,760 | $453,760 | $1.82 | | |
| COH | City of Oak Harbor | 2.3090730572 | $453,760 | $453,760 | $1,047.76 | | |
| OAKBOND | City of Oak Harbor BOND | 0.1902260131 | $453,760 | $453,760 | $86.32 | | |
| HOBOND | Hospital BOND | 0.1893405597 | $453,760 | $453,760 | $85.92 | | |
| HOGEN | Hospital GEN | 0.3848777722 | $453,760 | $453,760 | $174.64 | | |
| CE | County Current Expense | 0.3674210519 | $453,760 | $453,760 | $166.72 | | |
| ISLANDEMS | Hospital GEN (EMS) | 0.4952018576 | $453,760 | $453,760 | $224.70 | | |
| LIB | Library Sno-Isle GEN | 0.3039084203 | $453,760 | $453,760 | $137.90 | | |
| NWHIDPRMT | P & R N Whidbey GEN | 0.1990272349 | $453,760 | $453,760 | $90.31 | | |
| SCH201MO | School 201 Enrichment | 2.3851112745 | $453,760 | $453,760 | $1,082.27 | | |
| ST | State School | 1.4761226122 | $453,760 | $453,760 | $669.81 | | |
| ST2 | State School Part 2 | 0.7953803475 | $453,760 | $453,760 | $360.91 | | |
| | Total Tax Rate: | 9.1310917527 | | | | | |
| | | | | Taxes w/Current Exemptions: | $4,143.33 | | |
| | | | | Taxes w/o Exemptions: | $4,143.33 | | |
Improvement / Building
| Improvement #1: | RESIDENTIAL | State Code: | Y | 1640.0 sqft | Value: | $273,760 |
| Bathrooms: | 2 | Bedrooms: | 3 | | Ceiling: | DRYWALL PAINTED | Cooling: | HEAT PUMP/CONV/V | | Exterior Wall/Cover: | WOOD SIDING | Floor Covering: | CERAMIC TILE/CPT 40-60 | | Floor Structure: | WOOD W/SUBFLOOR | Foundation: | CONCRETE | | Interior Finish: | DRYWALL PAINT | Plumbing Fixture Cnt: | 10 | | Roof Slope: | 4" IN 12" | Roof Structure/Cover: | CJ ALUMINIUM HEAVY |
|
| | Type | Description | Class CD | Sub Class CD | Year Built | Area |
| | BAS | BASE/MAIN FLOOR | 3 | 0 | 1961 | 1640.0 |
| | OP4 | OPEN PORCH W/CEILING-ROOF | 3 | 0 | 1961 | 24.0 |
| | AGR | ATTACHED GARAGE | 3 | 0 | 1961 | 308.0 |
Sketch
Property Image
Land
| 1 | 14 | SQ (08001-12000) | 0.0000 | 0.00 | 0.00 | 0.00 | 1.00 | $180,000 | $0 |
Roll Value History
| 2026 | N/A | N/A | N/A | N/A | N/A |
| 2025 | $273,760 | $180,000 | $0 | $453,760 | $453,760 |
| 2024 | $277,399 | $170,000 | $0 | $447,399 | $447,399 |
| 2023 | $273,760 | $170,000 | $0 | $443,760 | $443,760 |
| 2022 | $206,915 | $160,000 | $0 | $366,915 | $366,915 |
| 2021 | $182,562 | $125,000 | $0 | $307,562 | $307,562 |
| 2020 | $178,454 | $100,000 | $0 | $278,454 | $278,454 |
| 2019 | $131,333 | $140,000 | $0 | $271,333 | $271,333 |
| 2018 | $131,793 | $125,000 | $0 | $256,793 | $256,793 |
| 2017 | $96,455 | $110,000 | $0 | $206,455 | $206,455 |
| 2016 | $98,275 | $90,000 | $0 | $188,275 | $188,275 |
| 2015 | $100,095 | $70,000 | $0 | $170,095 | $170,095 |
| 2014 | $101,915 | $55,000 | $0 | $156,915 | $156,915 |
| 2013 | $103,734 | $55,000 | $0 | $158,734 | $158,734 |
| 2012 | $105,553 | $65,000 | $0 | $170,553 | $170,553 |
| 2011 | $103,347 | $65,000 | $0 | $168,347 | $168,347 |
| 2010 | $117,468 | $65,000 | $0 | $182,468 | $182,468 |
| 2009 | $122,940 | $90,470 | $0 | $213,410 | $213,410 |
| 2008 | $124,907 | $109,000 | $0 | $233,907 | $233,907 |
| 2007 | $126,874 | $109,000 | $0 | $235,874 | $235,874 |
Deed and Sales History
| 1 | 04/12/2022 | QCD | Quit Claim Deed | MONDRAGON, DARINA | MONDRAGON, ARMIN | | | $0.00 | 52724 | 4543444 |
| 2 | 04/12/2022 | WD | Warranty Deed | AYBAR, LUIS | MONDRAGON, ARMIN | | | $470,000.00 | 52723 | 4543443 |
| 3 | 08/06/2014 | ESTSEPPROP | Establish Separate Property | AYBAR, LUIS | AYBAR, LUIS | | | $0.00 | 16362 | 4363719 |
| 4 | 08/06/2014 | WD | Warranty Deed | WIECHERT, BRIGITTE | AYBAR, LUIS | | | $209,900.00 | 16361 | 4363718 |
| 5 | 08/13/2007 | OTHER | Other - Misc. Documents | WIECHERT, CARL S | WIECHERT, BRIGITTE | | | $0.00 | 80313 | 0 |
| 6 | 03/01/1996 | QCD | Quit Claim Deed | WIECHERT, CARL S | WIECHERT, CARL S | | | $0.00 | 60904 | 96004762 |
| 7 | 01/01/1900 | OTHER | Other - Misc. Documents | Unknown | WIECHERT, CARL S | | | $0.00 | 0 | 0 |
Payout Agreement
| No payout information available.. |