Property
Account |
| Property ID: | 342347 | Abbreviated Legal Description: | PATTONS HILLCREST PT LOT 8 & LOT 9 BLK 1: BG SWCR LOT 8 E46.83' TPB N15*W177.01' ELY 72.46' ALG LOERLAND LN E55.96' S180' W76.21' TPB |
| Geographic ID: | S7685-00-01008-2 | Agent Code: | |
| Type: | Real | | |
| Tax Area: | 110 - APPRAISER-OH Schl Dist, outside OH, improved & 1 acre or less | Land Use Code | 11 |
| Open Space: | N | DFL | N |
| Historic Property: | N | Remodel Property: | N |
| Multi-Family Redevelopment: | N | | |
| Township: | | Section: | |
| Range: | |
Location |
| Address: | 2420 LOERLAND LN OAK HARBOR, WA 98277 | Mapsco: | |
| Neighborhood: | Cycle 1 | Map ID: | 249 |
| Neighborhood CD: | 1 |
Owner |
| Name: | DAUSEY, MICHAEL LEWIS | Owner ID: | 299908 |
| Mailing Address: | APRIL M DIDONNA 2420 LOERLAND LN OAK HARBOR, WA 98277 | % Ownership: | 100.0000000000% |
| | | Exemptions: | |
Taxes and Assessment Details
Values
| (+) Improvement Homesite Value: | + | $0 | |
| (+) Improvement Non-Homesite Value: | + | $259,868 | |
| (+) Land Homesite Value: | + | $0 | |
| (+) Land Non-Homesite Value: | + | $190,000 | |
| (+) Curr Use (HS): | + | $0 | $0 |
| (+) Curr Use (NHS): | + | $0 | $0 |
| | | -------------------------- | |
| (=) Market Value: | = | $449,868 | |
| (–) Productivity Loss: | – | $0 | |
| | | -------------------------- | |
| (=) Subtotal: | = | $449,868 | |
| (+) Senior Appraised Value: | + | $0 | |
| (+) Non-Senior Appraised Value: | + | $449,868 | |
| | | -------------------------- | |
| (=) Total Appraised Value: | = | $449,868 | |
| (–) Senior Exemption Loss: | – | $0 | |
| (–) Exemption Loss: | – | $0 | |
| | | -------------------------- | |
| (=) Taxable Value: | = | $449,868 | |
Taxing Jurisdiction
| Owner: | DAUSEY, MICHAEL LEWIS | | |
| % Ownership: | 100.0000000000% | | |
| Total Value: | $449,868 | | |
| Tax Area: | 110 - APPRAISER-OH Schl Dist, outside OH, improved & 1 acre or less |
| CF | Conservation Futures | 0.0313996660 | $449,868 | $449,868 | $14.13 | | |
| CEM1 | Cemetery #1 | 0.0040018856 | $449,868 | $449,868 | $1.80 | | |
| FIRE2 | Fire & Rescue Dist #2 N Whidbey GEN | 0.5381486274 | $449,868 | $449,868 | $242.10 | | |
| HOBOND | Hospital BOND | 0.1893405597 | $449,868 | $449,868 | $85.18 | | |
| HOGEN | Hospital GEN | 0.3848777722 | $449,868 | $449,868 | $173.14 | | |
| CE | County Current Expense | 0.3674210519 | $449,868 | $449,868 | $165.29 | | |
| CR | County Roads | 0.4614296361 | $449,868 | $449,868 | $207.58 | | |
| ISLANDEMS | Hospital GEN (EMS) | 0.4952018576 | $449,868 | $449,868 | $222.78 | | |
| LIB | Library Sno-Isle GEN | 0.3039084203 | $449,868 | $449,868 | $136.72 | | |
| NWHIDPRMT | P & R N Whidbey GEN | 0.1990272349 | $449,868 | $449,868 | $89.54 | | |
| SCH201MO | School 201 Enrichment | 2.3851112745 | $449,868 | $449,868 | $1,072.99 | | |
| ST | State School | 1.4761226122 | $449,868 | $449,868 | $664.06 | | |
| ST2 | State School Part 2 | 0.7953803475 | $449,868 | $449,868 | $357.82 | | |
| | Total Tax Rate: | 7.6313709459 | | | | | |
| | | | | Taxes w/Current Exemptions: | $3,433.13 | | |
| | | | | Taxes w/o Exemptions: | $3,433.13 | | |
Improvement / Building
| Improvement #1: | RESIDENTIAL | State Code: | Y | 2436.0 sqft | Value: | $259,868 |
| Bathrooms: | 1.75 | Bedrooms: | 4 | | Ceiling: | DRYWALL PAINTED | Exterior Wall/Cover: | WOOD SIDING | | Floor Covering: | HARDWOOD/CARP 20-80 | Floor Structure: | WOOD W/SUBFLOOR | | Foundation: | CONCRETE BLOCKS | Heating: | FHA OIL | | Interior Finish: | DRYWALL PAINT | Plumbing Fixture Cnt: | 9 | | Roof Slope: | 4" IN 12" | Roof Structure/Cover: | CJ ASPHALT |
|
| | Type | Description | Class CD | Sub Class CD | Year Built | Area |
| | BAS | BASE/MAIN FLOOR | 3 | 0 | 1957 | 1218.0 |
| | OP2 | OPEN PORCH W/STEPS | 3 | 0 | 1957 | 48.0 |
| | AGR | ATTACHED GARAGE | 3 | 0 | 1957 | 480.0 |
| | OWP | OPEN WOOD PORCH W/STEPS | 3 | 0 | 1957 | 163.4 |
| | DWN | DOWNSTAIRS LIVING AREA | 3 | 0 | 1957 | 1218.0 |
| | OWR | OPEN WOOD PORCH W/STEPS/ROOF | 3 | 0 | 1957 | 160.7 |
Sketch
Property Image
Land
| 1 | 15 | SQ (12001-21780) | 0.0000 | 0.00 | 0.00 | 0.00 | 1.00 | $190,000 | $0 |
Roll Value History
| 2026 | N/A | N/A | N/A | N/A | N/A |
| 2025 | $259,868 | $190,000 | $0 | $449,868 | $449,868 |
| 2024 | $263,851 | $190,000 | $0 | $453,851 | $453,851 |
| 2023 | $259,868 | $190,000 | $0 | $449,868 | $449,868 |
| 2022 | $238,920 | $180,000 | $0 | $418,920 | $418,920 |
| 2021 | $210,886 | $135,000 | $0 | $345,886 | $345,886 |
| 2020 | $206,671 | $100,000 | $0 | $306,671 | $306,671 |
| 2019 | $162,025 | $150,000 | $0 | $312,025 | $312,025 |
| 2018 | $162,609 | $130,000 | $0 | $292,609 | $292,609 |
| 2017 | $162,697 | $110,000 | $0 | $272,697 | $272,697 |
| 2016 | $165,090 | $90,000 | $0 | $255,090 | $255,090 |
| 2015 | $109,314 | $70,000 | $0 | $179,314 | $179,314 |
| 2014 | $111,593 | $55,000 | $0 | $166,593 | $166,593 |
| 2013 | $142,114 | $55,000 | $0 | $197,114 | $197,114 |
| 2012 | $144,445 | $60,000 | $0 | $204,445 | $204,445 |
| 2011 | $118,792 | $50,000 | $0 | $168,792 | $168,792 |
| 2010 | $132,529 | $50,000 | $0 | $182,529 | $182,529 |
| 2009 | $138,851 | $92,000 | $0 | $230,851 | $230,851 |
| 2008 | $138,951 | $98,000 | $0 | $236,951 | $236,951 |
| 2007 | $141,283 | $98,000 | $0 | $239,283 | $239,283 |
Deed and Sales History
| 1 | 06/21/2021 | QCD | Quit Claim Deed | DAUSEY, CINDY M | DAUSEY, MICHAEL LEWIS | | | $0.00 | 48815 | 4522533 |
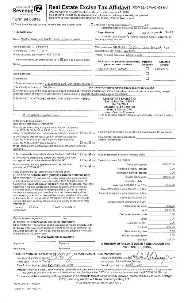
| 2 | 06/15/2021 | WD | Warranty Deed | TARPLEY, ALBERT V | DAUSEY, MICHAEL LEWIS | | | $450,000.00 | 48814 | 4522532 |
| 3 | 12/21/2015 | WD | Warranty Deed | BOZER, DUSTIN L | TARPLEY, ALBERT V | | | $255,000.00 | 22604 | 4391510 |
| 4 | 06/01/2009 | ESTSEPPROP | Establish Separate Property | BOZER, DUSTIN L | BOZER, DUSTIN L | | | $0.00 | 91211 | 4252871 |
| 5 | 09/05/2001 | TRUSTEED | Trustee's Deed | BANKERS TRUST COMPANY AS CUSTO | BOZER, DUSTIN L | | | $131,900.00 | 13509 | 20042646 |
| 6 | 07/12/2001 | TRUSTEED | Trustee's Deed | STUART, TODD D | BANKERS TRUST COMPANY AS CUSTO | | | $114,750.00 | 12679 | 20037410 |
| 7 | 07/16/1999 | ESTSEPPROP | Establish Separate Property | STUART, TODD D | STUART, TODD D | | | $0.00 | 93716 | 99020981 |
| 8 | 11/01/1994 | WD | Warranty Deed | PETERSON, PATRICIA L | STUART, TODD D | | | $130,000.00 | 44703 | 94024026 |
| 9 | 10/01/1990 | OTHER | Other - Misc. Documents | PETERSON, CLARENCE L | PETERSON, PATRICIA L | | | $0.00 | 63918 | 0 |
| 10 | 01/01/1900 | OTHER | Other - Misc. Documents | Unknown | PETERSON, CLARENCE L | | | $0.00 | 0 | 0 |
Payout Agreement
| No payout information available.. |