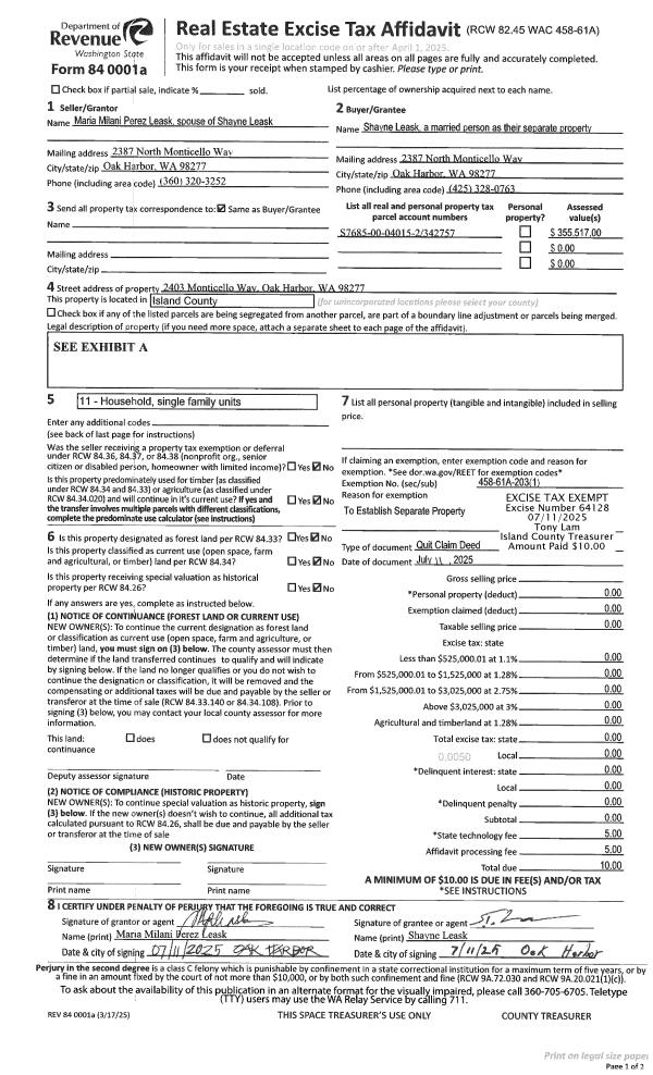
Property
Account |
| Property ID: | 342757 | Abbreviated Legal Description: | PATTONS HILLCREST SWLY 50' LOT 15 & NELY 50' LOT 16 BLK 4 |
| Geographic ID: | S7685-00-04015-2 | Agent Code: | |
| Type: | Real | | |
| Tax Area: | 110 - APPRAISER-OH Schl Dist, outside OH, improved & 1 acre or less | Land Use Code | 11 |
| Open Space: | N | DFL | N |
| Historic Property: | N | Remodel Property: | N |
| Multi-Family Redevelopment: | N | | |
| Township: | | Section: | |
| Range: | |
Location |
| Address: | 2403 MONTICELLO WAY OAK HARBOR, WA 98277 | Mapsco: | |
| Neighborhood: | Cycle 1 | Map ID: | 97 |
| Neighborhood CD: | 1 |
Owner |
| Name: | LEASK, SHAYNE | Owner ID: | 317379 |
| Mailing Address: | 2387 NORTH MONTICELLO WAY OAK HARBOR, WA 98277 | % Ownership: | 100.0000000000% |
| | | Exemptions: | |
Taxes and Assessment Details
Values
| (+) Improvement Homesite Value: | + | $0 | |
| (+) Improvement Non-Homesite Value: | + | $145,517 | |
| (+) Land Homesite Value: | + | $0 | |
| (+) Land Non-Homesite Value: | + | $210,000 | |
| (+) Curr Use (HS): | + | $0 | $0 |
| (+) Curr Use (NHS): | + | $0 | $0 |
| | | -------------------------- | |
| (=) Market Value: | = | $355,517 | |
| (–) Productivity Loss: | – | $0 | |
| | | -------------------------- | |
| (=) Subtotal: | = | $355,517 | |
| (+) Senior Appraised Value: | + | $0 | |
| (+) Non-Senior Appraised Value: | + | $355,517 | |
| | | -------------------------- | |
| (=) Total Appraised Value: | = | $355,517 | |
| (–) Senior Exemption Loss: | – | $0 | |
| (–) Exemption Loss: | – | $0 | |
| | | -------------------------- | |
| (=) Taxable Value: | = | $355,517 | |
Taxing Jurisdiction
| Owner: | LEASK, SHAYNE | | |
| % Ownership: | 100.0000000000% | | |
| Total Value: | $355,517 | | |
| Tax Area: | 110 - APPRAISER-OH Schl Dist, outside OH, improved & 1 acre or less |
| CF | Conservation Futures | 0.0313996660 | $355,517 | $355,517 | $11.16 | | |
| CEM1 | Cemetery #1 | 0.0040018856 | $355,517 | $355,517 | $1.42 | | |
| FIRE2 | Fire & Rescue Dist #2 N Whidbey GEN | 0.5381486274 | $355,517 | $355,517 | $191.32 | | |
| HOBOND | Hospital BOND | 0.1893405597 | $355,517 | $355,517 | $67.31 | | |
| HOGEN | Hospital GEN | 0.3848777722 | $355,517 | $355,517 | $136.83 | | |
| CE | County Current Expense | 0.3674210519 | $355,517 | $355,517 | $130.62 | | |
| CR | County Roads | 0.4614296361 | $355,517 | $355,517 | $164.05 | | |
| ISLANDEMS | Hospital GEN (EMS) | 0.4952018576 | $355,517 | $355,517 | $176.05 | | |
| LIB | Library Sno-Isle GEN | 0.3039084203 | $355,517 | $355,517 | $108.04 | | |
| NWHIDPRMT | P & R N Whidbey GEN | 0.1990272349 | $355,517 | $355,517 | $70.76 | | |
| SCH201MO | School 201 Enrichment | 2.3851112745 | $355,517 | $355,517 | $847.95 | | |
| ST | State School | 1.4761226122 | $355,517 | $355,517 | $524.79 | | |
| ST2 | State School Part 2 | 0.7953803475 | $355,517 | $355,517 | $282.77 | | |
| | Total Tax Rate: | 7.6313709459 | | | | | |
| | | | | Taxes w/Current Exemptions: | $2,713.07 | | |
| | | | | Taxes w/o Exemptions: | $2,713.07 | | |
Improvement / Building
| Improvement #1: | RESIDENTIAL | State Code: | Y | 936.0 sqft | Value: | $145,517 |
| Bathrooms: | 1 | Bedrooms: | 3 | | Ceiling: | DRYWALL PAINTED | Exterior Wall/Cover: | WOOD SIDING | | Floor Covering: | HARDWOOD/CARP 80-20 | Floor Structure: | WOOD W/SUBFLOOR | | Foundation: | CONCRETE | Heating: | FHA OIL | | Interior Finish: | DRYWALL PAINT | Plumbing Fixture Cnt: | 6 | | Roof Slope: | 4" IN 12" | Roof Structure/Cover: | CJ ASPHALT |
|
| | Type | Description | Class CD | Sub Class CD | Year Built | Area |
| | BAS | BASE/MAIN FLOOR | 3 | 0 | 1957 | 936.0 |
| | AGR | ATTACHED GARAGE | 3 | 0 | 1957 | 348.0 |
Sketch
Property Image
Land
| 1 | 14 | SQ (08001-12000) | 0.2747 | 11968.00 | 0.00 | 0.00 | 1.00 | $210,000 | $0 |
Roll Value History
| 2026 | N/A | N/A | N/A | N/A | N/A |
| 2025 | $145,517 | $210,000 | $0 | $355,517 | $355,517 |
| 2024 | $147,748 | $190,000 | $0 | $337,748 | $337,748 |
| 2023 | $145,517 | $190,000 | $0 | $335,517 | $335,517 |
| 2022 | $133,788 | $180,000 | $0 | $313,788 | $313,788 |
| 2021 | $118,098 | $135,000 | $0 | $253,098 | $253,098 |
| 2020 | $115,388 | $100,000 | $0 | $215,388 | $215,388 |
| 2019 | $82,080 | $150,000 | $0 | $232,080 | $232,080 |
| 2018 | $82,376 | $130,000 | $0 | $212,376 | $212,376 |
| 2017 | $68,646 | $110,000 | $0 | $178,646 | $178,646 |
| 2016 | $69,851 | $90,000 | $0 | $159,851 | $159,851 |
| 2015 | $71,055 | $70,000 | $0 | $141,055 | $141,055 |
| 2014 | $72,260 | $55,000 | $0 | $127,260 | $127,260 |
| 2013 | $73,463 | $55,000 | $0 | $128,463 | $128,463 |
| 2012 | $74,668 | $60,000 | $0 | $134,668 | $134,668 |
| 2011 | $75,960 | $50,000 | $0 | $125,960 | $125,960 |
| 2010 | $82,197 | $50,000 | $0 | $132,197 | $132,197 |
| 2009 | $84,754 | $92,000 | $0 | $176,754 | $176,754 |
| 2008 | $86,013 | $98,000 | $0 | $184,013 | $184,013 |
| 2007 | $87,273 | $98,000 | $0 | $185,273 | $185,273 |
Deed and Sales History
| 1 | 07/11/2025 | QCD | Quit Claim Deed | LEASK, PEREZ MARIA MILANI | LEASK, SHAYNE | | | $0.00 | 64128 | 4588130 |
| 2 | 07/09/2025 | WD | Warranty Deed | GONZALES, SUSAN L | LEASK, SHAYNE | | | $298,800.00 | 64127 | 4588129 |
| 3 | 02/15/2006 | 5 | DNU - Marriage License/Name Change | TOMMILA, SUSAN L | GONZALES, SUSAN L | | | $0.00 | 70828 | 0 |
| 4 | 10/01/1997 | QCD | Quit Claim Deed | TIGHE, JOYCE A | TOMMILA, SUSAN L | | | $92,000.00 | 73659 | 97017435 |
| 5 | 01/01/1983 | QCD | Quit Claim Deed | TIGHE, JOYCE A | TIGHE, JOYCE A | | | $0.00 | 30257 | 405406 |
| 6 | 01/01/1900 | OTHER | Other - Misc. Documents | Unknown | TIGHE, JOYCE A | | | $0.00 | 0 | 0 |
Payout Agreement
| No payout information available.. |