Property
Account |
| Property ID: | 343275 | Abbreviated Legal Description: | PATTONS HILLCREST PT LOT 9 BLK 8 DESC: BG SECR SD LOT 9 N15*W150' ALG ELN LOT 9 S65*W141.40' TO WLN LOT 9 S33*E150' ALG WLN LOT 9 TO SECR LOT 9 NELY 95 .38' ALG SLN LOT 9 TPB |
| Geographic ID: | S7685-00-08009-2 | Agent Code: | |
| Type: | Real | | |
| Tax Area: | 110 - APPRAISER-OH Schl Dist, outside OH, improved & 1 acre or less | Land Use Code | 11 |
| Open Space: | N | DFL | N |
| Historic Property: | N | Remodel Property: | N |
| Multi-Family Redevelopment: | N | | |
| Township: | | Section: | |
| Range: | |
Location |
| Address: | 2415 LOERLAND LN OAK HARBOR, WA 98277 | Mapsco: | |
| Neighborhood: | Cycle 1 | Map ID: | 249 |
| Neighborhood CD: | 1 |
Owner |
| Name: | BARSTOW, JONATHAN RUSSELL | Owner ID: | 299208 |
| Mailing Address: | 2415 LOERLAND LN OAK HARBOR, WA 98277 | % Ownership: | 100.0000000000% |
| | | Exemptions: | |
Taxes and Assessment Details
Values
| (+) Improvement Homesite Value: | + | $0 | |
| (+) Improvement Non-Homesite Value: | + | $206,776 | |
| (+) Land Homesite Value: | + | $0 | |
| (+) Land Non-Homesite Value: | + | $210,000 | |
| (+) Curr Use (HS): | + | $0 | $0 |
| (+) Curr Use (NHS): | + | $0 | $0 |
| | | -------------------------- | |
| (=) Market Value: | = | $416,776 | |
| (–) Productivity Loss: | – | $0 | |
| | | -------------------------- | |
| (=) Subtotal: | = | $416,776 | |
| (+) Senior Appraised Value: | + | $0 | |
| (+) Non-Senior Appraised Value: | + | $416,776 | |
| | | -------------------------- | |
| (=) Total Appraised Value: | = | $416,776 | |
| (–) Senior Exemption Loss: | – | $0 | |
| (–) Exemption Loss: | – | $0 | |
| | | -------------------------- | |
| (=) Taxable Value: | = | $416,776 | |
Taxing Jurisdiction
| Owner: | BARSTOW, JONATHAN RUSSELL | | |
| % Ownership: | 100.0000000000% | | |
| Total Value: | $416,776 | | |
| Tax Area: | 110 - APPRAISER-OH Schl Dist, outside OH, improved & 1 acre or less |
| CF | Conservation Futures | 0.0313996660 | $416,776 | $416,776 | $13.09 | | |
| CEM1 | Cemetery #1 | 0.0040018856 | $416,776 | $416,776 | $1.67 | | |
| FIRE2 | Fire & Rescue Dist #2 N Whidbey GEN | 0.5381486274 | $416,776 | $416,776 | $224.29 | | |
| HOBOND | Hospital BOND | 0.1893405597 | $416,776 | $416,776 | $78.91 | | |
| HOGEN | Hospital GEN | 0.3848777722 | $416,776 | $416,776 | $160.41 | | |
| CE | County Current Expense | 0.3674210519 | $416,776 | $416,776 | $153.13 | | |
| CR | County Roads | 0.4614296361 | $416,776 | $416,776 | $192.31 | | |
| ISLANDEMS | Hospital GEN (EMS) | 0.4952018576 | $416,776 | $416,776 | $206.39 | | |
| LIB | Library Sno-Isle GEN | 0.3039084203 | $416,776 | $416,776 | $126.66 | | |
| NWHIDPRMT | P & R N Whidbey GEN | 0.1990272349 | $416,776 | $416,776 | $82.95 | | |
| SCH201MO | School 201 Enrichment | 2.3851112745 | $416,776 | $416,776 | $994.06 | | |
| ST | State School | 1.4761226122 | $416,776 | $416,776 | $615.21 | | |
| ST2 | State School Part 2 | 0.7953803475 | $416,776 | $416,776 | $331.50 | | |
| | Total Tax Rate: | 7.6313709459 | | | | | |
| | | | | Taxes w/Current Exemptions: | $3,180.58 | | |
| | | | | Taxes w/o Exemptions: | $3,180.58 | | |
Improvement / Building
| Improvement #1: | RESIDENTIAL | State Code: | Y | 1228.0 sqft | Value: | $206,776 |
| Bathrooms: | 1 | Bedrooms: | 3 | | Ceiling: | DRYWALL PAINTED | Exterior Wall/Cover: | WOOD SIDING | | Floor Covering: | HARDWOOD/CARP 80-20 | Floor Structure: | WOOD W/SUBFLOOR | | Foundation: | CONCRETE BLOCKS | Heating: | FHA OIL | | Interior Finish: | DRYWALL PAINT | Plumbing Fixture Cnt: | 6 | | Roof Slope: | 4" IN 12" | Roof Structure/Cover: | CJ ASPHALT |
|
| | Type | Description | Class CD | Sub Class CD | Year Built | Area |
| | BAS | BASE/MAIN FLOOR | 3 | 0 | 1957 | 1228.0 |
| | OP1 | OPEN PORCH SLAB | 3 | 0 | 1957 | 254.0 |
| | AGR | ATTACHED GARAGE | 3 | 0 | 1957 | 480.0 |
Sketch
Property Image
Land
| 1 | 15 | SQ (12001-21780) | 0.0000 | 0.00 | 0.00 | 0.00 | 1.00 | $210,000 | $0 |
Roll Value History
| 2026 | N/A | N/A | N/A | N/A | N/A |
| 2025 | $206,776 | $210,000 | $0 | $416,776 | $416,776 |
| 2024 | $209,524 | $190,000 | $0 | $399,524 | $399,524 |
| 2023 | $201,280 | $190,000 | $0 | $391,280 | $391,280 |
| 2022 | $184,749 | $180,000 | $0 | $364,749 | $364,749 |
| 2021 | $162,807 | $135,000 | $0 | $297,807 | $297,807 |
| 2020 | $159,112 | $100,000 | $0 | $259,112 | $259,112 |
| 2019 | $114,576 | $150,000 | $0 | $264,576 | $264,576 |
| 2018 | $114,947 | $130,000 | $0 | $244,947 | $244,947 |
| 2017 | $115,689 | $110,000 | $0 | $225,689 | $225,689 |
| 2016 | $117,172 | $90,000 | $0 | $207,172 | $207,172 |
| 2015 | $82,856 | $70,000 | $0 | $152,856 | $152,856 |
| 2014 | $84,363 | $55,000 | $0 | $139,363 | $139,363 |
| 2013 | $91,896 | $55,000 | $0 | $146,896 | $146,896 |
| 2012 | $93,403 | $60,000 | $0 | $153,403 | $153,403 |
| 2011 | $90,870 | $50,000 | $0 | $140,870 | $140,870 |
| 2010 | $99,808 | $50,000 | $0 | $149,808 | $149,808 |
| 2009 | $104,405 | $92,000 | $0 | $196,405 | $196,405 |
| 2008 | $106,089 | $98,000 | $0 | $204,089 | $204,089 |
| 2007 | $107,747 | $98,000 | $0 | $205,747 | $205,747 |
Deed and Sales History
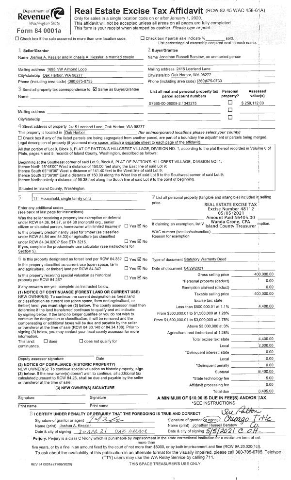
| 1 | 04/29/2021 | WD | Warranty Deed | KESSLER, JOSHUA A | BARSTOW, JONATHAN RUSSELL | | | $400,000.00 | 48112 | 4518322 |
| 2 | 10/08/2015 | WD | Warranty Deed | MOORE, JEFFREY | KESSLER, JOSHUA A | | | $217,000.00 | 21746 | 4387774 |
| 3 | 11/14/2005 | WD | Warranty Deed | SCHLEIPMAN, DAVID M | MOORE, JEFFREY | | | $225,000.00 | 55829 | 4154606 |
| 4 | 05/25/2004 | WD | Warranty Deed | THOMAS, TRUDY A | SCHLEIPMAN, DAVID M | | | $156,000.00 | 42192 | 4101625 |
| 5 | 11/17/2003 | TRUSTEED | Trustee's Deed | AFFAIRS OF WASHINGTON, SECRETA | THOMAS, TRUDY A | | | $120,000.00 | 35285 | 4083881 |
| 6 | 03/21/2003 | TRUSTEED | Trustee's Deed | MORTGAGE, PRINCIPAL RESIDENTIA | AFFAIRS OF WASHINGTON, SECRETA | | | $98,706.00 | 31178 | 4052206 |
| 7 | 03/21/2003 | TRUSTEED | Trustee's Deed | HARWELL, DAVID S | MORTGAGE, PRINCIPAL RESIDENTIA | | | $98,706.00 | 31177 | 4052205 |
| 8 | 05/01/1994 | WD | Warranty Deed | KARLINSEY, BILLY E | HARWELL, DAVID S | | | $103,000.00 | 41994 | 94011647 |
| 9 | 01/01/1900 | OTHER | Other - Misc. Documents | Unknown | KARLINSEY, BILLY E | | | $0.00 | 0 | 0 |
Payout Agreement
| No payout information available.. |