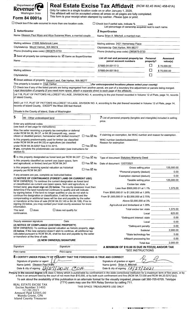
Property
Account |
| Property ID: | 345004 | Abbreviated Legal Description: | P HILLCR 4 LOT 117 EX W200' |
| Geographic ID: | S7685-04-00117-3 | Agent Code: | |
| Type: | Real | | |
| Tax Area: | 119 - APPRAISER-OH Schl Dist, outside OH, vacant & 50 acres or less | Land Use Code | 99 |
| Open Space: | N | DFL | N |
| Historic Property: | N | Remodel Property: | N |
| Multi-Family Redevelopment: | N | | |
| Township: | | Section: | |
| Range: | |
Location |
| Address: | | Mapsco: | |
| Neighborhood: | Cycle 1 | Map ID: | 249 |
| Neighborhood CD: | 1 |
Owner |
| Name: | MITCHELL, BRIAN A | Owner ID: | 302491 |
| Mailing Address: | 2421 HEMENWAY PL OAK HARBOR, WA 98277 | % Ownership: | 100.0000000000% |
| | | Exemptions: | |
Taxes and Assessment Details
Values
| (+) Improvement Homesite Value: | + | $0 | |
| (+) Improvement Non-Homesite Value: | + | $0 | |
| (+) Land Homesite Value: | + | $0 | |
| (+) Land Non-Homesite Value: | + | $80,000 | |
| (+) Curr Use (HS): | + | $0 | $0 |
| (+) Curr Use (NHS): | + | $0 | $0 |
| | | -------------------------- | |
| (=) Market Value: | = | $80,000 | |
| (–) Productivity Loss: | – | $0 | |
| | | -------------------------- | |
| (=) Subtotal: | = | $80,000 | |
| (+) Senior Appraised Value: | + | $0 | |
| (+) Non-Senior Appraised Value: | + | $80,000 | |
| | | -------------------------- | |
| (=) Total Appraised Value: | = | $80,000 | |
| (–) Senior Exemption Loss: | – | $0 | |
| (–) Exemption Loss: | – | $0 | |
| | | -------------------------- | |
| (=) Taxable Value: | = | $80,000 | |
Taxing Jurisdiction
| Owner: | MITCHELL, BRIAN A | | |
| % Ownership: | 100.0000000000% | | |
| Total Value: | $80,000 | | |
| Tax Area: | 119 - APPRAISER-OH Schl Dist, outside OH, vacant & 50 acres or less |
| CF | Conservation Futures | 0.0313996660 | $80,000 | $80,000 | $2.51 | | |
| CEM1 | Cemetery #1 | 0.0040018856 | $80,000 | $80,000 | $0.32 | | |
| HOBOND | Hospital BOND | 0.1893405597 | $80,000 | $80,000 | $15.15 | | |
| HOGEN | Hospital GEN | 0.3848777722 | $80,000 | $80,000 | $30.79 | | |
| CE | County Current Expense | 0.3674210519 | $80,000 | $80,000 | $29.39 | | |
| CR | County Roads | 0.4614296361 | $80,000 | $80,000 | $36.91 | | |
| ISLANDEMS | Hospital GEN (EMS) | 0.4952018576 | $80,000 | $80,000 | $39.62 | | |
| LIB | Library Sno-Isle GEN | 0.3039084203 | $80,000 | $80,000 | $24.31 | | |
| NWHIDPRMT | P & R N Whidbey GEN | 0.1990272349 | $80,000 | $80,000 | $15.92 | | |
| SCH201MO | School 201 Enrichment | 2.3851112745 | $80,000 | $80,000 | $190.81 | | |
| ST | State School | 1.4761226122 | $80,000 | $80,000 | $118.09 | | |
| ST2 | State School Part 2 | 0.7953803475 | $80,000 | $80,000 | $63.63 | | |
| | Total Tax Rate: | 7.0932223185 | | | | | |
| | | | | Taxes w/Current Exemptions: | $567.45 | | |
| | | | | Taxes w/o Exemptions: | $567.45 | | |
Improvement / Building
Sketch
| No sketches available for this property. |
Property Image
Land
| 1 | 15 | SQ (12001-21780) | 0.0000 | 0.00 | 0.00 | 0.00 | 1.00 | $80,000 | $0 |
Roll Value History
| 2026 | N/A | N/A | N/A | N/A | N/A |
| 2025 | $0 | $80,000 | $0 | $80,000 | $80,000 |
| 2024 | $0 | $80,000 | $0 | $80,000 | $80,000 |
| 2023 | $0 | $80,000 | $0 | $80,000 | $80,000 |
| 2022 | $0 | $80,000 | $0 | $80,000 | $80,000 |
| 2021 | $0 | $70,000 | $0 | $70,000 | $70,000 |
| 2020 | $0 | $60,000 | $0 | $60,000 | $60,000 |
| 2019 | $0 | $60,000 | $0 | $60,000 | $60,000 |
| 2018 | $0 | $60,000 | $0 | $60,000 | $60,000 |
| 2017 | $0 | $55,000 | $0 | $55,000 | $55,000 |
| 2016 | $0 | $55,000 | $0 | $55,000 | $55,000 |
| 2015 | $0 | $55,000 | $0 | $55,000 | $55,000 |
| 2014 | $0 | $55,000 | $0 | $55,000 | $55,000 |
| 2013 | $0 | $55,000 | $0 | $55,000 | $55,000 |
| 2012 | $0 | $45,000 | $0 | $45,000 | $45,000 |
| 2011 | $0 | $45,000 | $0 | $45,000 | $45,000 |
| 2010 | $0 | $45,000 | $0 | $45,000 | $45,000 |
| 2009 | $0 | $70,000 | $0 | $70,000 | $70,000 |
| 2008 | $0 | $75,000 | $0 | $75,000 | $75,000 |
| 2007 | $0 | $0 | $0 | $75,000 | $75,000 |
Deed and Sales History
| 1 | 12/27/2021 | WD | Warranty Deed | WARE, GLEASON PAUL | MITCHELL, BRIAN A | | | $125,000.00 | 51493 | 4536766 |
|   | |
| 2 | 12/15/2021 | WD | Warranty Deed | RHF PROPERTIES, LLC. | WARE, GLEASON PAUL | | | $60,000.00 | 51430 | 4536438 |
|   | |
| 3 | 12/07/2014 | QCD | Quit Claim Deed | FISCHER, JANICE J | RHF PROPERTIES, LLC. | | | $0.00 | 18190 | 4371619 |
| 4 | 07/23/2003 | WD | Warranty Deed | FISCHER, JANICE J | FISCHER, JANICE J | | | $0.00 | 40579 | 4091568 |
| 5 | 07/23/2003 | PRD | Personal Representatives Deed | FISCHER, JANICE J | FISCHER, JANICE J | | | $0.00 | 35089 | 4082313 |
| 6 | 07/23/2003 | PRD | Personal Representatives Deed | FISCHER, JANICE J | FISCHER, JANICE J | | | $0.00 | 34877 | 4080896 |
| 7 | 07/23/2003 | PRD | Personal Representatives Deed | FISCHER, RONALD H | FISCHER, JANICE J | | | $0.00 | 33183 | 4068716 |
| 8 | 09/01/1979 | WD | Warranty Deed | PATTON, LLOYD B | FISCHER, RONALD H | | | $3,230.00 | 94616 | 0 |
| 9 | 01/01/1900 | OTHER | Other - Misc. Documents | Unknown | PATTON, LLOYD B | | | $0.00 | 0 | 0 |
Payout Agreement
| No payout information available.. |