Property
Account |
| Property ID: | 345610 | Abbreviated Legal Description: | PATTONS PASTURE LOT 9 BLK C |
| Geographic ID: | S7690-00-0C009-0 | Agent Code: | |
| Type: | Real | | |
| Tax Area: | 100 - APPRAISER-OH Schl Dist, in OH | Land Use Code | 11 |
| Open Space: | N | DFL | N |
| Historic Property: | N | Remodel Property: | N |
| Multi-Family Redevelopment: | N | | |
| Township: | | Section: | |
| Range: | |
Location |
| Address: | 650 SE 2ND PLACE OAK HARBOR, WA 98277 | Mapsco: | |
| Neighborhood: | Cycle 1 | Map ID: | 256 |
| Neighborhood CD: | 1 |
Owner |
| Name: | BAIRD, VICTORIA B | Owner ID: | 308522 |
| Mailing Address: | 316 SOUTHEAST PIONEER WAY #574 OAK HARBOR, WA 98277 | % Ownership: | 100.0000000000% |
| | | Exemptions: | |
Taxes and Assessment Details
Values
| (+) Improvement Homesite Value: | + | $0 | |
| (+) Improvement Non-Homesite Value: | + | $177,363 | |
| (+) Land Homesite Value: | + | $0 | |
| (+) Land Non-Homesite Value: | + | $180,000 | |
| (+) Curr Use (HS): | + | $0 | $0 |
| (+) Curr Use (NHS): | + | $0 | $0 |
| | | -------------------------- | |
| (=) Market Value: | = | $357,363 | |
| (–) Productivity Loss: | – | $0 | |
| | | -------------------------- | |
| (=) Subtotal: | = | $357,363 | |
| (+) Senior Appraised Value: | + | $0 | |
| (+) Non-Senior Appraised Value: | + | $357,363 | |
| | | -------------------------- | |
| (=) Total Appraised Value: | = | $357,363 | |
| (–) Senior Exemption Loss: | – | $0 | |
| (–) Exemption Loss: | – | $0 | |
| | | -------------------------- | |
| (=) Taxable Value: | = | $357,363 | |
Taxing Jurisdiction
| Owner: | BAIRD, VICTORIA B | | |
| % Ownership: | 100.0000000000% | | |
| Total Value: | $357,363 | | |
| Tax Area: | 100 - APPRAISER-OH Schl Dist, in OH |
| CF | Conservation Futures | 0.0313996660 | $357,363 | $357,363 | $11.22 | | |
| CEM1 | Cemetery #1 | 0.0040018856 | $357,363 | $357,363 | $1.43 | | |
| COH | City of Oak Harbor | 2.3090730572 | $357,363 | $357,363 | $825.18 | | |
| OAKBOND | City of Oak Harbor BOND | 0.1902260131 | $357,363 | $357,363 | $67.98 | | |
| HOBOND | Hospital BOND | 0.1893405597 | $357,363 | $357,363 | $67.66 | | |
| HOGEN | Hospital GEN | 0.3848777722 | $357,363 | $357,363 | $137.54 | | |
| CE | County Current Expense | 0.3674210519 | $357,363 | $357,363 | $131.30 | | |
| ISLANDEMS | Hospital GEN (EMS) | 0.4952018576 | $357,363 | $357,363 | $176.97 | | |
| LIB | Library Sno-Isle GEN | 0.3039084203 | $357,363 | $357,363 | $108.61 | | |
| NWHIDPRMT | P & R N Whidbey GEN | 0.1990272349 | $357,363 | $357,363 | $71.12 | | |
| SCH201MO | School 201 Enrichment | 2.3851112745 | $357,363 | $357,363 | $852.35 | | |
| ST | State School | 1.4761226122 | $357,363 | $357,363 | $527.51 | | |
| ST2 | State School Part 2 | 0.7953803475 | $357,363 | $357,363 | $284.24 | | |
| | Total Tax Rate: | 9.1310917527 | | | | | |
| | | | | Taxes w/Current Exemptions: | $3,263.11 | | |
| | | | | Taxes w/o Exemptions: | $3,263.11 | | |
Improvement / Building
| Improvement #1: | RESIDENTIAL | State Code: | Y | 768.0 sqft | Value: | $177,363 |
| Bathrooms: | 1 | Bedrooms: | 2 | | Ceiling: | DRYWALL PAINTED | Cooling: | HEAT PUMP/CONV/V | | Exterior Wall/Cover: | VINYL | Floor Covering: | VINYL/HARDWOOD 20-80 | | Floor Structure: | WOOD W/SUBFLOOR | Foundation: | CONCRETE BLOCKS | | Interior Finish: | DRYWALL PAINT | Plumbing Fixture Cnt: | 6 | | Roof Slope: | 4" IN 12" | Roof Structure/Cover: | CJ ASPHALT |
|
| | Type | Description | Class CD | Sub Class CD | Year Built | Area |
| | BAS | BASE/MAIN FLOOR | 3 | 0 | 1968 | 768.0 |
| | AGR | ATTACHED GARAGE | 3 | 0 | 1968 | 288.0 |
| | ENP | ENCLOSED PORCH | 3 | 0 | 1968 | 49.0 |
| | ENP | ENCLOSED PORCH | 3 | 0 | 1968 | 110.5 |
| | OP4 | OPEN PORCH W/CEILING-ROOF | 3 | 0 | 1968 | 63.8 |
Sketch
Property Image
Land
| 1 | 14 | SQ (08001-12000) | 0.2043 | 8899.31 | 0.00 | 0.00 | 1.00 | $180,000 | $0 |
Roll Value History
| 2026 | N/A | N/A | N/A | N/A | N/A |
| 2025 | $177,363 | $180,000 | $0 | $357,363 | $357,363 |
| 2024 | $162,101 | $170,000 | $0 | $332,101 | $332,101 |
| 2023 | $155,886 | $170,000 | $0 | $325,886 | $325,886 |
| 2022 | $138,281 | $160,000 | $0 | $298,281 | $298,281 |
| 2021 | $121,816 | $125,000 | $0 | $246,816 | $246,816 |
| 2020 | $118,580 | $100,000 | $0 | $218,580 | $218,580 |
| 2019 | $83,047 | $140,000 | $0 | $223,047 | $223,047 |
| 2018 | $83,309 | $125,000 | $0 | $208,309 | $208,309 |
| 2017 | $73,400 | $110,000 | $0 | $183,400 | $183,400 |
| 2016 | $74,479 | $90,000 | $0 | $164,479 | $164,479 |
| 2015 | $75,559 | $70,000 | $0 | $145,559 | $145,559 |
| 2014 | $76,638 | $55,000 | $0 | $131,638 | $131,638 |
| 2013 | $77,718 | $55,000 | $0 | $132,718 | $132,718 |
| 2012 | $78,797 | $60,000 | $0 | $138,797 | $138,797 |
| 2011 | $80,622 | $50,000 | $0 | $130,622 | $130,622 |
| 2010 | $84,237 | $50,000 | $0 | $134,237 | $134,237 |
| 2009 | $87,935 | $60,000 | $0 | $147,935 | $147,935 |
| 2008 | $87,935 | $72,000 | $0 | $159,935 | $159,935 |
| 2007 | $89,053 | $72,000 | $0 | $161,053 | $161,053 |
Deed and Sales History
| 1 | 04/21/2023 | WD | Warranty Deed | KOSTIELNEY, JOHN | BAIRD, VICTORIA B | | | $374,000.00 | 56539 | 4559305 |
| 2 | 03/20/2023 | QCD | Quit Claim Deed | HOFFMAN, CAROL | KOSTIELNEY, JOHN | | | $0.00 | 56306 | 4558402 |
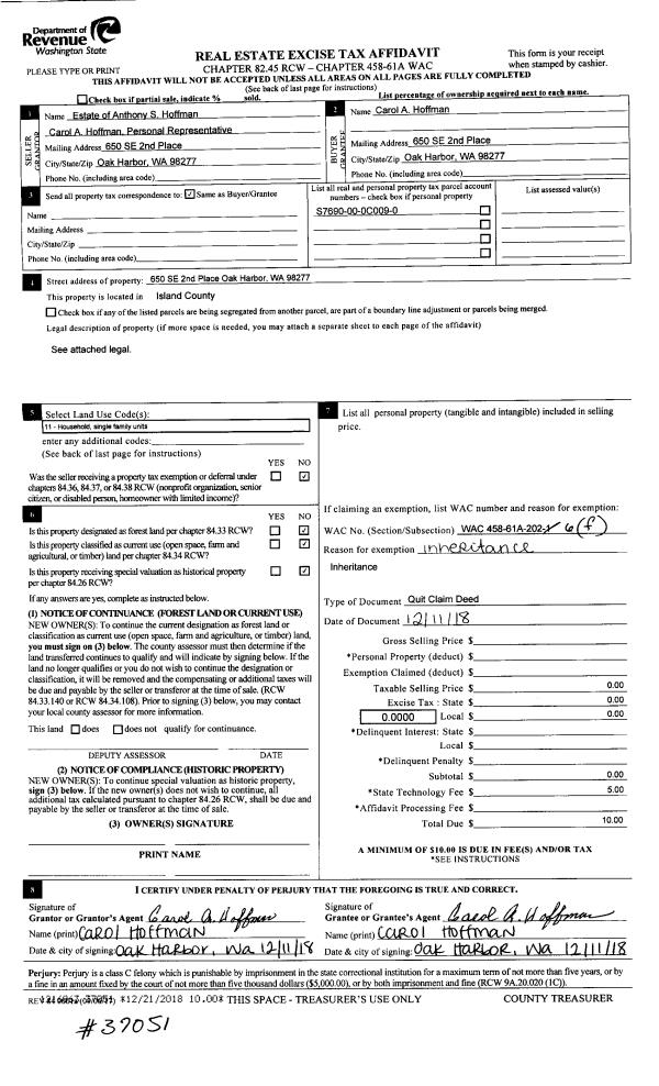
| 3 | 12/11/2018 | QCD | Quit Claim Deed | HOFFMAN, ANTHONY S / CAROL A | HOFFMAN, CAROL | | | $0.00 | 37051 | 4456903 |
| 4 | 08/01/1991 | WD | Warranty Deed | CLAPP, BERNADINE & | HOFFMAN, ANTHONY S | | | $63,000.00 | 12759 | 91011755 |
| 5 | 09/01/1978 | CD | DNU - Correction Deed | CLAPP, BERNADINE & | CLAPP, BERNADINE & | | | $0.00 | 84915 | 340823 |
| 6 | 09/01/1978 | CD | DNU - Correction Deed | Unknown | CLAPP, BERNADINE & | | | $0.00 | 84915 | 340823 |
Payout Agreement
| No payout information available.. |