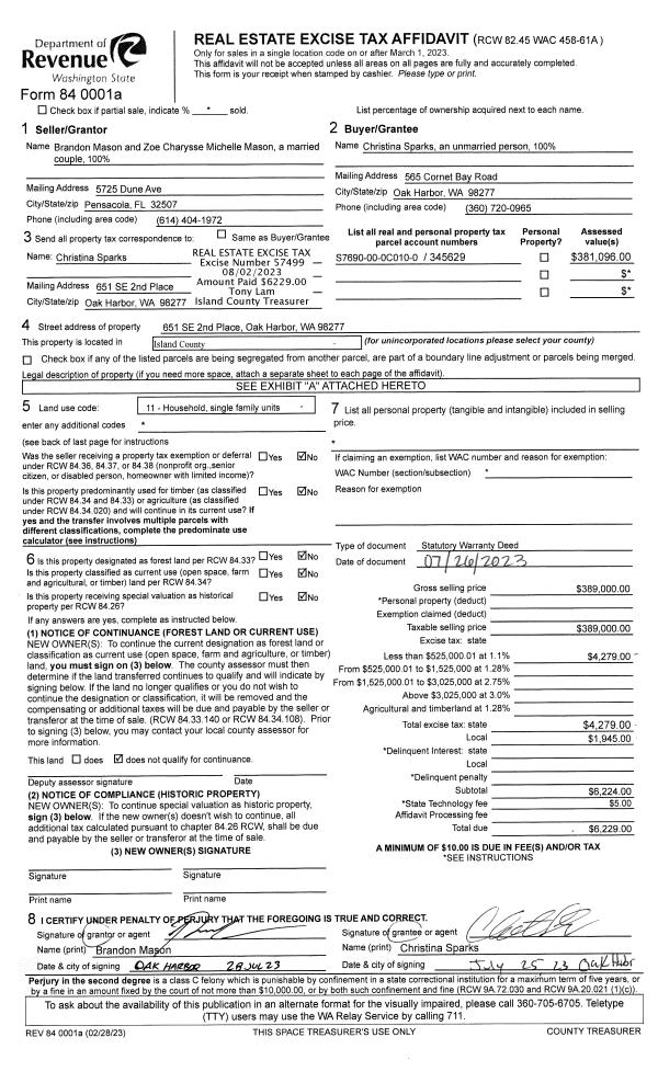
Property
Account |
| Property ID: | 345629 | Abbreviated Legal Description: | PATTONS PASTURE LOT 10 BLK C |
| Geographic ID: | S7690-00-0C010-0 | Agent Code: | |
| Type: | Real | | |
| Tax Area: | 100 - APPRAISER-OH Schl Dist, in OH | Land Use Code | 11 |
| Open Space: | N | DFL | N |
| Historic Property: | N | Remodel Property: | N |
| Multi-Family Redevelopment: | N | | |
| Township: | | Section: | |
| Range: | |
Location |
| Address: | 651 SE 2ND PLACE OAK HARBOR, WA 98277 | Mapsco: | |
| Neighborhood: | Cycle 1 | Map ID: | 88 |
| Neighborhood CD: | 1 |
Owner |
| Name: | SPARKS, CHRISTINA | Owner ID: | 309514 |
| Mailing Address: | 651 SE 2ND PLACE OAK HARBOR, WA 98277 | % Ownership: | 100.0000000000% |
| | | Exemptions: | |
Taxes and Assessment Details
Values
| (+) Improvement Homesite Value: | + | $0 | |
| (+) Improvement Non-Homesite Value: | + | $201,927 | |
| (+) Land Homesite Value: | + | $0 | |
| (+) Land Non-Homesite Value: | + | $180,000 | |
| (+) Curr Use (HS): | + | $0 | $0 |
| (+) Curr Use (NHS): | + | $0 | $0 |
| | | -------------------------- | |
| (=) Market Value: | = | $381,927 | |
| (–) Productivity Loss: | – | $0 | |
| | | -------------------------- | |
| (=) Subtotal: | = | $381,927 | |
| (+) Senior Appraised Value: | + | $0 | |
| (+) Non-Senior Appraised Value: | + | $381,927 | |
| | | -------------------------- | |
| (=) Total Appraised Value: | = | $381,927 | |
| (–) Senior Exemption Loss: | – | $0 | |
| (–) Exemption Loss: | – | $0 | |
| | | -------------------------- | |
| (=) Taxable Value: | = | $381,927 | |
Taxing Jurisdiction
| Owner: | SPARKS, CHRISTINA | | |
| % Ownership: | 100.0000000000% | | |
| Total Value: | $381,927 | | |
| Tax Area: | 100 - APPRAISER-OH Schl Dist, in OH |
| CF | Conservation Futures | 0.0313996660 | $381,927 | $381,927 | $11.99 | | |
| CEM1 | Cemetery #1 | 0.0040018856 | $381,927 | $381,927 | $1.53 | | |
| COH | City of Oak Harbor | 2.3090730572 | $381,927 | $381,927 | $881.90 | | |
| OAKBOND | City of Oak Harbor BOND | 0.1902260131 | $381,927 | $381,927 | $72.65 | | |
| HOBOND | Hospital BOND | 0.1893405597 | $381,927 | $381,927 | $72.31 | | |
| HOGEN | Hospital GEN | 0.3848777722 | $381,927 | $381,927 | $147.00 | | |
| CE | County Current Expense | 0.3674210519 | $381,927 | $381,927 | $140.33 | | |
| ISLANDEMS | Hospital GEN (EMS) | 0.4952018576 | $381,927 | $381,927 | $189.13 | | |
| LIB | Library Sno-Isle GEN | 0.3039084203 | $381,927 | $381,927 | $116.07 | | |
| NWHIDPRMT | P & R N Whidbey GEN | 0.1990272349 | $381,927 | $381,927 | $76.01 | | |
| SCH201MO | School 201 Enrichment | 2.3851112745 | $381,927 | $381,927 | $910.94 | | |
| ST | State School | 1.4761226122 | $381,927 | $381,927 | $563.77 | | |
| ST2 | State School Part 2 | 0.7953803475 | $381,927 | $381,927 | $303.78 | | |
| | Total Tax Rate: | 9.1310917527 | | | | | |
| | | | | Taxes w/Current Exemptions: | $3,487.41 | | |
| | | | | Taxes w/o Exemptions: | $3,487.41 | | |
Improvement / Building
| Improvement #1: | RESIDENTIAL | State Code: | Y | 1064.0 sqft | Value: | $201,927 |
| Bathrooms: | 1 | Bedrooms: | 3 | | Ceiling: | DRYWALL PAINTED | Exterior Wall/Cover: | CEMENT FIBER | | Floor Covering: | CERAMIC TILE/CPT 40-60 | Floor Structure: | SLAB ABOVE GRADE | | Foundation: | CONCRETE | Heating: | BASEBOARD ELECTRIC | | Interior Finish: | DRYWALL PAINT | Plumbing Fixture Cnt: | 6 | | Roof Slope: | 4" IN 12" | Roof Structure/Cover: | CJ ASPHALT |
|
| | Type | Description | Class CD | Sub Class CD | Year Built | Area |
| | BAS | BASE/MAIN FLOOR | 3 | 0 | 1950 | 1064.0 |
| | OP1 | OPEN PORCH SLAB | 3 | 0 | 1950 | 168.0 |
| | OP4 | OPEN PORCH W/CEILING-ROOF | 3 | 0 | 1950 | 24.0 |
| | AGR | ATTACHED GARAGE | 3 | 0 | 1950 | 196.0 |
Sketch
Property Image
Land
| 1 | 13 | SQ (06001-08000) | 0.0000 | 0.00 | 0.00 | 0.00 | 1.00 | $180,000 | $0 |
Roll Value History
| 2026 | N/A | N/A | N/A | N/A | N/A |
| 2025 | $201,927 | $180,000 | $0 | $381,927 | $381,927 |
| 2024 | $208,560 | $170,000 | $0 | $378,560 | $378,560 |
| 2023 | $211,096 | $170,000 | $0 | $381,096 | $381,096 |
| 2022 | $193,451 | $160,000 | $0 | $353,451 | $353,451 |
| 2021 | $170,211 | $120,000 | $0 | $290,211 | $290,211 |
| 2020 | $146,365 | $100,000 | $0 | $246,365 | $246,365 |
| 2019 | $105,398 | $140,000 | $0 | $245,398 | $245,398 |
| 2018 | $105,721 | $125,000 | $0 | $230,721 | $230,721 |
| 2017 | $92,552 | $110,000 | $0 | $202,552 | $202,552 |
| 2016 | $93,874 | $90,000 | $0 | $183,874 | $183,874 |
| 2015 | $95,196 | $70,000 | $0 | $165,196 | $165,196 |
| 2014 | $96,519 | $55,000 | $0 | $151,519 | $151,519 |
| 2013 | $97,840 | $55,000 | $0 | $152,840 | $152,840 |
| 2012 | $99,164 | $60,000 | $0 | $159,164 | $159,164 |
| 2011 | $96,307 | $50,000 | $0 | $146,307 | $146,307 |
| 2010 | $100,286 | $50,000 | $0 | $150,286 | $150,286 |
| 2009 | $104,731 | $60,000 | $0 | $164,731 | $164,731 |
| 2008 | $106,101 | $72,000 | $0 | $178,101 | $178,101 |
| 2007 | $107,471 | $72,000 | $0 | $179,471 | $179,471 |
Deed and Sales History
| 1 | 07/26/2023 | WD | Warranty Deed | MASON, BRANDON | SPARKS, CHRISTINA | | | $389,000.00 | 57499 | 4562990 |
| 2 | 01/29/2021 | WD | Warranty Deed | ISAACSON, BLAKE THOMAS | MASON, BRANDON | | | $312,000.00 | 46969 | 4511132 |
| 3 | 07/27/2010 | WD | Warranty Deed | UNITED STATES OF AMERICA | ISAACSON, BLAKE THOMAS | | | | 2251 | 4280672 |
| 4 | 08/18/2010 | WD | Warranty Deed | HUNT, TROY M | UNITED STATES OF AMERICA | | | $150,500.00 | 2250 | 4280671 |
| 5 | 08/09/2005 | WD | Warranty Deed | CHAMBERS, BRANDON L | HUNT, TROY M | | | $169,650.00 | 53958 | 4143941 |
| 6 | 01/01/1900 | OTHER | Other - Misc. Documents | RUTHERSG, S | CHAMBERS, BRANDON L | | | $0.00 | 0 | 0 |
| 7 | 01/01/1900 | REC | Real Estate Contract | Unknown | RUTHERSG, S | | | $0.00 | 0 | 1 |
Payout Agreement
| No payout information available.. |