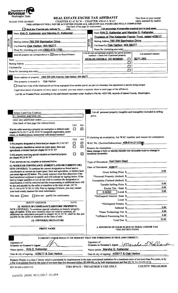
Property
Account |
| Property ID: | 34625 | Abbreviated Legal Description: | 72 - W330' OF S660' OF SE NE EX S300' OF W150' EX RD |
| Geographic ID: | R13312-307-4180 | Agent Code: | |
| Type: | Real | | |
| Tax Area: | 119 - APPRAISER-OH Schl Dist, outside OH, vacant & 50 acres or less | Land Use Code | 91 |
| Open Space: | N | DFL | N |
| Historic Property: | N | Remodel Property: | N |
| Multi-Family Redevelopment: | N | | |
| Township: | 33 | Section: | 12 |
| Range: | R1 |
Location |
| Address: | 84 W HENNI RD OAK HARBOR, WA 98277 | Mapsco: | |
| Neighborhood: | Cycle 6 | Map ID: | 207 |
| Neighborhood CD: | 6 |
Owner |
| Name: | WILLIAM AND LORI HARMES LIVING TRUST | Owner ID: | 318997 |
| Mailing Address: | WILLIAM A HARMES TTEE LORI J HARMES TTEE 15221 97TH AVE E PUYALLUP, WA 98375 | % Ownership: | 100.0000000000% |
| | | Exemptions: | |
Taxes and Assessment Details
Values
| (+) Improvement Homesite Value: | + | N/A | |
| (+) Improvement Non-Homesite Value: | + | N/A | |
| (+) Land Homesite Value: | + | N/A | |
| (+) Land Non-Homesite Value: | + | N/A | Ag / Timber Use Value |
| (+) Curr Use (HS): | + | N/A | N/A |
| (+) Curr Use (NHS): | + | N/A | N/A |
| | | -------------------------- | |
| (=) Market Value: | = | N/A | |
| (–) Productivity Loss: | – | N/A | |
| | | -------------------------- | |
| (=) Subtotal: | = | N/A | |
| (+) Senior Appraised Value: | + | N/A | |
| (+) Non-Senior Appraised Value: | + | N/A | |
| | | -------------------------- | |
| (=) Total Appraised Value: | = | N/A | |
| (–) Senior Exemption Loss: | – | N/A | |
| (–) Exemption Loss: | – | N/A | |
| | | -------------------------- | |
| (=) Taxable Value: | = | N/A | |
Taxing Jurisdiction
| Owner: | WILLIAM AND LORI HARMES LIVING TRUST | | |
| % Ownership: | 100.0000000000% | | |
| Total Value: | N/A | | |
| Tax Area: | 119 - APPRAISER-OH Schl Dist, outside OH, vacant & 50 acres or less |
| CF | Conservation Futures | N/A | N/A | N/A | N/A | | |
| WCD | Whidbey Conservation District | N/A | N/A | N/A | N/A | | |
| CEM1 | Cemetery #1 | N/A | N/A | N/A | N/A | | |
| HOBOND | Hospital BOND | N/A | N/A | N/A | N/A | | |
| HOGEN | Hospital GEN | N/A | N/A | N/A | N/A | | |
| CE | County Current Expense | N/A | N/A | N/A | N/A | | |
| CR | County Roads | N/A | N/A | N/A | N/A | | |
| ISLANDEMS | Hospital GEN (EMS) | N/A | N/A | N/A | N/A | | |
| LIB | Library Sno-Isle GEN | N/A | N/A | N/A | N/A | | |
| NWHIDPRMT | P & R N Whidbey GEN | N/A | N/A | N/A | N/A | | |
| SCH201MO | School 201 Enrichment | N/A | N/A | N/A | N/A | | |
| ST | State School | N/A | N/A | N/A | N/A | | |
| ST2 | State School Part 2 | N/A | N/A | N/A | N/A | | |
| | Total Tax Rate: | N/A | | | | | |
| | | | | Taxes w/Current Exemptions: | N/A | | |
| | | | | Taxes w/o Exemptions: | N/A | | |
Improvement / Building
Sketch
| No sketches available for this property. |
Property Image
Land
| 1 | 32 | AC (03.01-09.99) | 3.8900 | 0.00 | 0.00 | 0.00 | 1.00 | N/A | N/A |
Roll Value History
| 2026 | N/A | N/A | N/A | N/A | N/A |
| 2025 | $0 | $170,000 | $0 | $170,000 | $170,000 |
| 2024 | $0 | $150,000 | $0 | $150,000 | $150,000 |
| 2023 | $0 | $140,000 | $0 | $140,000 | $140,000 |
| 2022 | $0 | $100,000 | $0 | $100,000 | $100,000 |
| 2021 | $0 | $90,000 | $0 | $90,000 | $90,000 |
| 2020 | $0 | $90,000 | $0 | $90,000 | $90,000 |
| 2019 | $0 | $90,000 | $0 | $90,000 | $90,000 |
| 2018 | $0 | $90,000 | $0 | $90,000 | $90,000 |
| 2017 | $0 | $80,000 | $0 | $80,000 | $80,000 |
| 2016 | $0 | $80,000 | $0 | $80,000 | $80,000 |
| 2015 | $0 | $70,000 | $0 | $70,000 | $70,000 |
| 2014 | $0 | $70,000 | $0 | $70,000 | $70,000 |
| 2013 | $0 | $70,000 | $0 | $70,000 | $70,000 |
| 2012 | $0 | $62,800 | $0 | $62,800 | $62,800 |
| 2011 | $0 | $62,800 | $0 | $62,800 | $62,800 |
| 2010 | $0 | $62,800 | $0 | $62,800 | $62,800 |
| 2009 | $0 | $74,470 | $0 | $74,470 | $74,470 |
| 2008 | $0 | $82,250 | $0 | $82,250 | $82,250 |
| 2007 | $0 | $67,800 | $0 | $67,800 | $67,800 |
Deed and Sales History
| 1 | 11/04/2025 | QCD | Quit Claim Deed | HARMES, WILLIAM A | WILLIAM AND LORI HARMES LIVING TRUST | | | $0.00 | 65548 | 4593878 |
| 2 | 03/12/2021 | WD | Warranty Deed | NOEL, CATHERINE E | HARMES, WILLIAM A | | | $98,000.00 | 47407 | 4514014 |
| 3 | 04/19/2017 | WD | Warranty Deed | MENDELSOHN, JEFFREY M | NOEL, CATHERINE E | | | $387,000.00 | 29010 | 4412353 |
|   | |
| 4 | 03/13/2017 | QCD | Quit Claim Deed | MENDELSOHN, JEFFREY M | MENDELSOHN, JEFFREY M | | | $0.00 | 29009 | 4421352 |
| 5 | 05/22/2012 | QCD | Quit Claim Deed | MENDELSOHN, JEFFREY M | MENDELSOHN, JEFFREY M | | | $0.00 | 7722 | 4315836 |
| 6 | 02/01/1995 | WD | Warranty Deed | NORTON, HELEN L | MENDELSOHN, JEFFREY M | | | $28,000.00 | 50661 | 95003136 |
| 7 | 10/01/1986 | OTHER | Other - Misc. Documents | NORTON, IVEN | NORTON, HELEN L | | | $0.00 | 61916 | 0 |
| 8 | 01/01/1900 | OTHER | Other - Misc. Documents | Unknown | NORTON, IVEN | | | $0.00 | 0 | 0 |
Payout Agreement
| No payout information available.. |