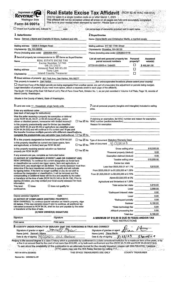
Property
Account |
| Property ID: | 348430 | Abbreviated Legal Description: | PENN CV PK S110' OF E120' OF LOT 3 |
| Geographic ID: | S7730-00-00003-4 | Agent Code: | |
| Type: | Real | | |
| Tax Area: | 120 - APPRAISER-OH Schl Dist, Special Dist, improved & 1 acre or less | Land Use Code | 11 |
| Open Space: | N | DFL | N |
| Historic Property: | N | Remodel Property: | N |
| Multi-Family Redevelopment: | N | | |
| Township: | | Section: | |
| Range: | |
Location |
| Address: | 851 PARK AVE OAK HARBOR, WA 98277 | Mapsco: | |
| Neighborhood: | Cycle 2 | Map ID: | 153 |
| Neighborhood CD: | 2 |
Owner |
| Name: | MARTIN, DIANA | Owner ID: | 309789 |
| Mailing Address: | CHRISTOPHER MARTIN 817 NE 174TH ST SHORELINE, WA 98155 | % Ownership: | 100.0000000000% |
| | | Exemptions: | |
Taxes and Assessment Details
Values
| (+) Improvement Homesite Value: | + | $0 | |
| (+) Improvement Non-Homesite Value: | + | $307,786 | |
| (+) Land Homesite Value: | + | $0 | |
| (+) Land Non-Homesite Value: | + | $220,000 | |
| (+) Curr Use (HS): | + | $0 | $0 |
| (+) Curr Use (NHS): | + | $0 | $0 |
| | | -------------------------- | |
| (=) Market Value: | = | $527,786 | |
| (–) Productivity Loss: | – | $0 | |
| | | -------------------------- | |
| (=) Subtotal: | = | $527,786 | |
| (+) Senior Appraised Value: | + | $0 | |
| (+) Non-Senior Appraised Value: | + | $527,786 | |
| | | -------------------------- | |
| (=) Total Appraised Value: | = | $527,786 | |
| (–) Senior Exemption Loss: | – | $0 | |
| (–) Exemption Loss: | – | $0 | |
| | | -------------------------- | |
| (=) Taxable Value: | = | $527,786 | |
Taxing Jurisdiction
| Owner: | MARTIN, DIANA | | |
| % Ownership: | 100.0000000000% | | |
| Total Value: | $527,786 | | |
| Tax Area: | 120 - APPRAISER-OH Schl Dist, Special Dist, improved & 1 acre or less |
| CF | Conservation Futures | 0.0313996660 | $527,786 | $527,786 | $16.57 | | |
| CEM1 | Cemetery #1 | 0.0040018856 | $527,786 | $527,786 | $2.11 | | |
| FIRE2 | Fire & Rescue Dist #2 N Whidbey GEN | 0.5381486274 | $527,786 | $527,786 | $284.03 | | |
| HOBOND | Hospital BOND | 0.1893405597 | $527,786 | $527,786 | $99.93 | | |
| HOGEN | Hospital GEN | 0.3848777722 | $527,786 | $527,786 | $203.13 | | |
| CE | County Current Expense | 0.3674210519 | $527,786 | $527,786 | $193.92 | | |
| CR | County Roads | 0.4614296361 | $527,786 | $527,786 | $243.54 | | |
| ISLANDEMS | Hospital GEN (EMS) | 0.4952018576 | $527,786 | $527,786 | $261.36 | | |
| LIB | Library Sno-Isle GEN | 0.3039084203 | $527,786 | $527,786 | $160.40 | | |
| NWHIDPRMT | P & R N Whidbey GEN | 0.1990272349 | $527,786 | $527,786 | $105.04 | | |
| SCH201MO | School 201 Enrichment | 2.3851112745 | $527,786 | $527,786 | $1,258.83 | | |
| ST | State School | 1.4761226122 | $527,786 | $527,786 | $779.08 | | |
| ST2 | State School Part 2 | 0.7953803475 | $527,786 | $527,786 | $419.79 | | |
| | Total Tax Rate: | 7.6313709459 | | | | | |
| | | | | Taxes w/Current Exemptions: | $4,027.73 | | |
| | | | | Taxes w/o Exemptions: | $4,027.73 | | |
Improvement / Building
| Improvement #1: | RESIDENTIAL | State Code: | Y | 2125.0 sqft | Value: | $307,786 |
| Bathrooms: | 2 | Bedrooms: | 2 | | Ceiling: | DRYWALL PAINTED | Cooling: | HEAT PUMP/CONV/V | | Exterior Wall/Cover: | SHINGLE | Floor Covering: | HARDWOOD/CARP 20-80 | | Floor Structure: | WOOD W/SUBFLOOR | Foundation: | CONCRETE | | Interior Finish: | DRYWALL PAINT | Plumbing Fixture Cnt: | 9 | | Roof Slope: | 6" IN 12" | Roof Structure/Cover: | CJ ASPHALT |
|
| | Type | Description | Class CD | Sub Class CD | Year Built | Area |
| | BAS | BASE/MAIN FLOOR | 3 | 0 | 1948 | 1745.0 |
| | OWP | OPEN WOOD PORCH W/STEPS | 3 | 0 | 1948 | 36.0 |
| | OWP | OPEN WOOD PORCH W/STEPS | 3 | 0 | 1948 | 544.0 |
| | OWR | OPEN WOOD PORCH W/STEPS/ROOF | 3 | 0 | 1948 | 137.5 |
| | OWC | OPEN WOOD PORCH W/STEPS/ROOF/C | 3 | 0 | 1948 | 154.0 |
| | UPH | HALF STORY | 3 | 0 | 1948 | 380.0 |
| | UTY | STORAGE/UTILITY | 3 | 0 | 1948 | 240.0 |
Sketch
Property Image
Land
| 1 | 15 | SQ (12001-21780) | 0.3100 | 13503.60 | 0.00 | 0.00 | 1.00 | $220,000 | $0 |
Roll Value History
| 2026 | N/A | N/A | N/A | N/A | N/A |
| 2025 | $307,786 | $220,000 | $0 | $527,786 | $527,786 |
| 2024 | $312,107 | $220,000 | $0 | $532,107 | $532,107 |
| 2023 | $262,691 | $230,000 | $0 | $492,691 | $492,691 |
| 2022 | $241,397 | $220,000 | $0 | $461,397 | $461,397 |
| 2021 | $212,988 | $160,000 | $0 | $372,988 | $372,988 |
| 2020 | $208,367 | $120,000 | $0 | $328,367 | $328,367 |
| 2019 | $159,135 | $150,000 | $0 | $309,135 | $309,135 |
| 2018 | $81,616 | $130,000 | $0 | $211,616 | $211,616 |
| 2017 | $82,651 | $115,000 | $0 | $197,651 | $197,651 |
| 2016 | $84,818 | $60,000 | $0 | $144,818 | $144,818 |
| 2015 | $86,984 | $60,000 | $0 | $146,984 | $146,984 |
| 2014 | $89,150 | $60,000 | $0 | $149,150 | $149,150 |
| 2013 | $91,314 | $55,000 | $0 | $146,314 | $146,314 |
| 2012 | $93,908 | $84,150 | $0 | $178,058 | $178,058 |
| 2011 | $96,048 | $99,000 | $0 | $195,048 | $195,048 |
| 2010 | $116,939 | $99,000 | $0 | $215,939 | $215,939 |
| 2009 | $120,764 | $115,000 | $0 | $235,764 | $235,764 |
| 2008 | $123,403 | $135,000 | $0 | $258,403 | $258,403 |
| 2007 | $126,048 | $96,000 | $0 | $222,048 | $222,048 |
Deed and Sales History
| 1 | 08/15/2023 | WD | Warranty Deed | MEYERS, SAMUEL J | MARTIN, DIANA | | | $510,000.00 | 57740 | 4563919 |
| 2 | 07/24/2014 | SPWARDEED | Special Warranty Deed | FEDERAL NATIONAL MORTGAGE ASSOCIATION | MEYERS, SAMUEL J | | | $183,790.00 | 16176 | 4362990 |
| 3 | 04/09/2014 | TRUSTEED | Trustee's Deed | MAGGIO, ANTHONY | FEDERAL NATIONAL MORTGAGE ASSOCIATION | | | $211,656.00 | 14885 | 4357853 |
| 4 | 05/31/2005 | WD | Warranty Deed | POSEY, CHARLES D | MAGGIO, ANTHONY | | | $236,300.00 | 52526 | 4136122 |
| 5 | 06/01/1990 | DECREE | Divorce Decree/Legal Separation | POSEY, CHARLES | POSEY, CHARLES D | | | $0.00 | 3667 | 90011907 |
| 6 | 03/01/1979 | WD | Warranty Deed | RE, | POSEY, CHARLES | | | $32,500.00 | 91526 | 350277 |
| 7 | 01/01/1979 | OTHER | Other - Misc. Documents | Unknown | RE, | | | $0.00 | 905060 | 3468760 |
Payout Agreement
| No payout information available.. |