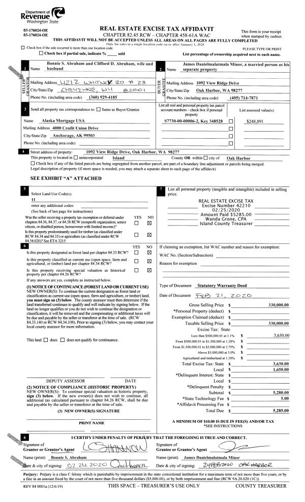
Property
Account |
| Property ID: | 348528 | Abbreviated Legal Description: | PENN CV PK E70' OF W160' OF LOT 6 & PT OF W90' OF LOT 6 DESC: BG NECR OF W90' OF LOT 6 N89*W1.20' S02*W110.44' S03*E69.82' TO SECR OF W90' OF LOT 6 & NLN OF VIEW RIDGE DR N180' TO NECR OF W90' OF LOT 6 TPB |
| Geographic ID: | S7730-00-00006-2 | Agent Code: | |
| Type: | Real | | |
| Tax Area: | 120 - APPRAISER-OH Schl Dist, Special Dist, improved & 1 acre or less | Land Use Code | 11 |
| Open Space: | N | DFL | N |
| Historic Property: | N | Remodel Property: | N |
| Multi-Family Redevelopment: | N | | |
| Township: | | Section: | |
| Range: | |
Location |
| Address: | 1092 VIEW RIDGE DR OAK HARBOR, WA 98277 | Mapsco: | |
| Neighborhood: | Cycle 2 | Map ID: | 153 |
| Neighborhood CD: | 2 |
Owner |
| Name: | MINOR, JAMES DANIELMALATMALA | Owner ID: | 293578 |
| Mailing Address: | 1092 VIEW RIDGE DR OAK HARBOR, WA 98277 | % Ownership: | 100.0000000000% |
| | | Exemptions: | |
Taxes and Assessment Details
Values
| (+) Improvement Homesite Value: | + | $0 | |
| (+) Improvement Non-Homesite Value: | + | $185,886 | |
| (+) Land Homesite Value: | + | $0 | |
| (+) Land Non-Homesite Value: | + | $210,000 | |
| (+) Curr Use (HS): | + | $0 | $0 |
| (+) Curr Use (NHS): | + | $0 | $0 |
| | | -------------------------- | |
| (=) Market Value: | = | $395,886 | |
| (–) Productivity Loss: | – | $0 | |
| | | -------------------------- | |
| (=) Subtotal: | = | $395,886 | |
| (+) Senior Appraised Value: | + | $0 | |
| (+) Non-Senior Appraised Value: | + | $395,886 | |
| | | -------------------------- | |
| (=) Total Appraised Value: | = | $395,886 | |
| (–) Senior Exemption Loss: | – | $0 | |
| (–) Exemption Loss: | – | $0 | |
| | | -------------------------- | |
| (=) Taxable Value: | = | $395,886 | |
Taxing Jurisdiction
| Owner: | MINOR, JAMES DANIELMALATMALA | | |
| % Ownership: | 100.0000000000% | | |
| Total Value: | $395,886 | | |
| Tax Area: | 120 - APPRAISER-OH Schl Dist, Special Dist, improved & 1 acre or less |
| CF | Conservation Futures | 0.0313996660 | $395,886 | $395,886 | $12.43 | | |
| CEM1 | Cemetery #1 | 0.0040018856 | $395,886 | $395,886 | $1.58 | | |
| FIRE2 | Fire & Rescue Dist #2 N Whidbey GEN | 0.5381486274 | $395,886 | $395,886 | $213.05 | | |
| HOBOND | Hospital BOND | 0.1893405597 | $395,886 | $395,886 | $74.96 | | |
| HOGEN | Hospital GEN | 0.3848777722 | $395,886 | $395,886 | $152.37 | | |
| CE | County Current Expense | 0.3674210519 | $395,886 | $395,886 | $145.46 | | |
| CR | County Roads | 0.4614296361 | $395,886 | $395,886 | $182.67 | | |
| ISLANDEMS | Hospital GEN (EMS) | 0.4952018576 | $395,886 | $395,886 | $196.04 | | |
| LIB | Library Sno-Isle GEN | 0.3039084203 | $395,886 | $395,886 | $120.31 | | |
| NWHIDPRMT | P & R N Whidbey GEN | 0.1990272349 | $395,886 | $395,886 | $78.79 | | |
| SCH201MO | School 201 Enrichment | 2.3851112745 | $395,886 | $395,886 | $944.23 | | |
| ST | State School | 1.4761226122 | $395,886 | $395,886 | $584.38 | | |
| ST2 | State School Part 2 | 0.7953803475 | $395,886 | $395,886 | $314.88 | | |
| | Total Tax Rate: | 7.6313709459 | | | | | |
| | | | | Taxes w/Current Exemptions: | $3,021.15 | | |
| | | | | Taxes w/o Exemptions: | $3,021.15 | | |
Improvement / Building
| Improvement #1: | RESIDENTIAL | State Code: | Y | 1379.8 sqft | Value: | $185,886 |
| Bathrooms: | 1.75 | Bedrooms: | 3 | | Ceiling: | DRY WALL SPRAYED | Cooling: | HEAT PUMP/CONV/V | | Exterior Wall/Cover: | VINYL | Floor Covering: | CARPET/VINYL 80-20 | | Floor Structure: | SLAB ON GRADE | Foundation: | SLAB | | Interior Finish: | DRYWALL PAINT | Plumbing Fixture Cnt: | 9 | | Roof Slope: | 5" IN 12" | Roof Structure/Cover: | CJ ASPHALT |
|
| | Type | Description | Class CD | Sub Class CD | Year Built | Area |
| | BAS | BASE/MAIN FLOOR | 3 | 0 | 1952 | 1379.8 |
| | DGR | DETACHED GARAGE | 3 | 0 | 1952 | 576.0 |
Sketch
| No sketches available for this property. |
Property Image
Land
| 1 | 15 | SQ (12001-21780) | 0.2900 | 12632.40 | 0.00 | 0.00 | 1.00 | $210,000 | $0 |
Roll Value History
| 2026 | N/A | N/A | N/A | N/A | N/A |
| 2025 | $185,886 | $210,000 | $0 | $395,886 | $395,886 |
| 2024 | $171,845 | $210,000 | $0 | $381,845 | $381,845 |
| 2023 | $174,697 | $220,000 | $0 | $394,697 | $394,697 |
| 2022 | $160,777 | $180,000 | $0 | $340,777 | $340,777 |
| 2021 | $142,052 | $140,000 | $0 | $282,052 | $282,052 |
| 2020 | $138,751 | $120,000 | $0 | $258,751 | $258,751 |
| 2019 | $98,891 | $150,000 | $0 | $248,891 | $248,891 |
| 2018 | $94,639 | $130,000 | $0 | $224,639 | $224,639 |
| 2017 | $94,948 | $115,000 | $0 | $209,948 | $209,948 |
| 2016 | $96,479 | $60,000 | $0 | $156,479 | $156,479 |
| 2015 | $98,011 | $60,000 | $0 | $158,011 | $158,011 |
| 2014 | $99,542 | $60,000 | $0 | $159,542 | $159,542 |
| 2013 | $101,073 | $55,000 | $0 | $156,073 | $156,073 |
| 2012 | $109,669 | $60,350 | $0 | $170,019 | $170,019 |
| 2011 | $110,982 | $71,000 | $0 | $181,982 | $181,982 |
| 2010 | $97,843 | $71,000 | $0 | $168,843 | $168,843 |
| 2009 | $101,728 | $90,000 | $0 | $191,728 | $191,728 |
| 2008 | $103,330 | $110,000 | $0 | $213,330 | $213,330 |
| 2007 | $84,788 | $96,000 | $0 | $180,788 | $180,788 |
Deed and Sales History
| 1 | 02/21/2020 | QCD | Quit Claim Deed | MINOR, BRITTANY | MINOR, JAMES DANIELMALATMALA | | | $0.00 | 42211 | 4481919 |
| 2 | 02/21/2020 | WD | Warranty Deed | ABRAHAM, CLIFFORD D | MINOR, JAMES DANIELMALATMALA | | | $330,000.00 | 42210 | 4481918 |
| 3 | 01/22/2004 | DECREE | Divorce Decree/Legal Separation | ABRAHAM, CLIFFORD D | ABRAHAM, CLIFFORD D | | | $0.00 | 40290 | 4089515 |
| 4 | 12/16/2003 | 5 | DNU - Marriage License/Name Change | ABRAHAM, CLIFFORD D | ABRAHAM, CLIFFORD D | | | $0.00 | 40291 | 4089816 |
| 5 | 07/01/1993 | WD | Warranty Deed | TUTTLE, CHARLES | ABRAHAM, CLIFFORD D | | | $86,000.00 | 32899 | 93014894 |
| 6 | 12/01/1991 | DECREE | Divorce Decree/Legal Separation | TUTTLE, CHARLES | TUTTLE, CHARLES | | | $0.00 | 20072 | 92000243 |
| 7 | 06/01/1981 | WD | Warranty Deed | SIMS, JAMES E | TUTTLE, CHARLES | | | $47,383.00 | 12168 | 385418 |
| 8 | 01/01/1980 | QCD | Quit Claim Deed | SIMS, JAMES E | SIMS, JAMES E | | | $0.00 | 10914 | 381117 |
| 9 | 04/01/1979 | OTHER | Other - Misc. Documents | Unknown | SIMS, JAMES E | | | $43,500.00 | 91772 | 351046 |
Payout Agreement
| No payout information available.. |