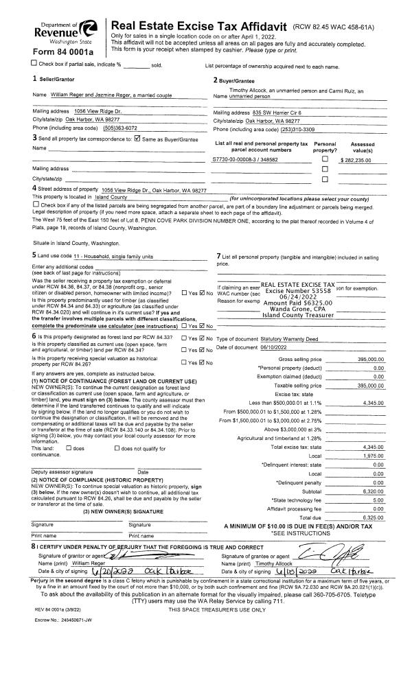
Property
Account |
| Property ID: | 348582 | Abbreviated Legal Description: | PENN CV PK W75' OF E150' LOT 8 |
| Geographic ID: | S7730-00-00008-3 | Agent Code: | |
| Type: | Real | | |
| Tax Area: | 120 - APPRAISER-OH Schl Dist, Special Dist, improved & 1 acre or less | Land Use Code | 11 |
| Open Space: | N | DFL | N |
| Historic Property: | N | Remodel Property: | N |
| Multi-Family Redevelopment: | N | | |
| Township: | | Section: | |
| Range: | |
Location |
| Address: | 1056 VIEW RIDGE DR OAK HARBOR, WA 98277 | Mapsco: | |
| Neighborhood: | Cycle 2 | Map ID: | 153 |
| Neighborhood CD: | 2 |
Owner |
| Name: | ALLCOCK, TIMOTHY | Owner ID: | 304848 |
| Mailing Address: | CARMI RUIZ 1056 VIEW RIDGE DR OAK HARBOR, WA 98277 | % Ownership: | 100.0000000000% |
| | | Exemptions: | |
Taxes and Assessment Details
Values
| (+) Improvement Homesite Value: | + | $0 | |
| (+) Improvement Non-Homesite Value: | + | $194,177 | |
| (+) Land Homesite Value: | + | $0 | |
| (+) Land Non-Homesite Value: | + | $210,000 | |
| (+) Curr Use (HS): | + | $0 | $0 |
| (+) Curr Use (NHS): | + | $0 | $0 |
| | | -------------------------- | |
| (=) Market Value: | = | $404,177 | |
| (–) Productivity Loss: | – | $0 | |
| | | -------------------------- | |
| (=) Subtotal: | = | $404,177 | |
| (+) Senior Appraised Value: | + | $0 | |
| (+) Non-Senior Appraised Value: | + | $404,177 | |
| | | -------------------------- | |
| (=) Total Appraised Value: | = | $404,177 | |
| (–) Senior Exemption Loss: | – | $0 | |
| (–) Exemption Loss: | – | $0 | |
| | | -------------------------- | |
| (=) Taxable Value: | = | $404,177 | |
Taxing Jurisdiction
| Owner: | ALLCOCK, TIMOTHY | | |
| % Ownership: | 100.0000000000% | | |
| Total Value: | $404,177 | | |
| Tax Area: | 120 - APPRAISER-OH Schl Dist, Special Dist, improved & 1 acre or less |
| CF | Conservation Futures | 0.0313996660 | $404,177 | $404,177 | $12.69 | | |
| CEM1 | Cemetery #1 | 0.0040018856 | $404,177 | $404,177 | $1.62 | | |
| FIRE2 | Fire & Rescue Dist #2 N Whidbey GEN | 0.5381486274 | $404,177 | $404,177 | $217.51 | | |
| HOBOND | Hospital BOND | 0.1893405597 | $404,177 | $404,177 | $76.53 | | |
| HOGEN | Hospital GEN | 0.3848777722 | $404,177 | $404,177 | $155.56 | | |
| CE | County Current Expense | 0.3674210519 | $404,177 | $404,177 | $148.50 | | |
| CR | County Roads | 0.4614296361 | $404,177 | $404,177 | $186.50 | | |
| ISLANDEMS | Hospital GEN (EMS) | 0.4952018576 | $404,177 | $404,177 | $200.15 | | |
| LIB | Library Sno-Isle GEN | 0.3039084203 | $404,177 | $404,177 | $122.83 | | |
| NWHIDPRMT | P & R N Whidbey GEN | 0.1990272349 | $404,177 | $404,177 | $80.44 | | |
| SCH201MO | School 201 Enrichment | 2.3851112745 | $404,177 | $404,177 | $964.01 | | |
| ST | State School | 1.4761226122 | $404,177 | $404,177 | $596.61 | | |
| ST2 | State School Part 2 | 0.7953803475 | $404,177 | $404,177 | $321.47 | | |
| | Total Tax Rate: | 7.6313709459 | | | | | |
| | | | | Taxes w/Current Exemptions: | $3,084.42 | | |
| | | | | Taxes w/o Exemptions: | $3,084.42 | | |
Improvement / Building
| Improvement #1: | RESIDENTIAL | State Code: | Y | 1044.0 sqft | Value: | $194,177 |
| Bathrooms: | 1 | Bedrooms: | 2 | | Ceiling: | DRYWALL PAINTED | Cooling: | HEAT PUMP/CONV/V | | Exterior Wall/Cover: | PLY/HARDBOARD T-111 | Floor Covering: | HARDWOOD/CARP 60-40 | | Floor Structure: | WOOD W/SUBFLOOR | Foundation: | CONCRETE | | Interior Finish: | DRYWALL PAINT | Plumbing Fixture Cnt: | 6 | | Roof Slope: | 3" IN 12" | Roof Structure/Cover: | CJ ASPHALT |
|
| | Type | Description | Class CD | Sub Class CD | Year Built | Area |
| | BAS | BASE/MAIN FLOOR | 3 | 0 | 1953 | 1044.0 |
| | OP1 | OPEN PORCH SLAB | 3 | 0 | 1953 | 51.2 |
| | OP4 | OPEN PORCH W/CEILING-ROOF | 3 | 0 | 1953 | 110.0 |
| | AGR | ATTACHED GARAGE | 3 | 0 | 1953 | 286.0 |
Sketch
| No sketches available for this property. |
Property Image
Land
| 1 | 15 | SQ (12001-21780) | 0.3100 | 13503.60 | 0.00 | 0.00 | 1.00 | $210,000 | $0 |
Roll Value History
| 2026 | N/A | N/A | N/A | N/A | N/A |
| 2025 | $194,177 | $210,000 | $0 | $404,177 | $404,177 |
| 2024 | $215,399 | $210,000 | $0 | $425,399 | $425,399 |
| 2023 | $217,840 | $220,000 | $0 | $437,840 | $437,840 |
| 2022 | $161,544 | $180,000 | $0 | $341,544 | $341,544 |
| 2021 | $142,235 | $140,000 | $0 | $282,235 | $282,235 |
| 2020 | $138,589 | $120,000 | $0 | $258,589 | $258,589 |
| 2019 | $98,486 | $150,000 | $0 | $248,486 | $248,486 |
| 2018 | $96,600 | $130,000 | $0 | $226,600 | $226,600 |
| 2017 | $97,192 | $115,000 | $0 | $212,192 | $212,192 |
| 2016 | $94,661 | $60,000 | $0 | $154,661 | $154,661 |
| 2015 | $95,831 | $60,000 | $0 | $155,831 | $155,831 |
| 2014 | $96,999 | $60,000 | $0 | $156,999 | $156,999 |
| 2013 | $98,167 | $55,000 | $0 | $153,167 | $153,167 |
| 2012 | $102,046 | $60,350 | $0 | $162,396 | $162,396 |
| 2011 | $103,247 | $71,000 | $0 | $174,247 | $174,247 |
| 2010 | $105,303 | $71,000 | $0 | $176,303 | $176,303 |
| 2009 | $109,796 | $90,000 | $0 | $199,796 | $199,796 |
| 2008 | $62,701 | $110,000 | $0 | $172,701 | $172,701 |
| 2007 | $63,803 | $96,000 | $0 | $159,803 | $159,803 |
Deed and Sales History
| 1 | 06/10/2022 | WD | Warranty Deed | REGER, WILLIAM | ALLCOCK, TIMOTHY | | | $395,000.00 | 53558 | 4547055 |
| 2 | 01/04/2017 | WD | Warranty Deed | SCHOFIELD, MATTHEW W | REGER, WILLIAM | | | $206,000.00 | 27655 | 4414737 |
| 3 | 09/15/2008 | QCD | Quit Claim Deed | SCHOFIELD, MATTHEW W | SCHOFIELD, MATTHEW W | | | $0.00 | 82471 | 4236963 |
| 4 | 09/04/2007 | WD | Warranty Deed | GEORGE, CLARKE L | SCHOFIELD, MATTHEW W | | | $192,000.00 | 73055 | 4211387 |
| 5 | 05/14/1998 | QCD | Quit Claim Deed | GEORGE, CLARKE L | GEORGE, CLARKE L | | | $0.00 | 81795 | 98009622 |
| 6 | 03/01/1985 | REC | Real Estate Contract | RAINIER, FINANCIAL S | GEORGE, CLARKE L | | | $0.00 | 51006 | 85004225 |
| 7 | 08/01/1984 | TRUSTEED | Trustee's Deed | VETERANS, ADMINISTRATION | RAINIER, FINANCIAL S | | | $0.00 | 42986 | 0 |
| 8 | 08/01/1984 | WD | Warranty Deed | HEAD, GEARY L | VETERANS, ADMINISTRATION | | | $0.00 | 42987 | 0 |
| 9 | 04/01/1983 | WD | Warranty Deed | TULL, CHRISTOPHER P | HEAD, GEARY L | | | $45,000.00 | 30929 | 408238 |
| 10 | 01/01/1982 | CD | DNU - Correction Deed | WALL, DONALD L | TULL, CHRISTOPHER P | | | $1.00 | 20378 | 393214 |
| 11 | 11/01/1981 | EXECUTORD | Executor Deed | TULL, CHRISTOPHER P | WALL, DONALD L | | | $47,000.00 | 13428 | 389822 |
| 12 | 04/01/1980 | TRUSTEED | Trustee's Deed | GEORGE, CLARKE L | TULL, CHRISTOPHER P | | | $30,440.00 | 1455 | 368194 |
| 13 | 01/01/1900 | QCD | Quit Claim Deed | TULLER, RICHARD L | GEORGE, CLARKE L | | | $0.00 | 81795 | 98009622 |
Payout Agreement
| No payout information available.. |