Property
Account |
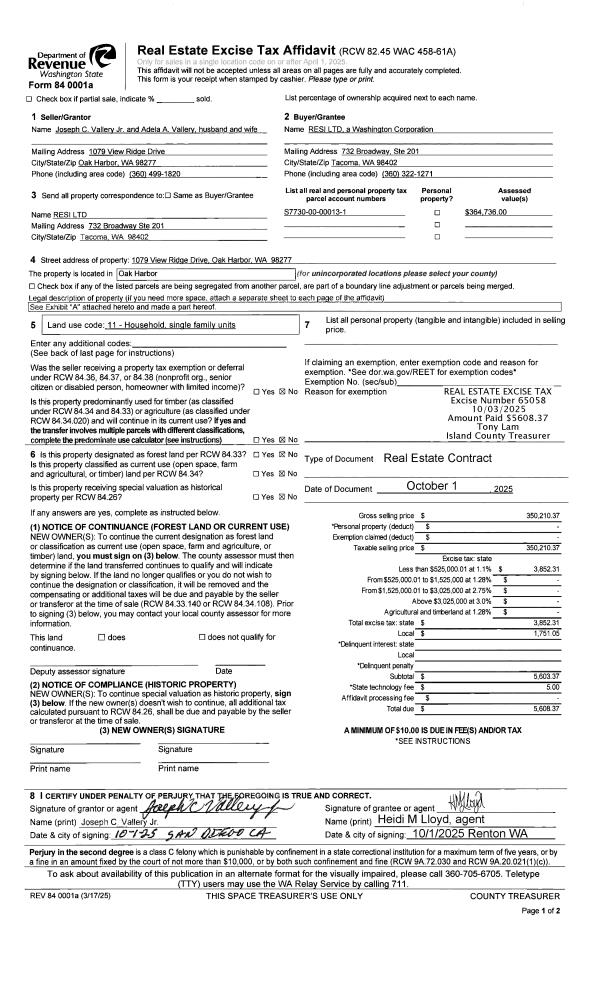
| Property ID: | 348724 | Abbreviated Legal Description: | PENN CV PK W90' OF N110' OF LOT 13 |
| Geographic ID: | S7730-00-00013-1 | Agent Code: | |
| Type: | Real | | |
| Tax Area: | 120 - APPRAISER-OH Schl Dist, Special Dist, improved & 1 acre or less | Land Use Code | 11 |
| Open Space: | N | DFL | N |
| Historic Property: | N | Remodel Property: | N |
| Multi-Family Redevelopment: | N | | |
| Township: | | Section: | |
| Range: | |
Location |
| Address: | 1079 VIEW RIDGE DR OAK HARBOR, WA 98277 | Mapsco: | |
| Neighborhood: | Cycle 2 | Map ID: | 153 |
| Neighborhood CD: | 2 |
Owner |
| Name: | VALLERY, JOSEPH C | Owner ID: | 178245 |
| Mailing Address: | ADELA A VALLERY 14819 CASCADIAN WAY LYNNWOOD, WA 98087-2131 | % Ownership: | 100.0000000000% |
| | | Exemptions: | |
Taxes and Assessment Details
Values
| (+) Improvement Homesite Value: | + | $0 | |
| (+) Improvement Non-Homesite Value: | + | $154,736 | |
| (+) Land Homesite Value: | + | $0 | |
| (+) Land Non-Homesite Value: | + | $210,000 | |
| (+) Curr Use (HS): | + | $0 | $0 |
| (+) Curr Use (NHS): | + | $0 | $0 |
| | | -------------------------- | |
| (=) Market Value: | = | $364,736 | |
| (–) Productivity Loss: | – | $0 | |
| | | -------------------------- | |
| (=) Subtotal: | = | $364,736 | |
| (+) Senior Appraised Value: | + | $0 | |
| (+) Non-Senior Appraised Value: | + | $364,736 | |
| | | -------------------------- | |
| (=) Total Appraised Value: | = | $364,736 | |
| (–) Senior Exemption Loss: | – | $0 | |
| (–) Exemption Loss: | – | $0 | |
| | | -------------------------- | |
| (=) Taxable Value: | = | $364,736 | |
Taxing Jurisdiction
| Owner: | VALLERY, JOSEPH C | | |
| % Ownership: | 100.0000000000% | | |
| Total Value: | $364,736 | | |
| Tax Area: | 120 - APPRAISER-OH Schl Dist, Special Dist, improved & 1 acre or less |
| CF | Conservation Futures | 0.0313996660 | $364,736 | $364,736 | $11.45 | | |
| CEM1 | Cemetery #1 | 0.0040018856 | $364,736 | $364,736 | $1.46 | | |
| FIRE2 | Fire & Rescue Dist #2 N Whidbey GEN | 0.5381486274 | $364,736 | $364,736 | $196.28 | | |
| HOBOND | Hospital BOND | 0.1893405597 | $364,736 | $364,736 | $69.06 | | |
| HOGEN | Hospital GEN | 0.3848777722 | $364,736 | $364,736 | $140.38 | | |
| CE | County Current Expense | 0.3674210519 | $364,736 | $364,736 | $134.01 | | |
| CR | County Roads | 0.4614296361 | $364,736 | $364,736 | $168.30 | | |
| ISLANDEMS | Hospital GEN (EMS) | 0.4952018576 | $364,736 | $364,736 | $180.62 | | |
| LIB | Library Sno-Isle GEN | 0.3039084203 | $364,736 | $364,736 | $110.85 | | |
| NWHIDPRMT | P & R N Whidbey GEN | 0.1990272349 | $364,736 | $364,736 | $72.59 | | |
| SCH201MO | School 201 Enrichment | 2.3851112745 | $364,736 | $364,736 | $869.94 | | |
| ST | State School | 1.4761226122 | $364,736 | $364,736 | $538.40 | | |
| ST2 | State School Part 2 | 0.7953803475 | $364,736 | $364,736 | $290.10 | | |
| | Total Tax Rate: | 7.6313709459 | | | | | |
| | | | | Taxes w/Current Exemptions: | $2,783.44 | | |
| | | | | Taxes w/o Exemptions: | $2,783.44 | | |
Improvement / Building
| Improvement #1: | RESIDENTIAL | State Code: | Y | 1482.0 sqft | Value: | $154,736 |
| Bathrooms: | 1 | Bedrooms: | 3 | | Ceiling: | DRY WALL SPRAYED | Exterior Wall/Cover: | WOOD SIDING | | Floor Covering: | VINYL/HARDWOOD 60-40 | Floor Structure: | WOOD W/SUBFLOOR | | Foundation: | CONCRETE | Heating: | BASEBOARD ELECTRIC | | Interior Finish: | DRYWALL PAINT | Plumbing Fixture Cnt: | 6 | | Roof Slope: | 4" IN 12" | Roof Structure/Cover: | CJ ASPHALT |
|
Sketch
Property Image
Land
| 1 | 14 | SQ (08001-12000) | 0.2300 | 10018.80 | 0.00 | 0.00 | 1.00 | $210,000 | $0 |
Roll Value History
| 2026 | N/A | N/A | N/A | N/A | N/A |
| 2025 | $154,736 | $210,000 | $0 | $364,736 | $364,736 |
| 2024 | $160,732 | $210,000 | $0 | $370,732 | $370,732 |
| 2023 | $163,400 | $220,000 | $0 | $383,400 | $383,400 |
| 2022 | $135,881 | $180,000 | $0 | $315,881 | $315,881 |
| 2021 | $120,259 | $140,000 | $0 | $260,259 | $260,259 |
| 2020 | $118,112 | $120,000 | $0 | $238,112 | $238,112 |
| 2019 | $86,843 | $150,000 | $0 | $236,843 | $236,843 |
| 2018 | $82,079 | $130,000 | $0 | $212,079 | $212,079 |
| 2017 | $82,833 | $115,000 | $0 | $197,833 | $197,833 |
| 2016 | $84,338 | $60,000 | $0 | $144,338 | $144,338 |
| 2015 | $85,845 | $60,000 | $0 | $145,845 | $145,845 |
| 2014 | $87,350 | $60,000 | $0 | $147,350 | $147,350 |
| 2013 | $88,856 | $55,000 | $0 | $143,856 | $143,856 |
| 2012 | $87,351 | $60,350 | $0 | $147,701 | $147,701 |
| 2011 | $88,783 | $71,000 | $0 | $159,783 | $159,783 |
| 2010 | $95,849 | $71,000 | $0 | $166,849 | $166,849 |
| 2009 | $100,248 | $90,000 | $0 | $190,248 | $190,248 |
| 2008 | $101,808 | $110,000 | $0 | $211,808 | $211,808 |
| 2007 | $101,971 | $93,600 | $0 | $195,571 | $195,571 |
Deed and Sales History
| 1 | 10/01/2025 | REC | Real Estate Contract | VALLERY, JOSEPH C | RESI LTD | | | $350,210.00 | 65058 | 4591814 |
| 2 | 09/14/1998 | WD | Warranty Deed | TAYLOR, EDDIE A | VALLERY, JOSEPH C | | | $102,000.00 | 83735 | 98020183 |
| 3 | 03/01/1983 | WD | Warranty Deed | CHISOLM, JOHN M | TAYLOR, EDDIE A | | | $47,950.00 | 30856 | 407925 |
| 4 | 01/01/1900 | OTHER | Other - Misc. Documents | Unknown | VALLERY, JOSEPH C | | | $0.00 | 83735 | 98020183 |
| 5 | 01/01/1900 | OTHER | Other - Misc. Documents | VALLERY, JOSEPH C | CHISOLM, JOHN M | | | $0.00 | 0 | 0 |
Payout Agreement
| No payout information available.. |