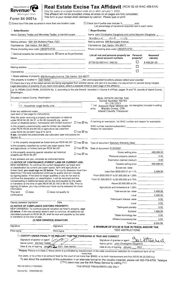
Property
Account |
| Property ID: | 349153 | Abbreviated Legal Description: | PENN CV PK 2 LOT 14 |
| Geographic ID: | S7730-02-00014-0 | Agent Code: | |
| Type: | Real | | |
| Tax Area: | 120 - APPRAISER-OH Schl Dist, Special Dist, improved & 1 acre or less | Land Use Code | 11 |
| Open Space: | N | DFL | N |
| Historic Property: | N | Remodel Property: | N |
| Multi-Family Redevelopment: | N | | |
| Township: | | Section: | |
| Range: | |
Location |
| Address: | 858 BURROUGHS AVE OAK HARBOR, WA 98277 | Mapsco: | |
| Neighborhood: | Cycle 2 | Map ID: | 153 |
| Neighborhood CD: | 2 |
Owner |
| Name: | DAUGHERTY, JOHN CHRISTOPHER | Owner ID: | 297908 |
| Mailing Address: | LATITIA MAUREEN DAUGHERTY 858 BURROUGHS AVE OAK HARBOR, WA 98277 | % Ownership: | 100.0000000000% |
| | | Exemptions: | |
Taxes and Assessment Details
Values
| (+) Improvement Homesite Value: | + | $0 | |
| (+) Improvement Non-Homesite Value: | + | $417,949 | |
| (+) Land Homesite Value: | + | $0 | |
| (+) Land Non-Homesite Value: | + | $220,000 | |
| (+) Curr Use (HS): | + | $0 | $0 |
| (+) Curr Use (NHS): | + | $0 | $0 |
| | | -------------------------- | |
| (=) Market Value: | = | $637,949 | |
| (–) Productivity Loss: | – | $0 | |
| | | -------------------------- | |
| (=) Subtotal: | = | $637,949 | |
| (+) Senior Appraised Value: | + | $0 | |
| (+) Non-Senior Appraised Value: | + | $637,949 | |
| | | -------------------------- | |
| (=) Total Appraised Value: | = | $637,949 | |
| (–) Senior Exemption Loss: | – | $0 | |
| (–) Exemption Loss: | – | $0 | |
| | | -------------------------- | |
| (=) Taxable Value: | = | $637,949 | |
Taxing Jurisdiction
| Owner: | DAUGHERTY, JOHN CHRISTOPHER | | |
| % Ownership: | 100.0000000000% | | |
| Total Value: | $637,949 | | |
| Tax Area: | 120 - APPRAISER-OH Schl Dist, Special Dist, improved & 1 acre or less |
| CF | Conservation Futures | 0.0313996660 | $637,949 | $637,949 | $20.03 | | |
| CEM1 | Cemetery #1 | 0.0040018856 | $637,949 | $637,949 | $2.55 | | |
| FIRE2 | Fire & Rescue Dist #2 N Whidbey GEN | 0.5381486274 | $637,949 | $637,949 | $343.31 | | |
| HOBOND | Hospital BOND | 0.1893405597 | $637,949 | $637,949 | $120.79 | | |
| HOGEN | Hospital GEN | 0.3848777722 | $637,949 | $637,949 | $245.53 | | |
| CE | County Current Expense | 0.3674210519 | $637,949 | $637,949 | $234.40 | | |
| CR | County Roads | 0.4614296361 | $637,949 | $637,949 | $294.37 | | |
| ISLANDEMS | Hospital GEN (EMS) | 0.4952018576 | $637,949 | $637,949 | $315.91 | | |
| LIB | Library Sno-Isle GEN | 0.3039084203 | $637,949 | $637,949 | $193.88 | | |
| NWHIDPRMT | P & R N Whidbey GEN | 0.1990272349 | $637,949 | $637,949 | $126.97 | | |
| SCH201MO | School 201 Enrichment | 2.3851112745 | $637,949 | $637,949 | $1,521.58 | | |
| ST | State School | 1.4761226122 | $637,949 | $637,949 | $941.69 | | |
| ST2 | State School Part 2 | 0.7953803475 | $637,949 | $637,949 | $507.41 | | |
| | Total Tax Rate: | 7.6313709459 | | | | | |
| | | | | Taxes w/Current Exemptions: | $4,868.42 | | |
| | | | | Taxes w/o Exemptions: | $4,868.42 | | |
Improvement / Building
| Improvement #1: | RESIDENTIAL | State Code: | Y | 3699.8 sqft | Value: | $417,949 |
| Bathrooms: | 2.5 | Bedrooms: | 4 | | Ceiling: | DRYWALL PAINTED | Exterior Wall/Cover: | CEMENT FIBER | | Floor Covering: | CARPET/VINYL 80-20 | Floor Structure: | WOOD W/SUBFLOOR | | Foundation: | CONCRETE | Heating: | WALL HEAT ELECTRIC | | Interior Finish: | DRYWALL PAINT | Plumbing Fixture Cnt: | 14 | | Roof Slope: | 4" IN 12" | Roof Structure/Cover: | CJ ASPHALT |
|
| | Type | Description | Class CD | Sub Class CD | Year Built | Area |
| | BAS | BASE/MAIN FLOOR | 3 | 0 | 2007 | 1945.9 |
| | AGR | ATTACHED GARAGE | 3 | 0 | 2007 | 288.0 |
| | OWP | OPEN WOOD PORCH W/STEPS | 3 | 0 | 2007 | 478.8 |
| | OWC | OPEN WOOD PORCH W/STEPS/ROOF/C | 3 | 0 | 2007 | 47.5 |
| | DWN | DOWNSTAIRS LIVING AREA | 3 | 0 | 2007 | 1753.9 |
| | UTY | STORAGE/UTILITY | 3 | 0 | 2007 | 80.0 |
Sketch
| No sketches available for this property. |
Property Image
Land
| 1 | 15 | SQ (12001-21780) | 0.3900 | 16988.40 | 0.00 | 0.00 | 1.00 | $220,000 | $0 |
Roll Value History
| 2026 | N/A | N/A | N/A | N/A | N/A |
| 2025 | $417,949 | $220,000 | $0 | $637,949 | $637,949 |
| 2024 | $418,419 | $220,000 | $0 | $638,419 | $638,419 |
| 2023 | $423,271 | $230,000 | $0 | $653,271 | $653,271 |
| 2022 | $387,649 | $220,000 | $0 | $607,649 | $607,649 |
| 2021 | $340,932 | $160,000 | $0 | $500,932 | $500,932 |
| 2020 | $339,281 | $120,000 | $0 | $459,281 | $459,281 |
| 2019 | $281,149 | $150,000 | $0 | $431,149 | $431,149 |
| 2018 | $275,094 | $130,000 | $0 | $405,094 | $405,094 |
| 2017 | $276,537 | $60,000 | $0 | $336,537 | $336,537 |
| 2016 | $264,647 | $60,000 | $0 | $324,647 | $324,647 |
| 2015 | $267,588 | $60,000 | $0 | $327,588 | $327,588 |
| 2014 | $270,527 | $60,000 | $0 | $330,527 | $330,527 |
| 2013 | $273,467 | $55,000 | $0 | $328,467 | $328,467 |
| 2012 | $280,335 | $84,150 | $0 | $364,485 | $364,485 |
| 2011 | $283,317 | $99,000 | $0 | $382,317 | $382,317 |
| 2010 | $284,001 | $99,000 | $0 | $383,001 | $383,001 |
| 2009 | $295,732 | $115,007 | $0 | $410,739 | $410,739 |
| 2008 | $295,785 | $135,000 | $0 | $430,785 | $430,785 |
| 2007 | $118,754 | $96,000 | $0 | $214,754 | $214,754 |
Deed and Sales History
| 1 | 01/20/2021 | WD | Warranty Deed | TEDDER, ZACHARY | DAUGHERTY, JOHN CHRISTOPHER | | | $499,999.00 | 46765 | 4509501 |
| 2 | 04/19/2016 | WD | Warranty Deed | KENDALL, CALVIN ALBERT | TEDDER, ZACHARY | | | $320,000.00 | 24010 | 4398194 |
| 3 | 10/26/2011 | WD | Warranty Deed | DICKEMANN, STEFAN | KENDALL, CALVIN ALBERT | | | $335,000.00 | 5959 | 4303596 |
| 4 | 04/11/2006 | WD | Warranty Deed | CECIL, WOODROW W | DICKEMANN, STEFAN | | | $45,000.00 | 61665 | 4167825 |
| 5 | 11/01/1979 | REC | Real Estate Contract | RADCLIFFE, DARRELL R | CECIL, WOODROW W | | | $17,750.00 | 95549 | 361993 |
| 6 | 08/01/1978 | OTHER | Other - Misc. Documents | Unknown | RADCLIFFE, DARRELL R | | | $13,500.00 | 845940 | 3399300 |
Payout Agreement
| No payout information available.. |