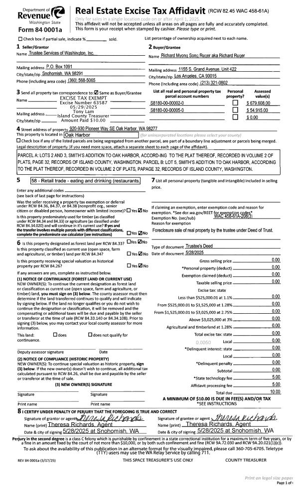
Property
Account |
| Property ID: | 349689 | Abbreviated Legal Description: | PENN CV PK 2 LOT 60 & ELY 10' OF LOTS 61 & 62 |
| Geographic ID: | S7730-02-00060-0 | Agent Code: | |
| Type: | Real | | |
| Tax Area: | 120 - APPRAISER-OH Schl Dist, Special Dist, improved & 1 acre or less | Land Use Code | 11 |
| Open Space: | N | DFL | N |
| Historic Property: | N | Remodel Property: | N |
| Multi-Family Redevelopment: | N | | |
| Township: | | Section: | |
| Range: | |
Location |
| Address: | 1118 VIEW RIDGE DR OAK HARBOR, WA 98277 | Mapsco: | |
| Neighborhood: | Cycle 2 | Map ID: | 153 |
| Neighborhood CD: | 2 |
Owner |
| Name: | THIEM, DEAN | Owner ID: | 263702 |
| Mailing Address: | 1118 VIEWRIDGE DR OAK HARBOR, WA 98277 | % Ownership: | 100.0000000000% |
| | | Exemptions: | |
Taxes and Assessment Details
Values
| (+) Improvement Homesite Value: | + | $0 | |
| (+) Improvement Non-Homesite Value: | + | $278,910 | |
| (+) Land Homesite Value: | + | $0 | |
| (+) Land Non-Homesite Value: | + | $210,000 | |
| (+) Curr Use (HS): | + | $0 | $0 |
| (+) Curr Use (NHS): | + | $0 | $0 |
| | | -------------------------- | |
| (=) Market Value: | = | $488,910 | |
| (–) Productivity Loss: | – | $0 | |
| | | -------------------------- | |
| (=) Subtotal: | = | $488,910 | |
| (+) Senior Appraised Value: | + | $0 | |
| (+) Non-Senior Appraised Value: | + | $488,910 | |
| | | -------------------------- | |
| (=) Total Appraised Value: | = | $488,910 | |
| (–) Senior Exemption Loss: | – | $0 | |
| (–) Exemption Loss: | – | $0 | |
| | | -------------------------- | |
| (=) Taxable Value: | = | $488,910 | |
Taxing Jurisdiction
| Owner: | THIEM, DEAN | | |
| % Ownership: | 100.0000000000% | | |
| Total Value: | $488,910 | | |
| Tax Area: | 120 - APPRAISER-OH Schl Dist, Special Dist, improved & 1 acre or less |
| CF | Conservation Futures | 0.0313996660 | $488,910 | $488,910 | $15.35 | | |
| CEM1 | Cemetery #1 | 0.0040018856 | $488,910 | $488,910 | $1.96 | | |
| FIRE2 | Fire & Rescue Dist #2 N Whidbey GEN | 0.5381486274 | $488,910 | $488,910 | $263.11 | | |
| HOBOND | Hospital BOND | 0.1893405597 | $488,910 | $488,910 | $92.57 | | |
| HOGEN | Hospital GEN | 0.3848777722 | $488,910 | $488,910 | $188.17 | | |
| CE | County Current Expense | 0.3674210519 | $488,910 | $488,910 | $179.64 | | |
| CR | County Roads | 0.4614296361 | $488,910 | $488,910 | $225.60 | | |
| ISLANDEMS | Hospital GEN (EMS) | 0.4952018576 | $488,910 | $488,910 | $242.11 | | |
| LIB | Library Sno-Isle GEN | 0.3039084203 | $488,910 | $488,910 | $148.58 | | |
| NWHIDPRMT | P & R N Whidbey GEN | 0.1990272349 | $488,910 | $488,910 | $97.31 | | |
| SCH201MO | School 201 Enrichment | 2.3851112745 | $488,910 | $488,910 | $1,166.10 | | |
| ST | State School | 1.4761226122 | $488,910 | $488,910 | $721.69 | | |
| ST2 | State School Part 2 | 0.7953803475 | $488,910 | $488,910 | $388.87 | | |
| | Total Tax Rate: | 7.6313709459 | | | | | |
| | | | | Taxes w/Current Exemptions: | $3,731.06 | | |
| | | | | Taxes w/o Exemptions: | $3,731.06 | | |
Improvement / Building
| Improvement #1: | RESIDENTIAL | State Code: | Y | 2329.6 sqft | Value: | $278,910 |
| Bathrooms: | 2 | Bedrooms: | 3 | | Ceiling: | DRYWALL PAINTED | Exterior Wall/Cover: | VINYL | | Floor Covering: | CARPET/VINYL 80-20 | Floor Structure: | SLAB ON GRADE | | Foundation: | SLAB | Heating: | FHA GAS | | Interior Finish: | DRYWALL PAINT | Plumbing Fixture Cnt: | 10 | | Roof Slope: | 4" IN 12" | Roof Structure/Cover: | CJ ALUMINIUM HEAVY |
|
| | Type | Description | Class CD | Sub Class CD | Year Built | Area |
| | BAS | BASE/MAIN FLOOR | 3 | 0 | 1953 | 2329.6 |
| | DGR | DETACHED GARAGE | 3 | 0 | 1953 | 1008.0 |
| | UTY | STORAGE/UTILITY | 3 | 0 | 1953 | 504.0 |
Sketch
Property Image
Land
| 1 | 15 | SQ (12001-21780) | 0.4400 | 19166.40 | 0.00 | 0.00 | 1.00 | $210,000 | $0 |
Roll Value History
| 2026 | N/A | N/A | N/A | N/A | N/A |
| 2025 | $278,910 | $210,000 | $0 | $488,910 | $488,910 |
| 2024 | $257,537 | $210,000 | $0 | $467,537 | $467,537 |
| 2023 | $261,812 | $220,000 | $0 | $481,812 | $481,812 |
| 2022 | $240,936 | $180,000 | $0 | $420,936 | $420,936 |
| 2021 | $212,889 | $140,000 | $0 | $352,889 | $352,889 |
| 2020 | $208,607 | $120,000 | $0 | $328,607 | $328,607 |
| 2019 | $160,270 | $150,000 | $0 | $310,270 | $310,270 |
| 2018 | $145,309 | $130,000 | $0 | $275,309 | $275,309 |
| 2017 | $146,351 | $115,000 | $0 | $261,351 | $261,351 |
| 2016 | $148,471 | $60,000 | $0 | $208,471 | $208,471 |
| 2015 | $150,591 | $60,000 | $0 | $210,591 | $210,591 |
| 2014 | $152,711 | $60,000 | $0 | $212,711 | $212,711 |
| 2013 | $154,831 | $55,000 | $0 | $209,831 | $209,831 |
| 2012 | $165,199 | $60,350 | $0 | $225,549 | $225,549 |
| 2011 | $167,400 | $71,000 | $0 | $238,400 | $238,400 |
| 2010 | $174,664 | $71,000 | $0 | $245,664 | $245,664 |
| 2009 | $182,190 | $90,000 | $0 | $272,190 | $272,190 |
| 2008 | $185,355 | $110,000 | $0 | $295,355 | $295,355 |
| 2007 | $188,357 | $96,000 | $0 | $284,357 | $284,357 |
Deed and Sales History
| 1 | 10/17/2013 | CD | DNU - Correction Deed | THIEM, DEAN F | THIEM, DEAN | | | | 12782 | 4348081 |
| 2 | 04/10/2008 | BLA | DNU - Boundary Line Adjustment | THIEM, DEAN F | THIEM, DEAN F | | | $0.00 | 80675 | 4093052 |
| 3 | 03/02/2004 | QCD | Quit Claim Deed | THIEM, DEAN F | THIEM, DEAN F | | | $2,500.00 | 40814 | 4093053 |
| 4 | 05/14/1976 | WD | Warranty Deed | Unknown | THIEM, DEAN F | | | $28,500.00 | 61548 | 0 |
Payout Agreement
| No payout information available.. |