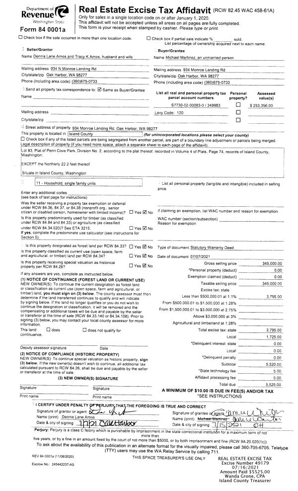
Property
Account |
| Property ID: | 349983 | Abbreviated Legal Description: | PENN CV PK 2 LOT 83 EX NLY 22.2' |
| Geographic ID: | S7730-02-00083-0 | Agent Code: | |
| Type: | Real | | |
| Tax Area: | 120 - APPRAISER-OH Schl Dist, Special Dist, improved & 1 acre or less | Land Use Code | 11 |
| Open Space: | N | DFL | N |
| Historic Property: | N | Remodel Property: | N |
| Multi-Family Redevelopment: | N | | |
| Township: | | Section: | |
| Range: | |
Location |
| Address: | 934 MONROE LANDING RD OAK HARBOR, WA 98277 | Mapsco: | |
| Neighborhood: | Cycle 2 | Map ID: | 153 |
| Neighborhood CD: | 2 |
Owner |
| Name: | MARTINEZ, MICHAEL | Owner ID: | 300229 |
| Mailing Address: | 934 MONROE LANDING RD OAK HARBOR, WA 98277 | % Ownership: | 100.0000000000% |
| | | Exemptions: | |
Taxes and Assessment Details
Values
| (+) Improvement Homesite Value: | + | $0 | |
| (+) Improvement Non-Homesite Value: | + | $168,894 | |
| (+) Land Homesite Value: | + | $0 | |
| (+) Land Non-Homesite Value: | + | $210,000 | |
| (+) Curr Use (HS): | + | $0 | $0 |
| (+) Curr Use (NHS): | + | $0 | $0 |
| | | -------------------------- | |
| (=) Market Value: | = | $378,894 | |
| (–) Productivity Loss: | – | $0 | |
| | | -------------------------- | |
| (=) Subtotal: | = | $378,894 | |
| (+) Senior Appraised Value: | + | $0 | |
| (+) Non-Senior Appraised Value: | + | $378,894 | |
| | | -------------------------- | |
| (=) Total Appraised Value: | = | $378,894 | |
| (–) Senior Exemption Loss: | – | $0 | |
| (–) Exemption Loss: | – | $0 | |
| | | -------------------------- | |
| (=) Taxable Value: | = | $378,894 | |
Taxing Jurisdiction
| Owner: | MARTINEZ, MICHAEL | | |
| % Ownership: | 100.0000000000% | | |
| Total Value: | $378,894 | | |
| Tax Area: | 120 - APPRAISER-OH Schl Dist, Special Dist, improved & 1 acre or less |
| CF | Conservation Futures | 0.0313996660 | $378,894 | $378,894 | $11.90 | | |
| CEM1 | Cemetery #1 | 0.0040018856 | $378,894 | $378,894 | $1.52 | | |
| FIRE2 | Fire & Rescue Dist #2 N Whidbey GEN | 0.5381486274 | $378,894 | $378,894 | $203.90 | | |
| HOBOND | Hospital BOND | 0.1893405597 | $378,894 | $378,894 | $71.74 | | |
| HOGEN | Hospital GEN | 0.3848777722 | $378,894 | $378,894 | $145.83 | | |
| CE | County Current Expense | 0.3674210519 | $378,894 | $378,894 | $139.21 | | |
| CR | County Roads | 0.4614296361 | $378,894 | $378,894 | $174.83 | | |
| ISLANDEMS | Hospital GEN (EMS) | 0.4952018576 | $378,894 | $378,894 | $187.63 | | |
| LIB | Library Sno-Isle GEN | 0.3039084203 | $378,894 | $378,894 | $115.15 | | |
| NWHIDPRMT | P & R N Whidbey GEN | 0.1990272349 | $378,894 | $378,894 | $75.41 | | |
| SCH201MO | School 201 Enrichment | 2.3851112745 | $378,894 | $378,894 | $903.70 | | |
| ST | State School | 1.4761226122 | $378,894 | $378,894 | $559.29 | | |
| ST2 | State School Part 2 | 0.7953803475 | $378,894 | $378,894 | $301.36 | | |
| | Total Tax Rate: | 7.6313709459 | | | | | |
| | | | | Taxes w/Current Exemptions: | $2,891.47 | | |
| | | | | Taxes w/o Exemptions: | $2,891.47 | | |
Improvement / Building
| Improvement #1: | RESIDENTIAL | State Code: | Y | 1500.0 sqft | Value: | $0 |
| Bathrooms: | 1.5 | Bedrooms: | 3 | | Ceiling: | DRY WALL SPRAYED | Cooling: | HEAT PUMP/CONV/V | | Exterior Wall/Cover: | WOOD SIDING | Floor Covering: | HARDWOOD 100% | | Floor Structure: | WOOD W/SUBFLOOR | Foundation: | CONCRETE | | Interior Finish: | DRYWALL PAINT | Plumbing Fixture Cnt: | 8 | | Roof Slope: | 4" IN 12" | Roof Structure/Cover: | CJ ASPHALT |
|
| | Type | Description | Class CD | Sub Class CD | Year Built | Area |
| | BAS | BASE/MAIN FLOOR | 3 | 0 | 1969 | 1500.0 |
| | AGR | ATTACHED GARAGE | 3 | 0 | 1969 | 384.0 |
| | OWP | OPEN WOOD PORCH W/STEPS | 3 | 0 | 1969 | 162.0 |
| Improvement #2: | RESIDENTIAL | State Code: | Y | 988.0 sqft | Value: | $168,894 |
| Bathrooms: | 1.5 | Bedrooms: | 3 | | Ceiling: | DRY WALL SPRAYED | Cooling: | HEAT PUMP/CONV/V | | Exterior Wall/Cover: | WOOD SIDING | Floor Covering: | HARDWOOD 100% | | Floor Structure: | WOOD W/SUBFLOOR | Foundation: | CONCRETE | | Interior Finish: | DRYWALL PAINT | Plumbing Fixture Cnt: | 8 | | Roof Slope: | 4" IN 12" | Roof Structure/Cover: | CJ ASPHALT |
|
| | Type | Description | Class CD | Sub Class CD | Year Built | Area |
| | BAS | BASE/MAIN FLOOR | 3 | 0 | 1969 | 988.0 |
| | AGR | ATTACHED GARAGE | 3 | 0 | 1969 | 312.0 |
Sketch
| No sketches available for this property. |
Property Image
Land
| 1 | 15 | SQ (12001-21780) | 0.2800 | 12196.80 | 0.00 | 0.00 | 1.00 | $210,000 | $0 |
Roll Value History
| 2026 | N/A | N/A | N/A | N/A | N/A |
| 2025 | $168,894 | $210,000 | $0 | $378,894 | $378,894 |
| 2024 | $166,455 | $210,000 | $0 | $376,455 | $376,455 |
| 2023 | $168,894 | $220,000 | $0 | $388,894 | $388,894 |
| 2022 | $155,145 | $180,000 | $0 | $335,145 | $335,145 |
| 2021 | $136,828 | $140,000 | $0 | $276,828 | $276,828 |
| 2020 | $133,356 | $120,000 | $0 | $253,356 | $253,356 |
| 2019 | $93,998 | $150,000 | $0 | $243,998 | $243,998 |
| 2018 | $98,307 | $130,000 | $0 | $228,307 | $228,307 |
| 2017 | $98,976 | $115,000 | $0 | $213,976 | $213,976 |
| 2016 | $64,771 | $60,000 | $0 | $124,771 | $124,771 |
| 2015 | $65,949 | $60,000 | $0 | $125,949 | $125,949 |
| 2014 | $67,126 | $60,000 | $0 | $127,126 | $127,126 |
| 2013 | $68,303 | $55,000 | $0 | $123,303 | $123,303 |
| 2012 | $72,899 | $60,350 | $0 | $133,249 | $133,249 |
| 2011 | $74,096 | $71,000 | $0 | $145,096 | $145,096 |
| 2010 | $80,820 | $71,000 | $0 | $151,820 | $151,820 |
| 2009 | $84,484 | $90,000 | $0 | $174,484 | $174,484 |
| 2008 | $85,721 | $110,000 | $0 | $195,721 | $195,721 |
| 2007 | $86,962 | $96,000 | $0 | $182,962 | $182,962 |
Deed and Sales History
| 1 | 07/07/2021 | WD | Warranty Deed | AMOS, DENNIS | MARTINEZ, MICHAEL | | | $345,000.00 | 49179 | 4524549 |
| 2 | 03/31/2017 | WD | Warranty Deed | REMMICK, BONNIE J | AMOS, DENNIS | | | $225,000.00 | 28696 | 4419999 |
| 3 | 07/13/2016 | WD | Warranty Deed | HUNT, FORREST R | REMMICK, BONNIE J | | | $129,500.00 | 25233 | 4403167 |
| 4 | 08/31/1998 | DECREE | Divorce Decree/Legal Separation | HUNT, FORREST R | HUNT, FORREST R | | | $0.00 | 83777 | 98020428 |
| 5 | 06/01/1981 | WD | Warranty Deed | RASMUSSEN, ERIC L | HUNT, FORREST R | | | $50,000.00 | 11682 | 383737 |
| 6 | 09/01/1980 | WD | Warranty Deed | STANSBURY, ROBERT M | RASMUSSEN, ERIC L | | | $40,700.00 | 3223 | 374282 |
| 7 | 01/01/1900 | OTHER | Other - Misc. Documents | Unknown | STANSBURY, ROBERT M | | | $0.00 | 0 | 0 |
Payout Agreement
| No payout information available.. |