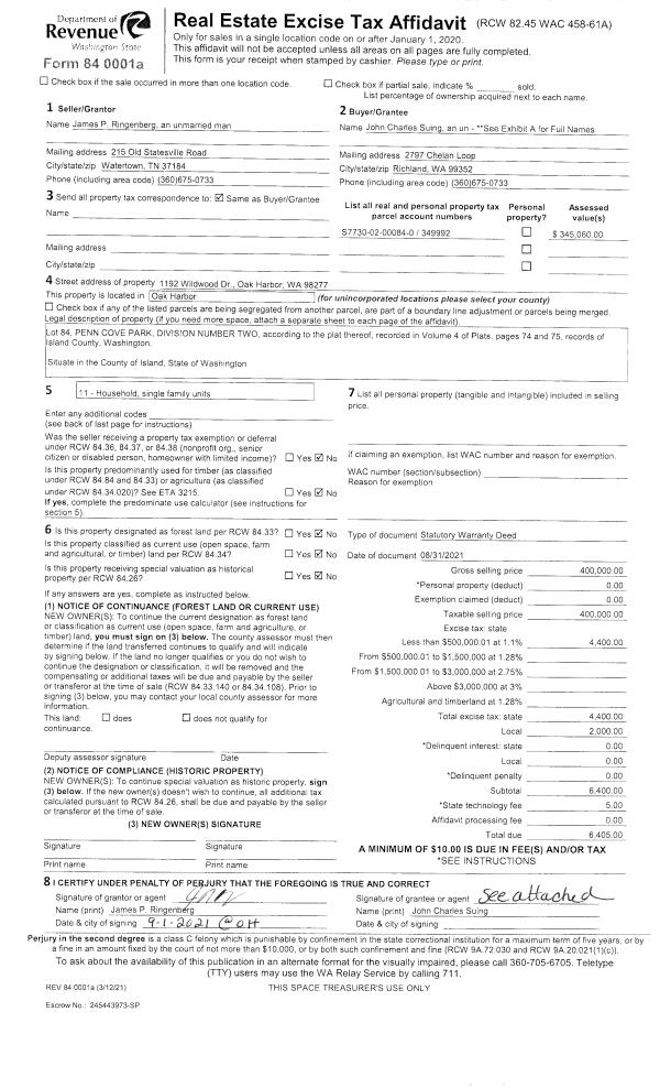
Property
Account |
| Property ID: | 349992 | Abbreviated Legal Description: | PENN CV PK 2 LOT 84 |
| Geographic ID: | S7730-02-00084-0 | Agent Code: | |
| Type: | Real | | |
| Tax Area: | 120 - APPRAISER-OH Schl Dist, Special Dist, improved & 1 acre or less | Land Use Code | 11 |
| Open Space: | N | DFL | N |
| Historic Property: | N | Remodel Property: | N |
| Multi-Family Redevelopment: | N | | |
| Township: | | Section: | |
| Range: | |
Location |
| Address: | 1192 WILDWOOD DR OAK HARBOR, WA 98277 | Mapsco: | |
| Neighborhood: | Cycle 2 | Map ID: | 153 |
| Neighborhood CD: | 2 |
Owner |
| Name: | SUING, JOHN CHARLES | Owner ID: | 300994 |
| Mailing Address: | THERESA CHRISTINE NEIDHOLD 2797 CHELAN LOOP RICHLAND, WA 99352 | % Ownership: | 100.0000000000% |
| | | Exemptions: | |
Taxes and Assessment Details
Values
| (+) Improvement Homesite Value: | + | $0 | |
| (+) Improvement Non-Homesite Value: | + | $312,376 | |
| (+) Land Homesite Value: | + | $0 | |
| (+) Land Non-Homesite Value: | + | $220,000 | |
| (+) Curr Use (HS): | + | $0 | $0 |
| (+) Curr Use (NHS): | + | $0 | $0 |
| | | -------------------------- | |
| (=) Market Value: | = | $532,376 | |
| (–) Productivity Loss: | – | $0 | |
| | | -------------------------- | |
| (=) Subtotal: | = | $532,376 | |
| (+) Senior Appraised Value: | + | $0 | |
| (+) Non-Senior Appraised Value: | + | $532,376 | |
| | | -------------------------- | |
| (=) Total Appraised Value: | = | $532,376 | |
| (–) Senior Exemption Loss: | – | $0 | |
| (–) Exemption Loss: | – | $0 | |
| | | -------------------------- | |
| (=) Taxable Value: | = | $532,376 | |
Taxing Jurisdiction
| Owner: | SUING, JOHN CHARLES | | |
| % Ownership: | 100.0000000000% | | |
| Total Value: | $532,376 | | |
| Tax Area: | 120 - APPRAISER-OH Schl Dist, Special Dist, improved & 1 acre or less |
| CF | Conservation Futures | 0.0313996660 | $532,376 | $532,376 | $16.72 | | |
| CEM1 | Cemetery #1 | 0.0040018856 | $532,376 | $532,376 | $2.13 | | |
| FIRE2 | Fire & Rescue Dist #2 N Whidbey GEN | 0.5381486274 | $532,376 | $532,376 | $286.50 | | |
| HOBOND | Hospital BOND | 0.1893405597 | $532,376 | $532,376 | $100.80 | | |
| HOGEN | Hospital GEN | 0.3848777722 | $532,376 | $532,376 | $204.90 | | |
| CE | County Current Expense | 0.3674210519 | $532,376 | $532,376 | $195.61 | | |
| CR | County Roads | 0.4614296361 | $532,376 | $532,376 | $245.65 | | |
| ISLANDEMS | Hospital GEN (EMS) | 0.4952018576 | $532,376 | $532,376 | $263.63 | | |
| LIB | Library Sno-Isle GEN | 0.3039084203 | $532,376 | $532,376 | $161.79 | | |
| NWHIDPRMT | P & R N Whidbey GEN | 0.1990272349 | $532,376 | $532,376 | $105.96 | | |
| SCH201MO | School 201 Enrichment | 2.3851112745 | $532,376 | $532,376 | $1,269.78 | | |
| ST | State School | 1.4761226122 | $532,376 | $532,376 | $785.85 | | |
| ST2 | State School Part 2 | 0.7953803475 | $532,376 | $532,376 | $423.44 | | |
| | Total Tax Rate: | 7.6313709459 | | | | | |
| | | | | Taxes w/Current Exemptions: | $4,062.76 | | |
| | | | | Taxes w/o Exemptions: | $4,062.76 | | |
Improvement / Building
| Improvement #1: | RESIDENTIAL | State Code: | Y | 1770.0 sqft | Value: | $312,376 |
| Bathrooms: | 2 | Bedrooms: | 3 | | Ceiling: | DRY WALL SPRAYED | Cooling: | HEAT PUMP/CONV/V | | Exterior Wall/Cover: | PLY/HARDBOARD T-111 | Floor Covering: | HARDWOOD/CARP 20-80 | | Floor Structure: | WOOD W/SUBFLOOR | Foundation: | CONCRETE | | Interior Finish: | DRYWALL PAINT | Plumbing Fixture Cnt: | 17 | | Roof Slope: | 4" IN 12" | Roof Structure/Cover: | CJ ASPHALT |
|
| | Type | Description | Class CD | Sub Class CD | Year Built | Area |
| | BAS | BASE/MAIN FLOOR | 3 | 0 | 1960 | 1770.0 |
| | AGR | ATTACHED GARAGE | 3 | 0 | 1960 | 440.0 |
| | OP2 | OPEN PORCH W/STEPS | 3 | 0 | 1960 | 112.0 |
| | UTY | STORAGE/UTILITY | 3 | 0 | 1960 | 200.0 |
| | UTY | STORAGE/UTILITY | 3 | 0 | 2023 | 1536.0 |
Sketch
Property Image
Land
| 1 | 15 | SQ (12001-21780) | 0.4200 | 18295.20 | 0.00 | 0.00 | 1.00 | $220,000 | $0 |
Roll Value History
| 2026 | N/A | N/A | N/A | N/A | N/A |
| 2025 | $312,376 | $220,000 | $0 | $532,376 | $532,376 |
| 2024 | $276,745 | $220,000 | $0 | $496,745 | $496,745 |
| 2023 | $271,569 | $230,000 | $0 | $501,569 | $501,569 |
| 2022 | $209,295 | $220,000 | $0 | $429,295 | $429,295 |
| 2021 | $185,060 | $160,000 | $0 | $345,060 | $345,060 |
| 2020 | $181,054 | $120,000 | $0 | $301,054 | $301,054 |
| 2019 | $134,885 | $150,000 | $0 | $284,885 | $284,885 |
| 2018 | $95,614 | $130,000 | $0 | $225,614 | $225,614 |
| 2017 | $96,596 | $115,000 | $0 | $211,596 | $211,596 |
| 2016 | $98,621 | $60,000 | $0 | $158,621 | $158,621 |
| 2015 | $100,643 | $60,000 | $0 | $160,643 | $160,643 |
| 2014 | $102,667 | $60,000 | $0 | $162,667 | $162,667 |
| 2013 | $104,689 | $55,000 | $0 | $159,689 | $159,689 |
| 2012 | $109,423 | $60,350 | $0 | $169,773 | $169,773 |
| 2011 | $111,437 | $71,000 | $0 | $182,437 | $182,437 |
| 2010 | $129,467 | $71,000 | $0 | $200,467 | $200,467 |
| 2009 | $133,293 | $90,000 | $0 | $223,293 | $223,293 |
| 2008 | $135,482 | $110,000 | $0 | $245,482 | $245,482 |
| 2007 | $137,663 | $96,000 | $0 | $233,663 | $233,663 |
Deed and Sales History
| 1 | 08/31/2021 | WD | Warranty Deed | RINGENBERG, JAMES P | SUING, JOHN CHARLES | | | $400,000.00 | 49887 | 4528476 |
| 2 | 10/30/2003 | WD | Warranty Deed | PAYNE, MARGARET | RINGENBERG, JAMES P | | | $144,750.00 | 34926 | 1081174 |
| 3 | 07/01/2003 | 5 | DNU - Marriage License/Name Change | PAYNE, RICHARD W | PAYNE, MARGARET | | | $0.00 | 69926 | 0 |
| 4 | 01/01/1900 | OTHER | Other - Misc. Documents | Unknown | PAYNE, RICHARD W | | | $0.00 | 0 | 0 |
Payout Agreement
| No payout information available.. |