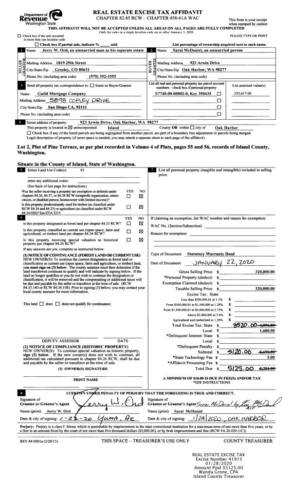
Property
Account |
| Property ID: | 350435 | Abbreviated Legal Description: | PINE TERR LOT 2 |
| Geographic ID: | S7740-00-00002-0 | Agent Code: | |
| Type: | Real | | |
| Tax Area: | 110 - APPRAISER-OH Schl Dist, outside OH, improved & 1 acre or less | Land Use Code | 11 |
| Open Space: | N | DFL | N |
| Historic Property: | N | Remodel Property: | N |
| Multi-Family Redevelopment: | N | | |
| Township: | | Section: | |
| Range: | |
Location |
| Address: | 923 ARWIN DR OAK HARBOR, WA 98277 | Mapsco: | |
| Neighborhood: | Cycle 6 | Map ID: | 237 |
| Neighborhood CD: | 6 |
Owner |
| Name: | MCDANIEL, SARAI | Owner ID: | 293308 |
| Mailing Address: | 923 ARWIN DR OAK HARBOR, WA 98277 | % Ownership: | 100.0000000000% |
| | | Exemptions: | |
Taxes and Assessment Details
Values
| (+) Improvement Homesite Value: | + | $0 | |
| (+) Improvement Non-Homesite Value: | + | $198,545 | |
| (+) Land Homesite Value: | + | $0 | |
| (+) Land Non-Homesite Value: | + | $200,000 | |
| (+) Curr Use (HS): | + | $0 | $0 |
| (+) Curr Use (NHS): | + | $0 | $0 |
| | | -------------------------- | |
| (=) Market Value: | = | $398,545 | |
| (–) Productivity Loss: | – | $0 | |
| | | -------------------------- | |
| (=) Subtotal: | = | $398,545 | |
| (+) Senior Appraised Value: | + | $0 | |
| (+) Non-Senior Appraised Value: | + | $398,545 | |
| | | -------------------------- | |
| (=) Total Appraised Value: | = | $398,545 | |
| (–) Senior Exemption Loss: | – | $0 | |
| (–) Exemption Loss: | – | $0 | |
| | | -------------------------- | |
| (=) Taxable Value: | = | $398,545 | |
Taxing Jurisdiction
| Owner: | MCDANIEL, SARAI | | |
| % Ownership: | 100.0000000000% | | |
| Total Value: | $398,545 | | |
| Tax Area: | 110 - APPRAISER-OH Schl Dist, outside OH, improved & 1 acre or less |
| CF | Conservation Futures | 0.0313996660 | $398,545 | $398,545 | $12.51 | | |
| CEM1 | Cemetery #1 | 0.0040018856 | $398,545 | $398,545 | $1.59 | | |
| FIRE2 | Fire & Rescue Dist #2 N Whidbey GEN | 0.5381486274 | $398,545 | $398,545 | $214.48 | | |
| HOBOND | Hospital BOND | 0.1893405597 | $398,545 | $398,545 | $75.46 | | |
| HOGEN | Hospital GEN | 0.3848777722 | $398,545 | $398,545 | $153.39 | | |
| CE | County Current Expense | 0.3674210519 | $398,545 | $398,545 | $146.43 | | |
| CR | County Roads | 0.4614296361 | $398,545 | $398,545 | $183.90 | | |
| ISLANDEMS | Hospital GEN (EMS) | 0.4952018576 | $398,545 | $398,545 | $197.36 | | |
| LIB | Library Sno-Isle GEN | 0.3039084203 | $398,545 | $398,545 | $121.12 | | |
| NWHIDPRMT | P & R N Whidbey GEN | 0.1990272349 | $398,545 | $398,545 | $79.32 | | |
| SCH201MO | School 201 Enrichment | 2.3851112745 | $398,545 | $398,545 | $950.57 | | |
| ST | State School | 1.4761226122 | $398,545 | $398,545 | $588.30 | | |
| ST2 | State School Part 2 | 0.7953803475 | $398,545 | $398,545 | $316.99 | | |
| | Total Tax Rate: | 7.6313709459 | | | | | |
| | | | | Taxes w/Current Exemptions: | $3,041.42 | | |
| | | | | Taxes w/o Exemptions: | $3,041.42 | | |
Improvement / Building
| Improvement #1: | RESIDENTIAL | State Code: | Y | 1364.0 sqft | Value: | $198,545 |
| Bathrooms: | 1.5 | Bedrooms: | 2 | | Ceiling: | DRYWALL PAINTED | Exterior Wall/Cover: | CEMENT FIBER | | Floor Covering: | VINYL TILE/CARP 20-80 | Floor Structure: | SLAB ON GRADE | | Foundation: | SLAB | Heating: | WALL HEAT ELECTRIC | | Interior Finish: | DRYWALL PAINT | Plumbing Fixture Cnt: | 8 | | Roof Slope: | 6" IN 12" | Roof Structure/Cover: | CJ ASPHALT |
|
| | Type | Description | Class CD | Sub Class CD | Year Built | Area |
| | BAS | BASE/MAIN FLOOR | 3 | 0 | 1965 | 1364.0 |
| | BGR | BASEMENT GARAGE | 3 | 0 | 1965 | 360.0 |
Sketch
Property Image
Land
| 1 | 16 | AC (00.51-01.00) | 0.5500 | 23958.00 | 0.00 | 0.00 | 1.00 | $200,000 | $0 |
Roll Value History
| 2026 | N/A | N/A | N/A | N/A | N/A |
| 2025 | $198,545 | $200,000 | $0 | $398,545 | $398,545 |
| 2024 | $200,988 | $160,000 | $0 | $360,988 | $360,988 |
| 2023 | $203,432 | $160,000 | $0 | $363,432 | $363,432 |
| 2022 | $186,420 | $160,000 | $0 | $346,420 | $346,420 |
| 2021 | $164,027 | $130,000 | $0 | $294,027 | $294,027 |
| 2020 | $159,628 | $120,000 | $0 | $279,628 | $279,628 |
| 2019 | $113,617 | $140,000 | $0 | $253,617 | $253,617 |
| 2018 | $113,943 | $120,000 | $0 | $233,943 | $233,943 |
| 2017 | $114,593 | $100,000 | $0 | $214,593 | $214,593 |
| 2016 | $107,348 | $70,000 | $0 | $177,348 | $177,348 |
| 2015 | $108,520 | $70,000 | $0 | $178,520 | $178,520 |
| 2014 | $109,692 | $65,000 | $0 | $174,692 | $174,692 |
| 2013 | $110,865 | $65,000 | $0 | $175,865 | $175,865 |
| 2012 | $112,037 | $63,750 | $0 | $175,787 | $175,787 |
| 2011 | $64,247 | $75,000 | $0 | $139,247 | $139,247 |
| 2010 | $31,099 | $75,000 | $0 | $106,099 | $106,099 |
| 2009 | $32,475 | $85,050 | $0 | $117,525 | $117,525 |
| 2008 | $41,870 | $85,050 | $0 | $126,920 | $126,920 |
| 2007 | $41,970 | $85,050 | $0 | $127,020 | $127,020 |
Deed and Sales History
| 1 | 01/22/2020 | WD | Warranty Deed | ORD, JERRY W | MCDANIEL, SARAI | | | $320,000.00 | 41915 | 4480156 |
| 2 | 06/03/2011 | WD | Warranty Deed | OLSEN, VERA A | ORD, JERRY W | | | $75,000.00 | 4700 | 4296695 |
| 3 | 05/14/2009 | TRUSTEED | Trustee's Deed | MUNN, LARRY | OLSEN, VERA A | | | $0.00 | 91138 | 4252177 |
| 4 | 05/19/2006 | QCD | Quit Claim Deed | MUNN, LARRY | MUNN, LARRY | | | $0.00 | 62424 | 4172128 |
| 5 | 05/19/2006 | WD | Warranty Deed | DAVIDSON, JACQUELINE A | MUNN, LARRY | | | $135,000.00 | 62423 | 4172127 |
| 6 | 04/14/1998 | QCD | Quit Claim Deed | HOUSEHOLD, FINANCE C | DAVIDSON, JACQUELINE A | | | $0.00 | 81476 | 98008008 |
| 7 | 04/14/1998 | WD | Warranty Deed | DAVIDSON, JACQUELINE A | DAVIDSON, JACQUELINE A | | | $50,000.00 | 81465 | 98008007 |
| 8 | 02/01/1997 | TRUSTEED | Trustee's Deed | BOSLEY, JOHN T | HOUSEHOLD, FINANCE C | | | $0.00 | 70474 | 97002080 |
| 9 | 10/01/1987 | WD | Warranty Deed | EGGUM, LORRAINE L | BOSLEY, JOHN T | | | $57,000.00 | 73393 | 87014906 |
| 10 | 10/01/1980 | SHERIFFD | Sheriff Deed | EGGUM, MARTIN L | EGGUM, LORRAINE L | | | $0.00 | 58939 | 0 |
| 11 | 01/01/1900 | OTHER | Other - Misc. Documents | DAVIDSON, JACQUELINE A | EGGUM, MARTIN L | | | $0.00 | 0 | 0 |
Payout Agreement
| No payout information available.. |