Property
Account |
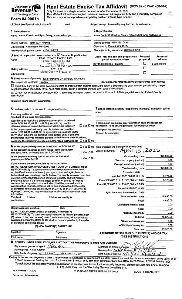
| Property ID: | 350925 | Abbreviated Legal Description: | PINEWOOD LOT 9 |
| Geographic ID: | S7745-00-00009-0 | Agent Code: | |
| Type: | Real | | |
| Tax Area: | 712 - APPRAISER-S Whid Schl Dist, outside Langley, improved, greater than 1 acre | Land Use Code | 11 |
| Open Space: | N | DFL | N |
| Historic Property: | N | Remodel Property: | N |
| Multi-Family Redevelopment: | N | | |
| Township: | | Section: | |
| Range: | |
Location |
| Address: | 4758 PINEWOOD CIR LANGLEY, WA 98260 | Mapsco: | |
| Neighborhood: | Cycle 4 | Map ID: | 730 |
| Neighborhood CD: | 4 |
Owner |
| Name: | STRATTON TTEE, DANIEL C | Owner ID: | 316140 |
| Mailing Address: | 4758 PINEWOOD CIR LANGLEY, WA 98260 | % Ownership: | 100.0000000000% |
| | | Exemptions: | |
Taxes and Assessment Details
Values
| (+) Improvement Homesite Value: | + | $0 | |
| (+) Improvement Non-Homesite Value: | + | $524,615 | |
| (+) Land Homesite Value: | + | $0 | |
| (+) Land Non-Homesite Value: | + | $250,000 | |
| (+) Curr Use (HS): | + | $0 | $0 |
| (+) Curr Use (NHS): | + | $0 | $0 |
| | | -------------------------- | |
| (=) Market Value: | = | $774,615 | |
| (–) Productivity Loss: | – | $0 | |
| | | -------------------------- | |
| (=) Subtotal: | = | $774,615 | |
| (+) Senior Appraised Value: | + | $0 | |
| (+) Non-Senior Appraised Value: | + | $774,615 | |
| | | -------------------------- | |
| (=) Total Appraised Value: | = | $774,615 | |
| (–) Senior Exemption Loss: | – | $0 | |
| (–) Exemption Loss: | – | $0 | |
| | | -------------------------- | |
| (=) Taxable Value: | = | $774,615 | |
Taxing Jurisdiction
| Owner: | STRATTON TTEE, DANIEL C | | |
| % Ownership: | 100.0000000000% | | |
| Total Value: | $774,615 | | |
| Tax Area: | 712 - APPRAISER-S Whid Schl Dist, outside Langley, improved, greater than 1 acre |
| CF | Conservation Futures | 0.0313996660 | $774,615 | $774,615 | $24.32 | | |
| FIRE3 | Fire & Rescue Dist #3 S Whidbey GEN | 1.2130821753 | $774,615 | $774,615 | $939.67 | | |
| HOBOND | Hospital BOND | 0.1893405597 | $774,615 | $774,615 | $146.67 | | |
| HOGEN | Hospital GEN | 0.3848777722 | $774,615 | $774,615 | $298.13 | | |
| CE | County Current Expense | 0.3674210519 | $774,615 | $774,615 | $284.61 | | |
| CR | County Roads | 0.4614296361 | $774,615 | $774,615 | $357.43 | | |
| ISLANDEMS | Hospital GEN (EMS) | 0.4952018576 | $774,615 | $774,615 | $383.59 | | |
| LIB | Library Sno-Isle GEN | 0.3039084203 | $774,615 | $774,615 | $235.41 | | |
| PORTWHID | Port of S Whidbey GEN | 0.1086004714 | $774,615 | $774,615 | $84.12 | | |
| SCH206BOND | School 206 BOND | 0.5960237832 | $774,615 | $774,615 | $461.69 | | |
| SCH206CAP | School 206 CP | 0.3066144020 | $774,615 | $774,615 | $237.51 | | |
| SCH206MO | School 206 Enrichment | 0.4808755445 | $774,615 | $774,615 | $372.49 | | |
| ST | State School | 1.4761226122 | $774,615 | $774,615 | $1,143.43 | | |
| ST2 | State School Part 2 | 0.7953803475 | $774,615 | $774,615 | $616.11 | | |
| SWHIDPRBD | P & R S Whidbey BOND | 0.0144185398 | $774,615 | $774,615 | $11.17 | | |
| SWHIDPRBD3 | P & R S Whidbey BOND3 | 0.1483535547 | $774,615 | $774,615 | $114.92 | | |
| SWHIDPRMT | P & R S Whidbey GEN | 0.4600000000 | $774,615 | $774,615 | $356.32 | | |
| | Total Tax Rate: | 7.8330503944 | | | | | |
| | | | | Taxes w/Current Exemptions: | $6,067.59 | | |
| | | | | Taxes w/o Exemptions: | $6,067.59 | | |
Improvement / Building
| Improvement #1: | RESIDENTIAL | State Code: | Y | 2242.0 sqft | Value: | $524,615 |
| Bathrooms: | 2 | Bedrooms: | 3 | | Ceiling: | DRYWALL PAINTED | Cooling: | HEAT PUMP/CONV/V | | Exterior Wall/Cover: | CEMENT FIBER | Floor Covering: | CARPET/VINYL 60-40 | | Floor Structure: | WOOD W/SUBFLOOR | Foundation: | CONCRETE | | Interior Finish: | DRYWALL PAINT | Plumbing Fixture Cnt: | 12 | | Roof Slope: | 4" IN 12" | Roof Structure/Cover: | CJ ASPHALT |
|
| | Type | Description | Class CD | Sub Class CD | Year Built | Area |
| | BAS | BASE/MAIN FLOOR | 4 | 0 | 2021 | 2242.0 |
| | AGR | ATTACHED GARAGE | 4 | 0 | 2021 | 858.0 |
| | OWR | OPEN WOOD PORCH W/STEPS/ROOF | 4 | 0 | 2021 | 86.0 |
| | OWR | OPEN WOOD PORCH W/STEPS/ROOF | 4 | 0 | 2021 | 22.4 |
| | OWP | OPEN WOOD PORCH W/STEPS | 4 | 0 | 2021 | 425.0 |
Sketch
Property Image
Land
| 1 | 18 | AC (02.01-03.00) | 0.0000 | 0.00 | 0.00 | 0.00 | 1.00 | $250,000 | $0 |
Roll Value History
| 2026 | N/A | N/A | N/A | N/A | N/A |
| 2025 | $524,615 | $250,000 | $0 | $774,615 | $774,615 |
| 2024 | $389,870 | $250,000 | $0 | $639,870 | $639,870 |
| 2023 | $393,964 | $250,000 | $0 | $643,964 | $643,964 |
| 2022 | $363,221 | $270,000 | $0 | $633,221 | $633,221 |
| 2021 | $0 | $120,000 | $0 | $120,000 | $120,000 |
| 2020 | $0 | $90,000 | $0 | $90,000 | $90,000 |
| 2019 | $0 | $85,000 | $0 | $85,000 | $85,000 |
| 2018 | $0 | $85,000 | $0 | $85,000 | $85,000 |
| 2017 | $0 | $85,000 | $0 | $85,000 | $85,000 |
| 2016 | $0 | $85,000 | $0 | $85,000 | $85,000 |
| 2015 | $0 | $85,000 | $0 | $85,000 | $85,000 |
| 2014 | $0 | $80,000 | $0 | $80,000 | $80,000 |
| 2013 | $0 | $95,000 | $0 | $95,000 | $95,000 |
| 2012 | $0 | $110,000 | $0 | $110,000 | $110,000 |
| 2011 | $0 | $110,000 | $0 | $110,000 | $110,000 |
| 2010 | $0 | $110,000 | $0 | $110,000 | $110,000 |
| 2009 | $0 | $100,000 | $0 | $100,000 | $100,000 |
| 2008 | $0 | $70,000 | $0 | $70,000 | $70,000 |
| 2007 | $0 | $70,000 | $0 | $70,000 | $70,000 |
Deed and Sales History
| 1 | 04/15/2025 | WD | Warranty Deed | KOSMIN, ALEXIS | STRATTON TTEE, DANIEL C | | | $925,000.00 | 63161 | 4584604 |
| 2 | 09/18/2020 | WD | Warranty Deed | SAELENS, JAMES B | KOSMIN, ALEXIS | | | $120,000.00 | 44889 | 4497473 |
Payout Agreement
| No payout information available.. |