Property
Account |
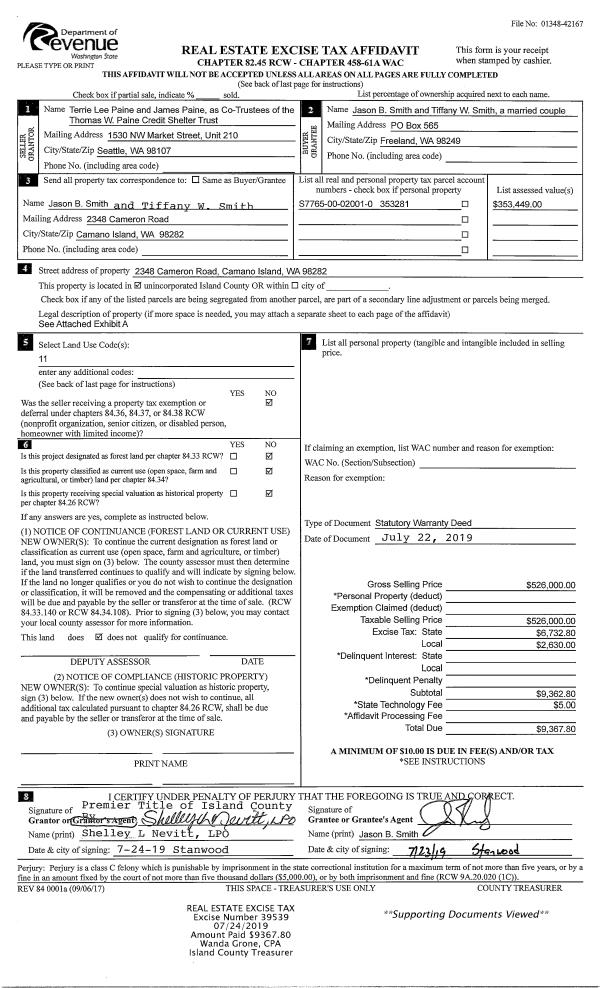
| Property ID: | 353281 | Abbreviated Legal Description: | PT SUSAN TERR LOTS 1 & 2 BLK 2 |
| Geographic ID: | S7765-00-02001-0 | Agent Code: | |
| Type: | Real | | |
| Tax Area: | 540 - APPRAISER-Stan/Cam Schl Dist, Special Dist, improved & less than 1 acre | Land Use Code | 11 |
| Open Space: | N | DFL | N |
| Historic Property: | N | Remodel Property: | N |
| Multi-Family Redevelopment: | N | | |
| Township: | | Section: | |
| Range: | |
Location |
| Address: | 2348 CAMERON RD CAMANO ISLAND, WA 98282 | Mapsco: | |
| Neighborhood: | Cycle 5 | Map ID: | 949 |
| Neighborhood CD: | 5 |
Owner |
| Name: | KOZLOWSKI, KATIE | Owner ID: | 302359 |
| Mailing Address: | OSCAR KOZLOWSKI 7807 126TH AVE NE KIRKLAND, WA 98033 | % Ownership: | 100.0000000000% |
| | | Exemptions: | |
Taxes and Assessment Details
Values
| (+) Improvement Homesite Value: | + | $0 | |
| (+) Improvement Non-Homesite Value: | + | $313,013 | |
| (+) Land Homesite Value: | + | $0 | |
| (+) Land Non-Homesite Value: | + | $340,000 | |
| (+) Curr Use (HS): | + | $0 | $0 |
| (+) Curr Use (NHS): | + | $0 | $0 |
| | | -------------------------- | |
| (=) Market Value: | = | $653,013 | |
| (–) Productivity Loss: | – | $0 | |
| | | -------------------------- | |
| (=) Subtotal: | = | $653,013 | |
| (+) Senior Appraised Value: | + | $0 | |
| (+) Non-Senior Appraised Value: | + | $653,013 | |
| | | -------------------------- | |
| (=) Total Appraised Value: | = | $653,013 | |
| (–) Senior Exemption Loss: | – | $0 | |
| (–) Exemption Loss: | – | $0 | |
| | | -------------------------- | |
| (=) Taxable Value: | = | $653,013 | |
Taxing Jurisdiction
| Owner: | KOZLOWSKI, KATIE | | |
| % Ownership: | 100.0000000000% | | |
| Total Value: | $653,013 | | |
| Tax Area: | 540 - APPRAISER-Stan/Cam Schl Dist, Special Dist, improved & less than 1 acre |
| CF | Conservation Futures | 0.0313996660 | $653,013 | $653,013 | $20.50 | | |
| EMS1 | Fire & Rescue Dist #1 Camano GEN (EMS) | 0.4998471806 | $653,013 | $653,013 | $326.41 | | |
| FIRE1 | Fire & Rescue Dist #1 Camano GEN | 1.2496603404 | $653,013 | $653,013 | $816.04 | | |
| FIRE1BOND | Fire & Rescue Dist #1 Camano BOND | 0.1630371212 | $653,013 | $653,013 | $106.47 | | |
| CE | County Current Expense | 0.3674210519 | $653,013 | $653,013 | $239.93 | | |
| CR | County Roads | 0.4614296361 | $653,013 | $653,013 | $301.32 | | |
| LIB | Library Sno-Isle GEN | 0.3039084203 | $653,013 | $653,013 | $198.46 | | |
| SCH205_401 | School 205-401 Enrichment | 1.3697998934 | $653,013 | $653,013 | $894.50 | | |
| SCH205BOND | School 205-401 BOND | 0.9354199323 | $653,013 | $653,013 | $610.84 | | |
| ST | State School | 1.4761226122 | $653,013 | $653,013 | $963.93 | | |
| ST2 | State School Part 2 | 0.7953803475 | $653,013 | $653,013 | $519.39 | | |
| | Total Tax Rate: | 7.6534262019 | | | | | |
| | | | | Taxes w/Current Exemptions: | $4,997.79 | | |
| | | | | Taxes w/o Exemptions: | $4,997.79 | | |
Improvement / Building
| Improvement #1: | RESIDENTIAL | State Code: | Y | 1730.3 sqft | Value: | $313,013 |
| Bathrooms: | 3 | Bedrooms: | 3 | | Ceiling: | TONGUE & GROOVE | Exterior Wall/Cover: | PLY/HARDBOARD T-111 | | Floor Covering: | CARPET/VINYL 80-20 | Floor Structure: | WOOD W/SUBFLOOR | | Foundation: | CONCRETE | Heating: | WALL HEAT ELECTRIC | | Interior Finish: | DRYWALL PAINT | Plumbing Fixture Cnt: | 12 | | Roof Slope: | 12" IN 12" | Roof Structure/Cover: | STEEL TERNE |
|
| | Type | Description | Class CD | Sub Class CD | Year Built | Area |
| | BAS | BASE/MAIN FLOOR | 4 | 0 | 1994 | 845.0 |
| | DWN | DOWNSTAIRS LIVING AREA | 4 | 0 | 1994 | 523.7 |
| | BGR | BASEMENT GARAGE | 4 | 0 | 1994 | 320.0 |
| | OWP | OPEN WOOD PORCH W/STEPS | 4 | 0 | 1994 | 722.7 |
| | LOF | LOFT | 4 | 0 | 1994 | 361.6 |
Sketch
Property Image
Land
| 1 | 16 | AC (00.51-01.00) | 0.7600 | 33105.60 | 0.00 | 0.00 | 1.00 | $340,000 | $0 |
Roll Value History
| 2026 | N/A | N/A | N/A | N/A | N/A |
| 2025 | $313,013 | $340,000 | $0 | $653,013 | $653,013 |
| 2024 | $317,173 | $300,000 | $0 | $617,173 | $617,173 |
| 2023 | $321,333 | $300,000 | $0 | $621,333 | $621,333 |
| 2022 | $294,736 | $300,000 | $0 | $594,736 | $594,736 |
| 2021 | $255,363 | $225,000 | $0 | $480,363 | $480,363 |
| 2020 | $248,893 | $170,000 | $0 | $418,893 | $418,893 |
| 2019 | $143,449 | $210,000 | $0 | $353,449 | $353,449 |
| 2018 | $143,890 | $200,000 | $0 | $343,890 | $343,890 |
| 2017 | $144,664 | $150,000 | $0 | $294,664 | $294,664 |
| 2016 | $146,428 | $180,000 | $0 | $326,428 | $326,428 |
| 2015 | $142,716 | $178,560 | $0 | $321,276 | $321,276 |
| 2014 | $144,546 | $178,560 | $0 | $323,106 | $323,106 |
| 2013 | $146,374 | $178,560 | $0 | $324,934 | $324,934 |
| 2012 | $148,205 | $178,560 | $0 | $326,765 | $326,765 |
| 2011 | $150,034 | $223,200 | $0 | $373,234 | $373,234 |
| 2010 | $151,072 | $223,200 | $0 | $374,272 | $374,272 |
| 2009 | $158,926 | $258,000 | $0 | $416,926 | $416,926 |
| 2008 | $160,881 | $258,000 | $0 | $418,881 | $418,881 |
| 2007 | $126,251 | $294,585 | $0 | $420,836 | $420,836 |
Deed and Sales History
| 1 | 12/10/2021 | WD | Warranty Deed | SMITH, JASON B | KOZLOWSKI, KATIE | | | $812,700.00 | 51323 | 4535955 |
| 2 | 07/22/2019 | WD | Warranty Deed | PAINE TTEE, TERRIE LEE | SMITH, JASON B | | | $526,000.00 | 39539 | 4467881 |
| 3 | 05/06/2019 | PRD | Personal Representatives Deed | PAINE, THOMAS W | PAINE TTEE, TERRIE LEE | | | $0.00 | 38606 | 4463807 |
| 4 | 08/12/2005 | WD | Warranty Deed | KAHLER, CHARLES | PAINE, THOMAS W | | | $425,000.00 | 54014 | 4144212 |
| 5 | 12/03/1999 | QCD | Quit Claim Deed | KAHLER, CHARLES | KAHLER, CHARLES | | | $0.00 | 369 | 20001941 |
| 6 | 12/03/1999 | QCD | Quit Claim Deed | KAHLER, CHARLES & GERI | KAHLER, CHARLES | | | $0.00 | 368 | 20001942 |
| 7 | 12/03/1999 | ESTSEPPROP | Establish Separate Property | KAHLER, CHARLES & | KAHLER, CHARLES & GERI | | | $0.00 | 210 | 20001132 |
| 8 | 05/01/1992 | OTHER | Other - Misc. Documents | KAHLER, CHARLES & | KAHLER, CHARLES & | | | $0.00 | 64843 | 92008544 |
| 9 | 04/01/1992 | WD | Warranty Deed | HOFFMAN, ARTHUR N | KAHLER, CHARLES & | | | $45,000.00 | 21616 | 92007757 |
| 10 | 09/01/1981 | TRUSTEED | Trustee's Deed | THORSTENSON, R M | HOFFMAN, ARTHUR N | | | $13,000.00 | 13466 | 389925 |
| 11 | 01/01/1900 | OTHER | Other - Misc. Documents | Unknown | THORSTENSON, R M | | | $0.00 | 0 | 0 |
Payout Agreement
| No payout information available.. |