Property
Account |
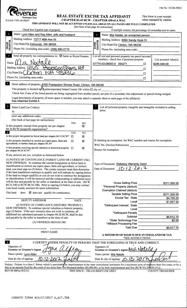
| Property ID: | 354271 | Abbreviated Legal Description: | POSS SHORES 3 LOT 3 BLK 8 |
| Geographic ID: | S7770-03-08003-0 | Agent Code: | |
| Type: | Real | | |
| Tax Area: | 710 - APPRAISER-S Whid Schl Dist, outside Langley, improved & 1 acre or less | Land Use Code | 11 |
| Open Space: | N | DFL | N |
| Historic Property: | N | Remodel Property: | N |
| Multi-Family Redevelopment: | N | | |
| Township: | | Section: | |
| Range: | |
Location |
| Address: | 4165 POSSESSION SHORES RD CLINTON, WA 98236 | Mapsco: | |
| Neighborhood: | Cycle 4 | Map ID: | 708 |
| Neighborhood CD: | 4 |
Owner |
| Name: | NATALE, MIA | Owner ID: | 282471 |
| Mailing Address: | 4165 POSSESSION SHORES RD CLINTON, WA 98236 | % Ownership: | 100.0000000000% |
| | | Exemptions: | SNR/DSBL |
Taxes and Assessment Details
Values
| (+) Improvement Homesite Value: | + | $170,680 | |
| (+) Improvement Non-Homesite Value: | + | $0 | |
| (+) Land Homesite Value: | + | $380,000 | |
| (+) Land Non-Homesite Value: | + | $0 | |
| (+) Curr Use (HS): | + | $0 | $0 |
| (+) Curr Use (NHS): | + | $0 | $0 |
| | | -------------------------- | |
| (=) Market Value: | = | $550,680 | |
| (–) Productivity Loss: | – | $0 | |
| | | -------------------------- | |
| (=) Subtotal: | = | $550,680 | |
| (+) Senior Appraised Value: | + | $500,606 | |
| (+) Non-Senior Appraised Value: | + | $0 | |
| | | -------------------------- | |
| (=) Total Appraised Value: | = | $500,606 | |
| (–) Senior Exemption Loss: | – | $0 | |
| (–) Exemption Loss: | – | $0 | |
| | | -------------------------- | |
| (=) Taxable Value: | = | $500,606 | |
Taxing Jurisdiction
| Owner: | NATALE, MIA | | |
| % Ownership: | 100.0000000000% | | |
| Total Value: | $550,680 | | |
| Tax Area: | 710 - APPRAISER-S Whid Schl Dist, outside Langley, improved & 1 acre or less |
| CF | Conservation Futures | 0.0313996660 | $550,680 | $500,606 | $15.72 | | |
| FIRE3 | Fire & Rescue Dist #3 S Whidbey GEN | 1.2130821753 | $550,680 | $500,606 | $607.28 | | |
| HOBOND | Hospital BOND | 0.0000000000 | $550,680 | $0 | $0.00 | | |
| HOGEN | Hospital GEN | 0.3848777722 | $550,680 | $500,606 | $192.67 | | |
| CE | County Current Expense | 0.3674210519 | $550,680 | $500,606 | $183.93 | | |
| CR | County Roads | 0.4614296361 | $550,680 | $500,606 | $230.99 | | |
| ISLANDEMS | Hospital GEN (EMS) | 0.4952018576 | $550,680 | $500,606 | $247.90 | | |
| LIB | Library Sno-Isle GEN | 0.3039084203 | $550,680 | $500,606 | $152.14 | | |
| PORTWHID | Port of S Whidbey GEN | 0.1086004714 | $550,680 | $500,606 | $54.37 | | |
| SCH206BOND | School 206 BOND | 0.0000000000 | $550,680 | $0 | $0.00 | | |
| SCH206CAP | School 206 CP | 0.0000000000 | $550,680 | $0 | $0.00 | | |
| SCH206MO | School 206 Enrichment | 0.0000000000 | $550,680 | $0 | $0.00 | | |
| ST | State School | 1.4761226122 | $550,680 | $500,606 | $738.96 | | |
| ST2 | State School Part 2 | 0.0000000000 | $550,680 | $0 | $0.00 | | |
| SWHIDPRBD | P & R S Whidbey BOND | 0.0000000000 | $550,680 | $0 | $0.00 | | |
| SWHIDPRBD3 | P & R S Whidbey BOND3 | 0.0000000000 | $550,680 | $0 | $0.00 | | |
| SWHIDPRMT | P & R S Whidbey GEN | 0.4600000000 | $550,680 | $500,606 | $230.28 | | |
| | Total Tax Rate: | 5.3020436630 | | | | | |
| | | | | Taxes w/Current Exemptions: | $2,654.24 | | |
| | | | | Taxes w/o Exemptions: | $4,313.51 | | |
Improvement / Building
| Improvement #1: | RESIDENTIAL | State Code: | Y | 1068.0 sqft | Value: | $170,680 |
| Bathrooms: | 1 | Bedrooms: | 2 | | Ceiling: | BEAM PAINTED | Exterior Wall/Cover: | PLY/HARDBOARD T-111 | | Floor Covering: | CARPET/VINYL 80-20 | Floor Structure: | WOOD W/SUBFLOOR | | Foundation: | CONCRETE | Heating: | BASEBOARD ELECTRIC | | Interior Finish: | DRYWALL PAINT | Plumbing Fixture Cnt: | 6 | | Roof Slope: | FLAT | Roof Structure/Cover: | BEAM ROLL COMPOSITION |
|
| | Type | Description | Class CD | Sub Class CD | Year Built | Area |
| | BAS | BASE/MAIN FLOOR | 3 | 0 | 1975 | 924.0 |
| | OCP | OPEN CARPORT | 3 | 0 | 1975 | 200.0 |
| | UTY | STORAGE/UTILITY | 3 | 0 | 1975 | 88.0 |
| | OWP | OPEN WOOD PORCH W/STEPS | 3 | 0 | 1975 | 611.0 |
| | LOF | LOFT | 3 | 0 | 1975 | 144.0 |
Sketch
| No sketches available for this property. |
Property Image
Land
| 1 | 13 | SQ (06001-08000) | 0.0000 | 0.00 | 0.00 | 0.00 | 1.00 | $380,000 | $0 |
Roll Value History
| 2026 | N/A | N/A | N/A | N/A | N/A |
| 2025 | $170,680 | $380,000 | $0 | $550,680 | $500,606 |
| 2024 | $173,247 | $360,000 | $0 | $533,247 | $500,606 |
| 2023 | $175,304 | $360,000 | $0 | $535,304 | $430,606 |
| 2022 | $160,606 | $340,000 | $0 | $500,606 | $500,606 |
| 2021 | $141,281 | $300,000 | $0 | $441,281 | $441,281 |
| 2020 | $133,327 | $280,000 | $0 | $413,327 | $413,327 |
| 2019 | $94,356 | $320,000 | $0 | $414,356 | $414,356 |
| 2018 | $94,621 | $260,000 | $0 | $354,621 | $354,621 |
| 2017 | $55,649 | $230,000 | $0 | $285,649 | $285,649 |
| 2016 | $56,576 | $200,000 | $0 | $256,576 | $256,576 |
| 2015 | $57,504 | $140,000 | $0 | $197,504 | $197,504 |
| 2014 | $60,772 | $85,000 | $0 | $145,772 | $145,772 |
| 2013 | $61,737 | $85,000 | $0 | $146,737 | $146,737 |
| 2012 | $62,702 | $129,200 | $0 | $191,902 | $191,902 |
| 2011 | $63,666 | $152,000 | $0 | $215,666 | $215,666 |
| 2010 | $71,427 | $152,000 | $0 | $223,427 | $223,427 |
| 2009 | $74,636 | $190,000 | $0 | $264,636 | $264,636 |
| 2008 | $83,874 | $215,000 | $0 | $298,874 | $298,874 |
| 2007 | $85,043 | $215,000 | $0 | $300,043 | $300,043 |
Deed and Sales History
| 1 | 10/12/2017 | WD | Warranty Deed | ALLEN, LYNN | NATALE, MIA | | | $371,500.00 | 31544 | 4432233 |
| 2 | 06/17/2002 | WD | Warranty Deed | DILLMAN, JO ETTA | ALLEN, LYNN | | | $180,000.00 | 22363 | 4023440 |
| 3 | 11/20/2001 | QCD | Quit Claim Deed | DILLMAN, JO ETTA | DILLMAN, JO ETTA | | | $0.00 | 14421 | 4003335 |
| 4 | 10/12/2001 | QCD | Quit Claim Deed | DILLMAN, JO ETTA | DILLMAN, JO ETTA | | | $0.00 | 13961 | 20045371 |
| 5 | 09/21/2001 | QCD | Quit Claim Deed | DILLMAN, JO ETTA | DILLMAN, JO ETTA | | | $0.00 | 13660 | 20043665 |
| 6 | 08/24/2001 | QCD | Quit Claim Deed | DILLMAN, JO ETTA | DILLMAN, JO ETTA | | | $0.00 | 13230 | 20041156 |
| 7 | 07/12/2001 | QCD | Quit Claim Deed | DILLMAN, JO ETTA | DILLMAN, JO ETTA | | | $0.00 | 12607 | 20036972 |
| 8 | 06/22/2001 | QCD | Quit Claim Deed | DILLMAN, JO ETTA | DILLMAN, JO ETTA | | | $0.00 | 12271 | 20035346 |
| 9 | 05/25/2001 | WD | Warranty Deed | DILLMAN, JO ETTA | DILLMAN, JO ETTA | | | $0.00 | 11836 | 20033106 |
| 10 | 04/18/2001 | QCD | Quit Claim Deed | DILLMAN, JO ETTA | DILLMAN, JO ETTA | | | $0.00 | 11253 | 20029797 |
| 11 | 03/27/2001 | QCD | Quit Claim Deed | DILLMAN, JO ETTA | DILLMAN, JO ETTA | | | $0.00 | 10907 | 20027989 |
| 12 | 02/25/2001 | QCD | Quit Claim Deed | DILLMAN, JO ETTA | DILLMAN, JO ETTA | | | $0.00 | 10564 | 20025940 |
| 13 | 01/24/2001 | QCD | Quit Claim Deed | DILLMAN, JO ETTA | DILLMAN, JO ETTA | | | $0.00 | 10247 | 20024094 |
| 14 | 12/27/2000 | QCD | Quit Claim Deed | DILLMAN, JO ETTA | DILLMAN, JO ETTA | | | $0.00 | 4856 | 20022480 |
| 15 | 11/16/2000 | QCD | Quit Claim Deed | DILLMAN, JO ETTA | DILLMAN, JO ETTA | | | $0.00 | 4358 | 20020094 |
| 16 | 10/18/2000 | QCD | Quit Claim Deed | DILLMAN, ETAL, JO ETTA | DILLMAN, JO ETTA | | | $0.00 | 3987 | 20018270 |
| 17 | 09/07/2000 | QCD | Quit Claim Deed | DILLMAN, ETAL, JO ETTA | DILLMAN, ETAL, JO ETTA | | | $0.00 | 3442 | 20015916 |
| 18 | 08/08/2000 | QCD | Quit Claim Deed | DILLMAN, JO ETTA | DILLMAN, ETAL, JO ETTA | | | $0.00 | 2979 | 20013917 |
| 19 | 07/10/2000 | QCD | Quit Claim Deed | FOX, DOROTHY W | DILLMAN, JO ETTA | | | $0.00 | 2565 | 20012182 |
| 20 | 03/01/1998 | QCD | Quit Claim Deed | FOX, DOROTHY W | FOX, DOROTHY W | | | $0.00 | 80709 | 98003861 |
| 21 | 03/01/1998 | QCD | Quit Claim Deed | FOX, MORRIS H | FOX, DOROTHY W | | | $0.00 | 80708 | 98003862 |
| 22 | 07/01/1992 | WD | Warranty Deed | SNOW, SIDNEY L | FOX, MORRIS H | | | $145,000.00 | 22787 | 92013575 |
| 23 | 03/01/1989 | QCD | Quit Claim Deed | SNOW, SIDNEY L | SNOW, SIDNEY L | | | $27,788.00 | 91126 | 89003944 |
| 24 | 09/01/1982 | TRUSTEED | Trustee's Deed | PETRIE, ROSS | SNOW, SIDNEY L | | | $50,000.00 | 22143 | 400327 |
| 25 | 01/01/1900 | OTHER | Other - Misc. Documents | Unknown | PETRIE, ROSS | | | $0.00 | 0 | 0 |
Payout Agreement
| No payout information available.. |