Property
Account |
| Property ID: | 355305 | Abbreviated Legal Description: | RACE LAGOON LOT 11 BLK C |
| Geographic ID: | S8005-00-0C011-0 | Agent Code: | |
| Type: | Real | | |
| Tax Area: | 319 - APPRAISER-Cpvl Schl Dist, outside Cpvl, vacant & 50 acres or less | Land Use Code | 99 |
| Open Space: | N | DFL | N |
| Historic Property: | N | Remodel Property: | N |
| Multi-Family Redevelopment: | N | | |
| Township: | | Section: | |
| Range: | |
Location |
| Address: | | Mapsco: | |
| Neighborhood: | Cycle 2 | Map ID: | 465 |
| Neighborhood CD: | 2 |
Owner |
| Name: | BLACK TTEE, PHILLIP A | Owner ID: | 316181 |
| Mailing Address: | PO BOX 653 COUPEVILLE, WA 98239 | % Ownership: | 100.0000000000% |
| | | Exemptions: | |
Taxes and Assessment Details
Values
| (+) Improvement Homesite Value: | + | $0 | |
| (+) Improvement Non-Homesite Value: | + | $0 | |
| (+) Land Homesite Value: | + | $0 | |
| (+) Land Non-Homesite Value: | + | $90,000 | |
| (+) Curr Use (HS): | + | $0 | $0 |
| (+) Curr Use (NHS): | + | $0 | $0 |
| | | -------------------------- | |
| (=) Market Value: | = | $90,000 | |
| (–) Productivity Loss: | – | $0 | |
| | | -------------------------- | |
| (=) Subtotal: | = | $90,000 | |
| (+) Senior Appraised Value: | + | $0 | |
| (+) Non-Senior Appraised Value: | + | $90,000 | |
| | | -------------------------- | |
| (=) Total Appraised Value: | = | $90,000 | |
| (–) Senior Exemption Loss: | – | $0 | |
| (–) Exemption Loss: | – | $0 | |
| | | -------------------------- | |
| (=) Taxable Value: | = | $90,000 | |
Taxing Jurisdiction
| Owner: | BLACK TTEE, PHILLIP A | | |
| % Ownership: | 100.0000000000% | | |
| Total Value: | $90,000 | | |
| Tax Area: | 319 - APPRAISER-Cpvl Schl Dist, outside Cpvl, vacant & 50 acres or less |
| CF | Conservation Futures | 0.0313996660 | $90,000 | $90,000 | $2.83 | | |
| CEM2 | Cemetery #2 | 0.0092609791 | $90,000 | $90,000 | $0.83 | | |
| HOBOND | Hospital BOND | 0.1893405597 | $90,000 | $90,000 | $17.04 | | |
| HOGEN | Hospital GEN | 0.3848777722 | $90,000 | $90,000 | $34.64 | | |
| CE | County Current Expense | 0.3674210519 | $90,000 | $90,000 | $33.07 | | |
| CR | County Roads | 0.4614296361 | $90,000 | $90,000 | $41.53 | | |
| ISLANDEMS | Hospital GEN (EMS) | 0.4952018576 | $90,000 | $90,000 | $44.57 | | |
| LIB | Library Sno-Isle GEN | 0.3039084203 | $90,000 | $90,000 | $27.35 | | |
| LIBCAP | Library Sno-Isle BOND (Cap Fac Imp Area) | 0.0528562629 | $90,000 | $90,000 | $4.76 | | |
| POCOUP | Port of Coupeville GEN | 0.1065226063 | $90,000 | $90,000 | $9.59 | | |
| POCOUPIDD | Port of Coupeville IDD | 0.3353038577 | $90,000 | $90,000 | $30.18 | | |
| COUPSDTECH | School 204 CP (TECH) | 0.1215123397 | $90,000 | $90,000 | $10.94 | | |
| SCH204MO | School 204 Enrichment | 0.6416662518 | $90,000 | $90,000 | $57.75 | | |
| ST | State School | 1.4761226122 | $90,000 | $90,000 | $132.85 | | |
| ST2 | State School Part 2 | 0.7953803475 | $90,000 | $90,000 | $71.58 | | |
| | Total Tax Rate: | 5.7722042210 | | | | | |
| | | | | Taxes w/Current Exemptions: | $519.51 | | |
| | | | | Taxes w/o Exemptions: | $519.51 | | |
Improvement / Building
Sketch
| No sketches available for this property. |
Property Image
Land
| 1 | 16 | AC (00.51-01.00) | 0.5400 | 23522.40 | 0.00 | 0.00 | 1.00 | $90,000 | $0 |
Roll Value History
| 2026 | N/A | N/A | N/A | N/A | N/A |
| 2025 | $0 | $90,000 | $0 | $90,000 | $90,000 |
| 2024 | $0 | $90,000 | $0 | $90,000 | $90,000 |
| 2023 | $0 | $90,000 | $0 | $90,000 | $90,000 |
| 2022 | $0 | $80,000 | $0 | $80,000 | $80,000 |
| 2021 | $0 | $7,000 | $0 | $7,000 | $7,000 |
| 2020 | $0 | $7,000 | $0 | $7,000 | $7,000 |
| 2019 | $0 | $5,000 | $0 | $5,000 | $5,000 |
| 2018 | $0 | $5,000 | $0 | $5,000 | $5,000 |
| 2017 | $0 | $20,000 | $0 | $20,000 | $20,000 |
| 2016 | $0 | $20,000 | $0 | $20,000 | $20,000 |
| 2015 | $0 | $15,000 | $0 | $15,000 | $15,000 |
| 2014 | $0 | $15,000 | $0 | $15,000 | $15,000 |
| 2013 | $0 | $20,000 | $0 | $20,000 | $20,000 |
| 2012 | $0 | $20,000 | $0 | $20,000 | $20,000 |
| 2011 | $0 | $20,000 | $0 | $20,000 | $20,000 |
| 2010 | $0 | $20,000 | $0 | $20,000 | $20,000 |
| 2009 | $0 | $21,250 | $0 | $21,250 | $21,250 |
| 2008 | $0 | $21,250 | $0 | $21,250 | $21,250 |
| 2007 | $0 | $20,000 | $0 | $20,000 | $20,000 |
Deed and Sales History
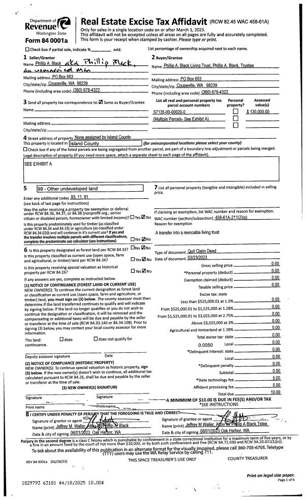
| 1 | 03/23/2023 | QCD | Quit Claim Deed | BLACK, PHILLIP A | BLACK TTEE, PHILLIP A | | | $0.00 | 63181 | 4584687 |
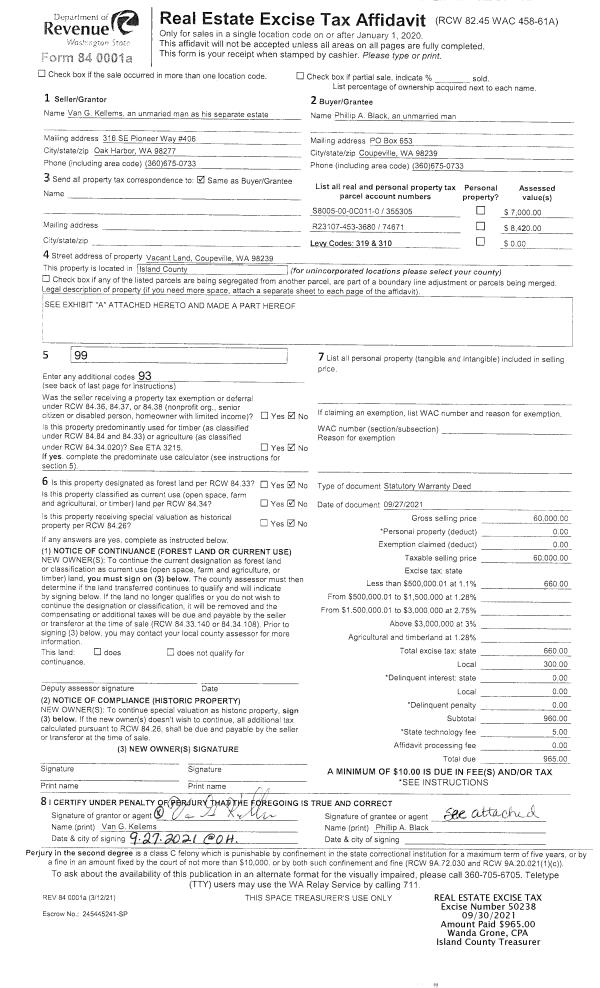
| 2 | 09/27/2021 | WD | Warranty Deed | KELLEMS, VAN G | BLACK, PHILLIP A | | | $60,000.00 | 50238 | 4530304 |
|   | |
| 3 | 10/01/1994 | PRD | Personal Representatives Deed | KELLEMS, TILLIE V | KELLEMS, VAN G | | | $0.00 | 44275 | 94022092 |
| 4 | 03/01/1991 | QCD | Quit Claim Deed | KELLEMS, TILLIE V | KELLEMS, TILLIE V | | | $0.00 | 10853 | 91003727 |
| 5 | 04/01/1979 | OTHER | Other - Misc. Documents | Unknown | KELLEMS, TILLIE V | | | $20,000.00 | 91419 | 349920 |
Payout Agreement
| No payout information available.. |