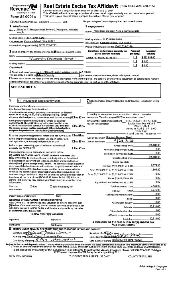
Property
Account |
| Property ID: | 356714 | Abbreviated Legal Description: | ROCKAWAY BCH LOT 9 |
| Geographic ID: | S8025-00-00009-0 | Agent Code: | |
| Type: | Real | | |
| Tax Area: | 510 - APPRAISER-Stan/Cam Schl Dist, improved & 1 acre or less | Land Use Code | 11 |
| Open Space: | N | DFL | N |
| Historic Property: | N | Remodel Property: | N |
| Multi-Family Redevelopment: | N | | |
| Township: | | Section: | |
| Range: | |
Location |
| Address: | 91 PLEASANT LN CAMANO ISLAND, WA 98282 | Mapsco: | |
| Neighborhood: | Cycle 5 | Map ID: | 458 |
| Neighborhood CD: | 5 |
Owner |
| Name: | NICK, PHILIP | Owner ID: | 313982 |
| Mailing Address: | JANET NICK 91 PLEASANT LN CAMANO ISLAND, WA 98282 | % Ownership: | 100.0000000000% |
| | | Exemptions: | |
Taxes and Assessment Details
Values
| (+) Improvement Homesite Value: | + | N/A | |
| (+) Improvement Non-Homesite Value: | + | N/A | |
| (+) Land Homesite Value: | + | N/A | |
| (+) Land Non-Homesite Value: | + | N/A | Ag / Timber Use Value |
| (+) Curr Use (HS): | + | N/A | N/A |
| (+) Curr Use (NHS): | + | N/A | N/A |
| | | -------------------------- | |
| (=) Market Value: | = | N/A | |
| (–) Productivity Loss: | – | N/A | |
| | | -------------------------- | |
| (=) Subtotal: | = | N/A | |
| (+) Senior Appraised Value: | + | N/A | |
| (+) Non-Senior Appraised Value: | + | N/A | |
| | | -------------------------- | |
| (=) Total Appraised Value: | = | N/A | |
| (–) Senior Exemption Loss: | – | N/A | |
| (–) Exemption Loss: | – | N/A | |
| | | -------------------------- | |
| (=) Taxable Value: | = | N/A | |
Taxing Jurisdiction
| Owner: | NICK, PHILIP | | |
| % Ownership: | 100.0000000000% | | |
| Total Value: | N/A | | |
| Tax Area: | 510 - APPRAISER-Stan/Cam Schl Dist, improved & 1 acre or less |
| CF | Conservation Futures | N/A | N/A | N/A | N/A | | |
| CCD | Camano Conservation District | N/A | N/A | N/A | N/A | | |
| EMS1 | Fire & Rescue Dist #1 Camano GEN (EMS) | N/A | N/A | N/A | N/A | | |
| FIRE1 | Fire & Rescue Dist #1 Camano GEN | N/A | N/A | N/A | N/A | | |
| FIRE1BOND | Fire & Rescue Dist #1 Camano BOND | N/A | N/A | N/A | N/A | | |
| CE | County Current Expense | N/A | N/A | N/A | N/A | | |
| CR | County Roads | N/A | N/A | N/A | N/A | | |
| LCIB | Library Sno-Isle BOND (Camano Island) | N/A | N/A | N/A | N/A | | |
| LIB | Library Sno-Isle GEN | N/A | N/A | N/A | N/A | | |
| SCH205_401 | School 205-401 Enrichment | N/A | N/A | N/A | N/A | | |
| SCH205BOND | School 205-401 BOND | N/A | N/A | N/A | N/A | | |
| ST | State School | N/A | N/A | N/A | N/A | | |
| ST2 | State School Part 2 | N/A | N/A | N/A | N/A | | |
| | Total Tax Rate: | N/A | | | | | |
| | | | | Taxes w/Current Exemptions: | N/A | | |
| | | | | Taxes w/o Exemptions: | N/A | | |
Improvement / Building
| Improvement #1: | RESIDENTIAL | State Code: | Y | 1274.0 sqft | Value: | N/A |
| Bathrooms: | 3 | Bedrooms: | 2 | | Ceiling: | DRYWALL PAINTED | Cooling: | REFRIG A/C DUCTS | | Exterior Wall/Cover: | PLY/HARDBOARD T-111 | Floor Covering: | HARDWOOD/CARP 60-40 | | Floor Structure: | WOOD W/SUBFLOOR | Foundation: | CONCRETE | | Interior Finish: | DRYWALL PAINT | Plumbing Fixture Cnt: | 12 | | Roof Slope: | 4" IN 12" | Roof Structure/Cover: | CJ ASPHALT |
|
| | Type | Description | Class CD | Sub Class CD | Year Built | Area |
| | BAS | BASE/MAIN FLOOR | 3 | 0 | 2018 | 1274.0 |
| | OP4 | OPEN PORCH W/CEILING-ROOF | 3 | 0 | 2018 | 242.0 |
| | AGR | ATTACHED GARAGE | 3 | 0 | 2018 | 880.0 |
| | OWC | OPEN WOOD PORCH W/STEPS/ROOF/C | 3 | 0 | 2018 | 292.5 |
Sketch
Property Image
Land
| 1 | 14 | SQ (08001-12000) | 0.0000 | 0.00 | 0.00 | 0.00 | 1.00 | N/A | N/A |
Roll Value History
| 2026 | N/A | N/A | N/A | N/A | N/A |
| 2025 | $370,923 | $220,000 | $0 | $590,923 | $590,923 |
| 2024 | $313,984 | $220,000 | $0 | $533,984 | $533,984 |
| 2023 | $316,515 | $240,000 | $0 | $556,515 | $556,515 |
| 2022 | $288,905 | $200,000 | $0 | $488,905 | $488,905 |
| 2021 | $253,213 | $120,000 | $0 | $373,213 | $373,213 |
| 2020 | $245,573 | $140,000 | $0 | $385,573 | $385,573 |
| 2019 | $174,758 | $170,000 | $0 | $344,758 | $344,758 |
| 2018 | $176,079 | $100,000 | $0 | $276,079 | $276,079 |
| 2017 | $0 | $50,000 | $0 | $50,000 | $50,000 |
| 2016 | $0 | $50,000 | $0 | $50,000 | $50,000 |
| 2015 | $0 | $50,000 | $0 | $50,000 | $50,000 |
| 2014 | $0 | $50,000 | $0 | $50,000 | $50,000 |
| 2013 | $0 | $41,600 | $0 | $41,600 | $41,600 |
| 2012 | $0 | $41,600 | $0 | $41,600 | $41,600 |
| 2011 | $0 | $47,000 | $0 | $47,000 | $47,000 |
| 2010 | $0 | $47,000 | $0 | $47,000 | $47,000 |
| 2009 | $0 | $55,000 | $0 | $55,000 | $55,000 |
| 2008 | $0 | $99,000 | $0 | $99,000 | $99,000 |
| 2007 | $0 | $18,916 | $0 | $18,916 | $18,916 |
Deed and Sales History
| 1 | 09/24/2024 | WD | Warranty Deed | PETTGROVE, NICKOLOS T | NICK, PHILIP | | | $655,000.00 | 61365 | 4577462 |
| 2 | 01/04/2018 | WD | Warranty Deed | TITAN FRAMING, LLC | PETTGROVE, NICKOLOS T | | | $412,000.00 | 32510 | 4436886 |
| 3 | 04/26/2017 | WD | Warranty Deed | HAWES, RICHARD E | TITAN FRAMING, LLC | | | $64,950.00 | 29051 | 4421489 |
| 4 | 02/17/2016 | WD | Warranty Deed | UNCHUR, ROBERT J | HAWES, RICHARD E | | | $214,500.00 | 23297 | 4394772 |
|   | |
| 5 | 06/11/2012 | WD | Warranty Deed | SWENSON, JEFF | UNCHUR, ROBERT J | | | $40,000.00 | 7962 | 4317304 |
| 6 | 06/22/2007 | WD | Warranty Deed | STEWART LLC, GREG | SWENSON, JEFF | | | $35,000.00 | 72101 | 4205369 |
| 7 | 08/14/2002 | WD | Warranty Deed | NATIONAL CLAIM MANAGEMENT, | STEWART LLC, GREG | | | $3,000.00 | 23326 | 4029309 |
| 8 | 07/11/2001 | ESTSEPPROP | Establish Separate Property | MARZOLF, TIMOTHY A | NATIONAL CLAIM MANAGEMENT, | | | $20,000.00 | 14059 | 4000508 |
| 9 | 01/01/1990 | WD | Warranty Deed | DOKKEN, ERLING E | MARZOLF, TIMOTHY A | | | $5,000.00 | 269 | 90000815 |
| 10 | 08/01/1987 | WD | Warranty Deed | ISLER, EDWIN & | DOKKEN, ERLING E | | | $1,800.00 | 72714 | 87012274 |
| 11 | 01/01/1900 | OTHER | Other - Misc. Documents | Unknown | ISLER, EDWIN & | | | $0.00 | 0 | 0 |
Payout Agreement
| No payout information available.. |