Property
Account |
| Property ID: | 357054 | Abbreviated Legal Description: | ROCKY PT HTS LOT 16 & S1/2 LOT 17 |
| Geographic ID: | S8030-00-00016-0 | Agent Code: | |
| Type: | Real | | |
| Tax Area: | 510 - APPRAISER-Stan/Cam Schl Dist, improved & 1 acre or less | Land Use Code | 11 |
| Open Space: | N | DFL | N |
| Historic Property: | N | Remodel Property: | N |
| Multi-Family Redevelopment: | N | | |
| Township: | | Section: | |
| Range: | |
Location |
| Address: | 953 ROCKY TERRACE CAMANO ISLAND, WA 98282 | Mapsco: | |
| Neighborhood: | North Camano | Map ID: | 555 |
| Neighborhood CD: | 06-C |
Owner |
| Name: | BAYER TTEE, BENNET JAMES | Owner ID: | 316474 |
| Mailing Address: | MICHELLE HERAN BAYER TTEE 953 ROCKY TERRACE CAMANO ISLAND, WA 98282 | % Ownership: | 100.0000000000% |
| | | Exemptions: | |
Taxes and Assessment Details
Values
| (+) Improvement Homesite Value: | + | $0 | |
| (+) Improvement Non-Homesite Value: | + | $590,203 | |
| (+) Land Homesite Value: | + | $0 | |
| (+) Land Non-Homesite Value: | + | $290,000 | |
| (+) Curr Use (HS): | + | $0 | $0 |
| (+) Curr Use (NHS): | + | $0 | $0 |
| | | -------------------------- | |
| (=) Market Value: | = | $880,203 | |
| (–) Productivity Loss: | – | $0 | |
| | | -------------------------- | |
| (=) Subtotal: | = | $880,203 | |
| (+) Senior Appraised Value: | + | $0 | |
| (+) Non-Senior Appraised Value: | + | $880,203 | |
| | | -------------------------- | |
| (=) Total Appraised Value: | = | $880,203 | |
| (–) Senior Exemption Loss: | – | $0 | |
| (–) Exemption Loss: | – | $0 | |
| | | -------------------------- | |
| (=) Taxable Value: | = | $880,203 | |
Taxing Jurisdiction
| Owner: | BAYER TTEE, BENNET JAMES | | |
| % Ownership: | 100.0000000000% | | |
| Total Value: | $880,203 | | |
| Tax Area: | 510 - APPRAISER-Stan/Cam Schl Dist, improved & 1 acre or less |
| CF | Conservation Futures | 0.0313996660 | $880,203 | $880,203 | $27.64 | | |
| EMS1 | Fire & Rescue Dist #1 Camano GEN (EMS) | 0.4998471806 | $880,203 | $880,203 | $439.97 | | |
| FIRE1 | Fire & Rescue Dist #1 Camano GEN | 1.2496603404 | $880,203 | $880,203 | $1,099.95 | | |
| FIRE1BOND | Fire & Rescue Dist #1 Camano BOND | 0.1630371212 | $880,203 | $880,203 | $143.51 | | |
| CE | County Current Expense | 0.3674210519 | $880,203 | $880,203 | $323.41 | | |
| CR | County Roads | 0.4614296361 | $880,203 | $880,203 | $406.15 | | |
| LIB | Library Sno-Isle GEN | 0.3039084203 | $880,203 | $880,203 | $267.50 | | |
| SCH205_401 | School 205-401 Enrichment | 1.3697998934 | $880,203 | $880,203 | $1,205.70 | | |
| SCH205BOND | School 205-401 BOND | 0.9354199323 | $880,203 | $880,203 | $823.36 | | |
| ST | State School | 1.4761226122 | $880,203 | $880,203 | $1,299.29 | | |
| ST2 | State School Part 2 | 0.7953803475 | $880,203 | $880,203 | $700.10 | | |
| | Total Tax Rate: | 7.6534262019 | | | | | |
| | | | | Taxes w/Current Exemptions: | $6,736.58 | | |
| | | | | Taxes w/o Exemptions: | $6,736.58 | | |
Improvement / Building
| Improvement #1: | RESIDENTIAL | State Code: | Y | 1856.0 sqft | Value: | $590,203 |
| Bathrooms: | 2 | Bedrooms: | 3 | | Ceiling: | DRYWALL PAINTED | Exterior Wall/Cover: | CEMENT FIBER | | Floor Covering: | LAMINATE/LVP | Floor Structure: | WOOD W/SUBFLOOR | | Foundation: | PIERS/CONCRETE | Heating: | HEAT PUMP | | Interior Finish: | DRYWALL PAINT | Plumbing Fixture Cnt: | 11 | | Roof Slope: | 3" IN 12" | Roof Structure/Cover: | CJ ALUMINIUM HEAVY |
|
| | Type | Description | Class CD | Sub Class CD | Year Built | Area |
| | BAS | BASE/MAIN FLOOR | 5 | 0 | 2024 | 1856.0 |
| | AGR | ATTACHED GARAGE | 5 | 0 | 2024 | 560.0 |
| | OWP | OPEN WOOD PORCH W/STEPS | 5 | 0 | 2024 | 182.0 |
| | OWR | OPEN WOOD PORCH W/STEPS/ROOF | 5 | 0 | 2024 | 308.0 |
Sketch
| No sketches available for this property. |
Property Image
Land
| 1 | 15 | SQ (12001-21780) | 0.0000 | 0.00 | 0.00 | 0.00 | 1.00 | $290,000 | $0 |
Roll Value History
| 2026 | N/A | N/A | N/A | N/A | N/A |
| 2025 | $590,203 | $290,000 | $0 | $880,203 | $880,203 |
| 2024 | $164,784 | $160,000 | $0 | $324,784 | $324,784 |
| 2023 | $0 | $160,000 | $0 | $160,000 | $160,000 |
| 2022 | $0 | $150,000 | $0 | $150,000 | $150,000 |
| 2021 | $0 | $120,000 | $0 | $120,000 | $120,000 |
| 2020 | $0 | $120,000 | $0 | $120,000 | $120,000 |
| 2019 | $0 | $120,000 | $0 | $120,000 | $120,000 |
| 2018 | $0 | $120,000 | $0 | $120,000 | $120,000 |
| 2017 | $0 | $135,000 | $0 | $135,000 | $135,000 |
| 2016 | $0 | $125,000 | $0 | $125,000 | $125,000 |
| 2015 | $0 | $125,000 | $0 | $125,000 | $125,000 |
| 2014 | $0 | $100,000 | $0 | $100,000 | $100,000 |
| 2013 | $0 | $100,000 | $0 | $100,000 | $100,000 |
| 2012 | $0 | $150,000 | $0 | $150,000 | $150,000 |
| 2011 | $0 | $150,000 | $0 | $150,000 | $150,000 |
| 2010 | $0 | $75,000 | $0 | $75,000 | $75,000 |
| 2009 | $0 | $70,000 | $0 | $70,000 | $70,000 |
| 2008 | $0 | $100,000 | $0 | $100,000 | $100,000 |
| 2007 | $0 | $100,000 | $0 | $100,000 | $100,000 |
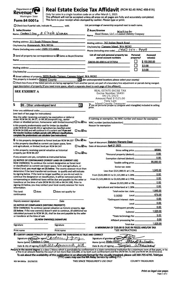
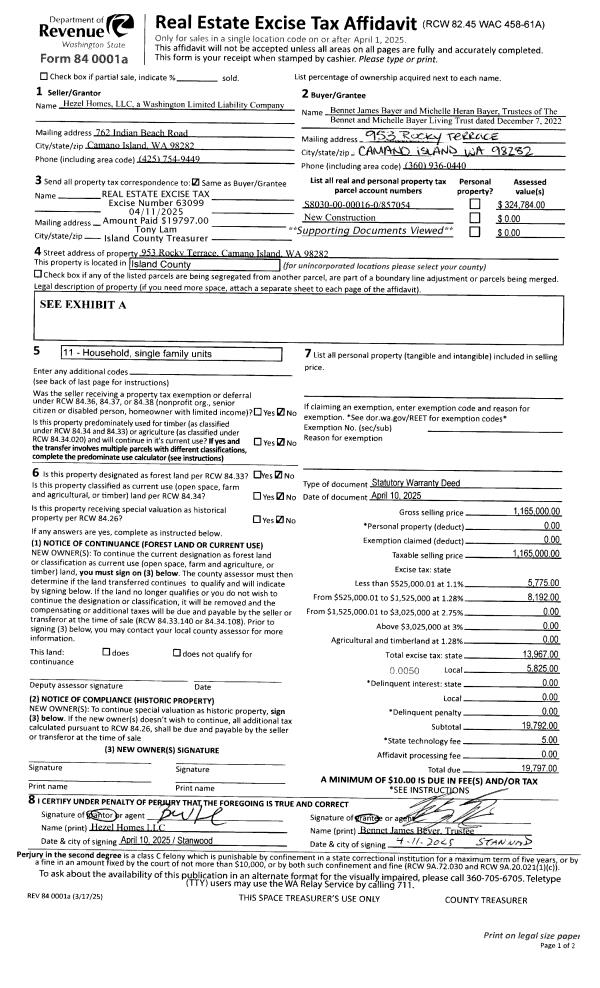
Deed and Sales History
| 1 | 04/10/2025 | WD | Warranty Deed | HEZEL HOMES, LLC | BAYER TTEE, BENNET JAMES | | | $1,165,000.00 | 63099 | 4584375 |
| 2 | 04/21/2023 | WD | Warranty Deed | GRAY, CANDACE J | HEZEL HOMES, LLC | | | $95,000.00 | 56491 | 4559175 |
| 3 | 06/03/2013 | QCD | Quit Claim Deed | HANKS, LEATICE | GRAY, CANDACE J | | | $0.00 | 11596 | 4341687 |
| 4 | 08/30/2000 | OTHER | Other - Misc. Documents | HANKS, EZRA | HANKS, LEATICE | | | $0.00 | 68766 | 0 |
| 5 | 01/01/1900 | OTHER | Other - Misc. Documents | Unknown | HANKS, EZRA | | | $0.00 | 0 | 0 |
Payout Agreement
| No payout information available.. |