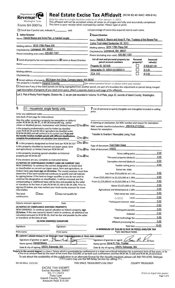
Property
Account |
| Property ID: | 357438 | Abbreviated Legal Description: | ROCKY PT HTS 2 LOT 3 |
| Geographic ID: | S8030-02-00003-0 | Agent Code: | |
| Type: | Real | | |
| Tax Area: | 510 - APPRAISER-Stan/Cam Schl Dist, improved & 1 acre or less | Land Use Code | 11 |
| Open Space: | N | DFL | N |
| Historic Property: | N | Remodel Property: | N |
| Multi-Family Redevelopment: | N | | |
| Township: | | Section: | |
| Range: | |
Location |
| Address: | 953 KAREN ANN DR CAMANO ISLAND, WA 98282 | Mapsco: | |
| Neighborhood: | North Camano | Map ID: | 555 |
| Neighborhood CD: | 06-C |
Owner |
| Name: | SCHMIDT, BRIAN E | Owner ID: | 314740 |
| Mailing Address: | BRENDA K SCHMIDT 953 KAREN ANN DR CAMANO ISLAND, WA 98282 | % Ownership: | 100.0000000000% |
| | | Exemptions: | |
Taxes and Assessment Details
Values
| (+) Improvement Homesite Value: | + | $0 | |
| (+) Improvement Non-Homesite Value: | + | $696,891 | |
| (+) Land Homesite Value: | + | $0 | |
| (+) Land Non-Homesite Value: | + | $410,000 | |
| (+) Curr Use (HS): | + | $0 | $0 |
| (+) Curr Use (NHS): | + | $0 | $0 |
| | | -------------------------- | |
| (=) Market Value: | = | $1,106,891 | |
| (–) Productivity Loss: | – | $0 | |
| | | -------------------------- | |
| (=) Subtotal: | = | $1,106,891 | |
| (+) Senior Appraised Value: | + | $0 | |
| (+) Non-Senior Appraised Value: | + | $1,106,891 | |
| | | -------------------------- | |
| (=) Total Appraised Value: | = | $1,106,891 | |
| (–) Senior Exemption Loss: | – | $0 | |
| (–) Exemption Loss: | – | $0 | |
| | | -------------------------- | |
| (=) Taxable Value: | = | $1,106,891 | |
Taxing Jurisdiction
| Owner: | SCHMIDT, BRIAN E | | |
| % Ownership: | 100.0000000000% | | |
| Total Value: | $1,106,891 | | |
| Tax Area: | 510 - APPRAISER-Stan/Cam Schl Dist, improved & 1 acre or less |
| CF | Conservation Futures | 0.0313996660 | $1,106,891 | $1,106,891 | $34.76 | | |
| EMS1 | Fire & Rescue Dist #1 Camano GEN (EMS) | 0.4998471806 | $1,106,891 | $1,106,891 | $553.28 | | |
| FIRE1 | Fire & Rescue Dist #1 Camano GEN | 1.2496603404 | $1,106,891 | $1,106,891 | $1,383.24 | | |
| FIRE1BOND | Fire & Rescue Dist #1 Camano BOND | 0.1630371212 | $1,106,891 | $1,106,891 | $180.46 | | |
| CE | County Current Expense | 0.3674210519 | $1,106,891 | $1,106,891 | $406.70 | | |
| CR | County Roads | 0.4614296361 | $1,106,891 | $1,106,891 | $510.75 | | |
| LIB | Library Sno-Isle GEN | 0.3039084203 | $1,106,891 | $1,106,891 | $336.39 | | |
| SCH205_401 | School 205-401 Enrichment | 1.3697998934 | $1,106,891 | $1,106,891 | $1,516.22 | | |
| SCH205BOND | School 205-401 BOND | 0.9354199323 | $1,106,891 | $1,106,891 | $1,035.41 | | |
| ST | State School | 1.4761226122 | $1,106,891 | $1,106,891 | $1,633.91 | | |
| ST2 | State School Part 2 | 0.7953803475 | $1,106,891 | $1,106,891 | $880.40 | | |
| | Total Tax Rate: | 7.6534262019 | | | | | |
| | | | | Taxes w/Current Exemptions: | $8,471.52 | | |
| | | | | Taxes w/o Exemptions: | $8,471.52 | | |
Improvement / Building
| Improvement #1: | RESIDENTIAL | State Code: | Y | 2869.5 sqft | Value: | $696,891 |
| Bathrooms: | 3 | Bedrooms: | 3 | | Ceiling: | BEAM PAINTED | Exterior Wall/Cover: | CEMENT FIBER | | Floor Covering: | HARDWOOD/CARP 80-20 | Floor Structure: | WOOD W/SUBFLOOR | | Foundation: | CONCRETE | Heating: | FHA GAS | | Interior Finish: | DRYWALL PAINT | Plumbing Fixture Cnt: | 17 | | Roof Slope: | 5" IN 12" | Roof Structure/Cover: | BEAM ASPHALT |
|
| | Type | Description | Class CD | Sub Class CD | Year Built | Area |
| | BAS | BASE/MAIN FLOOR | 5 | 0 | 2000 | 1540.1 |
| | AGR | ATTACHED GARAGE | 5 | 0 | 2000 | 832.3 |
| | UPS | UPPER STORY | 5 | 0 | 2000 | 1329.4 |
| | OWP | OPEN WOOD PORCH W/STEPS | 5 | 0 | 2000 | 192.0 |
| | OP4 | OPEN PORCH W/CEILING-ROOF | 5 | 0 | 2000 | 92.0 |
| | OWP | OPEN WOOD PORCH W/STEPS | 5 | 0 | 2000 | 24.0 |
| | OWP | OPEN WOOD PORCH W/STEPS | 5 | 0 | 2000 | 198.0 |
Sketch
| No sketches available for this property. |
Property Image
Land
| 1 | 15 | SQ (12001-21780) | 0.0000 | 0.00 | 0.00 | 0.00 | 1.00 | $410,000 | $0 |
Roll Value History
| 2026 | N/A | N/A | N/A | N/A | N/A |
| 2025 | $696,891 | $410,000 | $0 | $1,106,891 | $1,106,891 |
| 2024 | $542,872 | $400,000 | $0 | $942,872 | $942,872 |
| 2023 | $549,472 | $400,000 | $0 | $949,472 | $949,472 |
| 2022 | $479,621 | $360,000 | $0 | $839,621 | $839,621 |
| 2021 | $422,241 | $220,000 | $0 | $642,241 | $642,241 |
| 2020 | $411,884 | $220,000 | $0 | $631,884 | $631,884 |
| 2019 | $319,752 | $290,000 | $0 | $609,752 | $609,752 |
| 2018 | $320,713 | $250,000 | $0 | $570,713 | $570,713 |
| 2017 | $322,633 | $180,000 | $0 | $502,633 | $502,633 |
| 2016 | $342,501 | $135,000 | $0 | $477,501 | $477,501 |
| 2015 | $346,627 | $125,000 | $0 | $471,627 | $471,627 |
| 2014 | $350,755 | $125,000 | $0 | $475,755 | $475,755 |
| 2013 | $354,880 | $125,000 | $0 | $479,880 | $479,880 |
| 2012 | $359,008 | $120,000 | $0 | $479,008 | $479,008 |
| 2011 | $363,134 | $150,000 | $0 | $513,134 | $513,134 |
| 2010 | $382,819 | $150,000 | $0 | $532,819 | $532,819 |
| 2009 | $399,168 | $180,000 | $0 | $579,168 | $579,168 |
| 2008 | $403,841 | $200,000 | $0 | $603,841 | $603,841 |
| 2007 | $404,285 | $200,000 | $0 | $604,285 | $604,285 |
Deed and Sales History
| 1 | 12/02/2024 | WD | Warranty Deed | BEYEA TTEE, HAROLD A. | SCHMIDT, BRIAN E | | | $1,100,000.00 | 61987 | 4580056 |
| 2 | 05/08/2023 | QCD | Quit Claim Deed | BEYEA, HAROLD | BEYEA TTEE, HAROLD A. | | | $0.00 | 56667 | 4559788 |
| 3 | 08/05/2014 | WD | Warranty Deed | RADTKE, DERALD J | BEYEA, HAROLD | | | $455,000.00 | 16377 | 4363824 |
| 4 | 05/04/2004 | WD | Warranty Deed | O'BRIEN, DENNIS C | RADTKE, DERALD J | | | $478,000.00 | 41868 | 4099593 |
| 5 | 05/14/1998 | WD | Warranty Deed | OSSEWARDE, FRED | O'BRIEN, DENNIS C | | | $79,500.00 | 81923 | 98010140 |
| 6 | 04/01/1979 | OTHER | Other - Misc. Documents | MOORE, RAYMOND J | OSSEWARDE, FRED | | | $21,000.00 | 92045 | 3517790 |
| 7 | 03/01/1979 | OTHER | Other - Misc. Documents | O'BRIEN, DENNIS C | MOORE, RAYMOND J | | | $21,000.00 | 920450 | 3517790 |
| 8 | 01/01/1900 | OTHER | Other - Misc. Documents | Unknown | O'BRIEN, DENNIS C | | | $0.00 | 81923 | 98010140 |
Payout Agreement
| No payout information available.. |