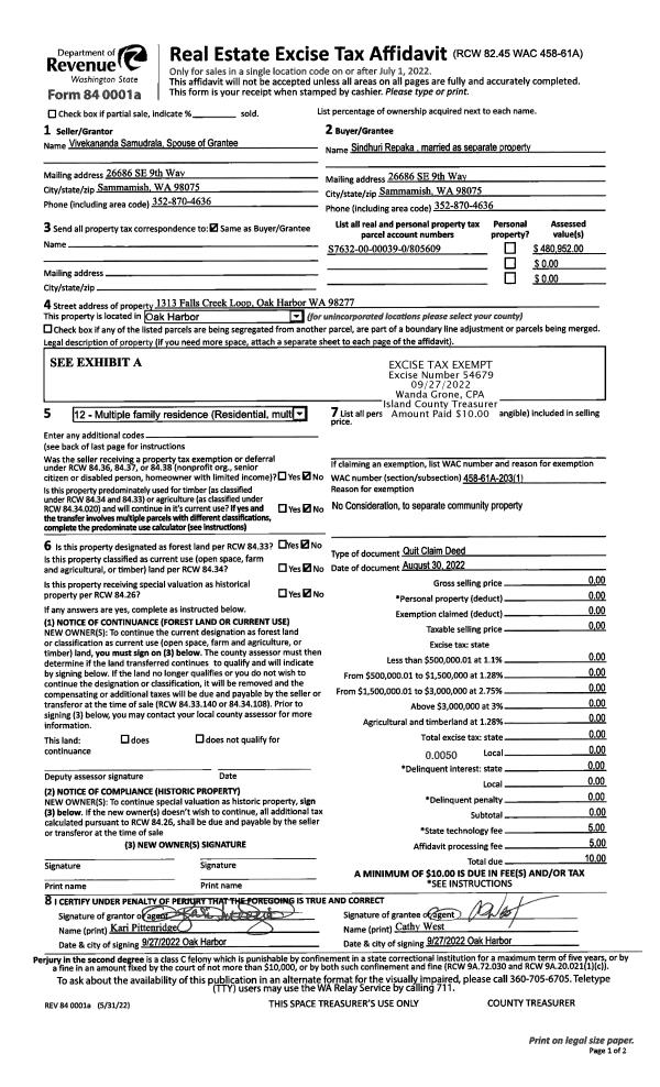
Property
Account |
| Property ID: | 358758 | Abbreviated Legal Description: | ROCKY PT TR LOT 44 BLK 2 |
| Geographic ID: | S8035-00-02044-0 | Agent Code: | |
| Type: | Real | | |
| Tax Area: | 510 - APPRAISER-Stan/Cam Schl Dist, improved & 1 acre or less | Land Use Code | 11 |
| Open Space: | N | DFL | N |
| Historic Property: | N | Remodel Property: | N |
| Multi-Family Redevelopment: | N | | |
| Township: | | Section: | |
| Range: | |
Location |
| Address: | 829 GRANITE LN CAMANO ISLAND, WA 98282 | Mapsco: | |
| Neighborhood: | North Camano | Map ID: | 552 |
| Neighborhood CD: | 06-C |
Owner |
| Name: | MYKLEBUST, ROGER ALLEN | Owner ID: | 293638 |
| Mailing Address: | REBECCA MARIE BOURDEAU 829 GRANITE LN CAMANO ISLAND, WA 98282 | % Ownership: | 100.0000000000% |
| | | Exemptions: | |
Taxes and Assessment Details
Values
| (+) Improvement Homesite Value: | + | $0 | |
| (+) Improvement Non-Homesite Value: | + | $362,804 | |
| (+) Land Homesite Value: | + | $0 | |
| (+) Land Non-Homesite Value: | + | $270,000 | |
| (+) Curr Use (HS): | + | $0 | $0 |
| (+) Curr Use (NHS): | + | $0 | $0 |
| | | -------------------------- | |
| (=) Market Value: | = | $632,804 | |
| (–) Productivity Loss: | – | $0 | |
| | | -------------------------- | |
| (=) Subtotal: | = | $632,804 | |
| (+) Senior Appraised Value: | + | $0 | |
| (+) Non-Senior Appraised Value: | + | $632,804 | |
| | | -------------------------- | |
| (=) Total Appraised Value: | = | $632,804 | |
| (–) Senior Exemption Loss: | – | $0 | |
| (–) Exemption Loss: | – | $0 | |
| | | -------------------------- | |
| (=) Taxable Value: | = | $632,804 | |
Taxing Jurisdiction
| Owner: | MYKLEBUST, ROGER ALLEN | | |
| % Ownership: | 100.0000000000% | | |
| Total Value: | $632,804 | | |
| Tax Area: | 510 - APPRAISER-Stan/Cam Schl Dist, improved & 1 acre or less |
| CF | Conservation Futures | 0.0313996660 | $632,804 | $632,804 | $19.87 | | |
| EMS1 | Fire & Rescue Dist #1 Camano GEN (EMS) | 0.4998471806 | $632,804 | $632,804 | $316.31 | | |
| FIRE1 | Fire & Rescue Dist #1 Camano GEN | 1.2496603404 | $632,804 | $632,804 | $790.79 | | |
| FIRE1BOND | Fire & Rescue Dist #1 Camano BOND | 0.1630371212 | $632,804 | $632,804 | $103.17 | | |
| CE | County Current Expense | 0.3674210519 | $632,804 | $632,804 | $232.51 | | |
| CR | County Roads | 0.4614296361 | $632,804 | $632,804 | $291.99 | | |
| LIB | Library Sno-Isle GEN | 0.3039084203 | $632,804 | $632,804 | $192.31 | | |
| SCH205_401 | School 205-401 Enrichment | 1.3697998934 | $632,804 | $632,804 | $866.81 | | |
| SCH205BOND | School 205-401 BOND | 0.9354199323 | $632,804 | $632,804 | $591.94 | | |
| ST | State School | 1.4761226122 | $632,804 | $632,804 | $934.10 | | |
| ST2 | State School Part 2 | 0.7953803475 | $632,804 | $632,804 | $503.32 | | |
| | Total Tax Rate: | 7.6534262019 | | | | | |
| | | | | Taxes w/Current Exemptions: | $4,843.12 | | |
| | | | | Taxes w/o Exemptions: | $4,843.12 | | |
Improvement / Building
| Improvement #1: | RESIDENTIAL | State Code: | Y | 1728.2 sqft | Value: | $362,804 |
| Bathrooms: | 2 | Bedrooms: | 2 | | Ceiling: | DRYWALL PAINTED | Exterior Wall/Cover: | CEMENT FIBER | | Floor Covering: | CARPET/VINYL 20-80 | Floor Structure: | WOOD W/SUBFLOOR | | Foundation: | CONCRETE | Heating: | FHA GAS | | Interior Finish: | DRYWALL PAINT | Plumbing Fixture Cnt: | 11 | | Roof Slope: | 4" IN 12" | Roof Structure/Cover: | CJ ASPHALT |
|
| | Type | Description | Class CD | Sub Class CD | Year Built | Area |
| | BAS | BASE/MAIN FLOOR | 3 | 0 | 2019 | 1728.2 |
| | AGR | ATTACHED GARAGE | 3 | 0 | 2019 | 494.5 |
| | OWC | OPEN WOOD PORCH W/STEPS/ROOF/C | 3 | 0 | 2019 | 90.0 |
| | OP1 | OPEN PORCH SLAB | 3 | 0 | 2019 | 108.0 |
Sketch
Property Image
Land
| 1 | 14 | SQ (08001-12000) | 0.0000 | 0.00 | 0.00 | 0.00 | 1.00 | $270,000 | $0 |
Roll Value History
| 2026 | N/A | N/A | N/A | N/A | N/A |
| 2025 | $362,804 | $270,000 | $0 | $632,804 | $632,804 |
| 2024 | $365,706 | $260,000 | $0 | $625,706 | $625,706 |
| 2023 | $368,607 | $260,000 | $0 | $628,607 | $628,607 |
| 2022 | $340,772 | $210,000 | $0 | $550,772 | $550,772 |
| 2021 | $301,708 | $160,000 | $0 | $461,708 | $461,708 |
| 2020 | $296,251 | $130,000 | $0 | $426,251 | $426,251 |
| 2019 | $150,329 | $100,000 | $0 | $250,329 | $250,329 |
| 2018 | $0 | $90,000 | $0 | $90,000 | $90,000 |
| 2017 | $0 | $85,000 | $0 | $85,000 | $85,000 |
| 2016 | $0 | $65,000 | $0 | $65,000 | $65,000 |
| 2015 | $0 | $65,000 | $0 | $65,000 | $65,000 |
| 2014 | $0 | $65,000 | $0 | $65,000 | $65,000 |
| 2013 | $0 | $65,000 | $0 | $65,000 | $65,000 |
| 2012 | $0 | $68,000 | $0 | $68,000 | $68,000 |
| 2011 | $0 | $85,000 | $0 | $85,000 | $85,000 |
| 2010 | $0 | $85,000 | $0 | $85,000 | $85,000 |
| 2009 | $0 | $100,000 | $0 | $100,000 | $100,000 |
| 2008 | $0 | $100,000 | $0 | $100,000 | $100,000 |
| 2007 | $0 | $35,000 | $0 | $35,000 | $35,000 |
Deed and Sales History
| 1 | 02/25/2020 | WD | Warranty Deed | KNUDSON, PETER | MYKLEBUST, ROGER ALLEN | | | $450,000.00 | 42265 | 4482210 |
| 2 | 02/23/2018 | WD | Warranty Deed | DAVIDSON, BRUCE B G | KNUDSON, PETER | | | $89,500.00 | 33120 | 4439988 |
| 3 | 12/23/2005 | WD | Warranty Deed | LLOYD, HELMI V | DAVIDSON, BRUCE B G | | | $30,000.00 | 60164 | 4159669 |
| 4 | 03/01/1993 | QCD | Quit Claim Deed | LLOYD, HELMI V | LLOYD, HELMI V | | | $0.00 | 30985 | 93005214 |
| 5 | 07/01/1985 | EXECUTORD | Executor Deed | FOLVEN, EARL J | LLOYD, HELMI V | | | $0.00 | 52321 | 85009147 |
| 6 | 01/01/1900 | OTHER | Other - Misc. Documents | Unknown | FOLVEN, EARL J | | | $0.00 | 0 | 0 |
Payout Agreement
| No payout information available.. |