Property
Account |
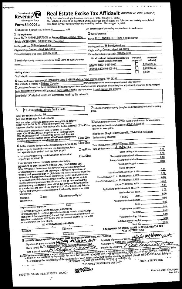
| Property ID: | 359668 | Abbreviated Legal Description: | ROCKY PT TR 3 PT LOT 16: BG NW CR L-16 SS95' S93*E46.1' ALG CUR/R 40.56'TO SE CR L-16 N120' TO NE CR L-16 W80'TPB |
| Geographic ID: | S8035-03-00016-3 | Agent Code: | |
| Type: | Real | | |
| Tax Area: | 519 - APPRAISER-Stan/Cam Schl Dist, vacant & 50 acres or less | Land Use Code | 99 |
| Open Space: | N | DFL | N |
| Historic Property: | N | Remodel Property: | N |
| Multi-Family Redevelopment: | N | | |
| Township: | | Section: | |
| Range: | |
Location |
| Address: | | Mapsco: | |
| Neighborhood: | North Camano | Map ID: | 554 |
| Neighborhood CD: | 06-C |
Owner |
| Name: | GILBERTSON, RUTH ANN | Owner ID: | 302484 |
| Mailing Address: | 56 BRANDYWINE LN CAMANO ISLAND, WA 98282 | % Ownership: | 100.0000000000% |
| | | Exemptions: | |
Taxes and Assessment Details
Values
| (+) Improvement Homesite Value: | + | $0 | |
| (+) Improvement Non-Homesite Value: | + | $0 | |
| (+) Land Homesite Value: | + | $0 | |
| (+) Land Non-Homesite Value: | + | $300,000 | |
| (+) Curr Use (HS): | + | $0 | $0 |
| (+) Curr Use (NHS): | + | $0 | $0 |
| | | -------------------------- | |
| (=) Market Value: | = | $300,000 | |
| (–) Productivity Loss: | – | $0 | |
| | | -------------------------- | |
| (=) Subtotal: | = | $300,000 | |
| (+) Senior Appraised Value: | + | $0 | |
| (+) Non-Senior Appraised Value: | + | $300,000 | |
| | | -------------------------- | |
| (=) Total Appraised Value: | = | $300,000 | |
| (–) Senior Exemption Loss: | – | $0 | |
| (–) Exemption Loss: | – | $0 | |
| | | -------------------------- | |
| (=) Taxable Value: | = | $300,000 | |
Taxing Jurisdiction
| Owner: | GILBERTSON, RUTH ANN | | |
| % Ownership: | 100.0000000000% | | |
| Total Value: | $300,000 | | |
| Tax Area: | 519 - APPRAISER-Stan/Cam Schl Dist, vacant & 50 acres or less |
| CF | Conservation Futures | 0.0313996660 | $300,000 | $300,000 | $9.42 | | |
| EMS1 | Fire & Rescue Dist #1 Camano GEN (EMS) | 0.4998471806 | $300,000 | $300,000 | $149.95 | | |
| CE | County Current Expense | 0.3674210519 | $300,000 | $300,000 | $110.23 | | |
| CR | County Roads | 0.4614296361 | $300,000 | $300,000 | $138.43 | | |
| LIB | Library Sno-Isle GEN | 0.3039084203 | $300,000 | $300,000 | $91.17 | | |
| SCH205_401 | School 205-401 Enrichment | 1.3697998934 | $300,000 | $300,000 | $410.94 | | |
| SCH205BOND | School 205-401 BOND | 0.9354199323 | $300,000 | $300,000 | $280.63 | | |
| ST | State School | 1.4761226122 | $300,000 | $300,000 | $442.84 | | |
| ST2 | State School Part 2 | 0.7953803475 | $300,000 | $300,000 | $238.61 | | |
| | Total Tax Rate: | 6.2407287403 | | | | | |
| | | | | Taxes w/Current Exemptions: | $1,872.22 | | |
| | | | | Taxes w/o Exemptions: | $1,872.22 | | |
Improvement / Building
Sketch
| No sketches available for this property. |
Property Image
Land
| 1 | 14 | SQ (08001-12000) | 0.0000 | 0.00 | 0.00 | 0.00 | 1.00 | $300,000 | $0 |
Roll Value History
| 2026 | N/A | N/A | N/A | N/A | N/A |
| 2025 | $0 | $300,000 | $0 | $300,000 | $300,000 |
| 2024 | $0 | $300,000 | $0 | $300,000 | $300,000 |
| 2023 | $0 | $310,000 | $0 | $310,000 | $310,000 |
| 2022 | $0 | $230,000 | $0 | $230,000 | $230,000 |
| 2021 | $0 | $200,000 | $0 | $200,000 | $200,000 |
| 2020 | $0 | $20,000 | $0 | $20,000 | $20,000 |
| 2019 | $0 | $20,000 | $0 | $20,000 | $20,000 |
| 2018 | $0 | $20,000 | $0 | $20,000 | $20,000 |
| 2017 | $0 | $20,000 | $0 | $20,000 | $20,000 |
| 2016 | $0 | $20,000 | $0 | $20,000 | $20,000 |
| 2015 | $0 | $20,000 | $0 | $20,000 | $20,000 |
| 2014 | $0 | $20,000 | $0 | $20,000 | $20,000 |
| 2013 | $0 | $20,000 | $0 | $20,000 | $20,000 |
| 2012 | $0 | $27,000 | $0 | $27,000 | $27,000 |
| 2011 | $0 | $27,000 | $0 | $27,000 | $27,000 |
| 2010 | $0 | $27,000 | $0 | $27,000 | $27,000 |
| 2009 | $0 | $30,000 | $0 | $30,000 | $30,000 |
| 2008 | $0 | $31,250 | $0 | $31,250 | $31,250 |
| 2007 | $0 | $35,000 | $0 | $35,000 | $35,000 |
Deed and Sales History
| 1 | 12/16/2021 | SPWARDEED | Special Warranty Deed | GILBERTSON, KENNETH | GILBERTSON, RUTH ANN | | | $0.00 | 51475 | 4536686 |
| 2 | 08/28/2013 | WD | Warranty Deed | MERCLICH, ROSA | GILBERTSON, KENNETH | | | $25,000.00 | 12594 | 4347205 |
| 3 | 11/04/2003 | 5 | DNU - Marriage License/Name Change | MERCLICH, VLADIMIR | MERCLICH, ROSA | | | $0.00 | 70050 | 0 |
| 4 | 03/01/1983 | CD | DNU - Correction Deed | MERCLICH, VLADIMIR | MERCLICH, VLADIMIR | | | $0.00 | 59904 | 0 |
| 5 | 01/01/1900 | OTHER | Other - Misc. Documents | Unknown | MERCLICH, VLADIMIR | | | $0.00 | 0 | 0 |
Payout Agreement
| No payout information available.. |