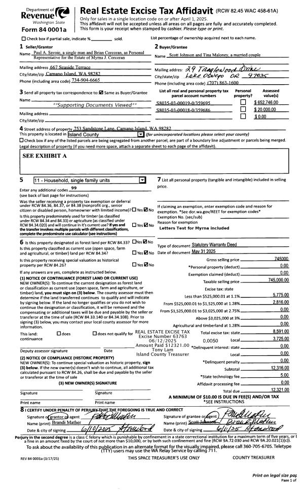
Property
Account |
| Property ID: | 359686 | Abbreviated Legal Description: | ROCKY PT TR 3 LOT 18 |
| Geographic ID: | S8035-03-00018-0 | Agent Code: | |
| Type: | Real | | |
| Tax Area: | 519 - APPRAISER-Stan/Cam Schl Dist, vacant & 50 acres or less | Land Use Code | 99 |
| Open Space: | N | DFL | N |
| Historic Property: | N | Remodel Property: | N |
| Multi-Family Redevelopment: | N | | |
| Township: | | Section: | |
| Range: | |
Location |
| Address: | | Mapsco: | |
| Neighborhood: | North Camano | Map ID: | 554 |
| Neighborhood CD: | 06-C |
Owner |
| Name: | JOHNSON, SCOTT | Owner ID: | 316903 |
| Mailing Address: | TINA MALONEY 29 TANGLEWOOD DR LAKE OSWEGO, OR 97035 | % Ownership: | 100.0000000000% |
| | | Exemptions: | |
Taxes and Assessment Details
Values
| (+) Improvement Homesite Value: | + | $0 | |
| (+) Improvement Non-Homesite Value: | + | $0 | |
| (+) Land Homesite Value: | + | $0 | |
| (+) Land Non-Homesite Value: | + | $20,000 | |
| (+) Curr Use (HS): | + | $0 | $0 |
| (+) Curr Use (NHS): | + | $0 | $0 |
| | | -------------------------- | |
| (=) Market Value: | = | $20,000 | |
| (–) Productivity Loss: | – | $0 | |
| | | -------------------------- | |
| (=) Subtotal: | = | $20,000 | |
| (+) Senior Appraised Value: | + | $0 | |
| (+) Non-Senior Appraised Value: | + | $20,000 | |
| | | -------------------------- | |
| (=) Total Appraised Value: | = | $20,000 | |
| (–) Senior Exemption Loss: | – | $0 | |
| (–) Exemption Loss: | – | $0 | |
| | | -------------------------- | |
| (=) Taxable Value: | = | $20,000 | |
Taxing Jurisdiction
| Owner: | JOHNSON, SCOTT | | |
| % Ownership: | 100.0000000000% | | |
| Total Value: | $20,000 | | |
| Tax Area: | 519 - APPRAISER-Stan/Cam Schl Dist, vacant & 50 acres or less |
| CF | Conservation Futures | 0.0313996660 | $20,000 | $20,000 | $0.63 | | |
| EMS1 | Fire & Rescue Dist #1 Camano GEN (EMS) | 0.4998471806 | $20,000 | $20,000 | $10.00 | | |
| CE | County Current Expense | 0.3674210519 | $20,000 | $20,000 | $7.35 | | |
| CR | County Roads | 0.4614296361 | $20,000 | $20,000 | $9.23 | | |
| LIB | Library Sno-Isle GEN | 0.3039084203 | $20,000 | $20,000 | $6.08 | | |
| SCH205_401 | School 205-401 Enrichment | 1.3697998934 | $20,000 | $20,000 | $27.40 | | |
| SCH205BOND | School 205-401 BOND | 0.9354199323 | $20,000 | $20,000 | $18.71 | | |
| ST | State School | 1.4761226122 | $20,000 | $20,000 | $29.52 | | |
| ST2 | State School Part 2 | 0.7953803475 | $20,000 | $20,000 | $15.91 | | |
| | Total Tax Rate: | 6.2407287403 | | | | | |
| | | | | Taxes w/Current Exemptions: | $124.83 | | |
| | | | | Taxes w/o Exemptions: | $124.83 | | |
Improvement / Building
Sketch
| No sketches available for this property. |
Property Image
Land
| 1 | 14 | SQ (08001-12000) | 0.0000 | 0.00 | 0.00 | 0.00 | 1.00 | $20,000 | $0 |
Roll Value History
| 2026 | N/A | N/A | N/A | N/A | N/A |
| 2025 | $0 | $20,000 | $0 | $20,000 | $20,000 |
| 2024 | $0 | $20,000 | $0 | $20,000 | $20,000 |
| 2023 | $0 | $20,000 | $0 | $20,000 | $20,000 |
| 2022 | $0 | $20,000 | $0 | $20,000 | $20,000 |
| 2021 | $0 | $20,000 | $0 | $20,000 | $20,000 |
| 2020 | $0 | $20,000 | $0 | $20,000 | $20,000 |
| 2019 | $0 | $20,000 | $0 | $20,000 | $20,000 |
| 2018 | $0 | $20,000 | $0 | $20,000 | $20,000 |
| 2017 | $0 | $20,000 | $0 | $20,000 | $20,000 |
| 2016 | $0 | $20,000 | $0 | $20,000 | $20,000 |
| 2015 | $0 | $20,000 | $0 | $20,000 | $20,000 |
| 2014 | $0 | $20,000 | $0 | $20,000 | $20,000 |
| 2013 | $0 | $20,000 | $0 | $20,000 | $20,000 |
| 2012 | $0 | $25,000 | $0 | $25,000 | $25,000 |
| 2011 | $0 | $25,000 | $0 | $25,000 | $25,000 |
| 2010 | $0 | $25,000 | $0 | $25,000 | $25,000 |
| 2009 | $0 | $30,000 | $0 | $30,000 | $30,000 |
| 2008 | $0 | $31,250 | $0 | $31,250 | $31,250 |
| 2007 | $0 | $35,000 | $0 | $35,000 | $35,000 |
Deed and Sales History
| 1 | 05/31/2025 | BARGSLD | Bargain And Sale Deed | PAUL A SAVOIE, PR | JOHNSON, SCOTT | | | $745,000.00 | 63763 | 4586877 |
|   | |
| 2 | 02/08/2021 | QCD | Quit Claim Deed | SAVOIE, PAUL A | SAVOIE, PAUL A | | | $0.00 | 46934 | 4510862 |
| 3 | 06/30/2011 | QCD | Quit Claim Deed | CORCORAN, MYRNA J | SAVOIE, PAUL A | | | $17,500.00 | 4897 | 4297723 |
| 4 | 06/20/2011 | QCD | Quit Claim Deed | CORCORAN TRUSTEE, MYRNA J | CORCORAN, MYRNA J | | | $0.00 | 4744 | 4297044 |
| 5 | 07/06/2010 | WD | Warranty Deed | Unknown | CORCORAN TRUSTEE, MYRNA J | | | $35,000.00 | 1732 | 4277040 |
Payout Agreement
| No payout information available.. |