Property
Account |
| Property ID: | 36062 | Abbreviated Legal Description: | 47 - E/2 NW NE SE |
| Geographic ID: | R13324-230-4460 | Agent Code: | |
| Type: | Real | | |
| Tax Area: | 112 - APPRAISER-OH Schl Dist, outside OH, improved, greater than 1 acre | Land Use Code | 11 |
| Open Space: | N | DFL | N |
| Historic Property: | N | Remodel Property: | N |
| Multi-Family Redevelopment: | N | | |
| Township: | 33 | Section: | 24 |
| Range: | R1 |
Location |
| Address: | | Mapsco: | |
| Neighborhood: | Cycle 6 | Map ID: | 223 |
| Neighborhood CD: | 6 |
Owner |
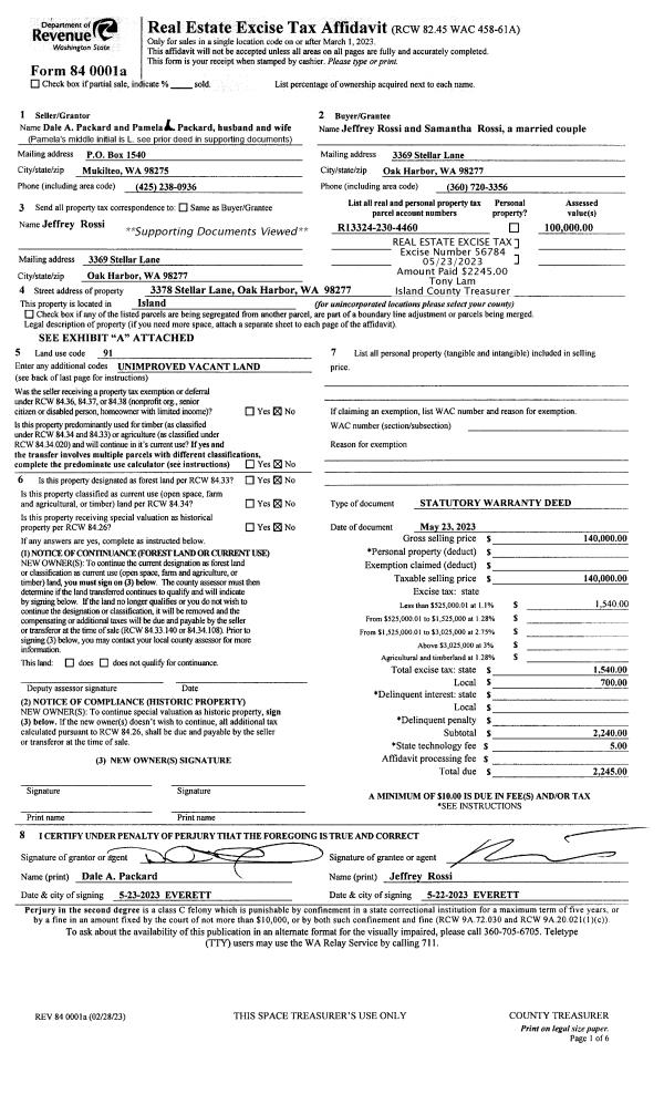
| Name: | ROSSI, JEFFREY | Owner ID: | 308709 |
| Mailing Address: | SAMANTHA ROSSI 3369 STELLAR LN OAK HARBOR, WA 98277 | % Ownership: | 100.0000000000% |
| | | Exemptions: | |
Taxes and Assessment Details
Values
| (+) Improvement Homesite Value: | + | $0 | |
| (+) Improvement Non-Homesite Value: | + | $191,873 | |
| (+) Land Homesite Value: | + | $0 | |
| (+) Land Non-Homesite Value: | + | $235,000 | |
| (+) Curr Use (HS): | + | $0 | $0 |
| (+) Curr Use (NHS): | + | $0 | $0 |
| | | -------------------------- | |
| (=) Market Value: | = | $426,873 | |
| (–) Productivity Loss: | – | $0 | |
| | | -------------------------- | |
| (=) Subtotal: | = | $426,873 | |
| (+) Senior Appraised Value: | + | $0 | |
| (+) Non-Senior Appraised Value: | + | $426,873 | |
| | | -------------------------- | |
| (=) Total Appraised Value: | = | $426,873 | |
| (–) Senior Exemption Loss: | – | $0 | |
| (–) Exemption Loss: | – | $0 | |
| | | -------------------------- | |
| (=) Taxable Value: | = | $426,873 | |
Taxing Jurisdiction
| Owner: | ROSSI, JEFFREY | | |
| % Ownership: | 100.0000000000% | | |
| Total Value: | $426,873 | | |
| Tax Area: | 112 - APPRAISER-OH Schl Dist, outside OH, improved, greater than 1 acre |
| CF | Conservation Futures | 0.0313996660 | $426,873 | $426,873 | $13.40 | | |
| CEM1 | Cemetery #1 | 0.0040018856 | $426,873 | $426,873 | $1.71 | | |
| FIRE2 | Fire & Rescue Dist #2 N Whidbey GEN | 0.5381486274 | $426,873 | $426,873 | $229.72 | | |
| HOBOND | Hospital BOND | 0.1893405597 | $426,873 | $426,873 | $80.82 | | |
| HOGEN | Hospital GEN | 0.3848777722 | $426,873 | $426,873 | $164.29 | | |
| CE | County Current Expense | 0.3674210519 | $426,873 | $426,873 | $156.84 | | |
| CR | County Roads | 0.4614296361 | $426,873 | $426,873 | $196.97 | | |
| ISLANDEMS | Hospital GEN (EMS) | 0.4952018576 | $426,873 | $426,873 | $211.39 | | |
| LIB | Library Sno-Isle GEN | 0.3039084203 | $426,873 | $426,873 | $129.73 | | |
| NWHIDPRMT | P & R N Whidbey GEN | 0.1990272349 | $426,873 | $426,873 | $84.96 | | |
| SCH201MO | School 201 Enrichment | 2.3851112745 | $426,873 | $426,873 | $1,018.14 | | |
| ST | State School | 1.4761226122 | $426,873 | $426,873 | $630.12 | | |
| ST2 | State School Part 2 | 0.7953803475 | $426,873 | $426,873 | $339.53 | | |
| | Total Tax Rate: | 7.6313709459 | | | | | |
| | | | | Taxes w/Current Exemptions: | $3,257.62 | | |
| | | | | Taxes w/o Exemptions: | $3,257.62 | | |
Improvement / Building
| Improvement #1: | RESIDENTIAL | State Code: | Y | 1200.0 sqft | Value: | $191,873 |
| Bathrooms: | 1 | Bedrooms: | 2 | | Ceiling: | DRYWALL PAINTED | Exterior Wall/Cover: | CEMENT FIBER | | Floor Covering: | LAMINATE/LVP | Floor Structure: | WOOD W/SUBFLOOR | | Foundation: | CONCRETE | Heating: | HEAT PUMP | | Interior Finish: | DRYWALL PAINT | Plumbing Fixture Cnt: | 6 | | Roof Slope: | 4" IN 12" | Roof Structure/Cover: | CJ METAL |
|
| | Type | Description | Class CD | Sub Class CD | Year Built | Area |
| | BAS | BASE/MAIN FLOOR | 3 | 0 | 2025 | 1200.0 |
| | AGR | ATTACHED GARAGE | 3 | 0 | 2025 | 624.0 |
| | oQUN | QUONSET HUT | 3 | | 2025 | 1466.2 |
Sketch
| No sketches available for this property. |
Property Image
Land
| 1 | 32 | AC (03.01-09.99) | 5.0000 | 0.00 | 0.00 | 0.00 | 1.00 | $235,000 | $0 |
Roll Value History
| 2026 | N/A | N/A | N/A | N/A | N/A |
| 2025 | $191,873 | $235,000 | $0 | $426,873 | $426,873 |
| 2024 | $13,149 | $150,000 | $0 | $163,149 | $163,149 |
| 2023 | $0 | $140,000 | $0 | $140,000 | $140,000 |
| 2022 | $0 | $100,000 | $0 | $100,000 | $100,000 |
| 2021 | $0 | $90,000 | $0 | $90,000 | $90,000 |
| 2020 | $0 | $70,000 | $0 | $70,000 | $70,000 |
| 2019 | $0 | $90,000 | $0 | $90,000 | $90,000 |
| 2018 | $0 | $90,000 | $0 | $90,000 | $90,000 |
| 2017 | $0 | $80,000 | $0 | $80,000 | $80,000 |
| 2016 | $0 | $80,000 | $0 | $80,000 | $80,000 |
| 2015 | $0 | $60,000 | $0 | $60,000 | $60,000 |
| 2014 | $0 | $75,000 | $0 | $75,000 | $75,000 |
| 2013 | $0 | $65,000 | $0 | $65,000 | $65,000 |
| 2012 | $0 | $100,000 | $0 | $100,000 | $100,000 |
| 2011 | $0 | $100,000 | $0 | $100,000 | $100,000 |
| 2010 | $0 | $100,000 | $0 | $100,000 | $100,000 |
| 2009 | $0 | $125,000 | $0 | $125,000 | $125,000 |
| 2008 | $0 | $125,000 | $0 | $125,000 | $125,000 |
| 2007 | $0 | $100,000 | $0 | $100,000 | $100,000 |
Deed and Sales History
| 1 | 05/23/2023 | WD | Warranty Deed | PACKARD, DALE A | ROSSI, JEFFREY | | | $140,000.00 | 56784 | 4560219 |
| 2 | 12/29/2015 | QCD | Quit Claim Deed | HILLIS, LARRY O | PACKARD, DALE A | | | $0.00 | 22761 | 4392223 |
| 3 | 07/01/1980 | WD | Warranty Deed | HILLIS, HOMES, I | HILLIS, LARRY O | | | $7,786.00 | 2543 | 371785 |
| 4 | 01/01/1900 | OTHER | Other - Misc. Documents | Unknown | HILLIS, HOMES, I | | | $0.00 | 0 | 0 |
Payout Agreement
| No payout information available.. |