Property
Account |
| Property ID: | 361156 | Abbreviated Legal Description: | ROLL HILL LOT 9 BLK 4 |
| Geographic ID: | S8050-00-04009-0 | Agent Code: | |
| Type: | Real | | |
| Tax Area: | 330 - APPRAISER-Cpvl Schl Dist, Special Dist, improved & less than 1 acre | Land Use Code | 11 |
| Open Space: | N | DFL | N |
| Historic Property: | N | Remodel Property: | N |
| Multi-Family Redevelopment: | N | | |
| Township: | | Section: | |
| Range: | |
Location |
| Address: | 1650 STEPHEN ST OAK HARBOR, WA 98277 | Mapsco: | |
| Neighborhood: | Cycle 2 | Map ID: | 146 |
| Neighborhood CD: | 2 |
Owner |
| Name: | TIBBITS, CHRISTEN | Owner ID: | 305203 |
| Mailing Address: | JODY WALSH BARBARA TIBBITS 1650 STEPHEN ST OAK HARBOR, WA 98277 | % Ownership: | 100.0000000000% |
| | | Exemptions: | |
Taxes and Assessment Details
Values
| (+) Improvement Homesite Value: | + | $0 | |
| (+) Improvement Non-Homesite Value: | + | $221,672 | |
| (+) Land Homesite Value: | + | $0 | |
| (+) Land Non-Homesite Value: | + | $220,000 | |
| (+) Curr Use (HS): | + | $0 | $0 |
| (+) Curr Use (NHS): | + | $0 | $0 |
| | | -------------------------- | |
| (=) Market Value: | = | $441,672 | |
| (–) Productivity Loss: | – | $0 | |
| | | -------------------------- | |
| (=) Subtotal: | = | $441,672 | |
| (+) Senior Appraised Value: | + | $0 | |
| (+) Non-Senior Appraised Value: | + | $441,672 | |
| | | -------------------------- | |
| (=) Total Appraised Value: | = | $441,672 | |
| (–) Senior Exemption Loss: | – | $0 | |
| (–) Exemption Loss: | – | $0 | |
| | | -------------------------- | |
| (=) Taxable Value: | = | $441,672 | |
Taxing Jurisdiction
| Owner: | TIBBITS, CHRISTEN | | |
| % Ownership: | 100.0000000000% | | |
| Total Value: | $441,672 | | |
| Tax Area: | 330 - APPRAISER-Cpvl Schl Dist, Special Dist, improved & less than 1 acre |
| CF | Conservation Futures | 0.0313996660 | $441,672 | $441,672 | $13.87 | | |
| CEM2 | Cemetery #2 | 0.0092609791 | $441,672 | $441,672 | $4.09 | | |
| FIRE2 | Fire & Rescue Dist #2 N Whidbey GEN | 0.5381486274 | $441,672 | $441,672 | $237.69 | | |
| HOBOND | Hospital BOND | 0.1893405597 | $441,672 | $441,672 | $83.63 | | |
| HOGEN | Hospital GEN | 0.3848777722 | $441,672 | $441,672 | $169.99 | | |
| CE | County Current Expense | 0.3674210519 | $441,672 | $441,672 | $162.28 | | |
| CR | County Roads | 0.4614296361 | $441,672 | $441,672 | $203.80 | | |
| ISLANDEMS | Hospital GEN (EMS) | 0.4952018576 | $441,672 | $441,672 | $218.72 | | |
| LIB | Library Sno-Isle GEN | 0.3039084203 | $441,672 | $441,672 | $134.23 | | |
| LIBCAP | Library Sno-Isle BOND (Cap Fac Imp Area) | 0.0528562629 | $441,672 | $441,672 | $23.35 | | |
| POCOUP | Port of Coupeville GEN | 0.1065226063 | $441,672 | $441,672 | $47.05 | | |
| POCOUPIDD | Port of Coupeville IDD | 0.3353038577 | $441,672 | $441,672 | $148.09 | | |
| COUPSDTECH | School 204 CP (TECH) | 0.1215123397 | $441,672 | $441,672 | $53.67 | | |
| SCH204MO | School 204 Enrichment | 0.6416662518 | $441,672 | $441,672 | $283.41 | | |
| ST | State School | 1.4761226122 | $441,672 | $441,672 | $651.96 | | |
| ST2 | State School Part 2 | 0.7953803475 | $441,672 | $441,672 | $351.30 | | |
| | Total Tax Rate: | 6.3103528484 | | | | | |
| | | | | Taxes w/Current Exemptions: | $2,787.13 | | |
| | | | | Taxes w/o Exemptions: | $2,787.13 | | |
Improvement / Building
| Improvement #1: | RESIDENTIAL | State Code: | Y | 1509.0 sqft | Value: | $221,672 |
| Bathrooms: | 2 | Bedrooms: | 3 | | Ceiling: | DRY WALL SPRAYED | Cooling: | HEAT PUMP/CONV/V | | Exterior Wall/Cover: | WOOD SIDING | Floor Covering: | CARPET/VINYL 80-20 | | Floor Structure: | WOOD W/SUBFLOOR | Foundation: | CONCRETE | | Interior Finish: | DRYWALL PAINT | Plumbing Fixture Cnt: | 10 | | Roof Slope: | 4" IN 12" | Roof Structure/Cover: | CJ ASPHALT |
|
| | Type | Description | Class CD | Sub Class CD | Year Built | Area |
| | BAS | BASE/MAIN FLOOR | 3 | 0 | 1977 | 1509.0 |
| | OP4 | OPEN PORCH W/CEILING-ROOF | 3 | 0 | 1977 | 135.0 |
Sketch
Property Image
Land
| 1 | 16 | AC (00.51-01.00) | 0.5900 | 25700.40 | 0.00 | 0.00 | 1.00 | $220,000 | $0 |
Roll Value History
| 2026 | N/A | N/A | N/A | N/A | N/A |
| 2025 | $221,672 | $220,000 | $0 | $441,672 | $441,672 |
| 2024 | $213,175 | $210,000 | $0 | $423,175 | $423,175 |
| 2023 | $216,084 | $220,000 | $0 | $436,084 | $436,084 |
| 2022 | $198,298 | $220,000 | $0 | $418,298 | $418,298 |
| 2021 | $174,723 | $180,000 | $0 | $354,723 | $354,723 |
| 2020 | $170,291 | $140,000 | $0 | $310,291 | $310,291 |
| 2019 | $122,065 | $170,000 | $0 | $292,065 | $292,065 |
| 2018 | $122,455 | $135,000 | $0 | $257,455 | $257,455 |
| 2017 | $122,682 | $120,000 | $0 | $242,682 | $242,682 |
| 2016 | $109,586 | $100,000 | $0 | $209,586 | $209,586 |
| 2015 | $111,140 | $70,000 | $0 | $181,140 | $181,140 |
| 2014 | $112,692 | $60,000 | $0 | $172,692 | $172,692 |
| 2013 | $114,246 | $55,000 | $0 | $169,246 | $169,246 |
| 2012 | $120,853 | $57,800 | $0 | $178,653 | $178,653 |
| 2011 | $122,432 | $68,000 | $0 | $190,432 | $190,432 |
| 2010 | $129,809 | $68,000 | $0 | $197,809 | $197,809 |
| 2009 | $135,505 | $74,400 | $0 | $209,905 | $209,905 |
| 2008 | $137,448 | $75,600 | $0 | $213,048 | $213,048 |
| 2007 | $139,392 | $75,600 | $0 | $214,992 | $214,992 |
Deed and Sales History
| 1 | 07/19/2022 | WD | Warranty Deed | GILMORE, RYAN | TIBBITS, CHRISTEN | | | $465,000.00 | 53913 | 4548797 |
| 2 | 05/05/2017 | QCD | Quit Claim Deed | GILMORE, RYAN | GILMORE, RYAN | | | $0.00 | 29182 | 4422003 |
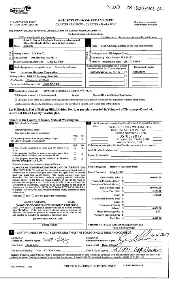
| 3 | 05/01/2017 | WD | Warranty Deed | HAY, SCOTT A | GILMORE, RYAN | | | $260,000.00 | 29178 | 4422002 |
| 4 | 10/24/2001 | WD | Warranty Deed | SULLIVAN, DANIEL W | HAY, SCOTT A | | | $136,000.00 | 14137 | 4000965 |
| 5 | 02/01/1987 | QCD | Quit Claim Deed | ROSE, LILLY D | SULLIVAN, DANIEL W | | | $0.00 | 70522 | 87003140 |
| 6 | 02/01/1984 | QCD | Quit Claim Deed | SULLIVAN, MARY A | ROSE, LILLY D | | | $44,500.00 | 40517 | 421546 |
| 7 | 09/01/1981 | TRUSTEED | Trustee's Deed | BRAY, MADELINE L | SULLIVAN, MARY A | | | $46,000.00 | 12955 | 388170 |
| 8 | 01/01/1900 | OTHER | Other - Misc. Documents | UNITED, STATES O | BRAY, MADELINE L | | | $0.00 | 0 | 0 |
| 9 | 01/01/1900 | WD | Warranty Deed | Unknown | UNITED, STATES O | | | $0.00 | 32330 | 413693 |
Payout Agreement
| No payout information available.. |