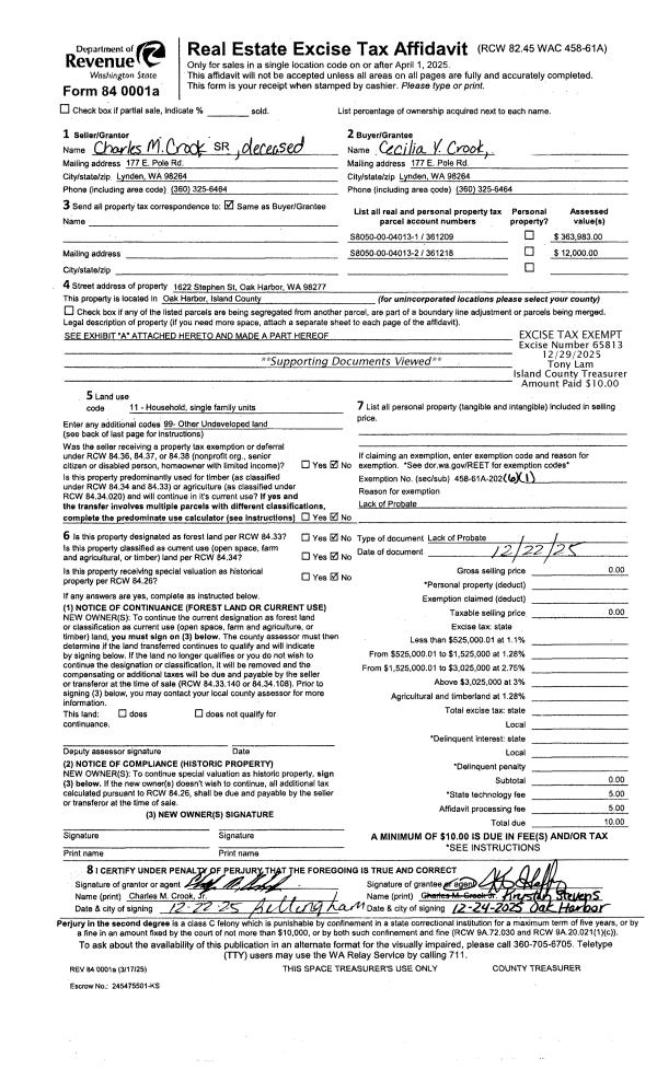
Property
Account |
| Property ID: | 361218 | Abbreviated Legal Description: | ROLL HILL E33.33' OF LOT 13 & W33.33' OF LOT 14 BLK 4 |
| Geographic ID: | S8050-00-04013-2 | Agent Code: | |
| Type: | Real | | |
| Tax Area: | 339 - APPRAISER-Cpvl Schl Dist, Special Dist, vacant & 50 acres or less | Land Use Code | 99 |
| Open Space: | N | DFL | N |
| Historic Property: | N | Remodel Property: | N |
| Multi-Family Redevelopment: | N | | |
| Township: | | Section: | |
| Range: | |
Location |
| Address: | | Mapsco: | |
| Neighborhood: | Cycle 2 | Map ID: | 146 |
| Neighborhood CD: | 2 |
Owner |
| Name: | CROOK, CHARLES M | Owner ID: | 11403 |
| Mailing Address: | CECILIA Y CROOK 1622 STEPHEN ST OAK HARBOR, WA 98277-8242 | % Ownership: | 100.0000000000% |
| | | Exemptions: | |
Taxes and Assessment Details
Values
| (+) Improvement Homesite Value: | + | $0 | |
| (+) Improvement Non-Homesite Value: | + | $0 | |
| (+) Land Homesite Value: | + | $0 | |
| (+) Land Non-Homesite Value: | + | $12,000 | |
| (+) Curr Use (HS): | + | $0 | $0 |
| (+) Curr Use (NHS): | + | $0 | $0 |
| | | -------------------------- | |
| (=) Market Value: | = | $12,000 | |
| (–) Productivity Loss: | – | $0 | |
| | | -------------------------- | |
| (=) Subtotal: | = | $12,000 | |
| (+) Senior Appraised Value: | + | $0 | |
| (+) Non-Senior Appraised Value: | + | $12,000 | |
| | | -------------------------- | |
| (=) Total Appraised Value: | = | $12,000 | |
| (–) Senior Exemption Loss: | – | $0 | |
| (–) Exemption Loss: | – | $0 | |
| | | -------------------------- | |
| (=) Taxable Value: | = | $12,000 | |
Taxing Jurisdiction
| Owner: | CROOK, CHARLES M | | |
| % Ownership: | 100.0000000000% | | |
| Total Value: | $12,000 | | |
| Tax Area: | 339 - APPRAISER-Cpvl Schl Dist, Special Dist, vacant & 50 acres or less |
| CF | Conservation Futures | 0.0313996660 | $12,000 | $12,000 | $0.38 | | |
| CEM2 | Cemetery #2 | 0.0092609791 | $12,000 | $12,000 | $0.11 | | |
| HOBOND | Hospital BOND | 0.1893405597 | $12,000 | $12,000 | $2.27 | | |
| HOGEN | Hospital GEN | 0.3848777722 | $12,000 | $12,000 | $4.62 | | |
| CE | County Current Expense | 0.3674210519 | $12,000 | $12,000 | $4.41 | | |
| CR | County Roads | 0.4614296361 | $12,000 | $12,000 | $5.54 | | |
| ISLANDEMS | Hospital GEN (EMS) | 0.4952018576 | $12,000 | $12,000 | $5.94 | | |
| LIB | Library Sno-Isle GEN | 0.3039084203 | $12,000 | $12,000 | $3.65 | | |
| LIBCAP | Library Sno-Isle BOND (Cap Fac Imp Area) | 0.0528562629 | $12,000 | $12,000 | $0.63 | | |
| POCOUP | Port of Coupeville GEN | 0.1065226063 | $12,000 | $12,000 | $1.28 | | |
| POCOUPIDD | Port of Coupeville IDD | 0.3353038577 | $12,000 | $12,000 | $4.02 | | |
| COUPSDTECH | School 204 CP (TECH) | 0.1215123397 | $12,000 | $12,000 | $1.46 | | |
| SCH204MO | School 204 Enrichment | 0.6416662518 | $12,000 | $12,000 | $7.70 | | |
| ST | State School | 1.4761226122 | $12,000 | $12,000 | $17.71 | | |
| ST2 | State School Part 2 | 0.7953803475 | $12,000 | $12,000 | $9.54 | | |
| | Total Tax Rate: | 5.7722042210 | | | | | |
| | | | | Taxes w/Current Exemptions: | $69.26 | | |
| | | | | Taxes w/o Exemptions: | $69.26 | | |
Improvement / Building
Sketch
| No sketches available for this property. |
Property Image
Land
| 1 | 15 | SQ (12001-21780) | 0.3372 | 14688.43 | 0.00 | 0.00 | 1.00 | $12,000 | $0 |
Roll Value History
| 2026 | N/A | N/A | N/A | N/A | N/A |
| 2025 | $0 | $12,000 | $0 | $12,000 | $12,000 |
| 2024 | $0 | $12,000 | $0 | $12,000 | $12,000 |
| 2023 | $0 | $9,000 | $0 | $9,000 | $9,000 |
| 2022 | $0 | $9,000 | $0 | $9,000 | $9,000 |
| 2021 | $0 | $7,000 | $0 | $7,000 | $7,000 |
| 2020 | $0 | $7,000 | $0 | $7,000 | $7,000 |
| 2019 | $0 | $7,000 | $0 | $7,000 | $7,000 |
| 2018 | $0 | $7,000 | $0 | $7,000 | $7,000 |
| 2017 | $0 | $5,000 | $0 | $5,000 | $5,000 |
| 2016 | $0 | $5,000 | $0 | $5,000 | $5,000 |
| 2015 | $0 | $5,000 | $0 | $5,000 | $5,000 |
| 2014 | $0 | $5,000 | $0 | $5,000 | $5,000 |
| 2013 | $0 | $5,000 | $0 | $5,000 | $5,000 |
| 2012 | $0 | $6,800 | $0 | $6,800 | $6,800 |
| 2011 | $0 | $6,800 | $0 | $6,800 | $6,800 |
| 2010 | $0 | $6,800 | $0 | $6,800 | $6,800 |
| 2009 | $0 | $7,440 | $0 | $7,440 | $7,440 |
| 2008 | $0 | $7,440 | $0 | $7,440 | $7,440 |
| 2007 | $0 | $7,440 | $0 | $7,440 | $7,440 |
Deed and Sales History
| 1 | 12/22/2025 | WD | Warranty Deed | CROOK, CECILIA Y | SMITH, DAVID W | | | $280,000.00 | 65814 | 4595128 |
|   | |
| 2 | 12/22/2025 | LACPROBATE | Lack of Probate | CROOK, CHARLES M | CROOK, CECILIA Y | | | $0.00 | 65813 | 4595127 |
| 3 | 04/19/2002 | WD | Warranty Deed | BETHLEHEM LUTHERAN CHURCH, | CROOK, CHARLES M | | | $3,000.00 | 21524 | 4017964 |
| 4 | 12/12/2001 | QCD | Quit Claim Deed | WILCOX, GEORGE B | BETHLEHEM LUTHERAN CHURCH, | | | $0.00 | 14665 | 4005480 |
| 5 | 09/01/1992 | PRD | Personal Representatives Deed | WILCOX, MARY F | WILCOX, GEORGE B | | | $0.00 | 24022 | 92019476 |
| 6 | 01/01/1900 | OTHER | Other - Misc. Documents | Unknown | WILCOX, MARY F | | | $0.00 | 0 | 0 |
Payout Agreement
| No payout information available.. |