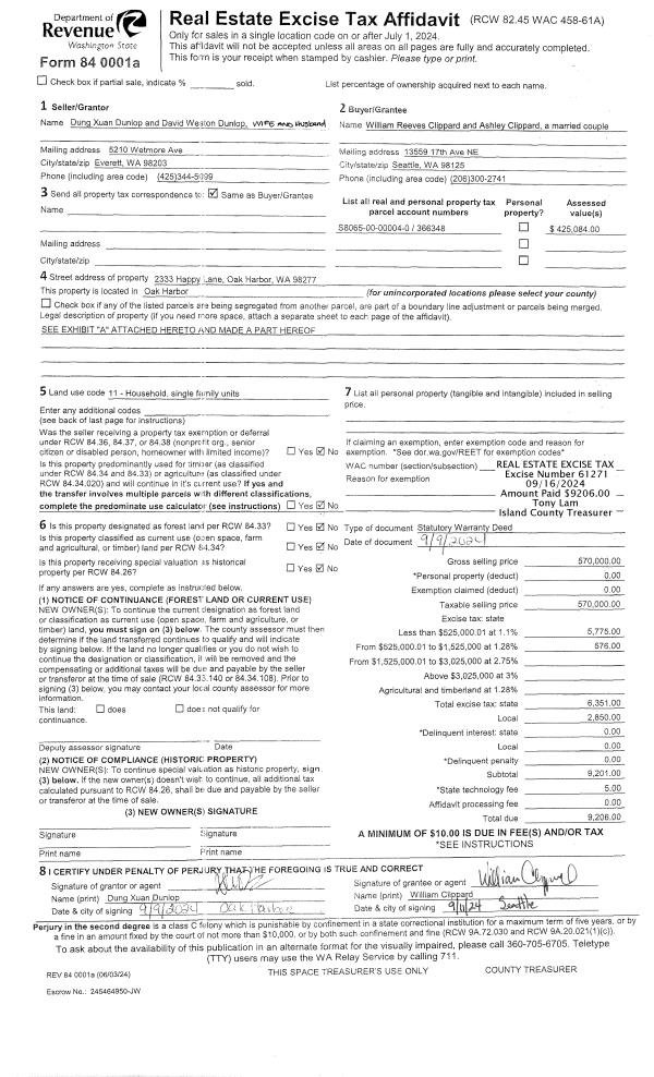
Property
Account |
| Property ID: | 361771 | Abbreviated Legal Description: | ROLL HILL LOT 10 BLK 6 |
| Geographic ID: | S8050-00-06010-0 | Agent Code: | |
| Type: | Real | | |
| Tax Area: | 330 - APPRAISER-Cpvl Schl Dist, Special Dist, improved & less than 1 acre | Land Use Code | 11 |
| Open Space: | N | DFL | N |
| Historic Property: | N | Remodel Property: | N |
| Multi-Family Redevelopment: | N | | |
| Township: | | Section: | |
| Range: | |
Location |
| Address: | 952 DONALD AVE OAK HARBOR, WA 98277 | Mapsco: | |
| Neighborhood: | Cycle 2 | Map ID: | 149 |
| Neighborhood CD: | 2 |
Owner |
| Name: | SANDRITTER, WAYNE A | Owner ID: | 265934 |
| Mailing Address: | PO BOX 1245 OAK HARBOR, WA 98277 | % Ownership: | 100.0000000000% |
| | | Exemptions: | |
Taxes and Assessment Details
Values
| (+) Improvement Homesite Value: | + | $0 | |
| (+) Improvement Non-Homesite Value: | + | $226,031 | |
| (+) Land Homesite Value: | + | $0 | |
| (+) Land Non-Homesite Value: | + | $220,000 | |
| (+) Curr Use (HS): | + | $0 | $0 |
| (+) Curr Use (NHS): | + | $0 | $0 |
| | | -------------------------- | |
| (=) Market Value: | = | $446,031 | |
| (–) Productivity Loss: | – | $0 | |
| | | -------------------------- | |
| (=) Subtotal: | = | $446,031 | |
| (+) Senior Appraised Value: | + | $0 | |
| (+) Non-Senior Appraised Value: | + | $446,031 | |
| | | -------------------------- | |
| (=) Total Appraised Value: | = | $446,031 | |
| (–) Senior Exemption Loss: | – | $0 | |
| (–) Exemption Loss: | – | $0 | |
| | | -------------------------- | |
| (=) Taxable Value: | = | $446,031 | |
Taxing Jurisdiction
| Owner: | SANDRITTER, WAYNE A | | |
| % Ownership: | 100.0000000000% | | |
| Total Value: | $446,031 | | |
| Tax Area: | 330 - APPRAISER-Cpvl Schl Dist, Special Dist, improved & less than 1 acre |
| CF | Conservation Futures | 0.0313996660 | $446,031 | $446,031 | $14.01 | | |
| CEM2 | Cemetery #2 | 0.0092609791 | $446,031 | $446,031 | $4.13 | | |
| FIRE2 | Fire & Rescue Dist #2 N Whidbey GEN | 0.5381486274 | $446,031 | $446,031 | $240.03 | | |
| HOBOND | Hospital BOND | 0.1893405597 | $446,031 | $446,031 | $84.45 | | |
| HOGEN | Hospital GEN | 0.3848777722 | $446,031 | $446,031 | $171.67 | | |
| CE | County Current Expense | 0.3674210519 | $446,031 | $446,031 | $163.88 | | |
| CR | County Roads | 0.4614296361 | $446,031 | $446,031 | $205.81 | | |
| ISLANDEMS | Hospital GEN (EMS) | 0.4952018576 | $446,031 | $446,031 | $220.88 | | |
| LIB | Library Sno-Isle GEN | 0.3039084203 | $446,031 | $446,031 | $135.55 | | |
| LIBCAP | Library Sno-Isle BOND (Cap Fac Imp Area) | 0.0528562629 | $446,031 | $446,031 | $23.58 | | |
| POCOUP | Port of Coupeville GEN | 0.1065226063 | $446,031 | $446,031 | $47.51 | | |
| POCOUPIDD | Port of Coupeville IDD | 0.3353038577 | $446,031 | $446,031 | $149.56 | | |
| COUPSDTECH | School 204 CP (TECH) | 0.1215123397 | $446,031 | $446,031 | $54.20 | | |
| SCH204MO | School 204 Enrichment | 0.6416662518 | $446,031 | $446,031 | $286.20 | | |
| ST | State School | 1.4761226122 | $446,031 | $446,031 | $658.40 | | |
| ST2 | State School Part 2 | 0.7953803475 | $446,031 | $446,031 | $354.76 | | |
| | Total Tax Rate: | 6.3103528484 | | | | | |
| | | | | Taxes w/Current Exemptions: | $2,814.62 | | |
| | | | | Taxes w/o Exemptions: | $2,814.62 | | |
Improvement / Building
| Improvement #1: | RESIDENTIAL | State Code: | Y | 1032.0 sqft | Value: | $226,031 |
| Bathrooms: | 2 | Bedrooms: | 2 | | Ceiling: | DRYWALL PAINTED | Exterior Wall/Cover: | PLY/HARDBOARD T-111 | | Floor Covering: | CARPET/VINYL 80-20 | Floor Structure: | WOOD W/SUBFLOOR | | Foundation: | CONCRETE | Heating: | WALL HEAT ELECTRIC | | Interior Finish: | DRYWALL PAINT | Plumbing Fixture Cnt: | 9 | | Roof Slope: | 6" IN 12" | Roof Structure/Cover: | CJ ASPHALT |
|
| | Type | Description | Class CD | Sub Class CD | Year Built | Area |
| | BAS | BASE/MAIN FLOOR | 3 | 0 | 1989 | 1032.0 |
| | AGR | ATTACHED GARAGE | 3 | 0 | 1989 | 484.0 |
| | OWP | OPEN WOOD PORCH W/STEPS | 3 | 0 | 1989 | 199.3 |
| | OWC | OPEN WOOD PORCH W/STEPS/ROOF/C | 3 | 0 | 1989 | 10.8 |
| | UTY | STORAGE/UTILITY | 3 | 0 | 1989 | 240.0 |
Sketch
Property Image
Land
| 1 | 15 | SQ (12001-21780) | 0.4400 | 19166.40 | 0.00 | 0.00 | 1.00 | $220,000 | $0 |
Roll Value History
| 2026 | N/A | N/A | N/A | N/A | N/A |
| 2025 | $226,031 | $220,000 | $0 | $446,031 | $446,031 |
| 2024 | $223,248 | $210,000 | $0 | $433,248 | $433,248 |
| 2023 | $226,031 | $220,000 | $0 | $446,031 | $446,031 |
| 2022 | $207,191 | $220,000 | $0 | $427,191 | $427,191 |
| 2021 | $182,357 | $180,000 | $0 | $362,357 | $362,357 |
| 2020 | $177,070 | $140,000 | $0 | $317,070 | $317,070 |
| 2019 | $124,314 | $170,000 | $0 | $294,314 | $294,314 |
| 2018 | $102,966 | $135,000 | $0 | $237,966 | $237,966 |
| 2017 | $103,631 | $120,000 | $0 | $223,631 | $223,631 |
| 2016 | $104,983 | $100,000 | $0 | $204,983 | $204,983 |
| 2015 | $106,333 | $70,000 | $0 | $176,333 | $176,333 |
| 2014 | $107,686 | $60,000 | $0 | $167,686 | $167,686 |
| 2013 | $109,036 | $55,000 | $0 | $164,036 | $164,036 |
| 2012 | $109,161 | $57,800 | $0 | $166,961 | $166,961 |
| 2011 | $110,493 | $68,000 | $0 | $178,493 | $178,493 |
| 2010 | $110,943 | $68,000 | $0 | $178,943 | $178,943 |
| 2009 | $115,796 | $74,400 | $0 | $190,196 | $190,196 |
| 2008 | $117,312 | $74,400 | $0 | $191,712 | $191,712 |
| 2007 | $118,927 | $74,400 | $0 | $193,327 | $193,327 |
Deed and Sales History
| 1 | 05/06/2014 | QCD | Quit Claim Deed | SANDRITTER, WAYNE A | SANDRITTER, WAYNE A | | | $0.00 | 15221 | 4359095 |
| 2 | 12/24/2004 | WD | Warranty Deed | HESS, MARION P | SANDRITTER, WAYNE A | | | $140,000.00 | 50019 | 4122301 |
| 3 | 05/01/1994 | WD | Warranty Deed | GROOM, RALPH G | HESS, MARION P | | | $100,000.00 | 42106 | 94012142 |
| 4 | 09/01/1990 | WD | Warranty Deed | SANTA, LUCIA P | GROOM, RALPH G | | | $82,500.00 | 5513 | 90018407 |
| 5 | 08/01/1990 | QCD | Quit Claim Deed | REEVS, CHARLES | SANTA, LUCIA P | | | $0.00 | 4621 | 90015323 |
| 6 | 04/01/1989 | WD | Warranty Deed | SANTA, LUCIA P | REEVS, CHARLES | | | $69,500.00 | 91512 | 89005281 |
| 7 | 09/01/1988 | WD | Warranty Deed | BAKKEN, ALICE | SANTA, LUCIA P | | | $1,200.00 | 83243 | 88012088 |
| 8 | 01/01/1900 | OTHER | Other - Misc. Documents | Unknown | BAKKEN, ALICE | | | $0.00 | 0 | 0 |
Payout Agreement
| No payout information available.. |