Property
Account |
| Property ID: | 361931 | Abbreviated Legal Description: | ROLL HILL LOT 3 BLK 7 |
| Geographic ID: | S8050-00-07003-0 | Agent Code: | |
| Type: | Real | | |
| Tax Area: | 330 - APPRAISER-Cpvl Schl Dist, Special Dist, improved & less than 1 acre | Land Use Code | 11 |
| Open Space: | N | DFL | N |
| Historic Property: | N | Remodel Property: | N |
| Multi-Family Redevelopment: | N | | |
| Township: | | Section: | |
| Range: | |
Location |
| Address: | 1002 CARL AVE OAK HARBOR, WA 98277 | Mapsco: | |
| Neighborhood: | Cycle 2 | Map ID: | 151 |
| Neighborhood CD: | 2 |
Owner |
| Name: | BIRD, KIRSTEN P | Owner ID: | 312173 |
| Mailing Address: | MATTHEW R BIRD 1002 CARL AVE OAK HARBOR, WA 98277 | % Ownership: | 100.0000000000% |
| | | Exemptions: | |
Taxes and Assessment Details
Values
| (+) Improvement Homesite Value: | + | $0 | |
| (+) Improvement Non-Homesite Value: | + | $242,183 | |
| (+) Land Homesite Value: | + | $0 | |
| (+) Land Non-Homesite Value: | + | $220,000 | |
| (+) Curr Use (HS): | + | $0 | $0 |
| (+) Curr Use (NHS): | + | $0 | $0 |
| | | -------------------------- | |
| (=) Market Value: | = | $462,183 | |
| (–) Productivity Loss: | – | $0 | |
| | | -------------------------- | |
| (=) Subtotal: | = | $462,183 | |
| (+) Senior Appraised Value: | + | $0 | |
| (+) Non-Senior Appraised Value: | + | $462,183 | |
| | | -------------------------- | |
| (=) Total Appraised Value: | = | $462,183 | |
| (–) Senior Exemption Loss: | – | $0 | |
| (–) Exemption Loss: | – | $0 | |
| | | -------------------------- | |
| (=) Taxable Value: | = | $462,183 | |
Taxing Jurisdiction
| Owner: | BIRD, KIRSTEN P | | |
| % Ownership: | 100.0000000000% | | |
| Total Value: | $462,183 | | |
| Tax Area: | 330 - APPRAISER-Cpvl Schl Dist, Special Dist, improved & less than 1 acre |
| CF | Conservation Futures | 0.0313996660 | $462,183 | $462,183 | $14.51 | | |
| CEM2 | Cemetery #2 | 0.0092609791 | $462,183 | $462,183 | $4.28 | | |
| FIRE2 | Fire & Rescue Dist #2 N Whidbey GEN | 0.5381486274 | $462,183 | $462,183 | $248.72 | | |
| HOBOND | Hospital BOND | 0.1893405597 | $462,183 | $462,183 | $87.51 | | |
| HOGEN | Hospital GEN | 0.3848777722 | $462,183 | $462,183 | $177.88 | | |
| CE | County Current Expense | 0.3674210519 | $462,183 | $462,183 | $169.82 | | |
| CR | County Roads | 0.4614296361 | $462,183 | $462,183 | $213.26 | | |
| ISLANDEMS | Hospital GEN (EMS) | 0.4952018576 | $462,183 | $462,183 | $228.87 | | |
| LIB | Library Sno-Isle GEN | 0.3039084203 | $462,183 | $462,183 | $140.46 | | |
| LIBCAP | Library Sno-Isle BOND (Cap Fac Imp Area) | 0.0528562629 | $462,183 | $462,183 | $24.43 | | |
| POCOUP | Port of Coupeville GEN | 0.1065226063 | $462,183 | $462,183 | $49.23 | | |
| POCOUPIDD | Port of Coupeville IDD | 0.3353038577 | $462,183 | $462,183 | $154.97 | | |
| COUPSDTECH | School 204 CP (TECH) | 0.1215123397 | $462,183 | $462,183 | $56.16 | | |
| SCH204MO | School 204 Enrichment | 0.6416662518 | $462,183 | $462,183 | $296.57 | | |
| ST | State School | 1.4761226122 | $462,183 | $462,183 | $682.24 | | |
| ST2 | State School Part 2 | 0.7953803475 | $462,183 | $462,183 | $367.61 | | |
| | Total Tax Rate: | 6.3103528484 | | | | | |
| | | | | Taxes w/Current Exemptions: | $2,916.52 | | |
| | | | | Taxes w/o Exemptions: | $2,916.52 | | |
Improvement / Building
| Improvement #1: | RESIDENTIAL | State Code: | Y | 2094.0 sqft | Value: | $242,183 |
| Bathrooms: | 2 | Bedrooms: | 3 | | Ceiling: | DRY WALL SPRAYED | Exterior Wall/Cover: | PLY/HARDBOARD T-111 | | Floor Covering: | SOFTWOOD 100% | Floor Structure: | WOOD W/SUBFLOOR | | Foundation: | CONCRETE | Heating: | FHA ELECTRIC | | Interior Finish: | DRYWALL PAINT | Plumbing Fixture Cnt: | 8 | | Roof Slope: | 5" IN 12" | Roof Structure/Cover: | CJ ASPHALT |
|
| | Type | Description | Class CD | Sub Class CD | Year Built | Area |
| | BAS | BASE/MAIN FLOOR | 3 | 0 | 1978 | 1047.0 |
| | DWN | DOWNSTAIRS LIVING AREA | 3 | 0 | 1978 | 1047.0 |
Sketch
| No sketches available for this property. |
Property Image
Land
| 1 | 15 | SQ (12001-21780) | 0.3300 | 14374.80 | 0.00 | 0.00 | 1.00 | $220,000 | $0 |
Roll Value History
| 2026 | N/A | N/A | N/A | N/A | N/A |
| 2025 | $242,183 | $220,000 | $0 | $462,183 | $462,183 |
| 2024 | $227,394 | $210,000 | $0 | $437,394 | $437,394 |
| 2023 | $230,458 | $220,000 | $0 | $450,458 | $450,458 |
| 2022 | $211,456 | $220,000 | $0 | $431,456 | $431,456 |
| 2021 | $190,329 | $180,000 | $0 | $370,329 | $370,329 |
| 2020 | $185,285 | $140,000 | $0 | $325,285 | $325,285 |
| 2019 | $130,385 | $170,000 | $0 | $300,385 | $300,385 |
| 2018 | $25,376 | $135,000 | $0 | $160,376 | $160,376 |
| 2017 | $25,583 | $120,000 | $0 | $145,583 | $145,583 |
| 2016 | $25,995 | $100,000 | $0 | $125,995 | $125,995 |
| 2015 | $26,408 | $70,000 | $0 | $96,408 | $96,408 |
| 2014 | $26,820 | $60,000 | $0 | $86,820 | $86,820 |
| 2013 | $27,233 | $55,000 | $0 | $82,233 | $32,233 |
| 2012 | $33,143 | $57,800 | $0 | $90,943 | $40,943 |
| 2011 | $33,636 | $68,000 | $0 | $101,636 | $51,636 |
| 2010 | $36,867 | $68,000 | $0 | $104,867 | $54,867 |
| 2009 | $37,980 | $74,400 | $0 | $112,380 | $112,380 |
| 2008 | $39,218 | $74,400 | $0 | $113,618 | $113,618 |
| 2007 | $40,456 | $74,400 | $0 | $114,856 | $114,856 |
Deed and Sales History
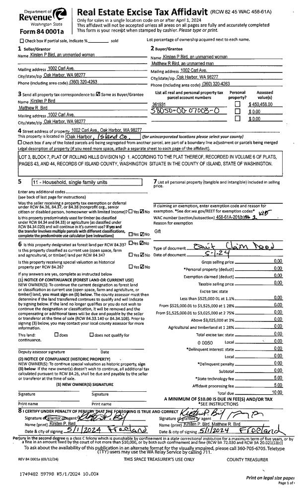
| 1 | 05/01/2024 | QCD | Quit Claim Deed | BIRD, KIRSTEN P | BIRD, KIRSTEN P | | | $0.00 | 59798 | 4571813 |
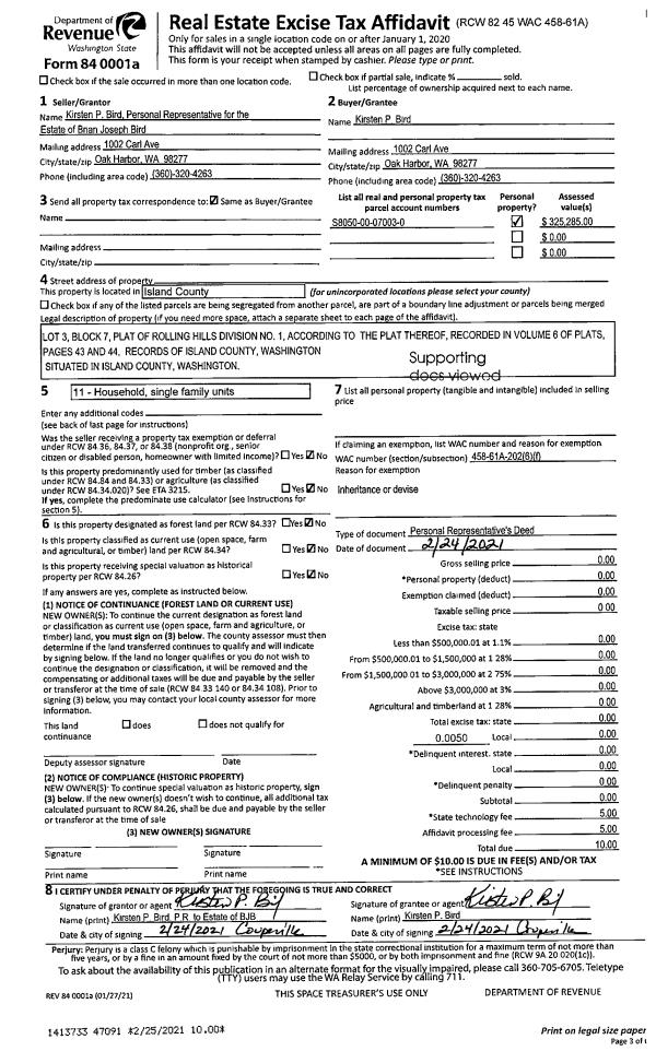
| 2 | 02/24/2021 | PRD | Personal Representatives Deed | BIRD, BRIAN | BIRD, KIRSTEN P | | | $0.00 | 47091 | 4511972 |
| 3 | 08/13/2014 | WD | Warranty Deed | MCADAMS, PAUL E | BIRD, BRIAN | | | $74,740.00 | 16605 | 4364794 |
| 4 | 04/20/2011 | | | MCADAMS, PAUL E | MCADAMS, PAUL E | | | | 82043 | |
| 5 | 02/21/2002 | WD | Warranty Deed | BLEDSOE, BONNIE | MCADAMS, PAUL E | | | $40,000.00 | 20849 | 4013203 |
| 6 | 08/01/1993 | DECREE | Divorce Decree/Legal Separation | HOLM, WESLEY O | BLEDSOE, BONNIE | | | $0.00 | 65518 | 0 |
| 7 | 03/01/1982 | EXECUTORD | Executor Deed | WATTS, WALLACE J | HOLM, WESLEY O | | | $59,500.00 | 20613 | 394177 |
| 8 | 01/01/1900 | OTHER | Other - Misc. Documents | Unknown | WATTS, WALLACE J | | | $0.00 | 0 | 0 |
Payout Agreement
| No payout information available.. |