Property
Account |
| Property ID: | 363387 | Abbreviated Legal Description: | ROLL HILL LOT 16 BLK 10 |
| Geographic ID: | S8050-00-10016-0 | Agent Code: | |
| Type: | Real | | |
| Tax Area: | 330 - APPRAISER-Cpvl Schl Dist, Special Dist, improved & less than 1 acre | Land Use Code | 11 |
| Open Space: | N | DFL | N |
| Historic Property: | N | Remodel Property: | N |
| Multi-Family Redevelopment: | N | | |
| Township: | | Section: | |
| Range: | |
Location |
| Address: | 1050 SIDNEY ST OAK HARBOR, WA 98277 | Mapsco: | |
| Neighborhood: | Cycle 2 | Map ID: | 148 |
| Neighborhood CD: | 2 |
Owner |
| Name: | WATTS, ANTONIO | Owner ID: | 311707 |
| Mailing Address: | KELSEY WATTS 1050 SIDNEY ST OAK HARBOR, WA 98277 | % Ownership: | 100.0000000000% |
| | | Exemptions: | |
Taxes and Assessment Details
Values
| (+) Improvement Homesite Value: | + | $0 | |
| (+) Improvement Non-Homesite Value: | + | $163,383 | |
| (+) Land Homesite Value: | + | $0 | |
| (+) Land Non-Homesite Value: | + | $220,000 | |
| (+) Curr Use (HS): | + | $0 | $0 |
| (+) Curr Use (NHS): | + | $0 | $0 |
| | | -------------------------- | |
| (=) Market Value: | = | $383,383 | |
| (–) Productivity Loss: | – | $0 | |
| | | -------------------------- | |
| (=) Subtotal: | = | $383,383 | |
| (+) Senior Appraised Value: | + | $0 | |
| (+) Non-Senior Appraised Value: | + | $383,383 | |
| | | -------------------------- | |
| (=) Total Appraised Value: | = | $383,383 | |
| (–) Senior Exemption Loss: | – | $0 | |
| (–) Exemption Loss: | – | $0 | |
| | | -------------------------- | |
| (=) Taxable Value: | = | $383,383 | |
Taxing Jurisdiction
| Owner: | WATTS, ANTONIO | | |
| % Ownership: | 100.0000000000% | | |
| Total Value: | $383,383 | | |
| Tax Area: | 330 - APPRAISER-Cpvl Schl Dist, Special Dist, improved & less than 1 acre |
| CF | Conservation Futures | 0.0313996660 | $383,383 | $383,383 | $12.04 | | |
| CEM2 | Cemetery #2 | 0.0092609791 | $383,383 | $383,383 | $3.55 | | |
| FIRE2 | Fire & Rescue Dist #2 N Whidbey GEN | 0.5381486274 | $383,383 | $383,383 | $206.32 | | |
| HOBOND | Hospital BOND | 0.1893405597 | $383,383 | $383,383 | $72.59 | | |
| HOGEN | Hospital GEN | 0.3848777722 | $383,383 | $383,383 | $147.56 | | |
| CE | County Current Expense | 0.3674210519 | $383,383 | $383,383 | $140.86 | | |
| CR | County Roads | 0.4614296361 | $383,383 | $383,383 | $176.90 | | |
| ISLANDEMS | Hospital GEN (EMS) | 0.4952018576 | $383,383 | $383,383 | $189.85 | | |
| LIB | Library Sno-Isle GEN | 0.3039084203 | $383,383 | $383,383 | $116.51 | | |
| LIBCAP | Library Sno-Isle BOND (Cap Fac Imp Area) | 0.0528562629 | $383,383 | $383,383 | $20.26 | | |
| POCOUP | Port of Coupeville GEN | 0.1065226063 | $383,383 | $383,383 | $40.84 | | |
| POCOUPIDD | Port of Coupeville IDD | 0.3353038577 | $383,383 | $383,383 | $128.55 | | |
| COUPSDTECH | School 204 CP (TECH) | 0.1215123397 | $383,383 | $383,383 | $46.59 | | |
| SCH204MO | School 204 Enrichment | 0.6416662518 | $383,383 | $383,383 | $246.00 | | |
| ST | State School | 1.4761226122 | $383,383 | $383,383 | $565.92 | | |
| ST2 | State School Part 2 | 0.7953803475 | $383,383 | $383,383 | $304.94 | | |
| | Total Tax Rate: | 6.3103528484 | | | | | |
| | | | | Taxes w/Current Exemptions: | $2,419.28 | | |
| | | | | Taxes w/o Exemptions: | $2,419.28 | | |
Improvement / Building
| Improvement #1: | MANUFACTURED HOME | State Code: | Y | 1890.0 sqft | Value: | $163,383 |
| Bathrooms: | 0 | Bedrooms: | 0 | | Ceiling: | PLASTER PAINTED | Cooling: | EVAP NO DUCT | | Exterior Wall/Cover: | VINYL | Floor Covering: | CARPET 100% | | Floor Structure: | SLAB ON GRADE | Foundation: | SLAB | | Heating: | FHA ELECTRIC | Interior Finish: | PLASTER | | Plumbing Fixture Cnt: | 1 | Roof Slope: | FLAT | | Roof Structure/Cover: | CJ ALUMINIUM HEAVY |   |   |
|
Sketch
Property Image
Land
| 1 | 15 | SQ (12001-21780) | 0.4800 | 20908.80 | 0.00 | 0.00 | 1.00 | $220,000 | $0 |
Roll Value History
| 2026 | N/A | N/A | N/A | N/A | N/A |
| 2025 | $163,383 | $220,000 | $0 | $383,383 | $383,383 |
| 2024 | $156,040 | $210,000 | $0 | $366,040 | $366,040 |
| 2023 | $137,281 | $220,000 | $0 | $357,281 | $357,281 |
| 2022 | $125,756 | $220,000 | $0 | $345,756 | $345,756 |
| 2021 | $93,482 | $180,000 | $0 | $273,482 | $273,482 |
| 2020 | $91,819 | $140,000 | $0 | $231,819 | $231,819 |
| 2019 | $73,171 | $170,000 | $0 | $243,171 | $243,171 |
| 2018 | $75,183 | $135,000 | $0 | $210,183 | $210,183 |
| 2017 | $76,025 | $120,000 | $0 | $196,025 | $196,025 |
| 2016 | $77,707 | $100,000 | $0 | $177,707 | $177,707 |
| 2015 | $78,548 | $70,000 | $0 | $148,548 | $148,548 |
| 2014 | $79,389 | $60,000 | $0 | $139,389 | $139,389 |
| 2013 | $81,071 | $55,000 | $0 | $136,071 | $136,071 |
| 2012 | $86,965 | $57,800 | $0 | $144,765 | $144,765 |
| 2011 | $87,806 | $68,000 | $0 | $155,806 | $155,806 |
| 2010 | $86,750 | $68,000 | $0 | $154,750 | $154,750 |
| 2009 | $91,011 | $50,592 | $0 | $141,603 | $141,603 |
| 2008 | $0 | $40,920 | $0 | $40,920 | $40,920 |
| 2007 | $0 | $52,080 | $0 | $52,080 | $52,080 |
Deed and Sales History
| 1 | 03/14/2024 | WD | Warranty Deed | AYALA, PATRICK | WATTS, ANTONIO | | | $465,000.00 | 59443 | 4570426 |
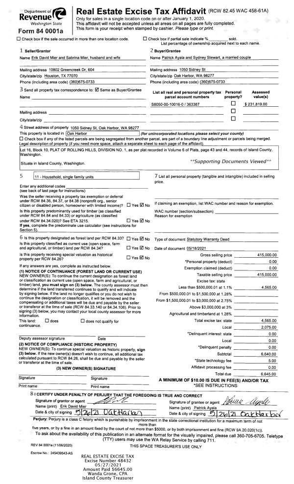
| 2 | 05/18/2021 | WD | Warranty Deed | MIER, ERIK | AYALA, PATRICK | | | $415,000.00 | 48432 | 4520407 |
| 3 | 08/02/2017 | WD | Warranty Deed | SECRETARY OF VETERAN AFFAIRS | MIER, ERIK | | | $0.00 | 30475 | 4427494 |
| 4 | 01/26/2017 | WD | Warranty Deed | FREEDOM MORTGAGE | SECRETARY OF VETERAN AFFAIRS | | | $0.00 | 28114 | 4417276 |
| 5 | 01/06/2017 | TRUSTEED | Trustee's Deed | WAGNER, JEFFREY M | FREEDOM MORTGAGE | | | $214,328.00 | 27760 | 4415335 |
| 6 | 04/28/2009 | WD | Warranty Deed | WESTGATE MOBILE HOMES INC, | WAGNER, JEFFREY M | | | $218,000.00 | 90957 | 4250267 |
| 7 | 01/11/2005 | WD | Warranty Deed | MURPHY, KAREN A | WESTGATE MOBILE HOMES INC, | | | $14,000.00 | 50633 | 4126117 |
| 8 | 09/28/2000 | PRD | Personal Representatives Deed | MURPHY, TERRY | MURPHY, KAREN A | | | $0.00 | 4404 | 20020227 |
| 9 | 01/01/1998 | WD | Warranty Deed | MURPHY, TERRY/KAREN | MURPHY, TERRY | | | $0.00 | 80273 | 4126118 |
| 10 | 01/01/1998 | WD | Warranty Deed | PARSON, DEREK | MURPHY, TERRY/KAREN | | | $3,500.00 | 80273 | 98001302 |
| 11 | 11/01/1997 | WD | Warranty Deed | NELSON, DEBORAH A | PARSON, DEREK | | | $3,000.00 | 74204 | 97020098 |
| 12 | 01/01/1992 | QCD | Quit Claim Deed | BAILEY, TOM R | NELSON, DEBORAH A | | | $0.00 | 74203 | 97020097 |
| 13 | 06/01/1980 | EXECUTORD | Executor Deed | CASEY, JED M | BAILEY, TOM R | | | $4,500.00 | 1857 | 369398 |
| 14 | 01/01/1979 | OTHER | Other - Misc. Documents | Unknown | CASEY, JED M | | | $10,040.00 | 90491 | 346837 |
Payout Agreement
| No payout information available.. |