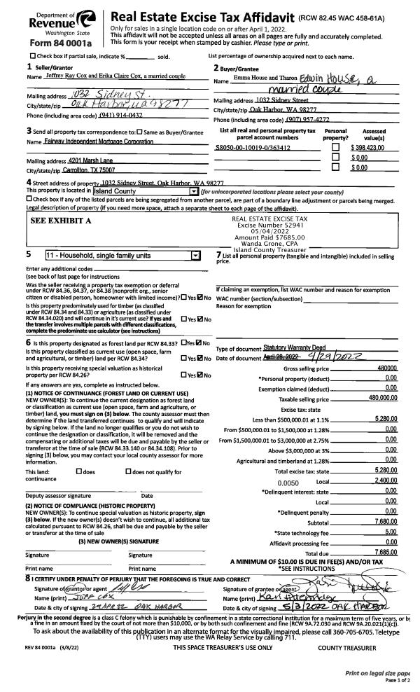
Property
Account |
| Property ID: | 363412 | Abbreviated Legal Description: | ROLL HILL LOTS 19 & 20 BLK 10 |
| Geographic ID: | S8050-00-10019-0 | Agent Code: | |
| Type: | Real | | |
| Tax Area: | 330 - APPRAISER-Cpvl Schl Dist, Special Dist, improved & less than 1 acre | Land Use Code | 11 |
| Open Space: | N | DFL | N |
| Historic Property: | N | Remodel Property: | N |
| Multi-Family Redevelopment: | N | | |
| Township: | | Section: | |
| Range: | |
Location |
| Address: | 1032 SIDNEY ST OAK HARBOR, WA 98277 | Mapsco: | |
| Neighborhood: | Cycle 2 | Map ID: | 151 |
| Neighborhood CD: | 2 |
Owner |
| Name: | HOUSE, EMMA | Owner ID: | 304044 |
| Mailing Address: | THARON EDWIN HOUSE 1032 SIDNEY ST OAK HARBOR, WA 98277 | % Ownership: | 100.0000000000% |
| | | Exemptions: | |
Taxes and Assessment Details
Values
| (+) Improvement Homesite Value: | + | $0 | |
| (+) Improvement Non-Homesite Value: | + | $263,728 | |
| (+) Land Homesite Value: | + | $0 | |
| (+) Land Non-Homesite Value: | + | $220,000 | |
| (+) Curr Use (HS): | + | $0 | $0 |
| (+) Curr Use (NHS): | + | $0 | $0 |
| | | -------------------------- | |
| (=) Market Value: | = | $483,728 | |
| (–) Productivity Loss: | – | $0 | |
| | | -------------------------- | |
| (=) Subtotal: | = | $483,728 | |
| (+) Senior Appraised Value: | + | $0 | |
| (+) Non-Senior Appraised Value: | + | $483,728 | |
| | | -------------------------- | |
| (=) Total Appraised Value: | = | $483,728 | |
| (–) Senior Exemption Loss: | – | $0 | |
| (–) Exemption Loss: | – | $0 | |
| | | -------------------------- | |
| (=) Taxable Value: | = | $483,728 | |
Taxing Jurisdiction
| Owner: | HOUSE, EMMA | | |
| % Ownership: | 100.0000000000% | | |
| Total Value: | $483,728 | | |
| Tax Area: | 330 - APPRAISER-Cpvl Schl Dist, Special Dist, improved & less than 1 acre |
| CF | Conservation Futures | 0.0313996660 | $483,728 | $483,728 | $15.19 | | |
| CEM2 | Cemetery #2 | 0.0092609791 | $483,728 | $483,728 | $4.48 | | |
| FIRE2 | Fire & Rescue Dist #2 N Whidbey GEN | 0.5381486274 | $483,728 | $483,728 | $260.32 | | |
| HOBOND | Hospital BOND | 0.1893405597 | $483,728 | $483,728 | $91.59 | | |
| HOGEN | Hospital GEN | 0.3848777722 | $483,728 | $483,728 | $186.18 | | |
| CE | County Current Expense | 0.3674210519 | $483,728 | $483,728 | $177.73 | | |
| CR | County Roads | 0.4614296361 | $483,728 | $483,728 | $223.21 | | |
| ISLANDEMS | Hospital GEN (EMS) | 0.4952018576 | $483,728 | $483,728 | $239.54 | | |
| LIB | Library Sno-Isle GEN | 0.3039084203 | $483,728 | $483,728 | $147.01 | | |
| LIBCAP | Library Sno-Isle BOND (Cap Fac Imp Area) | 0.0528562629 | $483,728 | $483,728 | $25.57 | | |
| POCOUP | Port of Coupeville GEN | 0.1065226063 | $483,728 | $483,728 | $51.53 | | |
| POCOUPIDD | Port of Coupeville IDD | 0.3353038577 | $483,728 | $483,728 | $162.20 | | |
| COUPSDTECH | School 204 CP (TECH) | 0.1215123397 | $483,728 | $483,728 | $58.78 | | |
| SCH204MO | School 204 Enrichment | 0.6416662518 | $483,728 | $483,728 | $310.39 | | |
| ST | State School | 1.4761226122 | $483,728 | $483,728 | $714.04 | | |
| ST2 | State School Part 2 | 0.7953803475 | $483,728 | $483,728 | $384.75 | | |
| | Total Tax Rate: | 6.3103528484 | | | | | |
| | | | | Taxes w/Current Exemptions: | $3,052.51 | | |
| | | | | Taxes w/o Exemptions: | $3,052.51 | | |
Improvement / Building
| Improvement #1: | RESIDENTIAL | State Code: | Y | 1436.0 sqft | Value: | $263,728 |
| Bathrooms: | 2 | Bedrooms: | 3 | | Ceiling: | DRY WALL SPRAYED | Exterior Wall/Cover: | PLY/HARDBOARD T-111 | | Floor Covering: | VINYL 100% | Floor Structure: | WOOD W/SUBFLOOR | | Foundation: | CONCRETE | Heating: | FHA ELECTRIC | | Interior Finish: | DRYWALL PAINT | Plumbing Fixture Cnt: | 9 | | Roof Slope: | 4" IN 12" | Roof Structure/Cover: | CJ ASPHALT |
|
| | Type | Description | Class CD | Sub Class CD | Year Built | Area |
| | BAS | BASE/MAIN FLOOR | 3 | 0 | 1977 | 1436.0 |
| | AGR | ATTACHED GARAGE | 3 | 0 | 1977 | 480.0 |
| | OWP | OPEN WOOD PORCH W/STEPS | 3 | 0 | 1977 | 408.0 |
Sketch
Property Image
Land
| 1 | 16 | AC (00.51-01.00) | 0.7800 | 33976.80 | 0.00 | 0.00 | 1.00 | $220,000 | $0 |
Roll Value History
| 2026 | N/A | N/A | N/A | N/A | N/A |
| 2025 | $263,728 | $220,000 | $0 | $483,728 | $483,728 |
| 2024 | $267,143 | $210,000 | $0 | $477,143 | $477,143 |
| 2023 | $270,556 | $220,000 | $0 | $490,556 | $490,556 |
| 2022 | $248,087 | $220,000 | $0 | $468,087 | $468,087 |
| 2021 | $218,423 | $180,000 | $0 | $398,423 | $398,423 |
| 2020 | $212,781 | $140,000 | $0 | $352,781 | $352,781 |
| 2019 | $154,236 | $170,000 | $0 | $324,236 | $324,236 |
| 2018 | $152,504 | $135,000 | $0 | $287,504 | $287,504 |
| 2017 | $142,900 | $120,000 | $0 | $262,900 | $262,900 |
| 2016 | $125,119 | $100,000 | $0 | $225,119 | $225,119 |
| 2015 | $126,785 | $70,000 | $0 | $196,785 | $196,785 |
| 2014 | $128,454 | $60,000 | $0 | $188,454 | $188,454 |
| 2013 | $130,122 | $55,000 | $0 | $185,122 | $185,122 |
| 2012 | $136,587 | $57,800 | $0 | $194,387 | $194,387 |
| 2011 | $138,311 | $68,000 | $0 | $206,311 | $206,311 |
| 2010 | $140,376 | $68,000 | $0 | $208,376 | $208,376 |
| 2009 | $146,384 | $74,400 | $0 | $220,784 | $220,784 |
| 2008 | $148,251 | $75,600 | $0 | $223,851 | $223,851 |
| 2007 | $150,112 | $75,600 | $0 | $225,712 | $225,712 |
Deed and Sales History
| 1 | 04/29/2022 | WD | Warranty Deed | COX, JEFFREY RAY | HOUSE, EMMA | | | $480,000.00 | 52941 | 4544511 |
| 2 | 01/12/2017 | WD | Warranty Deed | SCHAUB, CHRISTINNA R | COX, JEFFREY RAY | | | $283,000.00 | 27779 | 4415423 |
| 3 | 03/18/2008 | QCD | Quit Claim Deed | SCHAUB, KENNETH L | SCHAUB, CHRISTINNA R | | | $91,478.00 | 80684 | 4224669 |
| 4 | 03/18/2008 | QCD | Quit Claim Deed | SCHAUB, KENNETH L | SCHAUB, KENNETH L | | | $0.00 | 80683 | 4224668 |
| 5 | 10/09/2006 | ESTSEPPROP | Establish Separate Property | SCHAUB, KENNETH L | SCHAUB, KENNETH L | | | $0.00 | 64501 | 4184620 |
| 6 | 10/09/2006 | ESTSEPPROP | Establish Separate Property | SCHAUB, KENNETH L | SCHAUB, KENNETH L | | | $0.00 | 64500 | 4184649 |
| 7 | 10/09/2006 | WD | Warranty Deed | FULLER, ELLEN R | SCHAUB, KENNETH L | | | $204,900.00 | 64499 | 4184648 |
| 8 | 05/16/2006 | CD | DNU - Correction Deed | FULLER, RICHARD | FULLER, ELLEN R | | | $0.00 | 70939 | 0 |
| 9 | 06/23/1999 | BLA | DNU - Boundary Line Adjustment | FULLER, RICHARD | FULLER, RICHARD | | | $0.00 | 68317 | 99010853 |
| 10 | 09/01/1979 | OTHER | Other - Misc. Documents | Unknown | FULLER, RICHARD | | | $53,900.00 | 90237 | 346045 |
Payout Agreement
| No payout information available.. |