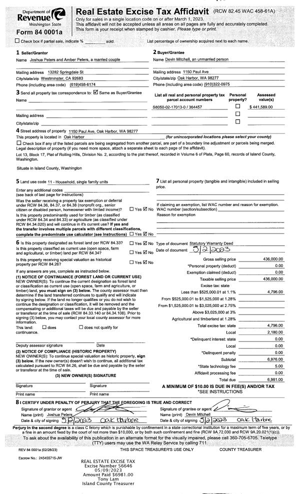
Property
Account |
| Property ID: | 364457 | Abbreviated Legal Description: | ROLL HILL 2 LOT 13 BLK 17 |
| Geographic ID: | S8050-02-17013-0 | Agent Code: | |
| Type: | Real | | |
| Tax Area: | 330 - APPRAISER-Cpvl Schl Dist, Special Dist, improved & less than 1 acre | Land Use Code | 11 |
| Open Space: | N | DFL | N |
| Historic Property: | N | Remodel Property: | N |
| Multi-Family Redevelopment: | N | | |
| Township: | | Section: | |
| Range: | |
Location |
| Address: | 1150 PAUL AVE OAK HARBOR, WA 98277 | Mapsco: | |
| Neighborhood: | Cycle 2 | Map ID: | 148 |
| Neighborhood CD: | 2 |
Owner |
| Name: | MITCHELL, DEVIN | Owner ID: | 308328 |
| Mailing Address: | 1150 PAUL AVE OAK HARBOR, WA 98277 | % Ownership: | 100.0000000000% |
| | | Exemptions: | |
Taxes and Assessment Details
Values
| (+) Improvement Homesite Value: | + | $0 | |
| (+) Improvement Non-Homesite Value: | + | $228,580 | |
| (+) Land Homesite Value: | + | $0 | |
| (+) Land Non-Homesite Value: | + | $220,000 | |
| (+) Curr Use (HS): | + | $0 | $0 |
| (+) Curr Use (NHS): | + | $0 | $0 |
| | | -------------------------- | |
| (=) Market Value: | = | $448,580 | |
| (–) Productivity Loss: | – | $0 | |
| | | -------------------------- | |
| (=) Subtotal: | = | $448,580 | |
| (+) Senior Appraised Value: | + | $0 | |
| (+) Non-Senior Appraised Value: | + | $448,580 | |
| | | -------------------------- | |
| (=) Total Appraised Value: | = | $448,580 | |
| (–) Senior Exemption Loss: | – | $0 | |
| (–) Exemption Loss: | – | $0 | |
| | | -------------------------- | |
| (=) Taxable Value: | = | $448,580 | |
Taxing Jurisdiction
| Owner: | MITCHELL, DEVIN | | |
| % Ownership: | 100.0000000000% | | |
| Total Value: | $448,580 | | |
| Tax Area: | 330 - APPRAISER-Cpvl Schl Dist, Special Dist, improved & less than 1 acre |
| CF | Conservation Futures | 0.0313996660 | $448,580 | $448,580 | $14.09 | | |
| CEM2 | Cemetery #2 | 0.0092609791 | $448,580 | $448,580 | $4.15 | | |
| FIRE2 | Fire & Rescue Dist #2 N Whidbey GEN | 0.5381486274 | $448,580 | $448,580 | $241.40 | | |
| HOBOND | Hospital BOND | 0.1893405597 | $448,580 | $448,580 | $84.93 | | |
| HOGEN | Hospital GEN | 0.3848777722 | $448,580 | $448,580 | $172.65 | | |
| CE | County Current Expense | 0.3674210519 | $448,580 | $448,580 | $164.82 | | |
| CR | County Roads | 0.4614296361 | $448,580 | $448,580 | $206.99 | | |
| ISLANDEMS | Hospital GEN (EMS) | 0.4952018576 | $448,580 | $448,580 | $222.14 | | |
| LIB | Library Sno-Isle GEN | 0.3039084203 | $448,580 | $448,580 | $136.33 | | |
| LIBCAP | Library Sno-Isle BOND (Cap Fac Imp Area) | 0.0528562629 | $448,580 | $448,580 | $23.71 | | |
| POCOUP | Port of Coupeville GEN | 0.1065226063 | $448,580 | $448,580 | $47.78 | | |
| POCOUPIDD | Port of Coupeville IDD | 0.3353038577 | $448,580 | $448,580 | $150.41 | | |
| COUPSDTECH | School 204 CP (TECH) | 0.1215123397 | $448,580 | $448,580 | $54.51 | | |
| SCH204MO | School 204 Enrichment | 0.6416662518 | $448,580 | $448,580 | $287.84 | | |
| ST | State School | 1.4761226122 | $448,580 | $448,580 | $662.16 | | |
| ST2 | State School Part 2 | 0.7953803475 | $448,580 | $448,580 | $356.79 | | |
| | Total Tax Rate: | 6.3103528484 | | | | | |
| | | | | Taxes w/Current Exemptions: | $2,830.70 | | |
| | | | | Taxes w/o Exemptions: | $2,830.70 | | |
Improvement / Building
| Improvement #1: | RESIDENTIAL | State Code: | Y | 1516.0 sqft | Value: | $228,580 |
| Bathrooms: | 1.75 | Bedrooms: | 3 | | Ceiling: | DRYWALL PAINTED | Exterior Wall/Cover: | PLY/HARDBOARD T-111 | | Floor Covering: | CARPET/VINYL 80-20 | Floor Structure: | WOOD W/SUBFLOOR | | Foundation: | CONCRETE | Heating: | WALL HEAT ELECTRIC | | Interior Finish: | DRYWALL PAINT | Plumbing Fixture Cnt: | 10 | | Roof Slope: | 4" IN 12" | Roof Structure/Cover: | CJ ASPHALT |
|
| | Type | Description | Class CD | Sub Class CD | Year Built | Area |
| | BAS | BASE/MAIN FLOOR | 3 | 0 | 1995 | 1516.0 |
| | OP1 | OPEN PORCH SLAB | 3 | 0 | 1995 | 200.0 |
| | OP4 | OPEN PORCH W/CEILING-ROOF | 3 | 0 | 1995 | 231.0 |
| | OP4 | OPEN PORCH W/CEILING-ROOF | 3 | 0 | 1995 | 120.0 |
| | UTY | STORAGE/UTILITY | 3 | 0 | 1995 | 112.0 |
Sketch
Property Image
Land
| 1 | 15 | SQ (12001-21780) | 0.3600 | 15681.60 | 0.00 | 0.00 | 1.00 | $220,000 | $0 |
Roll Value History
| 2026 | N/A | N/A | N/A | N/A | N/A |
| 2025 | $228,580 | $220,000 | $0 | $448,580 | $448,580 |
| 2024 | $227,467 | $210,000 | $0 | $437,467 | $437,467 |
| 2023 | $230,373 | $220,000 | $0 | $450,373 | $450,373 |
| 2022 | $221,589 | $220,000 | $0 | $441,589 | $441,589 |
| 2021 | $195,090 | $180,000 | $0 | $375,090 | $375,090 |
| 2020 | $189,911 | $140,000 | $0 | $329,911 | $329,911 |
| 2019 | $137,150 | $170,000 | $0 | $307,150 | $307,150 |
| 2018 | $138,533 | $135,000 | $0 | $273,533 | $273,533 |
| 2017 | $139,399 | $120,000 | $0 | $259,399 | $259,399 |
| 2016 | $141,136 | $100,000 | $0 | $241,136 | $241,136 |
| 2015 | $142,870 | $70,000 | $0 | $212,870 | $212,870 |
| 2014 | $144,607 | $60,000 | $0 | $204,607 | $204,607 |
| 2013 | $146,344 | $55,000 | $0 | $201,344 | $201,344 |
| 2012 | $144,136 | $57,800 | $0 | $201,936 | $201,936 |
| 2011 | $145,878 | $68,000 | $0 | $213,878 | $213,878 |
| 2010 | $151,337 | $68,000 | $0 | $219,337 | $219,337 |
| 2009 | $157,910 | $74,400 | $0 | $232,310 | $232,310 |
| 2008 | $159,864 | $74,400 | $0 | $234,264 | $234,264 |
| 2007 | $161,810 | $74,400 | $0 | $236,210 | $236,210 |
Deed and Sales History
| 1 | 05/02/2023 | WD | Warranty Deed | PETERS, JOSHUA | MITCHELL, DEVIN | | | $436,000.00 | 56646 | 4559684 |
| 2 | 11/05/2019 | WD | Warranty Deed | MOUNTCASTLE, BENJAMIN S | PETERS, JOSHUA | | | $300,000.00 | 41032 | 4475160 |
| 3 | 07/11/2013 | WD | Warranty Deed | VAUGHAN, ANGELA | MOUNTCASTLE, BENJAMIN S | | | $194,900.00 | 12055 | 4344338 |
| 4 | 03/19/2010 | QCD | Quit Claim Deed | BAIN TTEE, BARRY | VAUGHAN, ANGELA | | | $152,400.00 | 777 | 4271561 |
| 5 | 06/06/2008 | QCD | Quit Claim Deed | BUNDTROCK, BERTHA B | BAIN TTEE, BARRY | | | $0.00 | 81432 | 4230075 |
| 6 | 05/28/2003 | WD | Warranty Deed | VAN, KOO0TEN, R | BUNDTROCK, BERTHA B | | | $159,900.00 | 32371 | 4061676 |
| 7 | 03/01/1996 | WD | Warranty Deed | SAUNDERS, GLORIA | VAN, KOO0TEN, R | | | $128,500.00 | 60760 | 96004098 |
| 8 | 02/01/1995 | WD | Warranty Deed | GAHAN, MICHAEL W | SAUNDERS, GLORIA | | | $26,500.00 | 50667 | 95003117 |
| 9 | 10/01/1994 | QCD | Quit Claim Deed | GAHAN, DALE M | GAHAN, MICHAEL W | | | $0.00 | 44199 | 94021727 |
| 10 | 07/01/1992 | QCD | Quit Claim Deed | ACKER, LAVERNE R | GAHAN, DALE M | | | $0.00 | 22961 | 92014325 |
| 11 | 01/01/1900 | OTHER | Other - Misc. Documents | Unknown | ACKER, LAVERNE R | | | $0.00 | 0 | 0 |
Payout Agreement
| No payout information available.. |