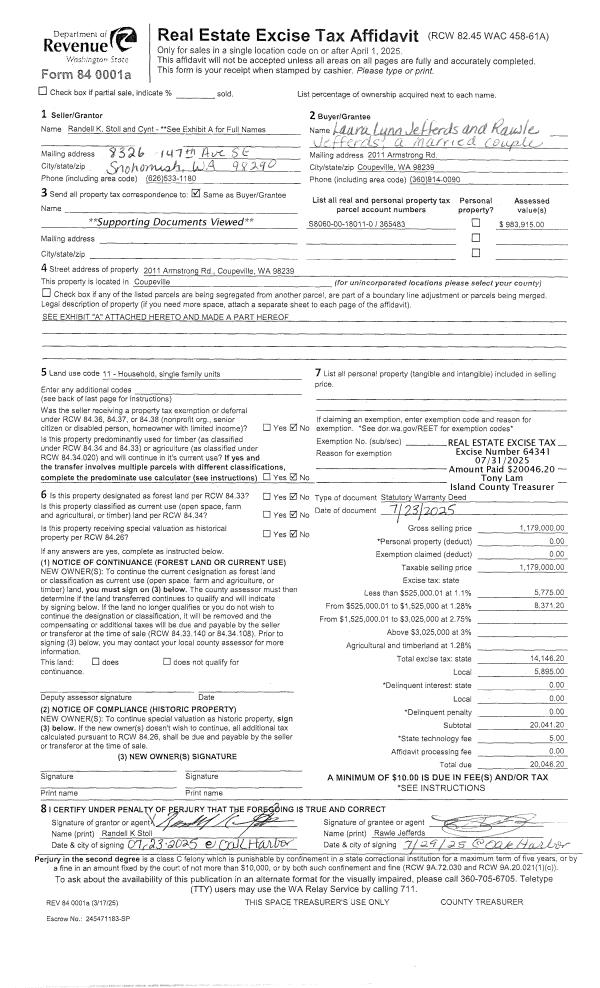
Property
Account |
| Property ID: | 365483 | Abbreviated Legal Description: | SAN DE FUCA LOTS 11, 12, 13, 14, 15 & 16 BLK 18 TGW & SUB EZ AF#94003188 |
| Geographic ID: | S8060-00-18011-0 | Agent Code: | |
| Type: | Real | | |
| Tax Area: | 332 - APPRAISER-Cpvl Schl Dist, Special Dist, improved, greater than 1 acre | Land Use Code | 11 |
| Open Space: | N | DFL | N |
| Historic Property: | N | Remodel Property: | N |
| Multi-Family Redevelopment: | N | | |
| Township: | | Section: | |
| Range: | |
Location |
| Address: | 2011 ARMSTRONG RD COUPEVILLE, WA 98239 | Mapsco: | |
| Neighborhood: | Cycle 2 | Map ID: | 165 |
| Neighborhood CD: | 2 |
Owner |
| Name: | STOLL TRUSTEE, RANDELL K | Owner ID: | 272602 |
| Mailing Address: | CYNTHIA MARLIN-STOLL TRUSTEE 2011 ARMSTRONG RD COUPEVILLE, WA 98239 | % Ownership: | 100.0000000000% |
| | | Exemptions: | |
Taxes and Assessment Details
Values
| (+) Improvement Homesite Value: | + | $0 | |
| (+) Improvement Non-Homesite Value: | + | $693,915 | |
| (+) Land Homesite Value: | + | $0 | |
| (+) Land Non-Homesite Value: | + | $290,000 | |
| (+) Curr Use (HS): | + | $0 | $0 |
| (+) Curr Use (NHS): | + | $0 | $0 |
| | | -------------------------- | |
| (=) Market Value: | = | $983,915 | |
| (–) Productivity Loss: | – | $0 | |
| | | -------------------------- | |
| (=) Subtotal: | = | $983,915 | |
| (+) Senior Appraised Value: | + | $0 | |
| (+) Non-Senior Appraised Value: | + | $983,915 | |
| | | -------------------------- | |
| (=) Total Appraised Value: | = | $983,915 | |
| (–) Senior Exemption Loss: | – | $0 | |
| (–) Exemption Loss: | – | $0 | |
| | | -------------------------- | |
| (=) Taxable Value: | = | $983,915 | |
Taxing Jurisdiction
| Owner: | STOLL TRUSTEE, RANDELL K | | |
| % Ownership: | 100.0000000000% | | |
| Total Value: | $983,915 | | |
| Tax Area: | 332 - APPRAISER-Cpvl Schl Dist, Special Dist, improved, greater than 1 acre |
| CF | Conservation Futures | 0.0313996660 | $983,915 | $983,915 | $30.89 | | |
| CEM2 | Cemetery #2 | 0.0092609791 | $983,915 | $983,915 | $9.11 | | |
| FIRE2 | Fire & Rescue Dist #2 N Whidbey GEN | 0.5381486274 | $983,915 | $983,915 | $529.49 | | |
| HOBOND | Hospital BOND | 0.1893405597 | $983,915 | $983,915 | $186.30 | | |
| HOGEN | Hospital GEN | 0.3848777722 | $983,915 | $983,915 | $378.69 | | |
| CE | County Current Expense | 0.3674210519 | $983,915 | $983,915 | $361.51 | | |
| CR | County Roads | 0.4614296361 | $983,915 | $983,915 | $454.01 | | |
| ISLANDEMS | Hospital GEN (EMS) | 0.4952018576 | $983,915 | $983,915 | $487.24 | | |
| LIB | Library Sno-Isle GEN | 0.3039084203 | $983,915 | $983,915 | $299.02 | | |
| LIBCAP | Library Sno-Isle BOND (Cap Fac Imp Area) | 0.0528562629 | $983,915 | $983,915 | $52.01 | | |
| POCOUP | Port of Coupeville GEN | 0.1065226063 | $983,915 | $983,915 | $104.81 | | |
| POCOUPIDD | Port of Coupeville IDD | 0.3353038577 | $983,915 | $983,915 | $329.91 | | |
| COUPSDTECH | School 204 CP (TECH) | 0.1215123397 | $983,915 | $983,915 | $119.56 | | |
| SCH204MO | School 204 Enrichment | 0.6416662518 | $983,915 | $983,915 | $631.35 | | |
| ST | State School | 1.4761226122 | $983,915 | $983,915 | $1,452.38 | | |
| ST2 | State School Part 2 | 0.7953803475 | $983,915 | $983,915 | $782.59 | | |
| | Total Tax Rate: | 6.3103528484 | | | | | |
| | | | | Taxes w/Current Exemptions: | $6,208.87 | | |
| | | | | Taxes w/o Exemptions: | $6,208.87 | | |
Improvement / Building
| Improvement #1: | RESIDENTIAL | State Code: | Y | 2397.0 sqft | Value: | $693,915 |
| Bathrooms: | 3 | Bedrooms: | 3 | | Ceiling: | DRYWALL PAINTED | Exterior Wall/Cover: | CEMENT FIBER | | Floor Covering: | SLATE | Floor Structure: | WOOD W/SUBFLOOR | | Foundation: | CONCRETE | Heating: | FHA GAS | | Interior Finish: | DRYWALL PAINT | Plumbing Fixture Cnt: | 16 | | Roof Slope: | 6" IN 12" | Roof Structure/Cover: | CJ ASPHALT |
|
| | Type | Description | Class CD | Sub Class CD | Year Built | Area |
| | BAS | BASE/MAIN FLOOR | 4 | 0 | 2006 | 2397.0 |
| | OP4 | OPEN PORCH W/CEILING-ROOF | 4 | 0 | 2006 | 153.0 |
| | AGR | ATTACHED GARAGE | 4 | 0 | 2006 | 600.0 |
| | OWC | OPEN WOOD PORCH W/STEPS/ROOF/C | 4 | 0 | 2006 | 294.0 |
| | OWP | OPEN WOOD PORCH W/STEPS | 4 | 0 | 2006 | 263.5 |
| | DGR | DETACHED GARAGE | 4 | 0 | 2006 | 1950.0 |
Sketch
Property Image
Land
| 1 | 17 | AC (01.01-02.00) | 1.1800 | 51400.80 | 0.00 | 0.00 | 1.00 | $290,000 | $0 |
Roll Value History
| 2026 | N/A | N/A | N/A | N/A | N/A |
| 2025 | $693,915 | $290,000 | $0 | $983,915 | $983,915 |
| 2024 | $670,055 | $290,000 | $0 | $960,055 | $960,055 |
| 2023 | $678,008 | $290,000 | $0 | $968,008 | $968,008 |
| 2022 | $621,160 | $280,000 | $0 | $901,160 | $901,160 |
| 2021 | $546,398 | $170,000 | $0 | $716,398 | $716,398 |
| 2020 | $531,941 | $170,000 | $0 | $701,941 | $701,941 |
| 2019 | $397,308 | $190,000 | $0 | $587,308 | $587,308 |
| 2018 | $376,889 | $170,000 | $0 | $546,889 | $546,889 |
| 2017 | $377,602 | $170,000 | $0 | $547,602 | $547,602 |
| 2016 | $381,257 | $150,000 | $0 | $531,257 | $531,257 |
| 2015 | $332,966 | $120,000 | $0 | $452,966 | $452,966 |
| 2014 | $336,122 | $120,000 | $0 | $456,122 | $456,122 |
| 2013 | $339,280 | $148,750 | $0 | $488,030 | $488,030 |
| 2012 | $348,832 | $148,750 | $0 | $497,582 | $497,582 |
| 2011 | $351,873 | $175,000 | $0 | $526,873 | $526,873 |
| 2010 | $364,638 | $175,000 | $0 | $539,638 | $539,638 |
| 2009 | $377,812 | $200,000 | $0 | $577,812 | $577,812 |
| 2008 | $381,914 | $205,000 | $0 | $586,914 | $586,914 |
| 2007 | $382,911 | $205,000 | $0 | $587,911 | $587,911 |
Deed and Sales History
| 1 | 07/23/2025 | WD | Warranty Deed | STOLL TRUSTEE, RANDELL K | JEFFERDS, LAURA LYNN | | | $1,179,000.00 | 64341 | 4589032 |
| 2 | 10/20/2015 | WD | Warranty Deed | SAMBUCETO, GARY L | STOLL TRUSTEE, RANDELL K | | | $515,000.00 | 21950 | 4388547 |
| 3 | 04/25/2006 | WD | Warranty Deed | FAKKEMA, ED | SAMBUCETO, GARY L | | | $180,000.00 | 61844 | 4168913 |
| 4 | 02/12/2003 | BLA | DNU - Boundary Line Adjustment | FAKKEMA, ED | FAKKEMA, ED | | | $0.00 | 69703 | 4019129 |
| 5 | 01/01/1900 | OTHER | Other - Misc. Documents | Unknown | FAKKEMA, ED | | | $0.00 | 0 | 0 |
Payout Agreement
| No payout information available.. |