Property
Account |
| Property ID: | 366071 | Abbreviated Legal Description: | SAN DE FUCA LOTS 1, 3, 5, 7, 9, 11, 13 & 15 BLK 80 TGW PT VAC S30 7TH ST EX HWY SUB EZ EX PT TO ST HWY AF#4287094 |
| Geographic ID: | S8060-00-80001-0 | Agent Code: | |
| Type: | Real | | |
| Tax Area: | 339 - APPRAISER-Cpvl Schl Dist, Special Dist, vacant & 50 acres or less | Land Use Code | 99 |
| Open Space: | N | DFL | N |
| Historic Property: | N | Remodel Property: | N |
| Multi-Family Redevelopment: | N | | |
| Township: | | Section: | |
| Range: | |
Location |
| Address: | | Mapsco: | |
| Neighborhood: | Cycle 2 | Map ID: | 145 |
| Neighborhood CD: | 2 |
Owner |
| Name: | MOORE, CHARLES T | Owner ID: | 313690 |
| Mailing Address: | 316 SOUTHEAST PIONEER WAY #194 OAK HARBOR, WA 98277 | % Ownership: | 100.0000000000% |
| | | Exemptions: | |
Taxes and Assessment Details
Values
| (+) Improvement Homesite Value: | + | $0 | |
| (+) Improvement Non-Homesite Value: | + | $0 | |
| (+) Land Homesite Value: | + | $0 | |
| (+) Land Non-Homesite Value: | + | $80,000 | |
| (+) Curr Use (HS): | + | $0 | $0 |
| (+) Curr Use (NHS): | + | $0 | $0 |
| | | -------------------------- | |
| (=) Market Value: | = | $80,000 | |
| (–) Productivity Loss: | – | $0 | |
| | | -------------------------- | |
| (=) Subtotal: | = | $80,000 | |
| (+) Senior Appraised Value: | + | $0 | |
| (+) Non-Senior Appraised Value: | + | $80,000 | |
| | | -------------------------- | |
| (=) Total Appraised Value: | = | $80,000 | |
| (–) Senior Exemption Loss: | – | $0 | |
| (–) Exemption Loss: | – | $0 | |
| | | -------------------------- | |
| (=) Taxable Value: | = | $80,000 | |
Taxing Jurisdiction
| Owner: | MOORE, CHARLES T | | |
| % Ownership: | 100.0000000000% | | |
| Total Value: | $80,000 | | |
| Tax Area: | 339 - APPRAISER-Cpvl Schl Dist, Special Dist, vacant & 50 acres or less |
| CF | Conservation Futures | 0.0313996660 | $80,000 | $80,000 | $2.51 | | |
| CEM2 | Cemetery #2 | 0.0092609791 | $80,000 | $80,000 | $0.74 | | |
| HOBOND | Hospital BOND | 0.1893405597 | $80,000 | $80,000 | $15.15 | | |
| HOGEN | Hospital GEN | 0.3848777722 | $80,000 | $80,000 | $30.79 | | |
| CE | County Current Expense | 0.3674210519 | $80,000 | $80,000 | $29.39 | | |
| CR | County Roads | 0.4614296361 | $80,000 | $80,000 | $36.91 | | |
| ISLANDEMS | Hospital GEN (EMS) | 0.4952018576 | $80,000 | $80,000 | $39.62 | | |
| LIB | Library Sno-Isle GEN | 0.3039084203 | $80,000 | $80,000 | $24.31 | | |
| LIBCAP | Library Sno-Isle BOND (Cap Fac Imp Area) | 0.0528562629 | $80,000 | $80,000 | $4.23 | | |
| POCOUP | Port of Coupeville GEN | 0.1065226063 | $80,000 | $80,000 | $8.52 | | |
| POCOUPIDD | Port of Coupeville IDD | 0.3353038577 | $80,000 | $80,000 | $26.82 | | |
| COUPSDTECH | School 204 CP (TECH) | 0.1215123397 | $80,000 | $80,000 | $9.72 | | |
| SCH204MO | School 204 Enrichment | 0.6416662518 | $80,000 | $80,000 | $51.33 | | |
| ST | State School | 1.4761226122 | $80,000 | $80,000 | $118.09 | | |
| ST2 | State School Part 2 | 0.7953803475 | $80,000 | $80,000 | $63.63 | | |
| | Total Tax Rate: | 5.7722042210 | | | | | |
| | | | | Taxes w/Current Exemptions: | $461.76 | | |
| | | | | Taxes w/o Exemptions: | $461.76 | | |
Improvement / Building
Sketch
| No sketches available for this property. |
Property Image
Land
| 1 | 17 | AC (01.01-02.00) | 1.0500 | 45738.00 | 0.00 | 0.00 | 1.00 | $80,000 | $0 |
Roll Value History
| 2026 | N/A | N/A | N/A | N/A | N/A |
| 2025 | $0 | $80,000 | $0 | $80,000 | $80,000 |
| 2024 | $0 | $80,000 | $0 | $80,000 | $80,000 |
| 2023 | $0 | $80,000 | $0 | $80,000 | $80,000 |
| 2022 | $0 | $80,000 | $0 | $80,000 | $80,000 |
| 2021 | $0 | $15,000 | $0 | $15,000 | $15,000 |
| 2020 | $0 | $15,000 | $0 | $15,000 | $15,000 |
| 2019 | $0 | $15,000 | $0 | $15,000 | $15,000 |
| 2018 | $0 | $15,000 | $0 | $15,000 | $15,000 |
| 2017 | $0 | $5,000 | $0 | $5,000 | $5,000 |
| 2016 | $0 | $5,000 | $0 | $5,000 | $5,000 |
| 2015 | $0 | $5,000 | $0 | $5,000 | $5,000 |
| 2014 | $0 | $5,000 | $0 | $5,000 | $5,000 |
| 2013 | $0 | $16,737 | $0 | $16,737 | $16,737 |
| 2012 | $0 | $16,737 | $0 | $16,737 | $16,737 |
| 2011 | $0 | $16,737 | $0 | $16,737 | $16,737 |
| 2010 | $0 | $16,737 | $0 | $16,737 | $16,737 |
| 2009 | $0 | $31,250 | $0 | $31,250 | $31,250 |
| 2008 | $0 | $31,875 | $0 | $31,875 | $31,875 |
| 2007 | $0 | $25,209 | $0 | $25,209 | $25,209 |
Deed and Sales History
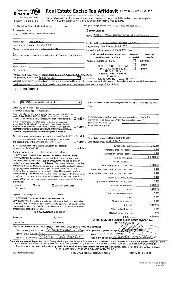
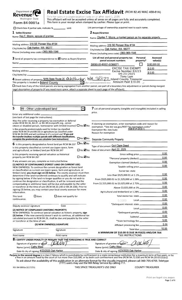
| 1 | 04/22/2025 | QCD | Quit Claim Deed | MOORE, KAY F | MOORE, CHARLES T | | | $0.00 | 63223 | 4584864 |
| 2 | 04/22/2025 | WD | Warranty Deed | BLACK, MAXINE | MOORE, CHARLES T | | | $300,000.00 | 63222 | 4584863 |
| 3 | 01/08/2015 | WD | Warranty Deed | DUNN, HARVIE H | BLACK, MAXINE | | | $74,000.00 | 18254 | 4371982 |
|   | |
| 4 | 03/11/2011 | EZ | Easement | DUNN, HARVIE H | DUNN, HARVIE H | | | $1,000.00 | 3949 | 4292759 |
| 5 | 12/15/2010 | WD | Warranty Deed | DUNN, HARVIE H | DUNN, HARVIE H | | | $18,500.00 | 3178 | 4286894 |
| 6 | 10/14/2010 | PRD | Personal Representatives Deed | DUNN, HARVIE H | DUNN, HARVIE H | | | $0.00 | 3138 | 4286894 |
| 7 | 09/01/1986 | WD | Warranty Deed | WARD, FRANCES | DUNN, HARVIE | | | $5,500.00 | 63002 | 86013612 |
| 8 | 09/01/1964 | TRUSTEED | Trustee's Deed | REDDEN, DAN J | WARD, FRANCES | | | $0.00 | 17534 | 0 |
| 9 | 01/01/1900 | OTHER | Other - Misc. Documents | Unknown | REDDEN, DAN J | | | $0.00 | 0 | 0 |
Payout Agreement
| No payout information available.. |