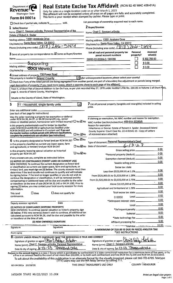
Property
Account |
| Property ID: | 366286 | Abbreviated Legal Description: | SAN DE FUCA 2ND LOT 4 |
| Geographic ID: | S8060-02-00004-0 | Agent Code: | |
| Type: | Real | | |
| Tax Area: | 332 - APPRAISER-Cpvl Schl Dist, Special Dist, improved, greater than 1 acre | Land Use Code | 11 |
| Open Space: | N | DFL | N |
| Historic Property: | N | Remodel Property: | N |
| Multi-Family Redevelopment: | N | | |
| Township: | | Section: | |
| Range: | |
Location |
| Address: | 730 POWER RD COUPEVILLE, WA 98239 | Mapsco: | |
| Neighborhood: | Cycle 2 | Map ID: | 160 |
| Neighborhood CD: | 2 |
Owner |
| Name: | SAVAGE-LAGROTTA, CHERI C | Owner ID: | 309744 |
| Mailing Address: | 13561 ANALUSIA DR SANTA ROSA VALLEY, CA 93012 | % Ownership: | 100.0000000000% |
| | | Exemptions: | |
Taxes and Assessment Details
Values
| (+) Improvement Homesite Value: | + | $0 | |
| (+) Improvement Non-Homesite Value: | + | $12,766 | |
| (+) Land Homesite Value: | + | $0 | |
| (+) Land Non-Homesite Value: | + | $310,000 | |
| (+) Curr Use (HS): | + | $0 | $0 |
| (+) Curr Use (NHS): | + | $0 | $0 |
| | | -------------------------- | |
| (=) Market Value: | = | $322,766 | |
| (–) Productivity Loss: | – | $0 | |
| | | -------------------------- | |
| (=) Subtotal: | = | $322,766 | |
| (+) Senior Appraised Value: | + | $0 | |
| (+) Non-Senior Appraised Value: | + | $322,766 | |
| | | -------------------------- | |
| (=) Total Appraised Value: | = | $322,766 | |
| (–) Senior Exemption Loss: | – | $0 | |
| (–) Exemption Loss: | – | $0 | |
| | | -------------------------- | |
| (=) Taxable Value: | = | $322,766 | |
Taxing Jurisdiction
| Owner: | SAVAGE-LAGROTTA, CHERI C | | |
| % Ownership: | 100.0000000000% | | |
| Total Value: | $322,766 | | |
| Tax Area: | 332 - APPRAISER-Cpvl Schl Dist, Special Dist, improved, greater than 1 acre |
| CF | Conservation Futures | 0.0313996660 | $322,766 | $322,766 | $10.13 | | |
| CEM2 | Cemetery #2 | 0.0092609791 | $322,766 | $322,766 | $2.99 | | |
| FIRE2 | Fire & Rescue Dist #2 N Whidbey GEN | 0.5381486274 | $322,766 | $322,766 | $173.70 | | |
| HOBOND | Hospital BOND | 0.1893405597 | $322,766 | $322,766 | $61.11 | | |
| HOGEN | Hospital GEN | 0.3848777722 | $322,766 | $322,766 | $124.23 | | |
| CE | County Current Expense | 0.3674210519 | $322,766 | $322,766 | $118.59 | | |
| CR | County Roads | 0.4614296361 | $322,766 | $322,766 | $148.93 | | |
| ISLANDEMS | Hospital GEN (EMS) | 0.4952018576 | $322,766 | $322,766 | $159.83 | | |
| LIB | Library Sno-Isle GEN | 0.3039084203 | $322,766 | $322,766 | $98.09 | | |
| LIBCAP | Library Sno-Isle BOND (Cap Fac Imp Area) | 0.0528562629 | $322,766 | $322,766 | $17.06 | | |
| POCOUP | Port of Coupeville GEN | 0.1065226063 | $322,766 | $322,766 | $34.38 | | |
| POCOUPIDD | Port of Coupeville IDD | 0.3353038577 | $322,766 | $322,766 | $108.22 | | |
| COUPSDTECH | School 204 CP (TECH) | 0.1215123397 | $322,766 | $322,766 | $39.22 | | |
| SCH204MO | School 204 Enrichment | 0.6416662518 | $322,766 | $322,766 | $207.11 | | |
| ST | State School | 1.4761226122 | $322,766 | $322,766 | $476.44 | | |
| ST2 | State School Part 2 | 0.7953803475 | $322,766 | $322,766 | $256.72 | | |
| | Total Tax Rate: | 6.3103528484 | | | | | |
| | | | | Taxes w/Current Exemptions: | $2,036.75 | | |
| | | | | Taxes w/o Exemptions: | $2,036.75 | | |
Improvement / Building
| Improvement #1: | MANUFACTURED HOME | State Code: | Y | 1152.0 sqft | Value: | $12,766 |
| Bathrooms: | 0 | Bedrooms: | 0 | | Ceiling: | PLASTER PAINTED | Cooling: | EVAP NO DUCT | | Exterior Wall/Cover: | VINYL | Floor Covering: | CARPET 100% | | Floor Structure: | SLAB ON GRADE | Foundation: | SLAB | | Heating: | FHA ELECTRIC | Interior Finish: | PLASTER | | Plumbing Fixture Cnt: | 1 | Roof Slope: | FLAT | | Roof Structure/Cover: | CJ ALUMINIUM HEAVY |   |   |
|
Sketch
Property Image
Land
| 1 | 32 | AC (03.01-09.99) | 4.6700 | 0.00 | 0.00 | 0.00 | 1.00 | $310,000 | $0 |
Roll Value History
| 2026 | N/A | N/A | N/A | N/A | N/A |
| 2025 | $12,766 | $310,000 | $0 | $322,766 | $322,766 |
| 2024 | $12,766 | $310,000 | $0 | $322,766 | $322,766 |
| 2023 | $12,766 | $310,000 | $0 | $322,766 | $322,766 |
| 2022 | $12,766 | $290,000 | $0 | $302,766 | $302,766 |
| 2021 | $12,766 | $200,000 | $0 | $212,766 | $212,766 |
| 2020 | $12,766 | $200,000 | $0 | $212,766 | $212,766 |
| 2019 | $12,766 | $210,000 | $0 | $222,766 | $222,766 |
| 2018 | $12,768 | $210,000 | $0 | $222,768 | $222,768 |
| 2017 | $12,768 | $210,000 | $0 | $222,768 | $222,768 |
| 2016 | $12,768 | $200,000 | $0 | $212,768 | $212,768 |
| 2015 | $14,045 | $150,000 | $0 | $164,045 | $164,045 |
| 2014 | $15,323 | $150,000 | $0 | $165,323 | $165,323 |
| 2013 | $15,961 | $231,165 | $0 | $247,126 | $247,126 |
| 2012 | $23,635 | $231,165 | $0 | $254,800 | $254,800 |
| 2011 | $24,248 | $256,850 | $0 | $281,098 | $281,098 |
| 2010 | $35,706 | $256,850 | $0 | $292,556 | $292,556 |
| 2009 | $37,956 | $280,200 | $0 | $318,156 | $318,156 |
| 2008 | $38,665 | $277,865 | $0 | $316,530 | $316,530 |
| 2007 | $40,130 | $205,480 | $0 | $245,610 | $245,610 |
Deed and Sales History
| 1 | 07/31/2023 | MANHOME | Manufactured Home | SPIDER, ROBERT A | SAVAGE-LAGROTTA, CHERI C | | | $0.00 | 57693 | |
| 2 | 06/13/2023 | PRD | Personal Representatives Deed | SPIDER, ROBERT A | SAVAGE-LAGROTTA, CHERI C | | | $0.00 | 57692 | 4563781 |
| 3 | 10/17/2019 | WD | Warranty Deed | KLUTSENBAKER, DALE F | SPIDER, ROBERT A | | | $216,000.00 | 40779 | 4473848 |
| 4 | 08/01/1992 | OTHER | Other - Misc. Documents | KLUTSENBAKER, DALE F | KLUTSENBAKER, DALE F | | | $0.00 | 23185 | 0 |
| 5 | 08/01/1992 | QCD | Quit Claim Deed | KLUTSENBAKER, DALE F | KLUTSENBAKER, DALE F | | | $0.00 | 23121 | 92015138 |
| 6 | 01/01/1900 | OTHER | Other - Misc. Documents | Unknown | KLUTSENBAKER, DALE F | | | $0.00 | 0 | 0 |
| 7 | 01/01/1900 | OTHER | Other - Misc. Documents | KLUTSENBAKER, DALE F | KLUTSENBAKER, DALE F | | | $0.00 | 0 | 0 |
Payout Agreement
| No payout information available.. |