Property
Account |
| Property ID: | 367542 | Abbreviated Legal Description: | SANDY HOOK LOT 11 BLK 3 |
| Geographic ID: | S8075-00-03011-0 | Agent Code: | |
| Type: | Real | | |
| Tax Area: | 719 - APPRAISER-S Whid Schl Dist, outside Langley, vacant & 50 acres or less | Land Use Code | 99 |
| Open Space: | N | DFL | N |
| Historic Property: | N | Remodel Property: | N |
| Multi-Family Redevelopment: | N | | |
| Township: | | Section: | |
| Range: | |
Location |
| Address: | | Mapsco: | |
| Neighborhood: | Cycle 4 | Map ID: | 708 |
| Neighborhood CD: | 4 |
Owner |
| Name: | ATWOOD TTEE, JULIA | Owner ID: | 292079 |
| Mailing Address: | 25400 SE 248TH ST RAVENSDALE, WA 98051 | % Ownership: | 100.0000000000% |
| | | Exemptions: | |
Taxes and Assessment Details
Values
| (+) Improvement Homesite Value: | + | $0 | |
| (+) Improvement Non-Homesite Value: | + | $0 | |
| (+) Land Homesite Value: | + | $0 | |
| (+) Land Non-Homesite Value: | + | $17,000 | |
| (+) Curr Use (HS): | + | $0 | $0 |
| (+) Curr Use (NHS): | + | $0 | $0 |
| | | -------------------------- | |
| (=) Market Value: | = | $17,000 | |
| (–) Productivity Loss: | – | $0 | |
| | | -------------------------- | |
| (=) Subtotal: | = | $17,000 | |
| (+) Senior Appraised Value: | + | $0 | |
| (+) Non-Senior Appraised Value: | + | $17,000 | |
| | | -------------------------- | |
| (=) Total Appraised Value: | = | $17,000 | |
| (–) Senior Exemption Loss: | – | $0 | |
| (–) Exemption Loss: | – | $0 | |
| | | -------------------------- | |
| (=) Taxable Value: | = | $17,000 | |
Taxing Jurisdiction
| Owner: | ATWOOD TTEE, JULIA | | |
| % Ownership: | 100.0000000000% | | |
| Total Value: | $17,000 | | |
| Tax Area: | 719 - APPRAISER-S Whid Schl Dist, outside Langley, vacant & 50 acres or less |
| CF | Conservation Futures | 0.0313996660 | $17,000 | $17,000 | $0.53 | | |
| HOBOND | Hospital BOND | 0.1893405597 | $17,000 | $17,000 | $3.22 | | |
| HOGEN | Hospital GEN | 0.3848777722 | $17,000 | $17,000 | $6.54 | | |
| CE | County Current Expense | 0.3674210519 | $17,000 | $17,000 | $6.25 | | |
| CR | County Roads | 0.4614296361 | $17,000 | $17,000 | $7.84 | | |
| ISLANDEMS | Hospital GEN (EMS) | 0.4952018576 | $17,000 | $17,000 | $8.42 | | |
| LIB | Library Sno-Isle GEN | 0.3039084203 | $17,000 | $17,000 | $5.17 | | |
| PORTWHID | Port of S Whidbey GEN | 0.1086004714 | $17,000 | $17,000 | $1.85 | | |
| SCH206BOND | School 206 BOND | 0.5960237832 | $17,000 | $17,000 | $10.13 | | |
| SCH206CAP | School 206 CP | 0.3066144020 | $17,000 | $17,000 | $5.21 | | |
| SCH206MO | School 206 Enrichment | 0.4808755445 | $17,000 | $17,000 | $8.17 | | |
| ST | State School | 1.4761226122 | $17,000 | $17,000 | $25.09 | | |
| ST2 | State School Part 2 | 0.7953803475 | $17,000 | $17,000 | $13.52 | | |
| SWHIDPRBD | P & R S Whidbey BOND | 0.0144185398 | $17,000 | $17,000 | $0.25 | | |
| SWHIDPRBD3 | P & R S Whidbey BOND3 | 0.1483535547 | $17,000 | $17,000 | $2.52 | | |
| SWHIDPRMT | P & R S Whidbey GEN | 0.4600000000 | $17,000 | $17,000 | $7.82 | | |
| | Total Tax Rate: | 6.6199682191 | | | | | |
| | | | | Taxes w/Current Exemptions: | $112.53 | | |
| | | | | Taxes w/o Exemptions: | $112.53 | | |
Improvement / Building
Sketch
| No sketches available for this property. |
Property Image
Land
| 1 | 13 | SQ (06001-08000) | 0.0000 | 0.00 | 0.00 | 0.00 | 1.00 | $17,000 | $0 |
Roll Value History
| 2026 | N/A | N/A | N/A | N/A | N/A |
| 2025 | $0 | $17,000 | $0 | $17,000 | $17,000 |
| 2024 | $0 | $17,000 | $0 | $17,000 | $17,000 |
| 2023 | $0 | $15,000 | $0 | $15,000 | $15,000 |
| 2022 | $0 | $15,000 | $0 | $15,000 | $15,000 |
| 2021 | $0 | $15,000 | $0 | $15,000 | $15,000 |
| 2020 | $0 | $15,000 | $0 | $15,000 | $15,000 |
| 2019 | $0 | $15,000 | $0 | $15,000 | $15,000 |
| 2018 | $0 | $15,000 | $0 | $15,000 | $15,000 |
| 2017 | $0 | $85,000 | $0 | $85,000 | $85,000 |
| 2016 | $0 | $90,000 | $0 | $90,000 | $90,000 |
| 2015 | $0 | $85,000 | $0 | $85,000 | $85,000 |
| 2014 | $0 | $60,000 | $0 | $60,000 | $60,000 |
| 2013 | $0 | $60,000 | $0 | $60,000 | $60,000 |
| 2012 | $0 | $60,000 | $0 | $60,000 | $60,000 |
| 2011 | $0 | $60,000 | $0 | $60,000 | $60,000 |
| 2010 | $0 | $60,000 | $0 | $60,000 | $60,000 |
| 2009 | $0 | $75,000 | $0 | $75,000 | $75,000 |
| 2008 | $0 | $80,000 | $0 | $80,000 | $80,000 |
| 2007 | $0 | $80,000 | $0 | $80,000 | $80,000 |
Deed and Sales History
| 1 | 10/01/2019 | QCD | Quit Claim Deed | FULLER, FLOYD | ATWOOD TTEE, JULIA | | | $0.00 | 40539 | 4472597 |
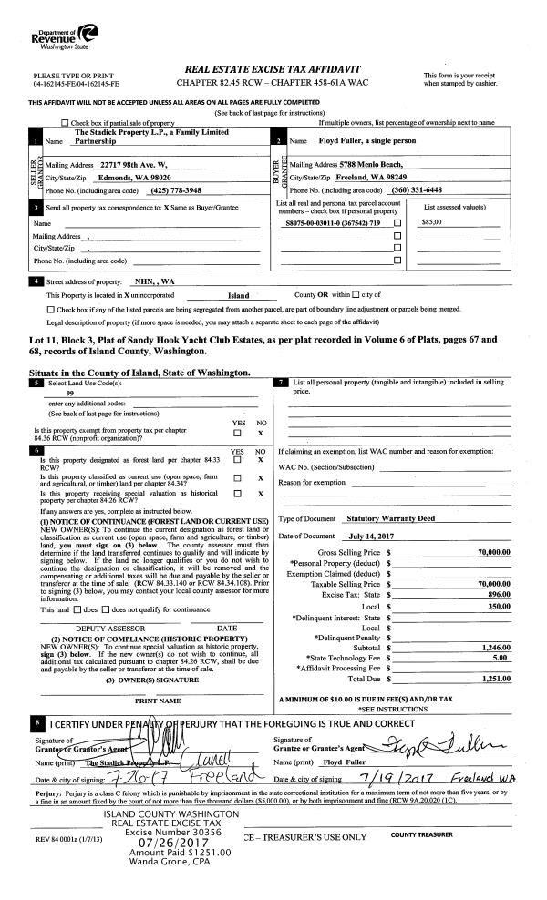
| 2 | 07/14/2017 | WD | Warranty Deed | THE STADICK PROPERTY L P | FULLER, FLOYD | | | $70,000.00 | 30356 | 4426969 |
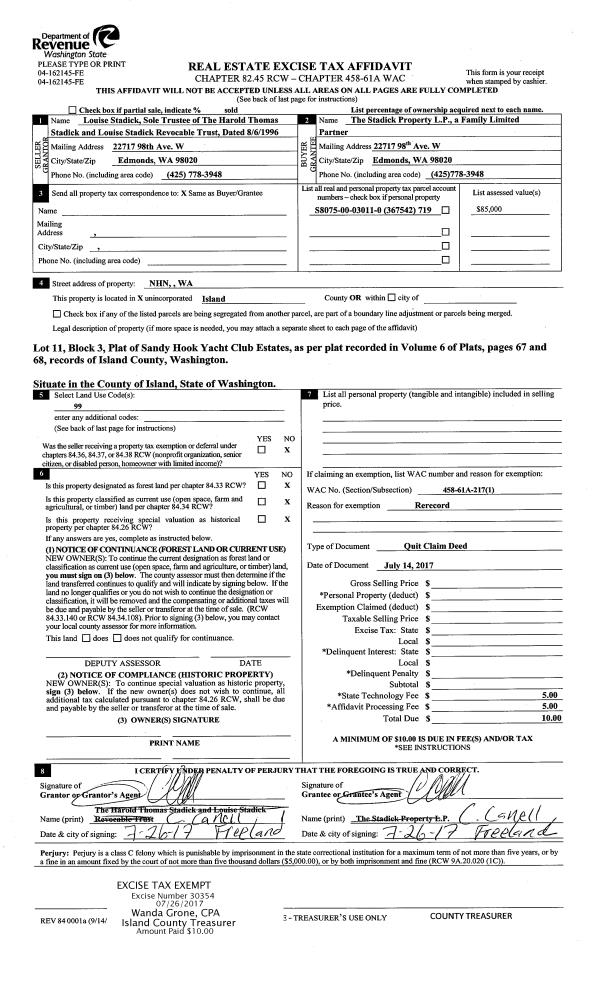
| 3 | 07/14/2017 | QCD | Quit Claim Deed | THE STADICK PROPERTY L P | THE STADICK PROPERTY L P | | | $0.00 | 30354 | 4426968 |
| 4 | 12/21/2011 | QCD | Quit Claim Deed | SULLIVAN, JOHN D | THE STADICK PROPERTY L P | | | $30,000.00 | 6564 | 4307675 |
| 5 | 12/01/1997 | QCD | Quit Claim Deed | Unknown | SULLIVAN, JOHN D | | | $0.00 | 74570 | 97021676 |
| 6 | 12/01/1997 | QCD | Quit Claim Deed | SULLIVAN, JOHN D | THE, STADICK P | | | $0.00 | 74570 | 97021676 |
| 7 | 08/01/1996 | QCD | Quit Claim Deed | SULLIVAN, JOHN D | SULLIVAN, JOHN D | | | $0.00 | 72462 | 97011588 |
| 8 | 01/01/1900 | OTHER | Other - Misc. Documents | SULLIVAN, JOHN D | SULLIVAN, JOHN D | | | $0.00 | 0 | 0 |
Payout Agreement
| No payout information available.. |