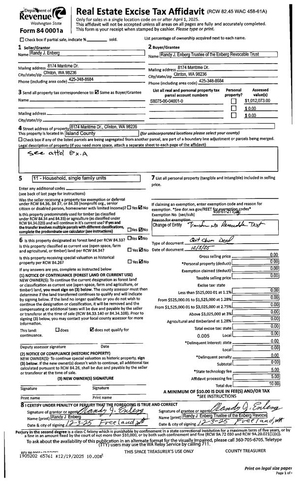
Property
Account |
| Property ID: | 367695 | Abbreviated Legal Description: | SANDY HOOK LOT 1 BLK 4 |
| Geographic ID: | S8075-00-04001-0 | Agent Code: | |
| Type: | Real | | |
| Tax Area: | 710 - APPRAISER-S Whid Schl Dist, outside Langley, improved & 1 acre or less | Land Use Code | 11 |
| Open Space: | N | DFL | N |
| Historic Property: | N | Remodel Property: | N |
| Multi-Family Redevelopment: | N | | |
| Township: | | Section: | |
| Range: | |
Location |
| Address: | 8174 MARITIME DR CLINTON, WA 98236 | Mapsco: | |
| Neighborhood: | Cycle 4 | Map ID: | 710 |
| Neighborhood CD: | 4 |
Owner |
| Name: | ENBERG, RANDY J | Owner ID: | 23148 |
| Mailing Address: | 8174 MARITIIME DR CLINTON, WA 98236 | % Ownership: | 100.0000000000% |
| | | Exemptions: | |
Taxes and Assessment Details
Values
| (+) Improvement Homesite Value: | + | $0 | |
| (+) Improvement Non-Homesite Value: | + | $652,073 | |
| (+) Land Homesite Value: | + | $0 | |
| (+) Land Non-Homesite Value: | + | $360,000 | |
| (+) Curr Use (HS): | + | $0 | $0 |
| (+) Curr Use (NHS): | + | $0 | $0 |
| | | -------------------------- | |
| (=) Market Value: | = | $1,012,073 | |
| (–) Productivity Loss: | – | $0 | |
| | | -------------------------- | |
| (=) Subtotal: | = | $1,012,073 | |
| (+) Senior Appraised Value: | + | $0 | |
| (+) Non-Senior Appraised Value: | + | $1,012,073 | |
| | | -------------------------- | |
| (=) Total Appraised Value: | = | $1,012,073 | |
| (–) Senior Exemption Loss: | – | $0 | |
| (–) Exemption Loss: | – | $0 | |
| | | -------------------------- | |
| (=) Taxable Value: | = | $1,012,073 | |
Taxing Jurisdiction
| Owner: | ENBERG, RANDY J | | |
| % Ownership: | 100.0000000000% | | |
| Total Value: | $1,012,073 | | |
| Tax Area: | 710 - APPRAISER-S Whid Schl Dist, outside Langley, improved & 1 acre or less |
| CF | Conservation Futures | 0.0313996660 | $1,012,073 | $1,012,073 | $31.78 | | |
| FIRE3 | Fire & Rescue Dist #3 S Whidbey GEN | 1.2130821753 | $1,012,073 | $1,012,073 | $1,227.73 | | |
| HOBOND | Hospital BOND | 0.1893405597 | $1,012,073 | $1,012,073 | $191.63 | | |
| HOGEN | Hospital GEN | 0.3848777722 | $1,012,073 | $1,012,073 | $389.52 | | |
| CE | County Current Expense | 0.3674210519 | $1,012,073 | $1,012,073 | $371.86 | | |
| CR | County Roads | 0.4614296361 | $1,012,073 | $1,012,073 | $467.00 | | |
| ISLANDEMS | Hospital GEN (EMS) | 0.4952018576 | $1,012,073 | $1,012,073 | $501.18 | | |
| LIB | Library Sno-Isle GEN | 0.3039084203 | $1,012,073 | $1,012,073 | $307.58 | | |
| PORTWHID | Port of S Whidbey GEN | 0.1086004714 | $1,012,073 | $1,012,073 | $109.91 | | |
| SCH206BOND | School 206 BOND | 0.5960237832 | $1,012,073 | $1,012,073 | $603.22 | | |
| SCH206CAP | School 206 CP | 0.3066144020 | $1,012,073 | $1,012,073 | $310.32 | | |
| SCH206MO | School 206 Enrichment | 0.4808755445 | $1,012,073 | $1,012,073 | $486.68 | | |
| ST | State School | 1.4761226122 | $1,012,073 | $1,012,073 | $1,493.94 | | |
| ST2 | State School Part 2 | 0.7953803475 | $1,012,073 | $1,012,073 | $804.98 | | |
| SWHIDPRBD | P & R S Whidbey BOND | 0.0144185398 | $1,012,073 | $1,012,073 | $14.59 | | |
| SWHIDPRBD3 | P & R S Whidbey BOND3 | 0.1483535547 | $1,012,073 | $1,012,073 | $150.14 | | |
| SWHIDPRMT | P & R S Whidbey GEN | 0.4600000000 | $1,012,073 | $1,012,073 | $465.55 | | |
| | Total Tax Rate: | 7.8330503944 | | | | | |
| | | | | Taxes w/Current Exemptions: | $7,927.61 | | |
| | | | | Taxes w/o Exemptions: | $7,927.61 | | |
Improvement / Building
| Improvement #1: | RESIDENTIAL | State Code: | Y | 2613.7 sqft | Value: | $652,073 |
| Bathrooms: | 3 | Bedrooms: | 2 | | Ceiling: | DRYWALL PAINTED | Exterior Wall/Cover: | SHINGLE | | Floor Covering: | CERAMIC TILE/CPT 40-60 | Floor Structure: | WOOD W/SUBFLOOR | | Foundation: | CONCRETE | Heating: | FHA OIL | | Interior Finish: | DRYWALL PAINT | Plumbing Fixture Cnt: | 14 | | Roof Slope: | 6" IN 12" | Roof Structure/Cover: | CJ ASPHALT |
|
| | Type | Description | Class CD | Sub Class CD | Year Built | Area |
| | BAS | BASE/MAIN FLOOR | 5 | 0 | 2000 | 2198.7 |
| | OP3 | OPEN PORCH W/ROOF | 5 | 0 | 2000 | 146.4 |
| | BGR | BASEMENT GARAGE | 5 | 0 | 2000 | 1521.0 |
| | OWP | OPEN WOOD PORCH W/STEPS | 5 | 0 | 2000 | 38.5 |
| | OWP | OPEN WOOD PORCH W/STEPS | 5 | 0 | 2000 | 232.5 |
| | DWN | DOWNSTAIRS LIVING AREA | 5 | 0 | 2000 | 415.0 |
Sketch
| No sketches available for this property. |
Property Image
Land
| 1 | 15 | SQ (12001-21780) | 0.0000 | 0.00 | 0.00 | 0.00 | 1.00 | $360,000 | $0 |
Roll Value History
| 2026 | N/A | N/A | N/A | N/A | N/A |
| 2025 | $652,073 | $360,000 | $0 | $1,012,073 | $1,012,073 |
| 2024 | $664,587 | $330,000 | $0 | $994,587 | $994,587 |
| 2023 | $672,408 | $320,000 | $0 | $992,408 | $992,408 |
| 2022 | $616,497 | $280,000 | $0 | $896,497 | $896,497 |
| 2021 | $542,997 | $220,000 | $0 | $762,997 | $762,997 |
| 2020 | $447,676 | $180,000 | $0 | $627,676 | $627,676 |
| 2019 | $362,010 | $210,000 | $0 | $572,010 | $572,010 |
| 2018 | $363,081 | $200,000 | $0 | $563,081 | $563,081 |
| 2017 | $363,977 | $170,000 | $0 | $533,977 | $533,977 |
| 2016 | $368,243 | $145,000 | $0 | $513,243 | $513,243 |
| 2015 | $372,507 | $120,000 | $0 | $492,507 | $492,507 |
| 2014 | $375,227 | $125,800 | $0 | $501,027 | $501,027 |
| 2013 | $380,158 | $125,800 | $0 | $505,958 | $505,958 |
| 2012 | $384,511 | $125,800 | $0 | $510,311 | $510,311 |
| 2011 | $388,865 | $148,000 | $0 | $536,865 | $536,865 |
| 2010 | $398,139 | $148,000 | $0 | $546,139 | $546,139 |
| 2009 | $415,555 | $185,000 | $0 | $600,555 | $600,555 |
| 2008 | $420,982 | $228,000 | $0 | $648,982 | $648,982 |
| 2007 | $422,009 | $215,000 | $0 | $637,009 | $637,009 |
Deed and Sales History
| 1 | 12/03/2025 | QCD | Quit Claim Deed | ENBERG, RANDY J | ENBERG REVOCABLE TRUST | | | $0.00 | 65761 | 4594863 |
Payout Agreement
| No payout information available.. |